Byggemåte
Tak er tekket med betongtakstein. Etter byggemåte med sløyfer, lekter og undertak. Tilbygg er tekket med
takshingel.
Takrenner, beslag og nedløp i plastbelagt stål.
Trekonstruksjon fra byggeår. Utvendig kledd med liggende trepanel med overflatebehandling.
Halvvalmet takkonstruksjon.
Isolerglass i treramme. Overflatebehandlet. Trevinduer med koblet glass.
Ytterdør i tre.
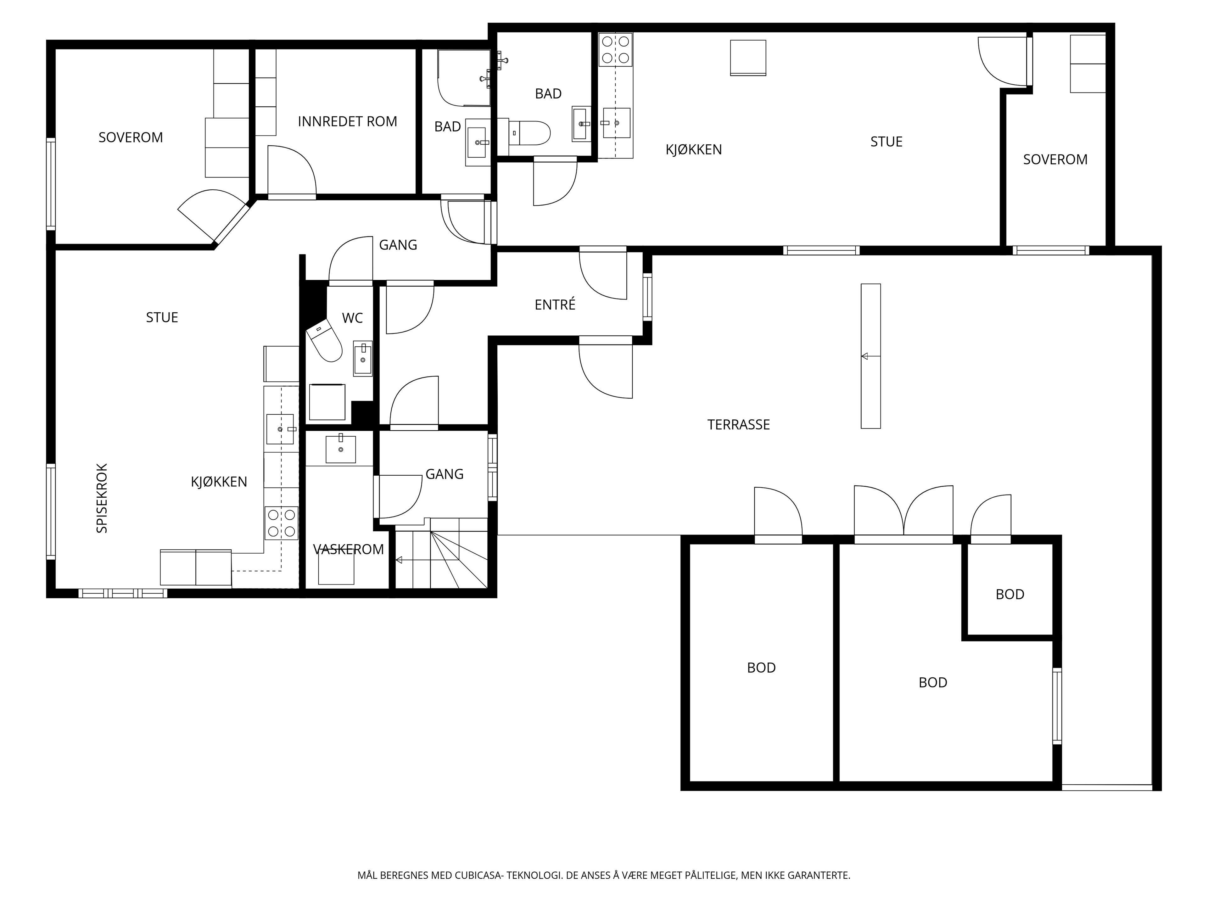
Foran inngangsparti er det en terrasse på ca 33 kvm oppført i trekonstruksjoner.
Se vedlagt boligsalgsrapport avholdt 21.11.25, hvor ovennevnte opplysninger er hentet fra, for
nærmere teknisk beskrivelse av eiendommen.
Takstmannen har utarbeidet en tilstandsrapport med gradering av eiendommens tilstand.
En tilstandsrapport beskriver boligens tilstand med synlige skader/avvik eller tegn på skader/avvik på
boligen. Rapporten fremhever vanligvis ikke positive egenskaper ved boligen. I felt hvor det er gitt
Tilstandsgrad 0 er det ingen avvik. I felt hvor det er gitt Tilstandsgrad 1 er det mindre avvik. Bygningsdeler
som tildeles Tilstandsgrad 2 angir mindre avvik som etter NS 3600 gir TG2 som ikke krever umiddelbare
tiltak eller vesentlige avvik som kan kreve tiltak. Bygningsdeler som tildeles Tilstandsgrad 3, har store
eller alvorlige avvik. Der det er angitt Tilstandsgrad IU er det ikke undersøkt eller bygningsdelen er ikke
tilgjengelig for undersøkelse.
I følge tilstandsrapport er det registrert følgende avvik på tilstandsgrad:
TG 3:
- Ingen.
TG IU:
- Utvendige vann- og avløpsledninger: Utvendige vann- og avløpsledninger er nedgrav og av naturlige
årsaker ikke sjekket. Det er ikke opplyst om pålegg, funksjonsfeil eller andre mangler ved anlegget.
TG 2:
- Taktekking: Mer enn halvparten av forventet brukstid er passert på taktekkingen. Mer enn halvparten av
forventet brukstid er passert på undertak.
- Nedløp og beslag: Det mangler snøfangere på hele eller deler av taket, men det var ikke krav om dette
på byggemeldingstidspunktet. Det mangler tilfredsstillende adkomst til pipe for feier. Mer enn halvparten
av forventet brukstid er passert på renner/nedløp/beslag.
- Veggkonstruksjon: Det er ingen eller liten lufting i nedre kant av kledning mot grunnmur. Det er påvist
spredte råteskader i bordkledningen. Varierende utlufting bak panel.
- Takkonstruksjon/loft: Det er begrenset/dårlig ventilering av takkonstruksjonen. Tilstand settes også med
tanke på alder.
- Vinduer: Noe kondensmerker på enkelte vinduer. Forsegling mellom vindusruter med isolerglass vil
over tid svekkes slik at risiko for punktering øker med alderen. Det ble ikke registrert eller opplyst om
punkterte vindusruter, men det gjøres oppmerksom på at dette kan være vanskelig å konstatere
og avhenge av lysforhold, m.m. på befaringspunktet.
- Innvendige overflater: Noe bruksslitasje med stedvise merker. Noe knirk enkelte steder.
- Etasjeskille/gulv mot grunn: Det er målt høydeforskjell på mellom 15-30 mm gjennom hele rommet.
Tilstandsgrad 2 gis med bakgrunn i standardens krav til godkjente måleavvik. Målt høydeforskjell på
mellom 10 - 20 mm innenfor en lengde på 2 meter. Tilstandsgrad 2 gis med bakgrunn i standardens krav
til godkjente måleavvik.
- Radon: Det er ikke foretatt radonmålinger, og bygget er heller ikke utført med radonsperre.
- Pipe og ildsted: Mer enn halvparten av forventet brukstid er passert på pipe. Feierluke på toalett i 1.
etasje.
- Innvendige trapper: Tilstand settes med tanke på alder. Noe knirk.
- Vannledninger: Rørkursene på rør-i-rør systemet på vannledninger er ikke merket. Vurdering er basert
på alder. Tilstandsgrad 2 gis med bakgrunn i at mer enn halvparten av forventet brukstid for skjulte
røranlegg er passert. Det er nå ingen symptomer på funksjonssvekkelse, men vær oppmerksom på at
dette er en risikokonstruksjon.
- Avløpsrør: Vurdering er basert på alder. Tilstandsgrad 2 gis med bakgrunn i at mer enn halvparten av
forventet brukstid for skjulte røranlegg er passert. Det er nå ingen symptomer på funksjonssvekkelse,
men vær oppmerksom på at dette er en risikokonstruksjon.
- Ventilasjon: Det er påvist mangelfull ventilasjon på ett eller flere rom i boligen.
- Fuktsikring og drenering: Det mangler, eller på grunn av alder er det sannsynlig at det mangler, utvendig
fuktsikring av grunnmuren ved kjeller/underetasje. Mer enn halvparten av forventet levetid på drenering er
overskredet.
- Grunnmur og fundamenter: Tilstand settes med tanke på alder og noe skjevheter.
- Overflater gulv bad 1. etasje: Det er påvist at høydeforskjell fra topp slukrist til gulv/synlig topp membran
ved dørterskel er mindre enn 25 mm. Det er påvist avvik i fallforhold til sluk i forhold til krav i forskrift på
byggetidspunktet.
- Sluk, membran og tettesjikt bad 1. etasje: Det foreligger ikke dokumentasjon på oppbygging av
baderomsgulv. Hvordan dette og eventuelt membranløsninger er utført er ukjent.
- Ventilasjon bad 1. etasje: Våtrommet mangler tilluftsventilering, f.eks. spalte/ventil ved dør.
- Overflater gulv bad 2 1. etasje: Det er påvist at høydeforskjell fra topp slukrist til gulv/synlig topp
membran ved dørterskel er mindre enn 25 mm. Det er påvist avvik i fallforhold til sluk i forhold til krav i
forskrift på byggetidspunktet.
- Sluk, membran og tettesjikt bad 2 1. etasje: Det foreligger ikke dokumentasjon på oppbygging av
baderomsgulv. Hvordan dette og eventuelt membranløsninger er utført er ukjent.
- Sanitærutstyr og innredning bad 2 1 .etasje: Tilstand settes med tanke på alder. Noe bruksslitasje.
- Ventilasjon bad 2 1. etasje: Våtrommet mangler tilluftsventilering, f.eks. spalte/ventil ved dør.
- Overflater gulv vaskerom: Det er påvist at høydeforskjell fra topp slukrist til gulv/synlig topp membran ved
dørterskel er mindre enn 25 mm. Det er påvist avvik i fallforhold til sluk i forhold til krav i forskrift på
byggetidspunktet.
- Sluk, membran og tettesjikt vaskerom: Det foreligger ikke dokumentasjon på oppbygging av
baderomsgulv. Hvordan dette og eventuelt membranløsninger er utført er ukjent.
- Ventilasjon vaskerom: Rommet har kun naturlig ventilasjon.
- Overflater og konstruksjon toalettrom: Toalettrom mangler tilluftsventilering, f.eks. spalte/ventil ved dør.
- Overflater og innredning kjøkken 2. etasje: Tilstand settes med tanke på alder. Noe bruksslitasje med
stedvise merker.
- Overflater gulv bad 2. etasje: Det er påvist at høydeforskjell fra topp slukrist til gulv/synlig topp membran
ved dørterskel er mindre enn 25 mm. Det er påvist avvik i fallforhold til sluk i forhold til krav i forskrift på
byggetidspunktet.
- Sluk, membran og tettesjikt bad 2. etasje: Det foreligger ikke dokumentasjon på oppbygging av
baderomsgulv. Hvordan dette og eventuelt membranløsninger er utført er ukjent.
For øvrig er det kun mindre avvik med TG 1 og TG 0.