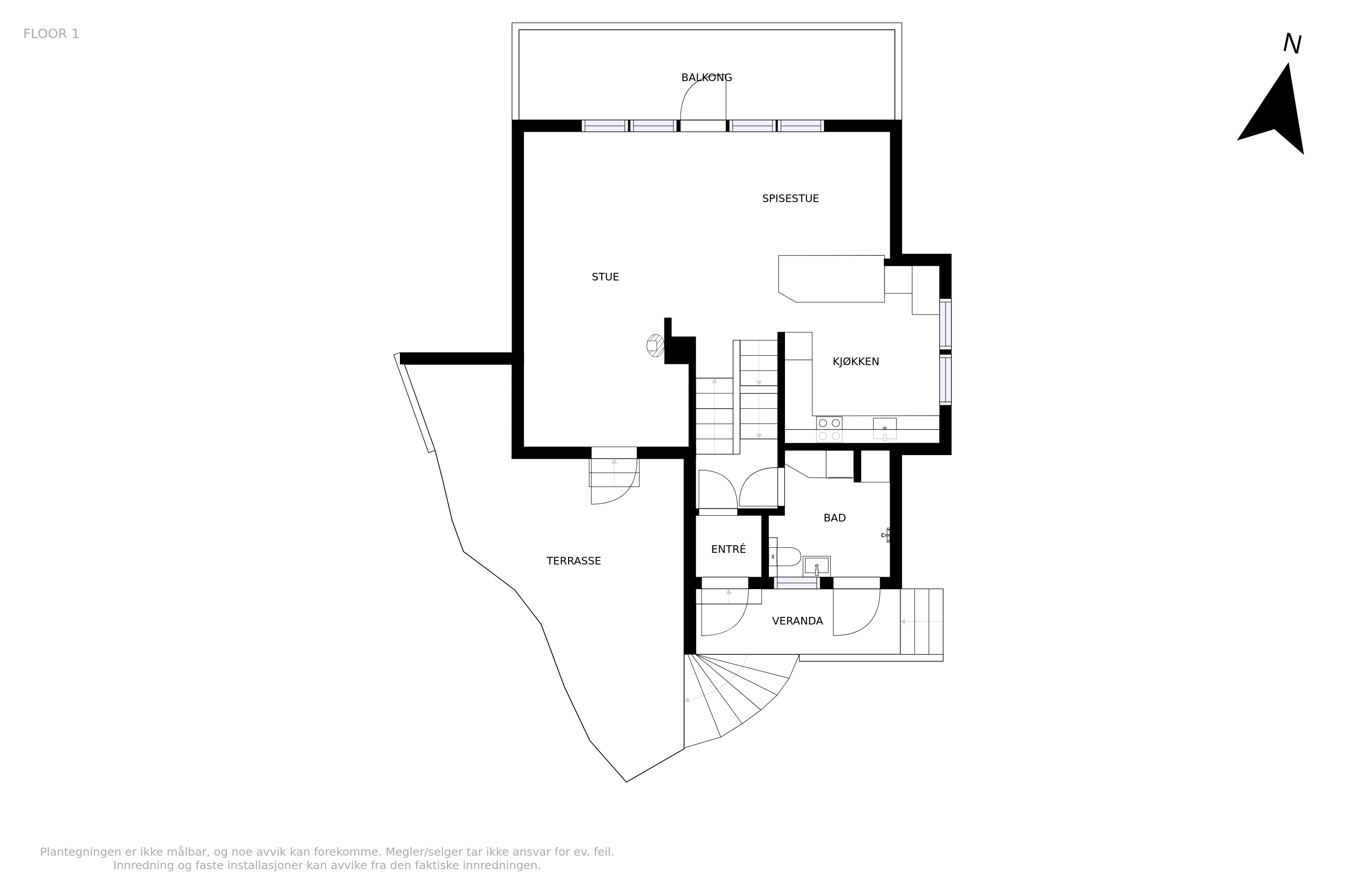
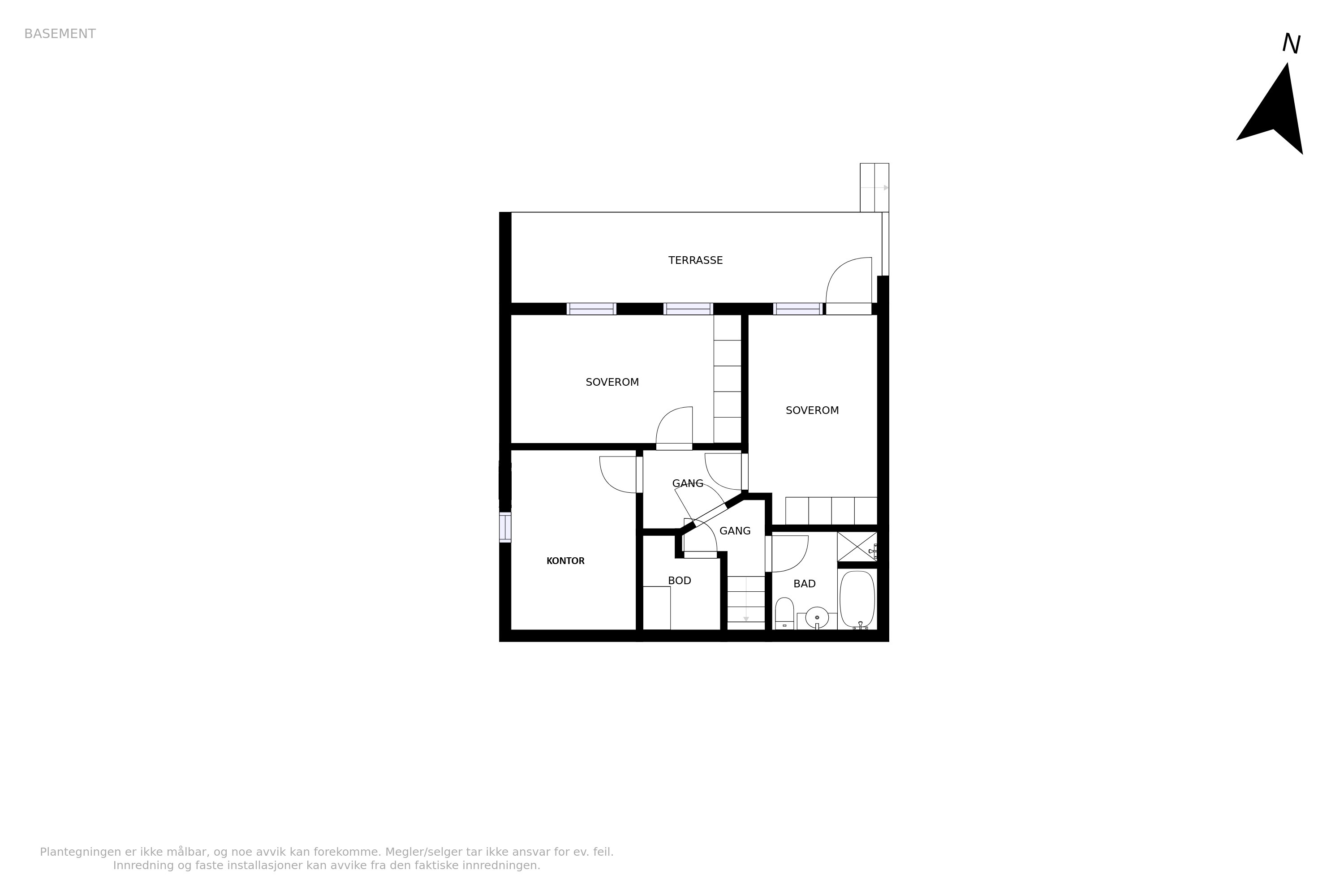
Byggemåte
Selger har i forbindelse med salget innhentet en tilstandsrapport. Rapporten er en teknisk gjennomgang
av boligen og angir eventuelle byggetekniske avvik, samt kostnadsoverslag for eventuelle oppgraderinger.
Vi vil gjøre spesielt oppmerksom på viktigheten av å lese igjennom rapportens TGIU (tilstandsgrad ikke
undersøkt), samt TG2 og TG3 som angir avvik fra normal slitasje, høy alder, bygningsdel som må
utbedres, og lignende.
Tilstandsgrad 0, TG0: Ingen avvik.
Tilstandsgrad 1, TG1: Mindre avvik.
Tilstandsgrad 2, TG2: Vesentlige avvik og mindre avvik som etter NS 3600 gir TG2.
Tilstandsgrad 3, TG3: Store eller alvorlige avvik.
Tilstandsgrad 3:
- Vinduer og dører: En ytterdør er fuktskadet.
- Yttervegger: Det er noe råte i enkelte vindskibord.
- Bad/vaskerom: Skruer til klemring i sluk i er rustne. Rørføringer gjennom gulv har ikke synlig
membran/mansjetter.
Tilstandsgrad 2:
- Vinduer og dører: Vinduer og balkongdører er værslitte. Enkelte vinduer har punkterte glass. De fleste
opprinnelige vinduene subber noe i karm. En balkongdør subber i karm. Over halvparten av forventet
levetid er nådd på opprinnelige dører og vinduer.
- Yttervegger: Det er noe uferdig arbeid rundt igjentetting av balkongdør i underetasje. Det er ikke mulig å
kontrollere lufting og musetetting mellom kledning og veggkonstruksjon.
- Drenering: Over halvparten av forventet levetid på drenering er nådd. Grunnmursplast mangler topplist.
Det ble registrert fuktforskjeller i kjellergulv og i nedre del av kjellervegger. Boligen ligger i et skrånende
terreng. Terrenget faller stedvis inn mot grunnmur.
- Grunnmur og fundament: Det er noe løs puss/malingsavskalling på mur.
- Krypkjeller: Det ble observert noe muggsopp og noe "nedbøyning" på asfaltplater i krypkjeller. - Rom
under terreng: Det ble registrert fuktforskjeller i kjellergulv og i nedre del av kjellervegger. Denne
merknaden gjelder det samme punktet som under "Drenering". Det er montert plast (diffusjonssperre) og
asfaltpapp på kjellervegger. Utforede kjellervegger er å betrakte som en risikokonstruksjon.
- Treplatting: Treplattingen er noe slitt. Bygningsdelen er ikke fullt ut kontrollert pga snø.
- Skorstein over tak: Pipeløp er beslått. Bygningsdelen er ikke fullt ut kontrollert pga snø. -
Takkonstruksjon og loft: Bygningsdelen er ikke fullt ut kontrollert pga snø.
- Taktekking: Taktekkingen er ikke kontrollert pga snø. Over halvparten av forventet levetid er nådd.
- Avløpsrør: Over halvparten av forventet levetid på avløpsrør er nådd.
- Vannledninger: Over halvparten av forventet levetid på vannrør er nådd. - Varmesentral: Alder.
- Varmtvannsbereder: Varmtvannsberederen er over 20 år har usikker restlevetid.
- Bad: Det er lite fall utenfor dusjsonen. Det er enkelte små hakk/skår og riss/sprukne fliser. Sluk er
"innmur" under badekar. Sluket er derfor ikke mulig å få inspisert godt. Sluk er heller ikke mulig å få
rengjort. Det er ikke etablert luftespalte i dør.
- Bad/vaskerom: Det er ikke tilfredsstillende fall til sluk i dusjsonen. Det er for lite fall utenfor dusjsonen,
noe lekkasjevann vil da trolig ikke ledes til sluk. Det er enkelte små hakk/skår og riss/krakelerte fliser. Det
er ikke etablert dreneringshull fra innebygd wc sisterne. Det er ikke etablert luftespalte i dør.
- Overflater: Det er noe "bom" (mangelfull heft mot underlag) i gulvfliser på kjøkken. Det er noen små
sprekker i gulvbelegg i vindfang. Det er noe fuktsvellinger i laminatgulv i loftstue.
- Etasjeskille og gulv mot grunn: På kontrollerte steder er det registrert skjevheter i etasjeskillet med målt
avvik på inntil 20 mm.
- Garasje: Det ble registrert noe fuktforskjeller i gulv og nederst på garasjevegger. Garasjeport og boddør
er noe slitt.
- Radon: Det er ikke foretatt radonmålinger, og boligen er heller ikke utført med radonsperre.
Se vedlagt tilstandsrapport avholdt 06.01.26, hvor ovennevnte opplysninger er hentet fra, for
nærmere teknisk beskrivelse av eiendommen.