4849632_1a
Perfekt førstegangskjøp! Splitter ny 1-roms m/alkove & fransk balkong | Felles takterrasse & sentral beliggenhet ( 1 av )
4849636_1a
Som beboer får du alle fordelene av å flytte inn i et splitter nytt bygg og gleden av å være den første som tar boligen i bruk. ( 2 av )
4849630_1a
Beliggenheten er svært sentral med kort gangavstand til servicetilbud, kollektivtransport og flotte rekreasjonsmuligheter i nærområdet. ( 3 av )
4849764_1a
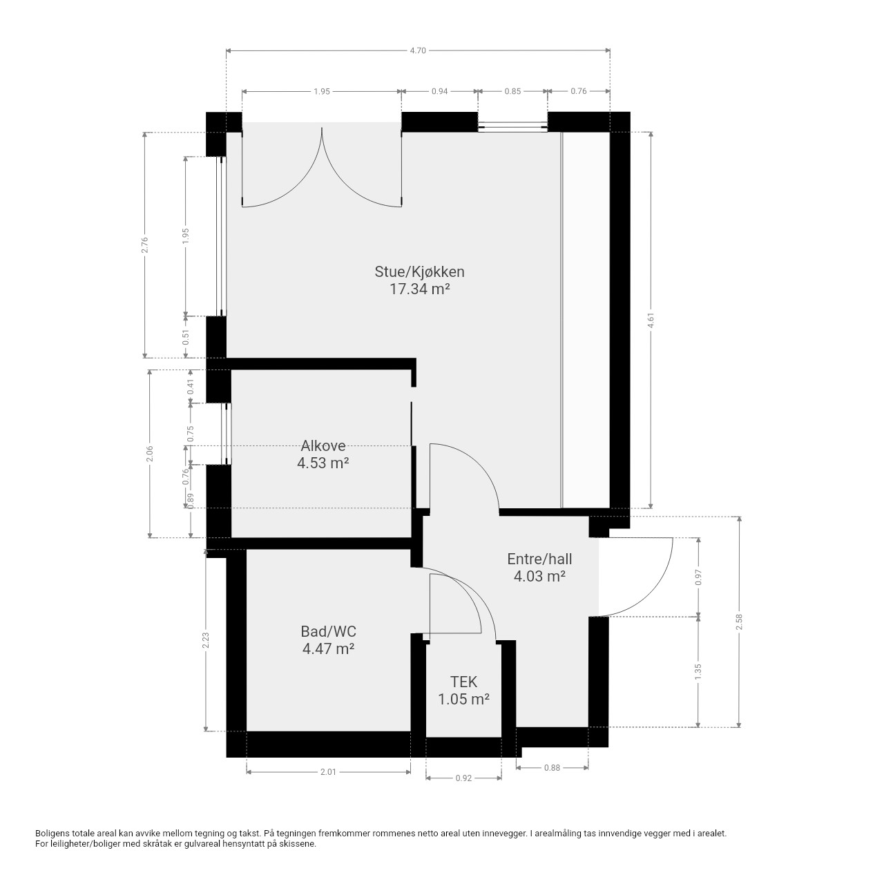
Plantegning ( 4 av )
4849633_1a
Leiligheten har en åpen stue- og kjøkkenløsning med store vindusflater, som slipper inn rikelig med dagslys. ( 5 av )
4849631_1a
( 6 av )
4849635_1a
Fra stuen er det utgang til en fransk balkong som gir luft og lys til rommet. ( 7 av )
4849634_1a
Stuen har god plass til sofa og tilhørende møblement. ( 8 av )
4849644_1a
Leiligheten ble opprinnelig prosjektert med alkove som et tilvalg. Denne er bygget som et eget rom på ca. 4,5 m². Rommets størrelse er under dagens normgivende krav til rom for varig opphold, og det er derfor ikke godkjent som et soverom. ( 9 av )
4849638_1a
Kjøkkenet er levert fra Norema med klassiske hvite fronter, sort laminat benkeplate og spotter under overskap. ( 10 av )
4849637_1a
Planløsningen gir naturlig plass til spisebord ved kjøkkenet. ( 11 av )
4849639_1a
Kjøkkenet har integrerte hvitevarer fra Electrolux. ( 12 av )
4849640_1a
Langs kjøkkenveggen er det etablert en egen sone med sitteplass. ( 13 av )
4849641_1a
( 14 av )
4849642_1a
( 15 av )
4849643_1a
( 16 av )
4849651_1a
( 17 av )
4849645_1a
Flislagt baderom med innfellbare dusjvegger, vegghengt toalett og servant med underskap. ( 18 av )
4849647_1a
Vannbåren gulvvarme og downlights i tak gir en moderne og komfortabel standard. ( 19 av )
4849646_1a
Det er avsatt plass til vaskemaskin og tørketrommel i teknisk nisje. ( 20 av )
4849648_1a
Lys og praktisk entré med vannbåren gulvvarme og plass til oppbevaring. ( 21 av )
4849650_1a
Fra entréen er det tilgang til teknisk rom. ( 22 av )
4849649_1a
I tillegg er det en egen bod i kjelleren. ( 23 av )
4849652_1a
Leiligheten i Isak H. Wiiks gate 10 ligger i sentrale omgivelser midt i hjertet av Lørenskog - Her har du alt du behøver rett utenfor ytterdøren. Velkommen til visning! ( 24 av )

Isak H. Wiiks gate 10

Se alle bilder (0)
4849632_1a
4849636_1a
4849630_1a
4849764_1a
4849633_1a
4849631_1a
4849635_1a
4849634_1a
4849644_1a
4849638_1a
4849637_1a
4849639_1a
4849640_1a
4849641_1a
4849642_1a
4849643_1a
4849651_1a
4849645_1a
4849647_1a
4849646_1a
4849648_1a
4849650_1a
4849649_1a
4849652_1a

Isak H. Wiiks gate 10

Prisantydning:
Fra Kr 3500000,00
til Kr 0,00
Totalpris:
Kr 3600750,00
BRA:
37,00 - 0,00
BRA-i:
34 - 0
Soverom:
0 - 0
Boligtype:
Leilighet
Eierform:
Fellestomt
Byggeår:
2025
Etasje:
0
Tomteareal:
10752

Perfekt førstegangskjøp! Splitter ny 1-roms m/alkove & fransk balkong | Felles takterrasse & sentral beliggenhet

Ansvarlig megler:
Truls Hauge

Daglig leder/ Partner/ Eiendomsmegler MNEF

Justyna Szabla

Eiendomsmeglerfullmektig

Visning

Det er for tiden ikke satt opp visningstid på denne eiendommen.
Ønsker du å avtale et visningstidspunkt?
Avtal privatvisning her

Isak H. Wiiks gate 10

image005

Nøkkelinformasjon

plus_G_2025

BELIGGENHET

plus_G
minus_G

BESKRIVELSE AV EIENDOMMEN

plus_G
minus_G

OFFENTLIGE FORHOLD

plus_G
minus_G

PRISANTYDNING INKLUDERT OMKOSTNINGER

plus_G
minus_G

SAMEIET/ØKONOMI

plus_G
minus_G

ØVRIGE KJØPSFORHOLD

plus_G
minus_G

Dokumenter

plus_G_2025

Del boligen

facebook-gold
Twitter-gold

Lurer du på noe om denne boligen?

Ta kontakt under via skjemaet.


Relaterte boliger

Losbyveien 36C
2990000,00  0,00

Losbyveien 36C

Lørenskog ­ Finstadjordet
Gjennomgående 2-roms selveier med p-plass. Markterrasse på 20 kvm samt balkong på 12 kvm. Perfekt for førstegangskjøper!

Totalpris:

Kr 3190044,00

BRA-i:

56 m²
Haukeveien 3A
11500000,00  0,00

Haukeveien 3A

Lørenskog ­ Rasta
Stor, påkostet familiebolig fra 2020 m/ fantastisk utsikt! Stue & kjøkken på over 80 m² | 5 sov, 3 bad | Dobbelgarasje

Totalpris:

Kr 11800750,00

BRA-i:

215 m²
Skårerveien 58A
10950000,00  0,00

Skårerveien 58A

Lørenskog ­ LØRENSKOG
Innflyttningsklar familiebolig fra 2025 med balkong, carport og parkeringsplass. 3/4 soverom og to bad + vaskerom.

Totalpris:

Kr 11225100,00

BRA-i:

147 m²
Oscar Wistings vei 5
8700000,00  0,00

Oscar Wistings vei 5

Lørenskog ­ Fjellhamar
Hel tomannsbolig med leieinntekter, 1,6 mål tomt & fantastisk utsikt | Stort potensiale | Like ved tog, skole & marka

Totalpris:

Kr 8935750,00

BRA-i:

159 m²
Ingvald Kristiansens gate 7
5995000,00  0,00

Ingvald Kristiansens gate 7

Lørenskog ­ LØRENSKOG
Nyoppført og attraktiv 4-roms selveier m/garasjeplass & innglasset balkong | Sentralt & moderne i Skårerløkka Premium

Totalpris:

Kr 6158120,00

BRA-i:

78 m²
Vestaveien 45
12900000,00  0,00

Vestaveien 45

Lørenskog ­ Rasta
Påkostet familievilla med nydelig uteområde, innflyttingsklare kvaliteter og 3 garasjer | 4 sov & 3 bad | Rett ved marka

Totalpris:

Kr 13240750,00

BRA-i:

197 m²
Korallsoppveien 25A
6950000,00  0,00

Korallsoppveien 25A

Lørenskog ­ RASTA
Barnevennlig innerst i blindvei ved Østmarka. Halvpart av tomannsbolig. Garasje m/lader. 4 soverom. 2 bad

Totalpris:

Kr 7137000,00

BRA-i:

140 m²
Framveien 8
13350000,00 - 13990000,00

Framveien 8

Lørenskog ­ Fjellhamar
Eksklusive, innflyttingsklare eneboliger | Høy, påkostet standard | Garasje, praktikantdel & takterrasse | 1 SOLGT

Totalpris:

Kr 13350000,00

BRA-i:

220 m²
Asbjørn Klosters vei 3A
11990000,00  0,00

Asbjørn Klosters vei 3A

Lørenskog ­ Fjellhamar
Ny og råstilig familiebolig på 180m² med mulighet for praktikantdel | 4 bad og 5 soverom | Garasjeanlegg med 2 plasser

Totalpris:

Kr 12078850,00

BRA-i:

186 m²
Bjørndalsveien 26C
11750000,00  0,00

Bjørndalsveien 26C

Lørenskog ­ RASTA
Stor, arkitekttegnet funkisbolig med fantastisk takterrasse på 78 kvm. Påkostet kjøkken. 2 min gange til barneskole.

Totalpris:

Kr 12064000,00

BRA-i:

229 m²
Se flere boliger
Bolig til salgs

Inspirasjon

Inspirerende interiørbilder fra norske hjem.
sov1
Soverom
kjo1
Kjøkken
stue
Stue

Boligartikler

Nyttig informasjon, råd og inspirasjon for deg som er opptatt av bolig.
aaletidligute
Aktuelt

Kapret først drømmeboligen, solgte egen bolig få dager senere

Konseptet vårt, Tidlig ute, legger til rette for et stressfritt boligsalg på kundens premisser. Poenget er å være ute i god tid, slik at prosessen...
vo4
Aktuelt

178 dager uten bud; - Proaktiv solgte boligen min etter første visning

Huset i Vestre Olsvikveg hadde mistet alt av moment etter et halvt år ute i markedet. Da Proaktiv ved Jon Kristian Røsok kom inn i bildet ble...
n_r-16
Aktuelt

Drømmer du om å drive ditt eget meglerkontor?

Proaktiv Eiendomsmegling er alltid på utkikk etter flinke folk som ønsker å skape sin egen suksess. Er du en målrettet og verdiskapende megler, med...