Standard
Velkommen til Vormlia 5 - en vertikaldelt halvpart av tomannsbolig fra 1961 med gjennomgående
moderne standard. Dette er en perfekt familiebolig med god plass, praktisk planløsning og alle
nødvendige fasiliteter. Boligen går over 2 plan, med innredet kjeller.
Det bemerkes at samtlige oppholdsrom i kjeller med unntak av bad/vaskerom på byggetegningene er
regulert som boder, og at ingen av de resterende rommene i kjelleren er bygmeldt og godkjent.
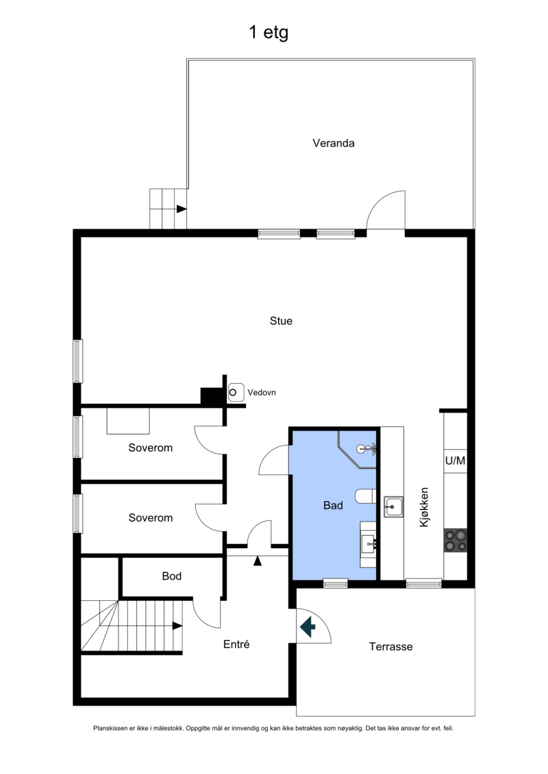
Entré:
Velkommen inn!
Ditt første møte med boligen er en romslig entré. Her er det god plass til å henge av seg yttertøyet og har
man behov for ytterligere oppbevaring er det plass for dette. Entréen glir sømløst over i
gangen/trapperommet, og er også tilknyttet en praktisk bod.
Baderom:
Videre beveger vi oss gjennom gangen hvor du har inngang til badet. Badet fremstår som moderne og
funksjonelt med flislagt gulv med varme og våtromsplater på veggene. Himlingen har tak-essplater med
innfelte downlights som gir godt lys. Rommet er innredet med vegghengt servantskap med heldekkende
servant, ett-greps armatur og speil med overlys og oppbevaringsskap. Dusjsonen har innfellbare
glassdører som sparer plass, og er utstyrt med både tak- og hånddusj for fleksibel bruk. Det vegghengte
toalettet med innebygd sisterne gir et rent og moderne uttrykk. Rommet har også opplegg for
vaskemaskin og plass til tørketrommel. Ventilasjon skjer via veggmontert avtrekksvifte. Vannrør er etablert
med rør-i-rør-system, mens avløpsrør er i plast.
Soverom 1 og 2:
På andre siden av gangen møtes du av to lyse og romslige soverom renovert i 2024 med plass for seng,
garderobe og eksempelvis skrivebord. Dette er de perfekte barnerom, gjesterom, hjemmekontor eller
garderoberom.
Stue og spisestue:
Vi beveger oss videre innover i boligen og møtes av den romslige stuen, et naturlig samlingspunkt for
familie og venner. Her er det god plass til en stor sofagruppe og mediebenk, og rommet oppleves lyst og
luftig takket være store vindusflater som slipper inn rikelig med dagslys. Peisen bidrar med lun varme og
hyggelig atmosfære på kalde dager, samtidig som den fungerer som et naturlig skille mellom stuen og
spisestue/kjøkken.
Spisestuen har sin naturlige plass i tilknytning til kjøkkenet og byr på god plass til et stort spisebord -
perfekt for både hverdagsmåltider og sosiale sammenkomster. Herfra er det utgang til en solrik terrasse
med utsikt mot grønne omgivelser og golfbanen, som gjør det enkelt å forlenge måltidene utendørs på
fine dager.
Kjøkken:
Kjøkkenet har åpen løsning mot stuen hvilket gir et sosialt utgangspunkt og er svært funksjonelt i en travel
hverdag. Kjøkkenet har en praktisk og gjennomtenkt løsning med god arbeids- og oppbevaringsplass.
Innredningen har profilerte fronter og består av benkeskap, overskap og høyskap som gir rikelig med
lagringsmuligheter. Benkeplaten i laminat er både slitesterk og lett å vedlikeholde. Under overskapene er
det belysning som sikrer godt arbeidslys. Kjøkkenet er utstyrt med integrerte hvitevarer, inkludert
kjøleskap med frysedel, stekeovn, mikrobølgeovn, induksjonstopp og oppvaskmaskin. Det er ventilator
over kokeplassen og vindu som slipper inn naturlig lys.
Bod:
I entreen finnes også en praktisk og romslig bod som rommer diverse husholdningsartikler og utstyr.
Rom i sokkel er innredet som følgende og i benyttes i dag som:
Kjellerstue:
Via entreen kommer du ned i kjelleren som i dag er innredet som en koselig kjellerstue. Kjellerstuen gir
et perfekt tilskudd til boligens oppholdsareal. Her er det god plass til sofagruppe, TV-løsning og andre
møbler etter behov. Rommet får naturlig lys inn gjennom vinduer som vender mot hagen, og vedovnen
skaper en lun og behagelig atmosfære på kalde dager. Dette er et ideelt rom for både avslapning, lek
eller som et ekstra oppholdsrom for familien
Bad/vaskerom:
Et lekkert og moderne bad renovert i 2022 med flislagt gulv med varme og store, tidsriktige fliser på
veggene. Taket har strekkhimling med hvit duk og innfelt LED-listbelysning som gir en elegant og
behagelig atmosfære. Badet er innredet med vegghengt servantskap med heldekkende servant og
ett-greps armatur, speil med integrert lys og varme for å alltid sikre duggfri speil, samt overskap og
arbeidsbenk med underskap. Det er også nisje med opplegg for vaskemaskin og tørketrommel. Dusjen
er plassert i hjørnet med innfellbare glassdører, og dusjbatteriet er tilkoblet både tak- og hånddusj for
fleksibel bruk. Rommet har i tillegg et frittstående badekar med microsilk som gir en frisk og glødende
hud og en eksklusiv spa-følelse.
Toalettrom:
Toalettromme som ble pusset opp i 2023 fremstår moderne og stilrent. Rommet har laminatgulv med
elektrisk gulvvarme, malte vegger og himling med malte tak-essplater. Innredningen består av et
vegghengt toalett og et servantskap med ovenpåliggende servant og ett-greps armatur. Over servanten er
det montert et speilskap som gir både oppbevaringsplass og godt lys. Et funksjonelt og oppgradert rom
som passer godt inn i boligens helhetlige stil.
Bod via toalettrom:
Videre inn fra toelttrommet finner du en romslig bod som rommer alt av utstyr.
Hovedsoverom:
Et lunt og innbydende rom som i dag er benyttet som hovedsroverom med god plass til dobbeltseng og
nattbord. Den store skyvedørsgarderoben gir rikelig med oppbevaringsplass og bidrar til et ryddig og
gjennomført uttrykk. Vinduet slipper inn morgensol som gir en deilig start på dagen. Et behagelig rom
som passer perfekt for avslapning og god nattesøvn, men egner seg godt til ulike bruksområder.
Soverom:
Et pent og praktisk rom som i dag blir benyttet som soverom med plass til dobbeltseng og nattbord.
Rommet har lysinnslipp fra vindu som gir en trivelig følelse, og det egner seg godt som gjesterom,
ungdomsrom eller kontor. En behagelig plass for både hvile og arbeid, med enkel adkomst fra
kjellerstuen.
Terrasse og hage:
Eiendommen har en romslig og solrik terrasse på ca.21 kvm med utgang fra spisestuen. Her er det god
plass til både spisegruppe og sittegruppe, perfekt for sosiale sammenkomster eller rolige stunder
utendørs. Levegger for ekstra komfort og utebelysning og stikkontakt. En del av terrassen er overbygd,
noe som forlenger utesesongen og gir ly for både sol og regn. Hagen er pent opparbeidet med gressplen
og hekk som skjermer mot innsyn. Uteområdet gir gode muligheter for lek, grilling og avslapning i
trivelige omgivelser.
Uteplass:
Fra kjellerstuen er det direkte utgang til en lun og overbygd uteplass. Her er det god plass til en
sittegruppe, perfekt for rolige kvelder eller sosiale sammenkomster
2025:
-Installert varmepumpe.
2024:
-Renovering av soverom oppe.
-Nytt vindu soverom 1
-Ny elektrisk kurs etablert.
-Ny ekspansjonstank til vvb.
2023:
-Renovering av toalett nede.
-Arbeid utført av elektriker og rørlegger. Dokumentasjon og bilder foreligger.
-Bytte til automatsikringer i hovedsikringsskap.
2022:
-Montert el-bil lader med ny kurs.
-Renovering av bad nede. Arbeid utført av elektriker og rørlegger. Dokumentasjon og bilder foreligger
2021:
-Drenering under veranda på østside nede.
-Laget platting.
2020:
-Installert lensepumpe ifb. med drenering.
2019:
-Ny kjøkkenvifte.
-Oppussing av gang. Elektrisk arbeid utført av faglært familievenn. Bilder foreligger (Fortsetter fra
2018-2019): Oppussing av gang, se over 2018
-Etterisolering av vegg ved inngangsparti og resterende vegger mot sør. Nye vinduer og ny kledning.
Oppussing av gang. Elektrisk arbeid utført av faglært familievenn.
(Fortsetter fra 2018-2019): Oppussing av gang, se over.
2016:
-Etterisolering av yttervegg sør. Nye vinduer og ny kledning.
-Lyskasse i kjelervinduer.
2015:
-Etterisolering av yttervegg øst. Nye vinduer og balkongdør, ny kledning.
-Ny platting og inngangsparti.
-Drenering og etterisolering av mur utført av Odal VVS.
-(Ikke under inngangsparti)
-Oppussing kjeller: varmekabler i stue og gang. Bilder foreligger
-Dokumentasjon etterspurt hos elektriker.
-Trukket strøm til termostater, stikkontakter og utelys. Bilder foreligger
-Nye balkongdører nede. Nye kjellervinduer.
-Mur satt opp uteplassen nede
Selger har fått utarbeidet en tilstandsrapport for eiendommen. Rapporten er en teknisk gjennomgang av
boligen og angir eventuelle byggetekniske avvik. I rapporten fremkommer det forhold som takstmannen
mener kjøper må være særskilt oppmerksom på, herunder:
Utdrag fra tilstandsrapport:
TG 3 - STORE ELLER ALVORLIGE AVVIK:
Utvendig > Utvendige trapper:
Det er ikke montert rekkverk. Trapp mellom de to utvendige nivåene er ikke god å gå i som følge av for
korte inntrinn.
Tomteforhold > Forstøtningsmurer:
Det mangler rekkverk/annen sikring på forstøtningsmuren(e) ut ifra dagens krav.
Våtrom > 1. Etasje > Bad > Overflater Gulv:
Det er påvist at høydeforskjell fra topp slukrist til gulv/synlig topp membran ved dørterskel er mindre enn
25 mm.
Målinger viser at det ikke er fall til sluk (motfall).
Det er påvist fall fra døråpning mot yttervegg på ca. 10 mm.
Spesialrom > Sokkel > Toalettrom > Overflater og konstruksjon
Toalettrom har ingen ventilering fra rommet, NS 3600 krever mekanisk avtrekk for å kunne gi TG 0/1.
Det mangler lekkasjesikring for innebygget sisterne.
TG2 - AVVIK SOM KAN KREVE TILTAK:
Utvendig > Taktekking
Mer enn halvparten av forventet brukstid er passert på taktekkingen.
Mer enn halvparten av forventet brukstid er passert på undertak.
Ved kontroll under takstein ble det registrert begynnende råteskader i enkelte sløyfer.
Det ble også observert at undertakspappen ikke har oppbrett mot vindskier, noe som kan medføre
vanninntrenging i overgangen mellom takflate og vindskier ved slagregn eller snøsmelting.
Takstein begynner å bli mosegrodd.
Utvendig > Takkonstruksjon/Loft
Fuktmerker som sannsynligvis har årsakssammenheng med kondensproblematikk.
Fuktmerker som sannsynligvis har årsakssammenheng med utett yttertaktekning.
Svertesopp i undertaket sannsynligvis som følge av kondenseringsproblematikk.
Det bemerkes at ventilasjonen i gesims ikke er ideell.
Begrenset ventilasjon mellom undertak og isolasjon.
Luftlekasjer som følge av utett dampsperre mot 1. etasje.
Utvendig > Balkonger, terrasser og rom under balkonger
Rekkverket er for lavt i forhold til dagens krav til rekkverkshøyder.
Gulvbord og rekkverk med grønske og fuktbelastning.
Frittliggende terrasse har skjevtheter.
Skjevt fundament for veranda.
Innvendig > Etasjeskille/gulv mot grunn
Det er målt høydeforskjell på mellom 15-30 mm gjennom hele rommet.
Innvendig > Pipe og ildsted:
Mer enn halvparten av forventet brukstid er passert på pipe.
Innvendig > Innvendige trapper:
Det mangler håndløper på vegg i trappeløpet.
Tekniske installasjoner > Avløpsrør
Mer enn halvparten av forventet brukstid er passert på innvendige avløpsledninger.
Tekniske installasjoner > Ventilasjon:
Det er begrenset ventilasjon fra ett eller flere rom etter at det ble byttet vinduer.
Tekniske installasjoner > Varmtvannstank:
Det er ikke påvist tilfredsstillende avrenning eller annen kompenserende løsning fra varmtvannstank.
Tekniske installasjoner > Elektrisk anlegg:
Sikringsskap med automatsikringer plassert i gang. Det
elektriske anlegget er basert på åpne og skjulte
føringsveier. Hovedbryter på 63 Amp, 230 V. Anlegg
Tilstandsgraden er vurdert ut fra den forenklede og begrensede kontrollen som forskriften inneholder.
El-anlegget kan ha feil og mangler som en slik
forenklet undersøkelse ikke vil avdekke.
Tomteforhold > Fuktsikring og drenering:
Mer enn halvparten av forventet levetid på drenering
er overskredet. Dette gjelder den delen av dreneringen som ikke ble skiftet.
Det opplyses om at det ble gjort noe feil ved beregning av fall på drensledningen. Det har i ettertid blitt satt
ned en lensepumpe som pumper vannet igjennom drensledningen mot drenskum
Tomteforhold > Terrengforhold:
Det er påvist dårlig fall eller flatt terreng inn mot grunnmur og dermed muligheter for større
vannansamlinger.
Tomteforhold > Utvendige vann- og avløpsledninger
Mer enn halvparten av forventet brukstid er passert på utvendige avløpsledninger.
Våtrom > 1. Etasje > Bad > Overflater vegger og himling:
Symptomer på fuktskade i himling over toalett.
Skader på fug mellom sokkel flis og våtromsplater.
Våtrom > 1. Etasje > Bad > Sanitærutstyr og innredning:
Det mangler drenering fra innebygget sisterne.
Våtrom > Sokkel > Bad > Overflater Gulv
Det er påvist avvik i fallforhold til sluk i forhold til krav i forskrift på byggetidspunktet. Det er kun fall til sluk i
dusjsonen, ingen oppbrett ved dør.