Byggemåte
Takstmann har gjennomgått boligen og gjort vurderinger på en tilstandsgrad fra 1 til 3. Graderingene er 
som følger:
Tilstandsgrad 0, TG0: Ingen avvik.
Tilstandsgrad 1, TG1: Mindre avvik.
Tilstandsgrad 2, TG2: Avvik som ikke trenger umiddelbare tiltak
Tilstandsgrad 2, TG2(*): Avvik som kan kreve tiltak
Tilstandsgrad 3, TG3: Store eller alvorlige avvik.
TGIU: Ikke tilgjengelig for undersøkelse.
TG3:
- Vaskerom: Grunnet alder blir det satt TG 3. TG 3 blir satt på alle våtrom som er oppført før Teknisk 
forskrift 1997 etter ny avhendingslov fra 2022. Våtrommet må oppgraderes for å tåle normal bruk etter 
dagens krav.
- Fuktsikring og drenering: Mer enn halvparten av forventet levetid på drenering er overskredet. Det er ut 
ifra observasjoner konstatert at drenering/tettesjikt har funksjonssvikt/svært begrenset effekt. Det ble 
registrert fukt i svill i bod.
TG2 avvik som kan kreve tiltak:
- Taktekking: Mer enn halvparten av forventet brukstid er passert på taktekkingen og undertak. 
- Nedløp og beslag: Det er ikke tilfredsstillende bortledning av vann fra taknedløp ved grunnmur. Mer enn 
halvparten av forventet brukstid er passert på
renner/nedløp/beslag.
- Veggkonstruksjon: Ingen synlige musebånd.
- Takkonstruksjon/loft: Det er påvist avvik rundt gjennomføringer i takflaten. Det er påvist 
fuktskjolder/skader i takkonstruksjonen. Hele takkonstruksjonen er gjenbygget etter lekkasje fra kil 
rennen på yttertaket. 
- Vinduer: Det er påvist at enkelte vinduer er vanskelig å åpne/lukke. Karmene i vinduer er slitte og det er 
sprekker i trevirket.
- Dører: Utett åpning mellom karm og dørblad, samt mangelfullt beslag til leilighet i uetg. Balkongdør i 
2.etg. er vanskelig å lukke.
- Balkonger, terrasser og rom under balkonger: Åpninger i rekkverk er ikke i henhold til krav i dagens 
forskrifter. Rekkverket er for lavt i forhold til dagens krav til rekkverkshøyder. Det er værslitt/oppsprukket 
trevirke/trepaneler.
- Innvendige overflater: Overflater har en del slitasjegrad utover det en kan forvente. Det er fuktskade i vegg 
og vindusutforing i 1 etg., samt fuktskadet
parkett.
- Pipe og ildsted: Det er Fyringsforbud vedovn på kjøkken. Brannvesenets grunn til fyringsforbud at veggen 
inn mot stua ikke er i brannhemmende materiale.
- Rom under terreng: Det ble registrert fukt i svill i bod, samt fuktig papp mot leca. Oppbygging av påforing 
er utført med plast, papp, isolasjon og papp mot leca. Dette er ikke en anbefalt løsning i dag.
- Bad 2.etg - overflater vegger og himling: Det er påvist at flisfuger har riss/sprekker. Takvindu i 
badekarsone.
- Bad 2.etg - overflater gulv: Det er påvist at høydeforskjell fra topp slukrist til gulv/synlig topp membran ved 
dørterskel er mindre enn 25 mm. Det er påvist avvik i fallforhold til sluk i forhold til krav i forskrift på 
byggetidspunktet.
- Bad 2.etg - sluk, membran og tettesjikt: Mer enn halvparten av forventet brukstid er passert på 
membranløsningen og slukløsningen. 
- Bad 2.etg - sanitærutstyr og innredning: Det er ikke påvist tilfredsstillende løsning for å synliggjøre 
lekkasje fra innebygget sisterne. Det mangler lufteluker/inspeksjonsluke til innmurt badekar.
- Bad/vaskerom - overflater gulv: Det er målt svakt/begrenset fall i flislagt kant rundt helle (målt ved 
ytterkant). Det er stedvis motfall på øvrig gulv. Ujevnt flislagt/ufagmessige overganger. Fliser med stedvis 
bom krever oppfølging med jevnlig ettersyn.
- Bad/vaskerom - sluk, membran og tettesjikt: Sluk bak vaskemaskin er ikke inspisert pga. av tilgang 
(vaskemaskin og tørketrommel).
- Bad/vaskerom - sanitærutstyr og innredning: Det er ikke påvist tilfredsstillende løsning for å synliggjøre 
lekkasje fra innebygget sisterne.
- Bad u.etg - overflater vegger og himling: 2 sprukne veggfliser i dusjsonen. Uferdig (ufagmessig) 
omramning vegg ved dør.
- Bad u.etg - overflater gulv: Det er påvist at noen fliser har bom (hulrom under). Det er påvist avvik i 
fallforhold til sluk i forhold til krav i forskrift på byggetidspunktet.
- Bad u.etg - sanitærutstyr og innredning: Det er bruksmerker på innredning.
- Kjøkken 1.etg - overflater og innredning: Det er ikke påvist tegn på at det er montert lekkasjedeteksjon 
ved oppvaskmaskin/oppvaskkum, dette er et krav på kjøkkenet ut ifra alder.
- Kjøkken 1.etg - avtrekk: Det er krav til fastmontert komfyrvakt i alle nye boliger fra 2010 i henhold til NEK 
400. Denne skal monteres av elektroinstallatør.
- Avløpsrør: Mer enn halvparten av forventet brukstid er passert på innvendige avløpsledninger.
- Varmtvannstank: Det er påvist at varmtvannstank er over 20 år. 
- Elektrisk anlegg: Det foreligger ikke samsvarerklæring på arbeider utført etter 1.1.1999.
- Forstøtningsmurer: Mindre ujevnheter i stablestinsmur.
- Terrengforhold: Det er påvist dårlig fall eller flatt terreng inn mot grunnmur og dermed muligheter for 
større vannansamlinger.
- Utvendige vann- og avløpsledninger: Mer enn halvparten av forventet brukstid er passert. 
TG2 avvik som ikke krever umiddelbare tiltak:
- Etasjeskille/gulv mot grunn: Det e rmålt høydeforskjell på gulv i stue og på ett soverom i 1.etg og ett 
soverom i 2.etg. Tilstandsgrad 2 gis på bakgrunn av standardens krav til godkjente måleavvik.
Generell informasjon om boligen:
Utvendig:
Taktekkingen er av betongtakstein. Taket er besiktiget fra bakkenivå. Takrenner og nedløpsrør i stål. Noen 
lekkasjer i sammenføyningene kan lett fuges. Veggene har bindingsverkskonstruksjon fra byggeår. 
Fasade/kledning har stående bordkledning. Takkonstruksjonen har sperrekonstruksjon.
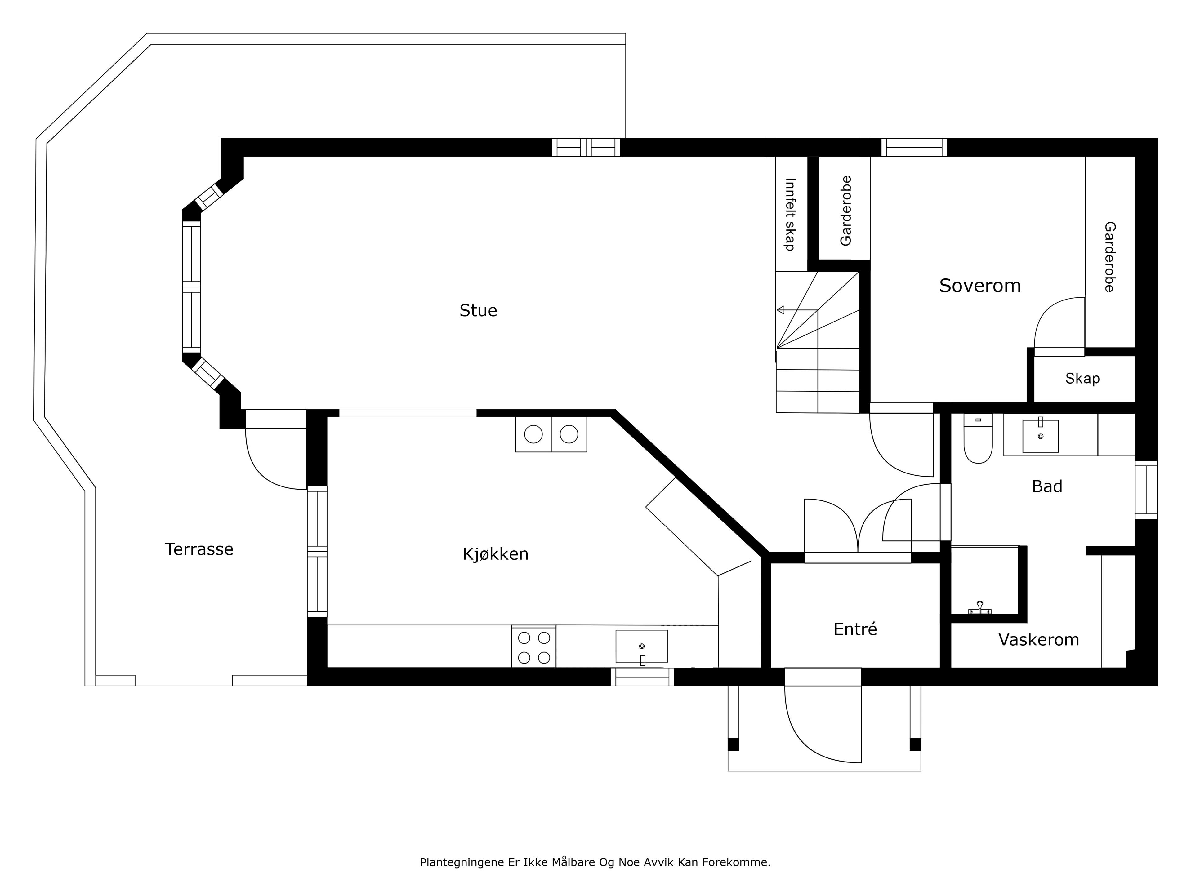
Bygningen har malte trevinduer med 2- og 3-lags glass. Malt hovedytterdør og malt balkongdør i tre.
Adkomstterrasse ved hovedinngang i treverk, størrelse ca. 15 m². Adkomstterrasse ved inngang til uetg. i 
treverk, størrelse ca. m². Utgang fra stue i 1  tg. til veranda i treverk, fundamentert på søyler og bygning. 
Størrelse ca. 35 m². Utgang fra et soverom i 2 etg. til balkong i treverk, fundamentert på søyler og bygning. 
Størrelse ca. 5 m².
Trapp i terreng med belegningsstein og varmekabler.
Utebelysning.
Utekran.
Innvendig:
Innvendig er det gulv av parkett, furu og fliser. Veggene har tapet, trepanel, malte flater og strie. Innvendige 
tak har malte flater, trepanel og
himlingsplater. Etasjeskiller er av trebjelkelag.
Lydhimling; lydbøyler 48x48 i himling uetg. Kilde byggebeskrivelse.
Det er foretatt radonmålinger og bygget er ikke utført med radonsperre.
Boligen har elementpipe og vedovn på kjøkken i 1 etg. Vedovn er ikke i bruk.
Boligen har malt tretrapp med teppe i trinn.
Innvendig har boligen malte glatte dører.
Garderobeskap.
Skyvedørsgarderober fra Acme med innredning.
Tekniske installasjoner: 
Innvendige vannledninger er av kobber og plast (rør i rør). Det er besiktiget i rørskap på bad i 2 etg. Det er 
avløpsrør av plast.
Boligen har balansert ventilasjon med separat aggregat for hver boenhet. Ventilasjon: tilluft i alle rom og 
avtrekk via badene.
2 stk. varmtvannsberedere er på ca. 200 liter hver.
Automatsikringer.
Pulverapparat og røykvarsler tilknyttet alarmselskap.
Nylig tilknyttet fiber fra Nokab.
Historikk (informasjon gitt av selger):
1992:
Fikk byggetillatelse.
Merk: De to soverommene i sokkelleiligheten var godkjente soverom på byggesøkingstidspunktet (5. juli 
1992). Dette er tydelig på alle
tegninger.
Graving/sprengning/grunnmur i desember 1992
1993:
Huset utvendig fullført + innvendig sokkel- og førsteetasje fullført.
Hovedetasje (førsteetasje av hoveddelen av boligen)
Hengende bjelkelag mellom sokkeletasjen og første etasje. Hører nesten ingen lyder fra sokkeletasjen 
og opp. 30 cm isolasjon i veggene
Varmegjenvinningsanlegg (ble byttet ut med et nytt senere)
Sentralstøvsuger. Har ikke vært i bruk siste 15 år. Uvisst om den fungerer.
Opprinnelig kun innredet sokkel- og førsteetasje
Opprinnelig innvendig bod innenfor soverommet
Opprinnelig større bad/vaskerom i ett.
Opprinnelig Intra-vask (i tillegg til vanlig servant).
Opplegget til intravasken (rørene) er fortsatt der, men den har ikke vært brukt siden 2005.
Varmekabler på badet og i gangen (vindfanget)
Frostet glass i vinduet på badet
Eikeparkett 14 mm i alle rom bortsett fra bad og gang
Fliser på bad og gang
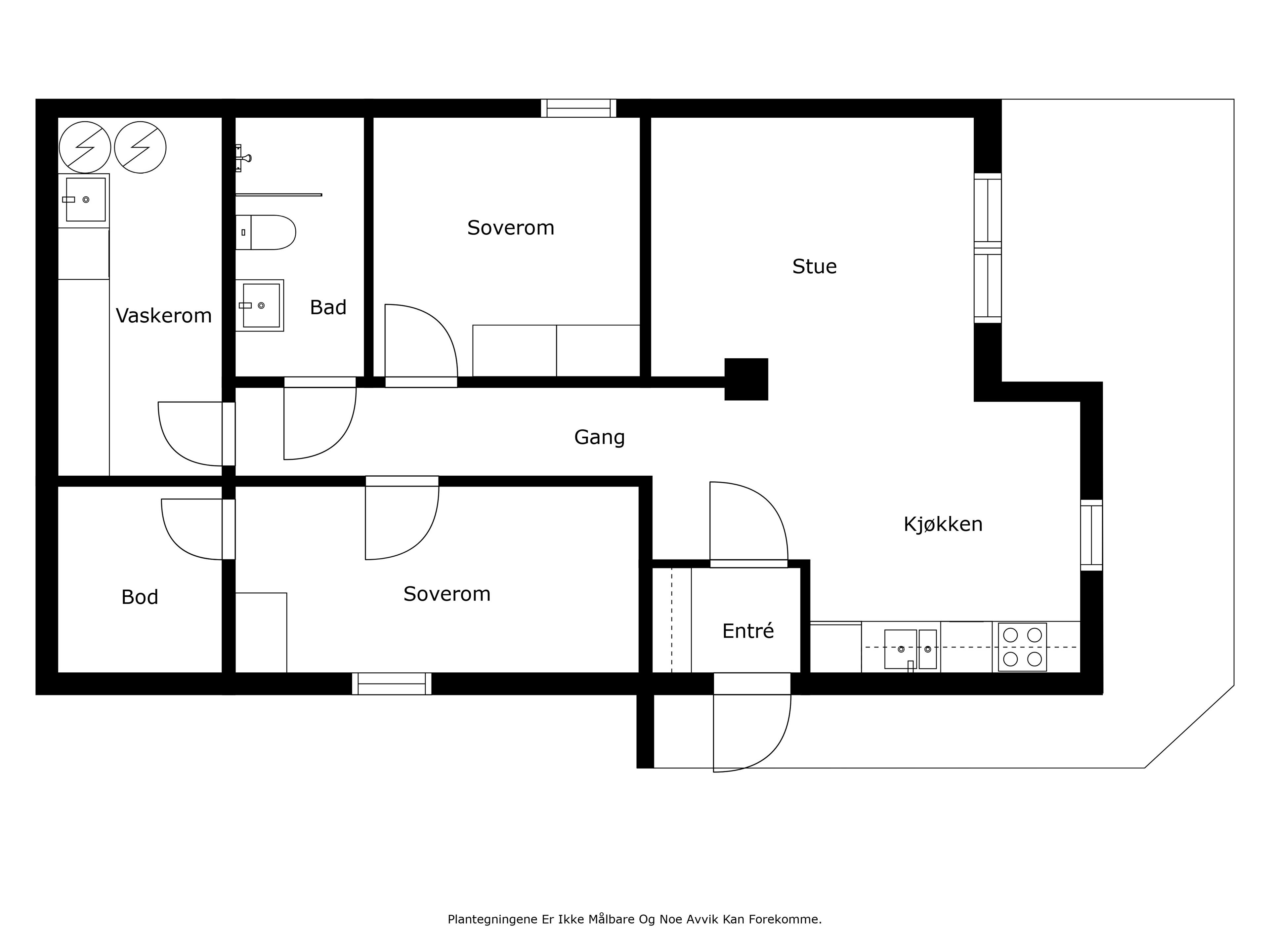
Sokkeletasje (utleieleilighet):
Egen strømmåler helt fra byggetidspunkt.
To stk soverom (godkjente soverom i 1992 på byggesøknadstidspunktet)
Åpen stue/kjøkken-løsning.
Ikke oppvaskmaskin opprinnelig (denne kom først i 2018)
Vindfang. Døra mellom vindfanget og resten av leiligheten har aldri vært montert. Den står løs i boden hvis 
noen ønsker å montere den.
Romslig bod.
Varmekabler i alle gulv bortsett fra boden.
Individuell styring av varmen i hvert rom.
Fliser på bad, vaskerom og i vindfang
7 mm eikeparkett i alle tørre rom (inkl bod).
Vaskerom med egen varmtvannsbereder
(Min varmtvannsbereder er også plassert på leieboers vaskerom) og intravask.
Bad med dusj og do
I cirka 1997 ble varmegjenvinningsanlegget som opprinnelig var i hovedetasjen, montert i sokkeletasjen.
Utekran til hageslange
Garasje og to stk utvendige boder fullført
Det var søkt om /levert fra Gullringshus CARPORT. Men min far (møbelsnekker) "lukket" carporten med 
hel vegg også på siden ut mot
Tinngruveveien vegger pluss garasjeport.
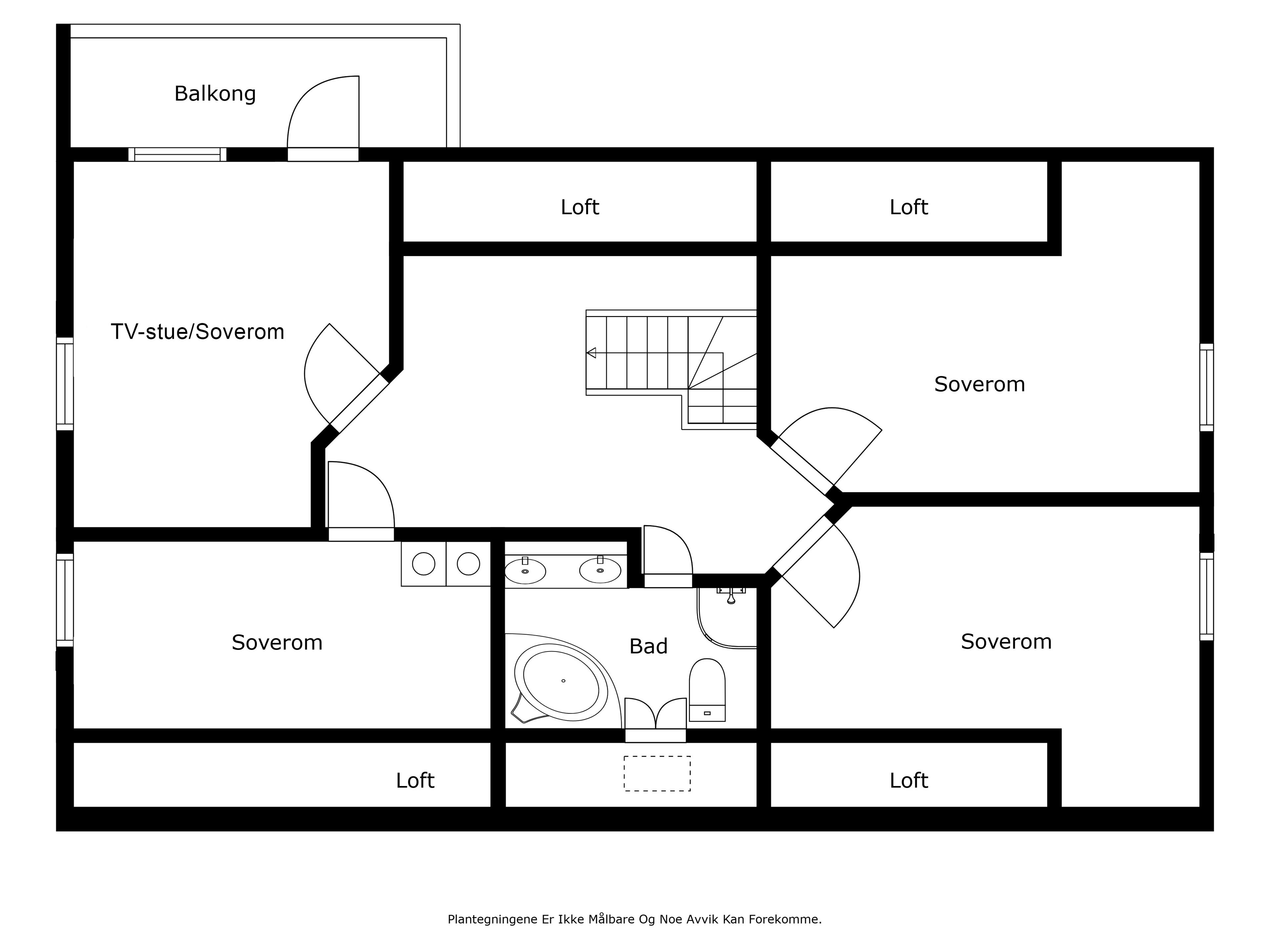
1997:
Trapp opp til 2. etasje (NB: IKKE der den opprinnelig var tegnet)
Veggen inn til boden i soverommet i 1. etasje ble revet til fordel for en stor skyvedørsgarderobe 
(ACME-dører) i det som da ble et noe større
soverom. Men ettersom trappen hadde "spist" tilsvarende kvadratmeter fra soverommet ble ikke 
størrelsen på soverommet større :-)
Panel i taket på soverom i 1. etasje og nye downlights
Tre soverom i andre etasje innredet (et av dem ble brukt som kontor)
Acme trådhyllesystem (garderober) med Acme skyvedører i tre soverom + i allrommet/oppholdsrommet i 
midten
Nytt varmegjenvinningsanlegg (det gamle ble flyttet ned til sokkeletasjen)
2000:
3 takvinduer i 2. etasje, nemlig ett på et soverom, ett i allrommet/oppholdsrommet og ett på det som 
skulle bli badet. Montert av fagperson
(bekjent).
Brannstiger på begge sider av huset montert
Markise utenfor kjøkkenet
Ark bygget (av to snekkerbrødre fra Rotnes) på det fjerde soverommet
Merk: Jeg har tidligere trodd at arken ble bygd i 1997, men da datteren min ble født i 1999, hadde vi 
foreldresoverom i 1. etasje).
Vi startet ikke å bruke foreldresoverommet i 2. etasje før arken var på plass.
Balkong utenfor rommet med arken
Terrasse hovedetasje betraktelig utvidet mot vest. 
2001:
Brannsikker safe i det ene soverommet (den gang kontoret) i 2. etasje
2003:
Mai/juni: Badet i 2. etasje fullført
Marmor
Ekstra dypt boblebadekar: Danline Deep Hawaii 1400 - Dybde 51 cm
Hengedo
Dusjvegger som kan slås inn
Norema baderomsinnredning
Mange oppbevaringsskap i kneveggen. (Varmgjenvinningsanleggstyringen er også i kneveggen)
2005 Januar:
Badet og vaskerommet nede renovert (ytterligere renovert i 2017 og 2024)
Varmekabler i gulvet
Lys i ankelhøyde i dusjen
Downlights som slår seg på automatisk når du går inn i rommet
Skyvedør med frostet glass inn til vaskerommet
Vaskesøyle med vaskemaskin / tørketrommel
Svart kul vask
Dansani baderomsinnredning
(Avlastningsbenken på vaskerommet montert senere)
2008:
Trappen ute - opp til 1. etasje ble murt
Varmekabler i den utvendige trappen.
2013:
Kjøkken / stue 1. etasje totalrenovert
Nytt sikringsskap
Sparkling / maling av alle veggflater, trappen og den plassbygde bokhylla, utført av profesjonell maler
Nye downlights med led-lys i takene
Alle vinduer i 1. etasje har tilpassede plisségardiner i samme farge som veggene
Ett av vinduene har plisségardin som kan trekkes opp eller ned både utenifra og ovenfra.
Ny moderne kjøkkeninnredning
Miele vifte
Bosch 90 cm bred nedfelt koketopp
2 stk Miele stekeovner hvorav en kombi-ovn (kombi micro/stekovn)
Quooker kokende vann-kran i tillegg til den vanlige kranen
Fisher & Paykel stort Kostbart kjøl/frys (Pris jakt gir en pris i dag på 65000 (!) (jeg betalte adskillig mindre 
altså, selv om det var dyrt også i
2013! Leter etter kvittering) Kjøl/frysen har doble franske dører i kjøleskap enheten og fryserenhet under, 
der isbitene lages. Kaldt vann i døra
på kjøleskapet
Høyskap med skuffer hele veien
Et annet høyskap med plass til strykebrett etc
(Topphengslet) overskap kun over kjøleskapet
Kjøkkenbenk i hvit stein (ekte stein fra Grorud Granitt)
Plassbygd kjøkkensittekrok med oppbevaringsmuligheter under.
2015:
Asfalt på gårdsplassen
Ny garasjeport fra Fasadeprodukter (kostet 17000 i 2015)
Jeg har rotet bort fjernkontrollen men kanskje mulig å kjøpe ny? Jeg kontakter Fasadeprodukter.
2016:
Malte vegger/tak og lister i det ene soverommet i 2. etasje
Ny innredning (veggskap og sminkeskap)
2017:
Avlastningsbenk på vaskerommet i 1. etasje montert
2018:
Nye dobbeltdører med glass fra vindfanget og inn i 1. etasje
Den ene av dørene byttet vi glass i i november 2024. Fikk da herdet glass på den.
2018:
Sokkeletasjen renovert (Høst 2018)
Helt nytt kjøkken
Oppvaskmaskin montert
Nye hvitevarer (bortsett fra gammel fryser)
Ny ganske stor garderobe på det ene soverommet
Helt nytt bad med ny innredning og nye fliser (de gamle ble pigget opp).
Toalettet også nytt, men valgte bevisst IKKE hengedo nede.
Alle rommene malt i lys farge.
2019:
Malte det ene soverommet i 2. etasje i fargen Wisdom (mørk plommefarge - moderne)
2024:
Renovert / byttet ut gulvet i dusjen 1. etasje (november 2024)
Før: Elvestein. Nå: Små fliser i samme farge som gulvet på badet.
Fjernet gammelt gulvbelegg. Lagt to lag smøremembran før legging av nye fliser
Nye kraner på alle våtrom i sokkeletasjen (bortsett fra dusjarmaturet) (desember 2024)
Kjøkkenkran
Utekran
Baderomskran
Vaskeromskran
Ny kran på badet i 1. etasje (desember 2024)
2024/2025:
Lagt nytt gulv og malt vegger i stue/kjøkken, gang og ett soverom i utleieleiligheten.
Malt eller byttet ut alle dører i 2. etasje inkl. nye lås og beslag.
Malt alle veggflater på det ene soverommet i 2. etasje
Malt alle veggflater på lofts stua i 2. etasje
Malt alle veggflater i allrommet/oppholdsrommet der trappen kommer opp, i 2. etasje
Pusset og lakket alle terskler
Pusset og lakket overflaten på servantskap benken på badet i 2. etasje
Generelt: Sparklet/malt vegger med bruksmerker
Lokal komplettering av belistning
2025:
Oppussing utleiedel - herunder lagt nytt gulv i stue/kjøkken, innegang og ett soverom. Lagt nye fliser i 
yttergangen (oppå de gamle). Pusset opp med overflatebehandling i stue/kjøkken, innegang, ett soverom 
og yttergang. 
Lagt rør fra taknedløp på både vest - og østsiden av huset for å lede takvann vekk fra huset
Lagt et tynt lag med hagesingel oppå fiberduk på verandaen foran sokkeletasjens stue / kjøkkendel.  
Se vedlagt tilstandsrapport avholdt , hvor ovennevnte opplysninger er hentet fra, for 
nærmere teknisk beskrivelse av eiendommen.