4881135_1a
Proaktiv v/Ola Skarra Arnesen presenterer en flott toppleilighet i Grønland 39A med gode kvaliteter. ( 1 av )
4881131_1a
Her får du blant annet en privat takterrasse på ca. 36 kvm med sol og byutsikt. ( 2 av )
4881134_1a
Terrassen strekker seg rundt to sider av bygget med plass til flere soner. ( 3 av )
4879508_1a
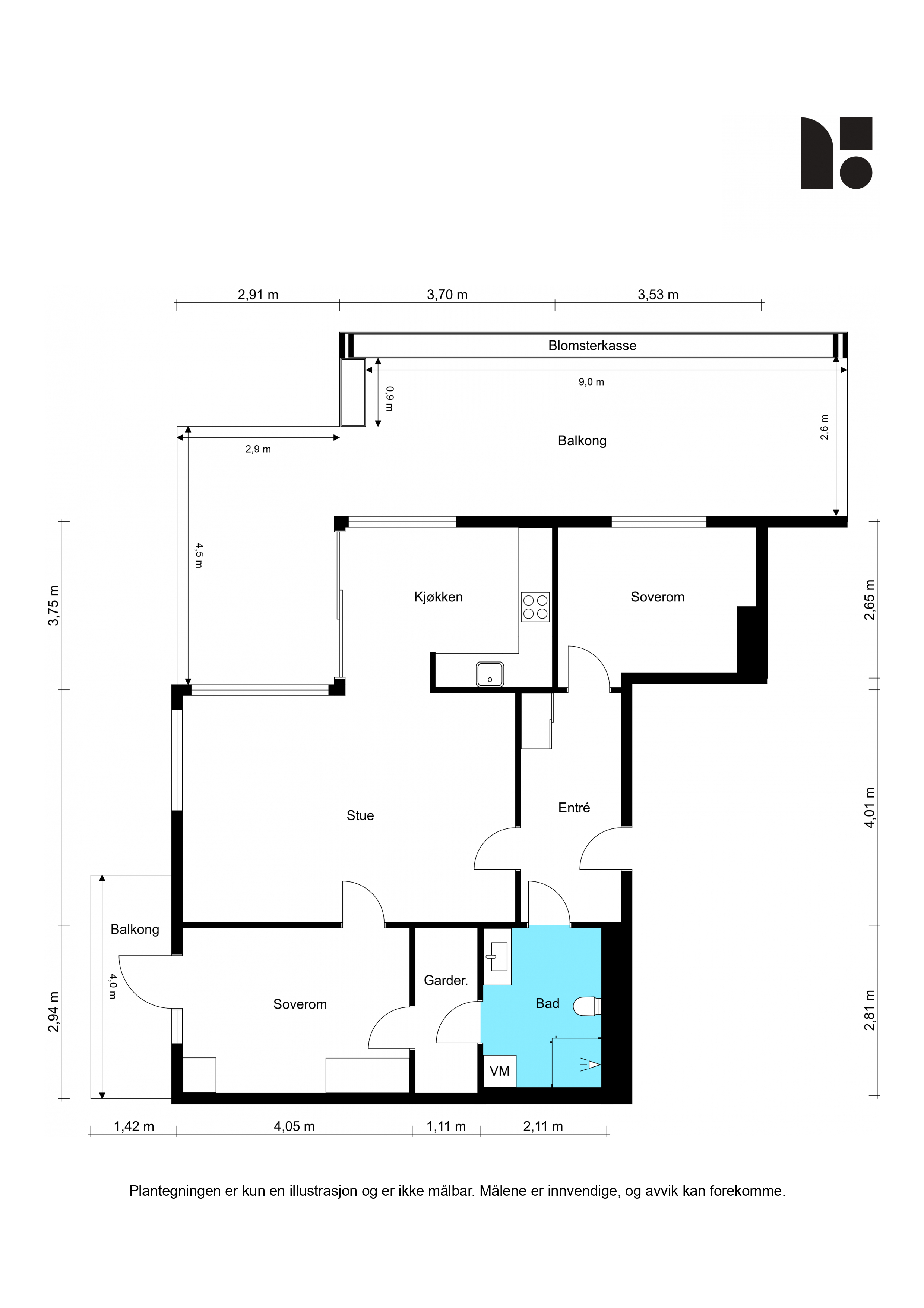
Plantegning. ( 4 av )
4881127_1a
Inne er det lyst, delikat og romslig. ( 5 av )
4881128_1a
Stuen har en lettmøblert utforming med plass til både sofasone og et spisebord. ( 6 av )
4881132_1a
( 7 av )
4881126_1a
Overflatene er holdt i lyse, nøytrale farger med parkett på gulvet, hvitmalte vegger og store vinduer som slipper inn rikelig med lys. ( 8 av )
4881133_1a
( 9 av )
4881130_1a
Lekker gasspeis i stuen. ( 10 av )
4881117_1a
Kjøkkenet ligger i et eget rom med adkomst fra stuen. ( 11 av )
4881118_1a
Kjøkkenet sklir sømløst inn i helheten med en hvit, profilert innredning fra Drømmekjøkkenet. ( 12 av )
4881113_1a
Et lyst og luftig kjøkken med store vinduer og dør ut til takterrassen. ( 13 av )
4881116_1a
Integrert ovn, platetopp, kjøleskap med fryser og opplegg for oppvaskmaskin. ( 14 av )
4881129_1a
( 15 av )
4881136_1a
Ut fra kjøkkenet ligger en flott takterrasse på hele 36 kvm. med svært gode sol- og utsiktsforhold. ( 16 av )
4881139_1a
( 17 av )
4881137_1a
Høyt og luftig på toppen! ( 18 av )
4881097_1a
( 19 av )
4881098_1a
( 20 av )
4881119_1a
Badet har adkomst både fra gangen og i fra hovedsoverommet. ( 21 av )
4881122_1a
Opplegg for vaskemaskin på badet. ( 22 av )
4881123_1a
( 23 av )
4881107_1a
Hovedsoverom med praktisk garderobeløsning som utnytter arealet godt. ( 24 av )
4881109_1a
Hovedsoverommet har garderoberom med videre adkomst inn til badet. Fra hovedsoverommet er det også dør ut til en privat balkong. ( 25 av )
4881108_1a
Garderoberom mellom soverommet og badet. ( 26 av )
4881100_1a
Balkong på ca. 5,5 kvm utenfor hovedsoverommet. ( 27 av )
4881096_1a
( 28 av )
4881105_1a
Soverom 2. ( 29 av )
4881104_1a
Soverom 2. ( 30 av )
4881124_1a
Entré med integrert skyvedørsgarderobe. ( 31 av )
4881125_1a
( 32 av )
4881138_1a
Med pluss-konseptet får du tilgang til bl.a. gjesterom, selskapslokale med kjøkken, trimrom, lounge-område med kaffe og aviser samt bemannet resepsjon. ( 33 av )
4881106_1a
( 34 av )
4881528_1a
( 35 av )
4881529_1a
( 36 av )
4881531_1a
( 37 av )
4881533_1a
( 38 av )
4881534_1a
( 39 av )

Grønland 39A

Se alle bilder (0)
4881135_1a
4881131_1a
4881134_1a
4879508_1a
4881127_1a
4881128_1a
4881132_1a
4881126_1a
4881133_1a
4881130_1a
4881117_1a
4881118_1a
4881113_1a
4881116_1a
4881129_1a
4881136_1a
4881139_1a
4881137_1a
4881097_1a
4881098_1a
4881119_1a
4881122_1a
4881123_1a
4881107_1a
4881109_1a
4881108_1a
4881100_1a
4881096_1a
4881105_1a
4881104_1a
4881124_1a
4881125_1a
4881138_1a
4881106_1a
4881528_1a
4881529_1a
4881531_1a
4881533_1a
4881534_1a

Grønland 39A

Prisantydning:
Fra Kr 8100000,00
til Kr 0,00
Totalpris:
Kr 8316750,00
BRA:
79,00 - 0,00
BRA-i:
74 - 0
Soverom:
2 - 0
Boligtype:
Leilighet
Eierform:
Eiet tomt
Byggeår:
2009
Etasje:
7
Tomteareal:
5657

Velkommen til toppen - stor og lys 3-roms selveier med heis, garasjeplass og takterrasse med panorama. Pluss-konsept!

Ansvarlig megler:
Ola Skarra Arnesen

Salgsleder / Partner / Eiendomsmegler

Visning

02.12.2025 17:00 - 17:45

Legg visning til i kalender 02.12.2025 17:00 02.12.2025 17:45 Central European Time Visning av Grønland 39A Boligvisning av Grønland 39A Grønland 39A

Passer ikke visningstidspunktene?

Visningspåmelding
Avtal privatvisning her

Grønland 39A

image005

Nøkkelinformasjon

plus_G_2025

BELIGGENHET

plus_G
minus_G

BESKRIVELSE AV EIENDOMMEN

plus_G
minus_G

OFFENTLIGE FORHOLD

plus_G
minus_G

PRISANTYDNING INKLUDERT OMKOSTNINGER

plus_G
minus_G

SAMEIET/ØKONOMI

plus_G
minus_G

ØVRIGE KJØPSFORHOLD

plus_G
minus_G

Dokumenter

plus_G_2025

Del boligen

facebook-gold
Twitter-gold

Lurer du på noe om denne boligen?

Ta kontakt under via skjemaet.


Relaterte boliger

Amtmand Bangs gate 5
4700000,00  0,00

Amtmand Bangs gate 5

Drammen ­ DRAMMEN
Delikat 3-roms selveier i klassisk og historisk nabolag. Carport med lader. Solrikt fellesareal med hage og terrasse.

Totalpris:

Kr 4831750,00

BRA-i:

76 m²
Strømsø torg 5D
1850000,00  0,00

Strømsø torg 5D

Drammen ­ DRAMMEN
Supersentral 2-roms endeleilighet midt i byen! Rett ved tog, buss og alle servicetilbud. God takhøyde. Fjernvarme inkl.

Totalpris:

Kr 2169902,00

BRA-i:

44 m²
Tangenveien 35
5840000,00  0,00

Tangenveien 35

Drammen ­ SVELVIK
Flott beliggende enebolig på 250 kvm i rolig nabolag. Garasje, carport og fine utearealer. Kjøkken og bad fra 2020/2021.

Totalpris:

Kr 6005250,00

BRA-i:

250 m²
Skippergata 32N
3000000,00  0,00

Skippergata 32N

Drammen ­ DRAMMEN
Hyggelig enebolig over to plan med fjordutsikt, hage og fine utearealer. Garasjeplass. Nye vinduer fra 2022. Oppussing.

Totalpris:

Kr 3413114,00

BRA-i:

75 m²
Bulows vei 10
4950000,00  0,00

Bulows vei 10

Drammen ­ DRAMMEN
Flott beliggende generasjonsbolig med oppussingsbehov. Trippelgarasje. Nydelig utsikt. Rolig blindvei ved skogen.

Totalpris:

Kr 5093000,00

BRA-i:

158 m²
Bragernes Torg 12
3890000,00  0,00

Bragernes Torg 12

Drammen ­ DRAMMEN
Supersentral selveierleilighet på 63 m² på Bragernes Torg. Heis og vestvendt fransk balkong. Fjernvarme inkl. 3 boder.

Totalpris:

Kr 4001500,00

BRA-i:

63 m²
Brenmehls gate 12
4750000,00  0,00

Brenmehls gate 12

Drammen ­ SVELVIK
Frittliggende, oppusset enebolig på 182m² med dobbelgarasje, solrike uteplasser og lettstelt hage. Nytt kjøkken fra 2025

Totalpris:

Kr 4888000,00

BRA-i:

182 m²
Hagatjernveien 8D
3790000,00  0,00

Hagatjernveien 8D

Drammen ­ MJØNDALEN
Nyere 3-roms selveierleilighet fra 2020 vendt mot Consto Arena | Garasje m/lader, heis og vestvendt terrasse | Sentralt!

Totalpris:

Kr 3899000,00

BRA-i:

50 m²
Wærners gate 11Q
4100000,00  0,00

Wærners gate 11Q

Drammen ­ DRAMMEN
Flott rekkehus i sentralt & barnevennlig område | 3 soverom | 2 bad & nyere kjøkken | P-plasser | Gangavstand til skole

Totalpris:

Kr 4344010,00

BRA-i:

147 m²
Oscar Kiærs vei 24
5590000,00  0,00

Oscar Kiærs vei 24

Drammen ­ DRAMMEN
Enebolig over tre plan (200m²) med flott fjordutsikt, stor terrasse og integrert garasje. Kjøkken fra 2015. To innganger

Totalpris:

Kr 5749000,00

BRA-i:

200 m²
Se flere boliger
Bolig til salgs

Inspirasjon

Inspirerende interiørbilder fra norske hjem.
sov1
Soverom
kjo1
Kjøkken
stue
Stue

Boligartikler

Nyttig informasjon, råd og inspirasjon for deg som er opptatt av bolig.
aaletidligute
Aktuelt

Kapret først drømmeboligen, solgte egen bolig få dager senere

Konseptet vårt, Tidlig ute, legger til rette for et stressfritt boligsalg på kundens premisser. Poenget er å være ute i god tid, slik at prosessen...
vo4
Aktuelt

178 dager uten bud; - Proaktiv solgte boligen min etter første visning

Huset i Vestre Olsvikveg hadde mistet alt av moment etter et halvt år ute i markedet. Da Proaktiv ved Jon Kristian Røsok kom inn i bildet ble...
n_r-16
Aktuelt

Drømmer du om å drive ditt eget meglerkontor?

Proaktiv Eiendomsmegling er alltid på utkikk etter flinke folk som ønsker å skape sin egen suksess. Er du en målrettet og verdiskapende megler, med...