4887259_1a
Proaktiv v/ Markus Alm Thoen ønsker velkommen til Øvre Torggate 12! ( 1 av )
4887256_1a
Supersentralt beliggende 2-roms med innglasset balkong vendt mot solrike sydvest. ( 2 av )
4887255_1a
Balkongen er på ca 11 kvm med skybare glassfelt. ( 3 av )
4887258_1a
Ingen innsyn inn til leiligheten og balkongen. ( 4 av )
4887257_1a
Detalj. ( 5 av )
4886607_1a
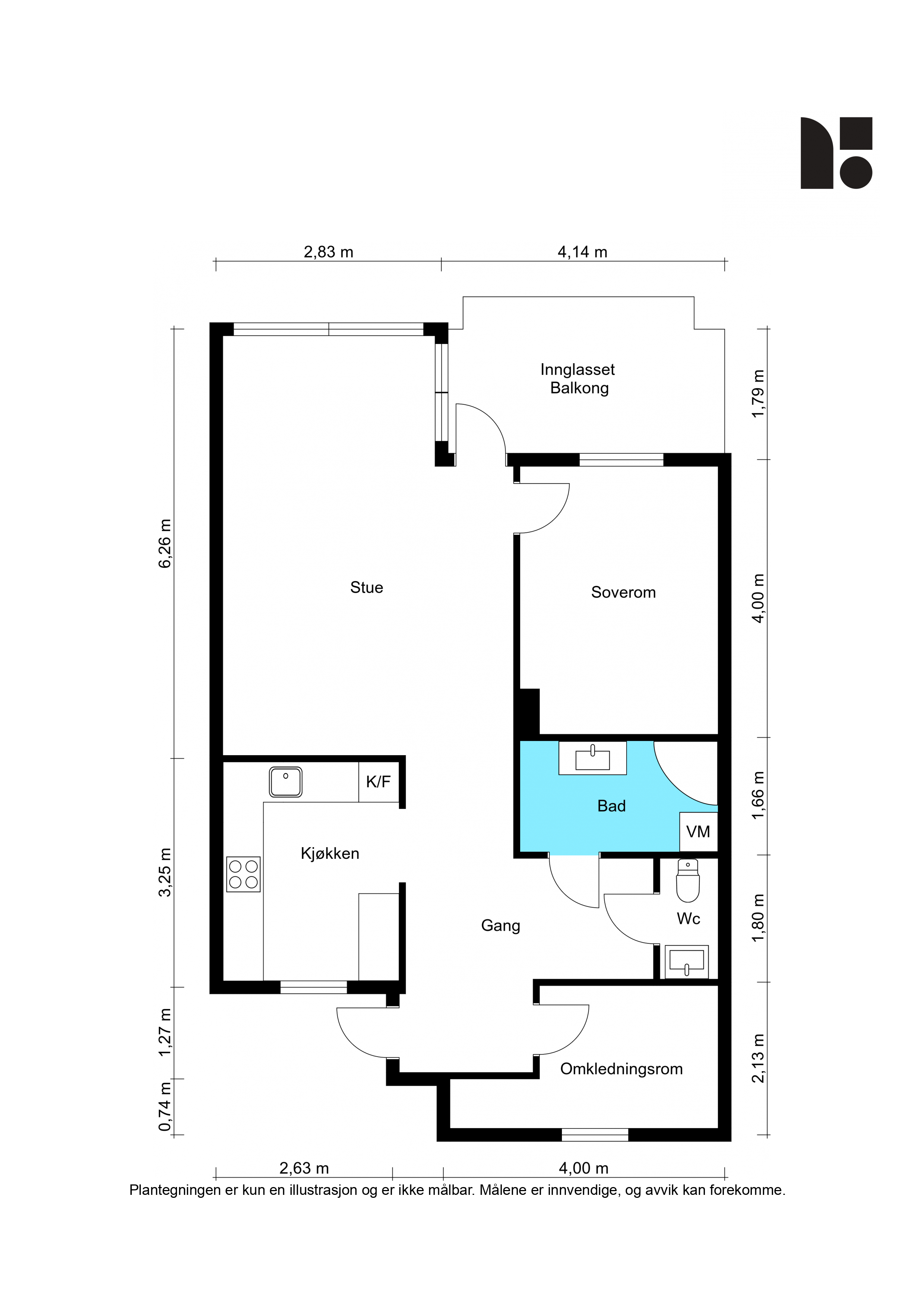
Plantegning 3. etasje. ( 6 av )
4887260_1a
Lys og romslig leilighet med moderne fargevalg. ( 7 av )
4887263_1a
Flott stue i lune, nøytrale farger og enstavs parkett på gulv. ( 8 av )
4887261_1a
Detalj. ( 9 av )
4887264_1a
Plass til spiserbord og sofakrok i egne soner. ( 10 av )
4887262_1a
Rikelig med plass til sofakrok. ( 11 av )
4887265_1a
Spisestue i enden av stuen med videre adkomst til balkongen. ( 12 av )
4887266_1a
Parkett på gulv og malte overflater. ( 13 av )
4887272_1a
Kjøkkenet ligger i et eget rom med adkomst fra gangen. Komplett utstyrt med integrerte hvitevarer. ( 14 av )
4887273_1a
Moderne, glatt innredning med takhøye skap. ( 15 av )
4887268_1a
Lunt og romslig soverom med god plass til dobbeltseng. ( 16 av )
4887267_1a
God plass til eventuelt garderobeskap. ( 17 av )
4887269_1a
Detalj. ( 18 av )
4887270_1a
Detalj. ( 19 av )
4887277_1a
Praktisk bod ved entrè. ( 20 av )
4887274_1a
Pent, flislagt baderom med varmekabler i gulvet og downlightsbelysning i taket. Opplegg for vask/tørk. ( 21 av )
4887275_1a
Detalj. ( 22 av )
4887276_1a
Separat toalettrom. ( 23 av )
4887271_1a
Gang. ( 24 av )
4887278_1a
Fast garasjeplass i felles garasjeanlegg. Mulighet for å etablere el.bil-lader. ( 25 av )
4887279_1a
God intern beliggenhet i bygget - på enden og helt på toppen i 3. etasje. ( 26 av )
4887280_1a
Hyggelig fellesområde i borettslaget med steinbelagt uteplass med sittegruppe, grill og diverse beplantning. ( 27 av )

Øvre Torggate 12

Se alle bilder (0)
4887259_1a
4887256_1a
4887255_1a
4887258_1a
4887257_1a
4886607_1a
4887260_1a
4887263_1a
4887261_1a
4887264_1a
4887262_1a
4887265_1a
4887266_1a
4887272_1a
4887273_1a
4887268_1a
4887267_1a
4887269_1a
4887270_1a
4887277_1a
4887274_1a
4887275_1a
4887276_1a
4887271_1a
4887278_1a
4887279_1a
4887280_1a

Øvre Torggate 12

Prisantydning:
Fra Kr 3700000,00
til Kr 0,00
Totalpris:
Kr 3908875,00
BRA:
85,00 - 0,00
BRA-i:
69 - 0
Soverom:
1 - 0
Boligtype:
Leilighet
Eierform:
Eiet tomt
Byggeår:
1987
Etasje:
3
Tomteareal:
2131

Stor og moderne 2-roms topp- og endeleilighet med innglasset balkong og fast garasjeplass. Sentralt på Bragernes!

Ansvarlig megler:
Markus Alm Thoen

Eiendomsmegler

Visning

15.01.2026 17:00 - 17:45

Legg visning til i kalender 15.01.2026 17:00 15.01.2026 17:45 Central European Time Visning av Øvre Torggate 12 Boligvisning av Øvre Torggate 12 Øvre Torggate 12

Passer ikke visningstidspunktene?

Visningspåmelding
Avtal privatvisning her

Øvre Torggate 12

image005

Nøkkelinformasjon

plus_G_2025

BELIGGENHET

plus_G
minus_G

BESKRIVELSE AV EIENDOMMEN

plus_G
minus_G

BORETTSLAGET/ØKONOMI

plus_G
minus_G

OFFENTLIGE FORHOLD

plus_G
minus_G

PRISANTYDNING INKLUDERT OMKOSTNINGER

plus_G
minus_G

ØVRIGE KJØPSFORHOLD

plus_G
minus_G

Dokumenter

plus_G_2025

Del boligen

facebook-gold
Twitter-gold

Lurer du på noe om denne boligen?

Ta kontakt under via skjemaet.


Relaterte boliger

Tollbugata 29B
1500000,00  0,00

Tollbugata 29B

Drammen ­ DRAMMEN
Lettstelt og sentralt beliggende leilighet med nytt bad fra 2025. Felles terrasse. 3 minutter til toget!

Totalpris:

Kr 2058591,00

BRA-i:

29 m²
Tomtegata 12A
3700000,00  0,00

Tomtegata 12A

Drammen ­ DRAMMEN
Supersentral og innbydende 2 roms - rett ved Bragernes strand. Fransk balkong & garasjeplass m/lader. Fjernvarme inkl.

Totalpris:

Kr 3806750,00

BRA-i:

47 m²
Grubegata 26J
5950000,00  0,00

Grubegata 26J

Drammen ­ DRAMMEN
Delikat halvpart tomannsbolig over to plan. Garasje, hage, store uteplasser og flott utsikt. To bad + wc og vaskerom.

Totalpris:

Kr 6113000,00

BRA-i:

139 m²
Amtmand Bangs gate 5
4700000,00  0,00

Amtmand Bangs gate 5

Drammen ­ DRAMMEN
Delikat 3-roms selveier i klassisk og historisk nabolag. Carport med lader. Solrikt fellesareal med hage og terrasse.

Totalpris:

Kr 4831750,00

BRA-i:

76 m²
Tangenveien 35
5550000,00  0,00

Tangenveien 35

Drammen ­ SVELVIK
Flott beliggende enebolig på 250 kvm i rolig nabolag. Garasje, carport og fine utearealer. Kjøkken og bad fra 2020/2021.

Totalpris:

Kr 5708000,00

BRA-i:

250 m²
Bulows vei 10
4950000,00  0,00

Bulows vei 10

Drammen ­ DRAMMEN
Flott beliggende generasjonsbolig med oppussingsbehov. Trippelgarasje. Nydelig utsikt. Rolig blindvei ved skogen.

Totalpris:

Kr 5093000,00

BRA-i:

158 m²
Bragernes Torg 12
3890000,00  0,00

Bragernes Torg 12

Drammen ­ DRAMMEN
Supersentral selveierleilighet på 63 m² på Bragernes Torg. Heis og vestvendt fransk balkong. Fjernvarme inkl. 3 boder.

Totalpris:

Kr 4001500,00

BRA-i:

63 m²
Hagatjernveien 8D
3790000,00  0,00

Hagatjernveien 8D

Drammen ­ MJØNDALEN
Nyere 3-roms selveierleilighet fra 2020 vendt mot Consto Arena | Garasje m/lader, heis og vestvendt terrasse | Sentralt!

Totalpris:

Kr 3899000,00

BRA-i:

50 m²
Wærners gate 11Q
4100000,00  0,00

Wærners gate 11Q

Drammen ­ DRAMMEN
Flott rekkehus i sentralt & barnevennlig område | 3 soverom | 2 bad | Pent kjøkken | P-plasser | Gangavstand til skole

Totalpris:

Kr 4344010,00

BRA-i:

147 m²
Oscar Kiærs vei 24
5350000,00  0,00

Oscar Kiærs vei 24

Drammen ­ DRAMMEN
Enebolig over tre plan (200m²) med flott fjordutsikt, stor terrasse og integrert garasje. Kjøkken fra 2015. To innganger

Totalpris:

Kr 5503000,00

BRA-i:

200 m²
Se flere boliger
Bolig til salgs

Inspirasjon

Inspirerende interiørbilder fra norske hjem.
sov1
Soverom
kjo1
Kjøkken
stue
Stue

Boligartikler

Nyttig informasjon, råd og inspirasjon for deg som er opptatt av bolig.
aaletidligute
Aktuelt

Kapret først drømmeboligen, solgte egen bolig få dager senere

Konseptet vårt, Tidlig ute, legger til rette for et stressfritt boligsalg på kundens premisser. Poenget er å være ute i god tid, slik at prosessen...
vo4
Aktuelt

178 dager uten bud; - Proaktiv solgte boligen min etter første visning

Huset i Vestre Olsvikveg hadde mistet alt av moment etter et halvt år ute i markedet. Da Proaktiv ved Jon Kristian Røsok kom inn i bildet ble...
n_r-16
Aktuelt

Drømmer du om å drive ditt eget meglerkontor?

Proaktiv Eiendomsmegling er alltid på utkikk etter flinke folk som ønsker å skape sin egen suksess. Er du en målrettet og verdiskapende megler, med...