4878148_1a
Stephan Erichsen v/Proaktiv Eiendomsmegling Sola har gleden av å presentere Kvitlyngvegen 5 for salg. ( 1 av )
4878117_1a
Her bor du naturlig tilbaketrukket, skjermet fra trafikk og støy, samtidig som du befinner deg i nærheten av det meste du skulle trenge for å trives i lang tid. ( 2 av )
4878090_1a
Kvitlyngvegen 5 er en lekker enebolig beliggende i et rolig og etablert boligområde på Hålandsmarka. ( 3 av )
4878149_1a
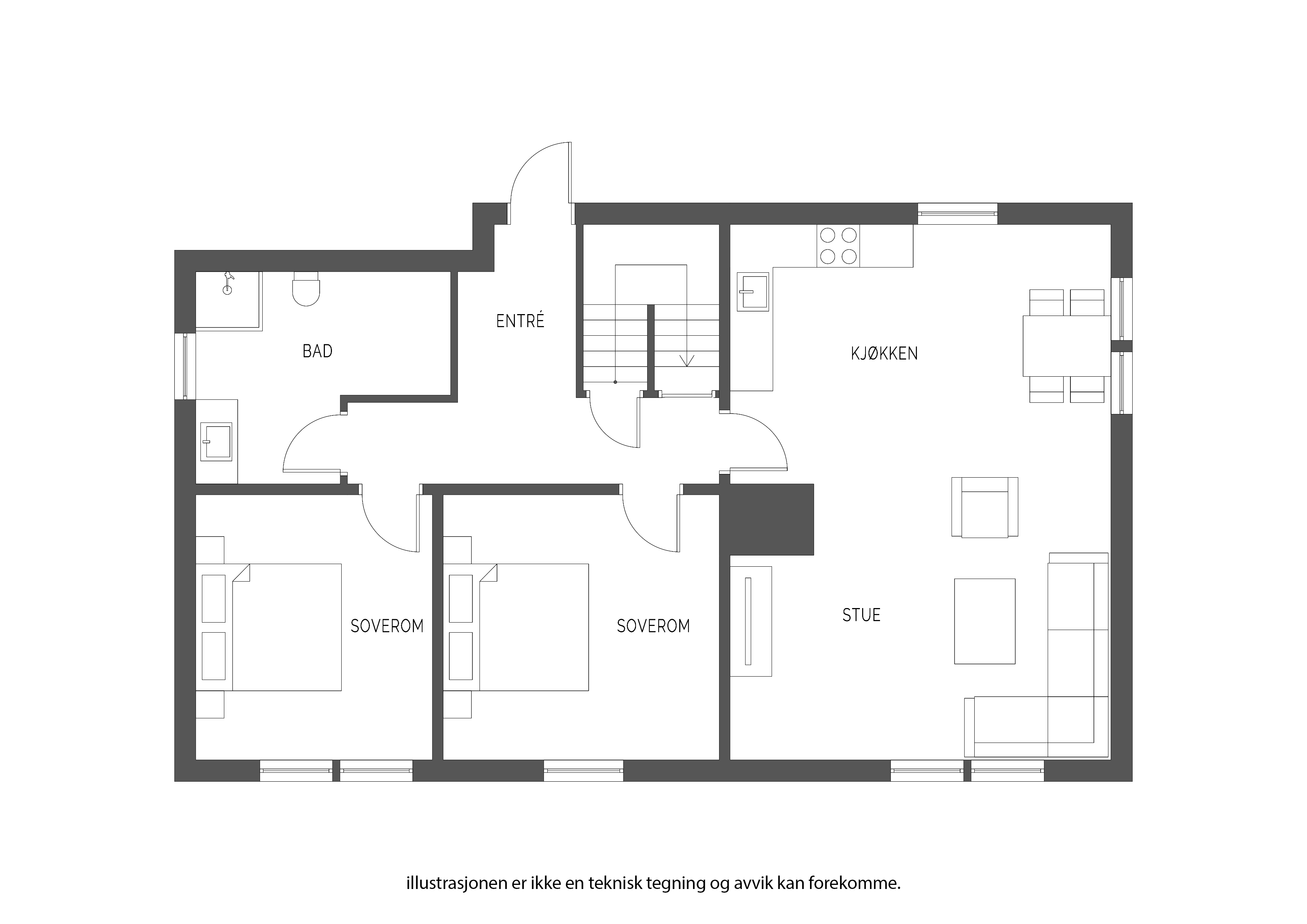
Plantegning 1. etg. ( 4 av )
4878132_1a
Et godt førsteinntrykk med en romslig og innbydende entré med god plass til å henge fra seg yttertøy. Eikespiler på vegg og pent enstavs laminatgulv i eik. ( 5 av )
4878129_1a
Stue og kjøkken ligger i en åpen og sosial løsning. ( 6 av )
4878114_1a
Den praktiske inndelingen skaper en naturlig flyt mellom sonene og gjør allrommet til et naturlig samlingspunkt for hele familien. ( 7 av )
4878118_1a
Stuen er romslig med god plass til flere oppholdssoner. ( 8 av )
4878115_1a
Lun tv-krok med nok av plass til stor sittegruppe og tv-seksjon. ( 9 av )
4878116_1a
Spotter i tak og listefri utførelse mot himling. ( 10 av )
4878119_1a
God takhøyde bidrar til å skape en luftig romfølelse kombinert med de store vindusflatene som slipper inn rikelig med naturlig lys. ( 11 av )
4878120_1a
Planløsningen egner seg perfekt for sosiale sammenkomster. ( 12 av )
4878144_1a
Fra allrom kommer man ut til pent opparbeidet uteområde med gode solforhold. Fra terrasse har man tilgang til praktisk sportsbod bak carport. ( 13 av )
4878133_1a
Her er det god plass til flere oppholdssoner. ( 14 av )
4878146_1a
Med god plass til både sittegruppe og grill ligger alt til rette for å kunne nyte lange, solrike dager og hyggelige sommerkvelder i godt selskap. ( 15 av )
4878147_1a
Tilkomst til hage fra terrasse gjør det enkelt å kunne flytte seg etter vær og vind. ( 16 av )
4878121_1a
God plass til spisebord av ønsket størrelse mellom stue og kjøkken. ( 17 av )
4878123_1a
( 18 av )
4878124_1a
Sosialt og lekkert kjøkken av god størrelse. ( 19 av )
4878109_1a
Lyse, slette fronter og rikelig med skap- og benkplass. ( 20 av )
4878126_1a
Kjøkken har varmepumpe, belegg på gulv og flotte detaljer med fliser over kjøkkenbenk. ( 21 av )
4878127_1a
Hvitevarer som stekeovn og platetopp medfølger handelen, mens frittstående kjøleskap og oppvaskmaskin medfølger som hovedregel ikke. ( 22 av )
4878128_1a
Den åpne planløsningen gjør det enkelt å kunne underholde middagsgjestene under matlagingen. ( 23 av )
4878125_1a
( 24 av )
4878135_1a
Praktisk vaskerom med bi-inngang som er alle småbarnsfamiliers drøm, oppgradert med flis i 2025. God plass til sko og yttertøy. Opplegg for vaskemaskin og tørketrommel. Varmekabler i gulv. ( 25 av )
4878134_1a
Praktisk gjestetoalett med moderne innredning i gang. ( 26 av )
4878100_1a
Gode parkeringsmuligheter i carport og pent steinbelagt gårdsrom med elbillader. ( 27 av )
4878111_1a
( 28 av )
4878122_1a
( 29 av )
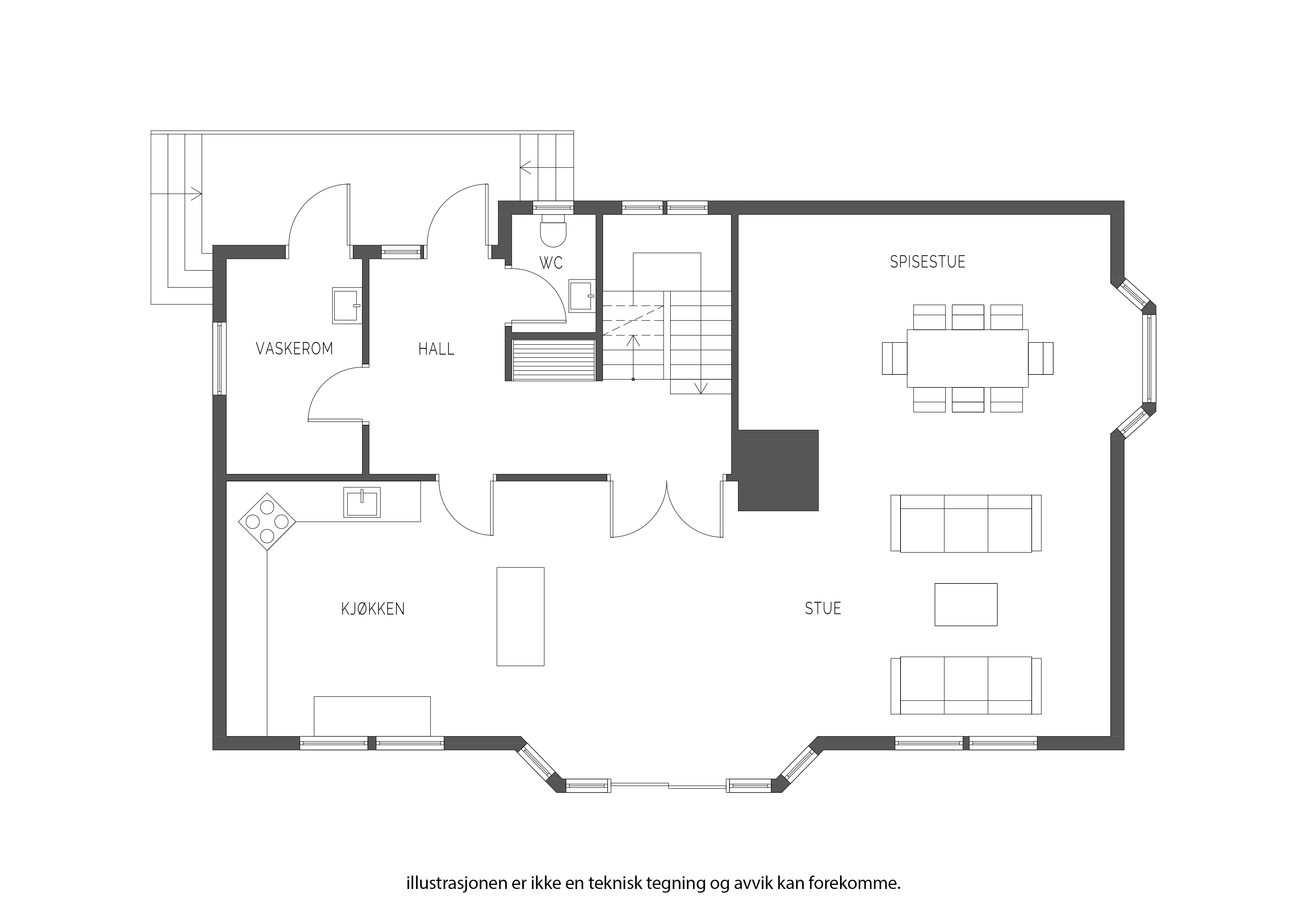
4878150_1a
Plantegning 2. etg. ( 30 av )
4878104_1a
Stor loftstue med utgang til balkong. ( 31 av )
4878107_1a
Balkong i 2. etasje med gode solforhold. ( 32 av )
4878106_1a
( 33 av )
4878105_1a
Her er det nok av plass til både tv-stue og kontor. ( 34 av )
4878108_1a
Parkett på gulv, vegger malt i tidsriktig farge og kontrastvegg av eikespiler. ( 35 av )
4878091_1a
Soverom av god størrelse med plass til både dobbeltseng og garderobeløsning. ( 36 av )
4878092_1a
( 37 av )
4878094_1a
( 38 av )
4878095_1a
( 39 av )
4878096_1a
Hovedsoverom av ekstra størrelse med tilkomst til bad og god plass til dobbeltseng og garderobeløsning. ( 40 av )
4878098_1a
Godt med lagringsplass i innebygde garderobeskap. ( 41 av )
4878099_1a
Tilgang til kryploft. ( 42 av )
4878103_1a
Fint bad av god størrelse med badekar, vegghengt toalett, dobbelt servant med god lagringsplass og dusjnisje. ( 43 av )
4878102_1a
Spotter i tak og varmekabler i gulv. ( 44 av )
4878101_1a
Teknisk rom på bad gjennom luke. ( 45 av )
4878151_1a
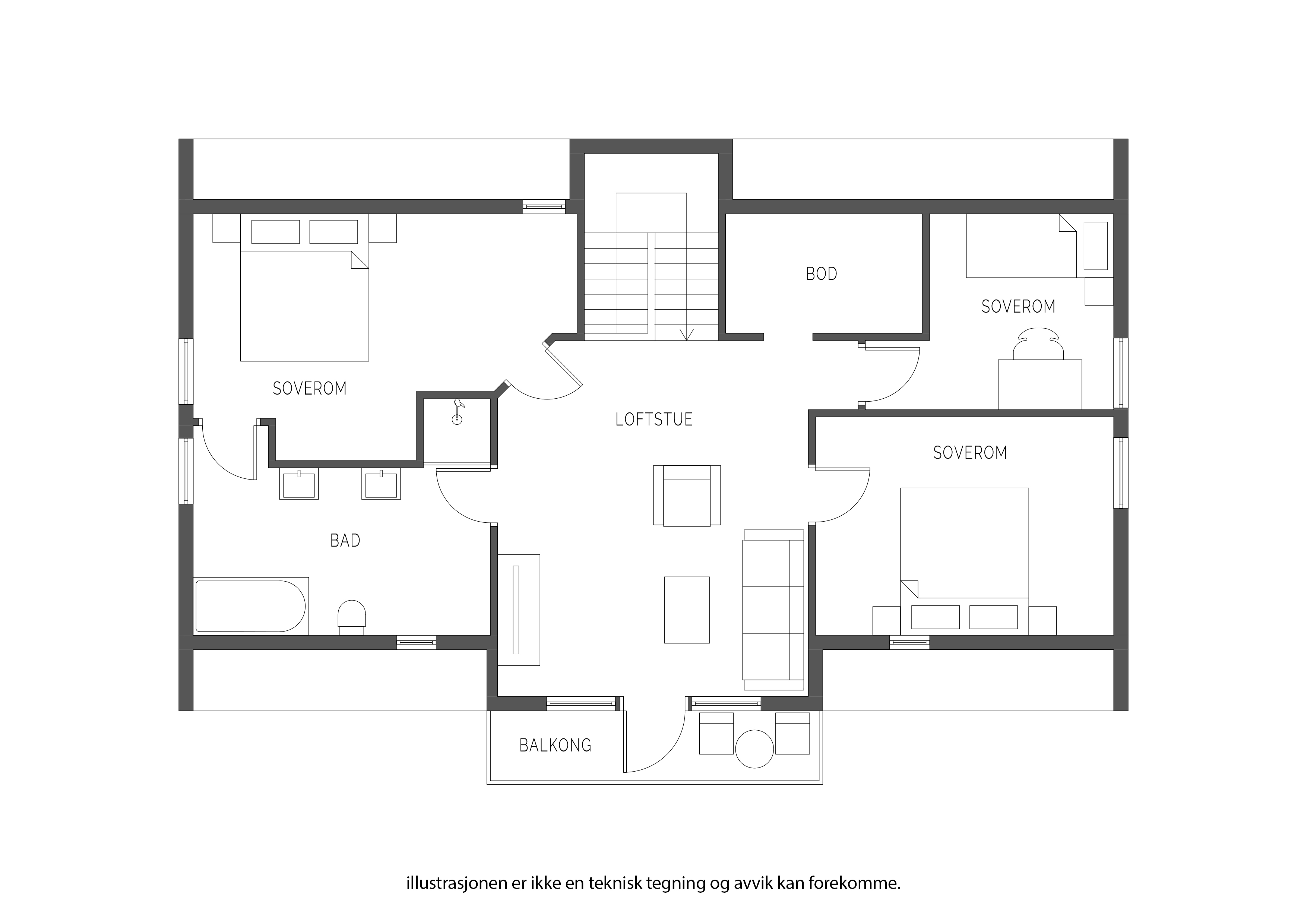
Plantegning underetasje (Mulighet for utleie) ( 46 av )
4878141_1a
Kjeller med bi-inngang. Inngangsdør er flyttet uten at det foreligger godkjent søknad om fasadeendring. Selger vil sende inn søknad på fasadeendring i løpet av uken, men kan ikke garantere for at endelig godkjennelse blir gitt. ( 47 av )
4878136_1a
Kjellerstue av god størrelse med varmepumpe fra 2023. ( 48 av )
4878137_1a
Kjøkken av god størrelse med lyse, slette fronter. ( 49 av )
4878138_1a
Kjøkken er utstyrt med integrert stekeovn og platetopp som medfølger i handelen. Frittstående oppvaskmaskin og kombiskap medfølger som hovedregel ikke. ( 50 av )
4878143_1a
Flott helfliset bad med servant, gulvfestet toalett, dusjnisje og opplegg til vaskemaskin. ( 51 av )
4878145_1a
Varmekabler i gulv. ( 52 av )
4878139_1a
2 gode rom brukt som soverom (Ikkje godkjent) ( 53 av )
4878140_1a
( 54 av )
4878142_1a
Selger har vært i kontakt med kommunen og søkt om bruksendring av ett soverom i underetasjen og venter svar. Selger kan ikke garantere for at godkjennelse blir gitt. ( 55 av )
4878088_1a
Kort vei til jærstrendene. ( 56 av )
4878087_1a
Her finner du milevis med sandstrender og flotte naturområder som passer perfekt for både turgåere, surfere og badeglade i alle aldre. ( 57 av )
4878152_1a
Flotte turområder i nærheten. ( 58 av )
4878086_1a
Stangeland Arena med innendørs fotballbane og treningsrom. ( 59 av )
4878085_1a
IL Havdurs klubbhus og idrettsanlegg. ( 60 av )
4878089_1a
Strandhuset på Ølberg og Ølbergkiosken like ved. ( 61 av )

Kvitlyngvegen 5

Se alle bilder (0)
4878148_1a
4878117_1a
4878090_1a
4878149_1a
4878132_1a
4878129_1a
4878114_1a
4878118_1a
4878115_1a
4878116_1a
4878119_1a
4878120_1a
4878144_1a
4878133_1a
4878146_1a
4878147_1a
4878121_1a
4878123_1a
4878124_1a
4878109_1a
4878126_1a
4878127_1a
4878128_1a
4878125_1a
4878135_1a
4878134_1a
4878100_1a
4878111_1a
4878122_1a
4878150_1a
4878104_1a
4878107_1a
4878106_1a
4878105_1a
4878108_1a
4878091_1a
4878092_1a
4878094_1a
4878095_1a
4878096_1a
4878098_1a
4878099_1a
4878103_1a
4878102_1a
4878101_1a
4878151_1a
4878141_1a
4878136_1a
4878137_1a
4878138_1a
4878143_1a
4878145_1a
4878139_1a
4878140_1a
4878142_1a
4878088_1a
4878087_1a
4878152_1a
4878086_1a
4878085_1a
4878089_1a

Kvitlyngvegen 5

Prisantydning:
Fra Kr 5890000,00
til Kr 0,00
Totalpris:
Kr 6056500,00
BRA:
269,00 - 0,00
BRA-i:
263 - 0
Soverom:
3 - 0
Boligtype:
Enebolig
Eierform:
Eiet tomt
Byggeår:
1988
Etasje:
0
Tomteareal:
435

Innholdsrik familiebolig med god planløsning og solrike uteområder - Parkering i carport og gårdsrom m/elbillader

Ansvarlig megler:
Stephan Michael Erichsen

Daglig leder / Partner / Eiendomsmegler MNEF

Visning

20.11.2025 16:30 - 17:30

Legg visning til i kalender 20.11.2025 16:30 20.11.2025 17:30 Central European Time Visning av Kvitlyngvegen 5 Boligvisning av Kvitlyngvegen 5 Kvitlyngvegen 5

Passer ikke visningstidspunktene?

Visningspåmelding
Avtal privatvisning her

Kvitlyngvegen 5

image005

Nøkkelinformasjon

plus_G_2025

BELIGGENHET

plus_G
minus_G

BESKRIVELSE AV EIENDOMMEN

plus_G
minus_G

OFFENTLIGE FORHOLD

plus_G
minus_G

PRISANTYDNING INKLUDERT OMKOSTNINGER

plus_G
minus_G

ØVRIGE KJØPSFORHOLD

plus_G
minus_G

Dokumenter

plus_G_2025

Del boligen

facebook-gold
Twitter-gold

Lurer du på noe om denne boligen?

Ta kontakt under via skjemaet.


Relaterte boliger

Sandangersvingen 32
6390000,00  0,00

Sandangersvingen 32

Sola ­ SOLA
Moderne og innholdsrik tomannsbolig av høy standard, beliggende i veletablert boligområde - 3 bad, 2 stuer og 4 soverom

Totalpris:

Kr 6569000,00

BRA-i:

152 m²
Se flere boliger
Bolig til salgs

Inspirasjon

Inspirerende interiørbilder fra norske hjem.
sov1
Soverom
kjo1
Kjøkken
stue
Stue

Boligartikler

Nyttig informasjon, råd og inspirasjon for deg som er opptatt av bolig.
aaletidligute
Aktuelt

Kapret først drømmeboligen, solgte egen bolig få dager senere

Konseptet vårt, Tidlig ute, legger til rette for et stressfritt boligsalg på kundens premisser. Poenget er å være ute i god tid, slik at prosessen...
vo4
Aktuelt

178 dager uten bud; - Proaktiv solgte boligen min etter første visning

Huset i Vestre Olsvikveg hadde mistet alt av moment etter et halvt år ute i markedet. Da Proaktiv ved Jon Kristian Røsok kom inn i bildet ble...
n_r-16
Aktuelt

Drømmer du om å drive ditt eget meglerkontor?

Proaktiv Eiendomsmegling er alltid på utkikk etter flinke folk som ønsker å skape sin egen suksess. Er du en målrettet og verdiskapende megler, med...