4884581_1a
Rektor Berntsens gate 11A presenteres av Proaktiv Eiendomsmegling v/ Ordin Fikstvedt. ( 1 av )
4884564_1a
Velkommen til Rektor Berntsens gate 11A - en leilighet med sentral beliggenhet og kort vei til det meste du trenger i hverdagen. ( 2 av )
4884552_1a
collage ( 3 av )
4884576_1a
En lys og luftig stue med god plass til både sofagruppe og annet ønsket møblement. ( 4 av )
4884578_1a
( 5 av )
4884563_1a
Fra stuen er det utgang til en balkong med plass til utemøbler. ( 6 av )
4884567_1a
( 7 av )
4884565_1a
( 8 av )
4884566_1a
Kjøkkenet ligger i delvis åpen løsning mot stuen og gir et praktisk og sosialt preg. ( 9 av )
4884577_1a
( 10 av )
4884568_1a
Det er innredning med glatte fronter og benkeplate av laminat. ( 11 av )
4884569_1a
( 12 av )
4884570_1a
Plasseringen av kjøkkenet gjør at du også har utsikt herfra noe som er veldig kjekt. ( 13 av )
4884571_1a
( 14 av )
4884555_1a
Hovedsoverommet har god plass til dobbeltseng og garderobeløsninger. ( 15 av )
4884556_1a
( 16 av )
4884553_1a
De to øvrige soverommene er også av god størrelse og kan brukes som barnerom, gjesterom eller kontor. ( 17 av )
4884554_1a
Gode oppbevaringsmuligheter. ( 18 av )
4884562_1a
( 19 av )
4884561_1a
Heisen tar deg opp til leiligheten. Innenfor døren kommer du inn i en entré med plass til sko og yttertøy. ( 20 av )
4884559_1a
Badet har fliser på både gulv og vegger, varmekabler, servant og dusjhjørne. ( 21 av )
4884560_1a
( 22 av )
4884558_1a
Leiligheten har et seperat WC. ( 23 av )
4884557_1a
I tillegg finnes et eget vaskerom som gir gode oppbevarings- og vaskemuligheter. ( 24 av )
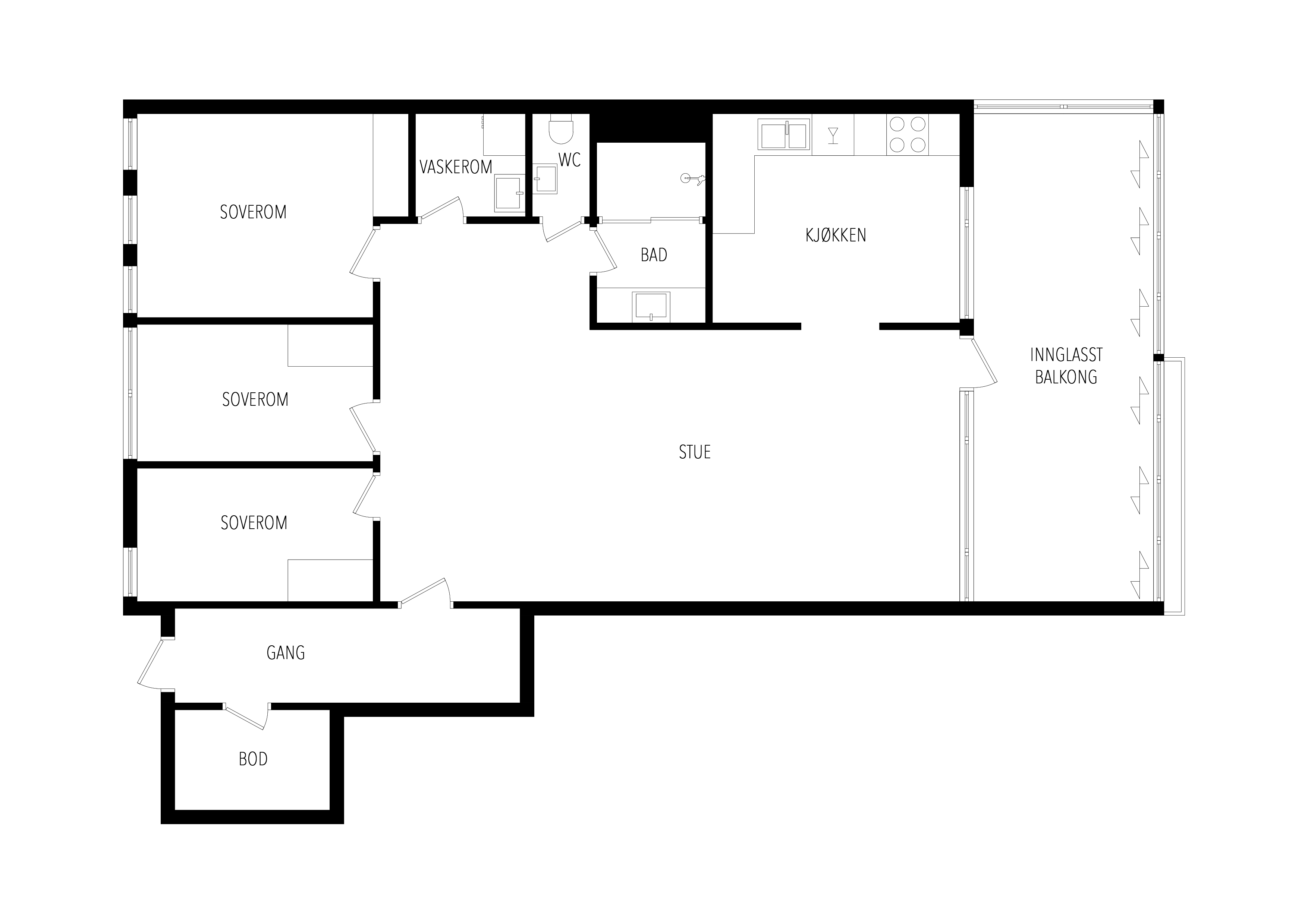
4884587_1a
Plantegning ( 25 av )
4884573_1a
Et lyst og genialt uterom, som forlenger utesesongen. Både vår, sommer og høst kan balkongen benyttes og en får stemningsfulle inntrykk av årstidene rett inn i stuen. ( 26 av )
4884572_1a
Nyt en flott utsikt og vakkre solnedganger. ( 27 av )
4884574_1a
( 28 av )
4884575_1a
Terskelen for koselige søndagsturer rundt Stokkavannet blir betraktelig mye lavere når man bor her. ( 29 av )
4884579_1a
Det er fem minutter å gå til DNB arena hvor det er veldig gode bussforbindelser. Her er det hyppige avganger både videre ut mot Madla/ Kvernevik, Sandnes og inn mot Stavanger sentrum. ( 30 av )
4884580_1a
Inngangspartiet. ( 31 av )
4884582_1a
( 32 av )
4884583_1a
( 33 av )
4884584_1a
( 34 av )
4884585_1a
( 35 av )
4884586_1a
Velkommen til visning ( 36 av )

Rektor Berntsens gate 11A

Se alle bilder (0)
4884581_1a
4884564_1a
4884552_1a
4884576_1a
4884578_1a
4884563_1a
4884567_1a
4884565_1a
4884566_1a
4884577_1a
4884568_1a
4884569_1a
4884570_1a
4884571_1a
4884555_1a
4884556_1a
4884553_1a
4884554_1a
4884562_1a
4884561_1a
4884559_1a
4884560_1a
4884558_1a
4884557_1a
4884587_1a
4884573_1a
4884572_1a
4884574_1a
4884575_1a
4884579_1a
4884580_1a
4884582_1a
4884583_1a
4884584_1a
4884585_1a
4884586_1a

Rektor Berntsens gate 11A

Prisantydning:
Fra Kr 4750000,00
til Kr 0,00
Totalpris:
Kr 4919781,00
BRA:
118,00 - 0,00
BRA-i:
95 - 0
Soverom:
3 - 0
Boligtype:
Leilighet
Eierform:
Eiet tomt
Byggeår:
1972
Etasje:
4
Tomteareal:
22894

Kjekk leilighet med innglasset balkong I Sentral beliggenhet I 3 soverom

Ansvarlig megler:
Ordin Fikstvedt

Eiendomsmegler / Fagansvarlig / Partner

Visning

10.12.2025 16:00 - 17:00

Legg visning til i kalender 10.12.2025 16:00 10.12.2025 17:00 Central European Time Visning av Rektor Berntsens gate 11A Boligvisning av Rektor Berntsens gate 11A Rektor Berntsens gate 11A

Passer ikke visningstidspunktene?

Visningspåmelding
Avtal privatvisning her

Rektor Berntsens gate 11A

image005

Nøkkelinformasjon

plus_G_2025

BELIGGENHET

plus_G
minus_G

BESKRIVELSE AV EIENDOMMEN

plus_G
minus_G

BORETTSLAGET/ØKONOMI

plus_G
minus_G

OFFENTLIGE FORHOLD

plus_G
minus_G

PRISANTYDNING INKLUDERT OMKOSTNINGER

plus_G
minus_G

ØVRIGE KJØPSFORHOLD

plus_G
minus_G

Dokumenter

plus_G_2025

Del boligen

facebook-gold
Twitter-gold

Lurer du på noe om denne boligen?

Ta kontakt under via skjemaet.


Relaterte boliger

Smedgata 10
3975000,00  0,00

Smedgata 10

Stavanger ­ STAVANGER
Gjennomført og attraktiv leilighet midt i sentrum | 2 soverom | Balkong

Totalpris:

Kr 4324881,00

BRA-i:

59 m²
Bjergsted Terrasse 4
11000000,00  0,00

Bjergsted Terrasse 4

Stavanger ­ Stavanger
Stor leilighet på 200 kvm rett bak konserthuset. Flott sjøusikt. 4 soverom. 2 park. plasser mm.

Totalpris:

Kr 11439316,00

BRA-i:

202 m²
Kong Carls gate 33
9800000,00  0,00

Kong Carls gate 33

Stavanger ­ Stavanger
Klassisk hel 2-mannsbolig med stor tomt og strålende beliggenhet.

Totalpris:

Kr 10064250,00

BRA-i:

174 m²
Nordvikveien 6
21000000,00  0,00

Nordvikveien 6

Stavanger ­ HUNDVÅG
Eksklusiv villaeiendom i idylliske omgivelser med, naust, brygge, store balkonger, carport og utleiedel.

Totalpris:

Kr 21544250,00

BRA-i:

359 m²
Condeep-veien 25
6590000,00  0,00

Condeep-veien 25

Stavanger ­ STAVANGER
Søstrene Hinna - Helt ny leilighet med 3 soverom - 2025, 2 balkonger, p-plass og bod - Flotte fellesfasiliteter.

Totalpris:

Kr 6768000,00

BRA-i:

74 m²
Madlaveien 18 og 20
14000000,00  0,00

Madlaveien 18 og 20

Stavanger ­ STAVANGER
Sentrum - Hospits/pensjonat & forretning/kontor/restaurant | Stort næringsbygg med gode utviklingsmuligheter

Areal (BTA):

723,00
Dronningens gate 10
16900000,00  0,00

Dronningens gate 10

Stavanger ­ STAVANGER
Ærverdig og vakker murvilla med ettertraktet beliggenhet. Frodig, skjermet og solfylt hage. Garasje.

Totalpris:

Kr 17340750,00

BRA-i:

343 m²
Se flere boliger
Bolig til salgs

Inspirasjon

Inspirerende interiørbilder fra norske hjem.
sov1
Soverom
kjo1
Kjøkken
stue
Stue

Boligartikler

Nyttig informasjon, råd og inspirasjon for deg som er opptatt av bolig.
aaletidligute
Aktuelt

Kapret først drømmeboligen, solgte egen bolig få dager senere

Konseptet vårt, Tidlig ute, legger til rette for et stressfritt boligsalg på kundens premisser. Poenget er å være ute i god tid, slik at prosessen...
vo4
Aktuelt

178 dager uten bud; - Proaktiv solgte boligen min etter første visning

Huset i Vestre Olsvikveg hadde mistet alt av moment etter et halvt år ute i markedet. Da Proaktiv ved Jon Kristian Røsok kom inn i bildet ble...
n_r-16
Aktuelt

Drømmer du om å drive ditt eget meglerkontor?

Proaktiv Eiendomsmegling er alltid på utkikk etter flinke folk som ønsker å skape sin egen suksess. Er du en målrettet og verdiskapende megler, med...