4891508_1a
Proaktiv v/Ola Skarra Arnesen presenterer en eksklusiv og attraktiv 4-roms selveierleilighet i Laboratorieveien 14 på Nordre Jarlsberg Brygge. ( 1 av )
4891487_1a
Gode kvaliteter, energivennlige finesser og optimal planløsning på 129 kvm. ( 2 av )
4891501_1a
Leiligheten ligger helt i front mot vannet og brygga. ( 3 av )
4891506_1a
Her har du spektakulær utsikt retning Svelvikbukta og glimrende solforhold. ( 4 av )
4891505_1a
Privat terrasse på ca. 49 kvm med flere soner. ( 5 av )
4891513_1a
Her har du vannkanten, stranda og båtliv ligger rett utenfor. ( 6 av )
4891507_1a
Vinkelterrasse med flere soner. Bilfrie internveier i sameiet. ( 7 av )
4891492_1a
Inne er det lyst, moderne og lekkert. ( 8 av )
4891495_1a
Gulvvarme i alle rom i leiligheten. ( 9 av )
4891490_1a
Lekker gasspeis i allrommet. ( 10 av )
4891489_1a
Det flotte oppholdsrommet domineres av store vinduer vendt ut mot vannet som sikrer maksimal utsikt og gir gode lysforhold hele dagen. ( 11 av )
4891488_1a
Stuen har en naturlig soneinndeling med plass til en avslappende sofagruppe og spisebord i egne soner. ( 12 av )
4891485_1a
Flott utsikt fra vinduene. ( 13 av )
4891500_1a
( 14 av )
4891496_1a
( 15 av )
4891491_1a
Gulvet er dekket av enstavs parkett med gulvvarme og veggene er kledd og malt i behagelige og moderne farger. ( 16 av )
4891494_1a
( 17 av )
4891497_1a
Særdeles pent og moderne kjøkken åpent mot stuen, men likevel i egen sone. ( 18 av )
4891498_1a
Takhøy innredning fra HTH med hvite, glatte fronter, rette linjer og integrerte hvitevarer. ( 19 av )
4891476_1a
Benkeplaten i stein er solid til daglig bruk uten at det går på kompromiss med designet, og det er underlimt kum i rustfritt stål. ( 20 av )
4891482_1a
Integrert ovn, micro og dampovn i ergonomisk høyde. ( 21 av )
4891478_1a
Hovedsoverom med dør ut til terrassen. ( 22 av )
4891483_1a
( 23 av )
4891479_1a
Skyvedørsgarderobe på dette soverommet. ( 24 av )
4891473_1a
I tilknytning til hovedsoverommet ligger et flott baderom som også fungerer som leilighetens vaskerom. ( 25 av )
4891474_1a
Romslig og flislagt. Komplett utstyrt. ( 26 av )
4891480_1a
Soverom 2. ( 27 av )
4891515_1a
Soverom 3. ( 28 av )
4891471_1a
Ytterligere ett baderom med adkomst fra gangen. ( 29 av )
4891472_1a
Lekker skålservant. ( 30 av )
4891470_1a
Begge baderommene er flislagte med varmekabler i gulvet. ( 31 av )
4891486_1a
( 32 av )
4891475_1a
Gulvfliser med varme i entreen og stor, plassbygget skyvedørsgarderobe med speilfronter. ( 33 av )
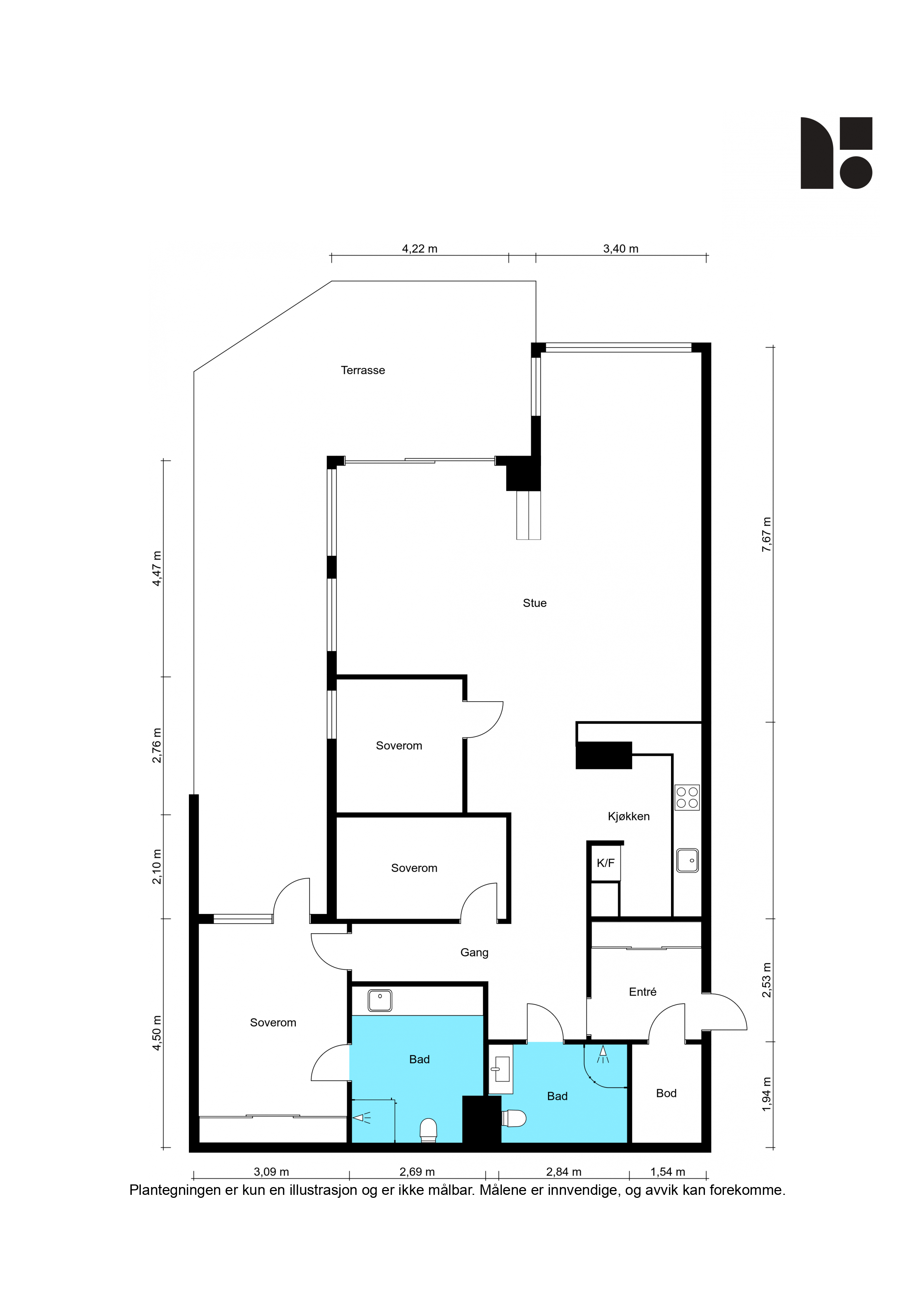
4892220_1a
Plantegning. ( 34 av )
4891516_1a
To parkeringsplasser ved siden av hverandre i felles garasjeanlegg. El.bil-lader. Mulighet for kjøp av den tredje plassen som er vist på bildet. ( 35 av )
4891503_1a
Sameiet er omkranset av frodige og velstelte fellesområder med stemningsfull lyssetting, vannspeil, granitt, naturstein, blomster m.m. ( 36 av )
4891504_1a
Som en del av de sosiale møteplassene i området, finnes også sandvolleybane, basket court, boule-bane og treningsapparater. ( 37 av )
4891511_1a
Området er tilbaketrukket fra byliv og støy med kort gangavstand til skog og mark. Båtplassen ligger rett utenfor stuen. ( 38 av )
4891512_1a
Seksjonen disponerer også fast båtplass på brygge rett ved siden av. Båthavna er en velorganisert småbåthavn med strøm og vann langs bryggene og nattevaktordning. ( 39 av )
4891867_1a
Privat sommerbilde fra selger. ( 40 av )
4892863_1a
Båtplassen som medflølger (bilde tatt av selger). ( 41 av )

Laboratorieveien 14

Se alle bilder (0)
4891508_1a
4891487_1a
4891501_1a
4891506_1a
4891505_1a
4891513_1a
4891507_1a
4891492_1a
4891495_1a
4891490_1a
4891489_1a
4891488_1a
4891485_1a
4891500_1a
4891496_1a
4891491_1a
4891494_1a
4891497_1a
4891498_1a
4891476_1a
4891482_1a
4891478_1a
4891483_1a
4891479_1a
4891473_1a
4891474_1a
4891480_1a
4891515_1a
4891471_1a
4891472_1a
4891470_1a
4891486_1a
4891475_1a
4892220_1a
4891516_1a
4891503_1a
4891504_1a
4891511_1a
4891512_1a
4891867_1a
4892863_1a

Laboratorieveien 14

Prisantydning:
Fra Kr 8500000,00
til Kr 0,00
Totalpris:
Kr 8726750,00
BRA:
139,00 - 0,00
BRA-i:
129 - 0
Soverom:
3 - 0
Boligtype:
Leilighet
Eierform:
Eiet tomt
Byggeår:
2012
Etasje:
2
Tomteareal:
47

Eksklusiv 4-roms frontleilighet ved vannet med fantastisk utsikt. Stort uteområde, båtplass og 2 garasjeplasser. 2 bad.

Ansvarlig megler:
Ola Skarra Arnesen

Salgsleder / Partner / Eiendomsmegler

Visning

25.01.2026 14:00 - 15:00

Legg visning til i kalender 25.01.2026 14:00 25.01.2026 15:00 Central European Time Visning av Laboratorieveien 14 Boligvisning av Laboratorieveien 14 Laboratorieveien 14

Passer ikke visningstidspunktene?

Visningspåmelding
Avtal privatvisning her

Laboratorieveien 14

image005

Nøkkelinformasjon

plus_G_2025

BELIGGENHET

plus_G
minus_G

BESKRIVELSE AV EIENDOMMEN

plus_G
minus_G

OFFENTLIGE FORHOLD

plus_G
minus_G

PRISANTYDNING INKLUDERT OMKOSTNINGER

plus_G
minus_G

SAMEIET/ØKONOMI

plus_G
minus_G

ØVRIGE KJØPSFORHOLD

plus_G
minus_G

Dokumenter

plus_G_2025

Del boligen

facebook-gold
Twitter-gold

Lurer du på noe om denne boligen?

Ta kontakt under via skjemaet.


Relaterte boliger

Lillemilen 4
4700000,00  0,00

Lillemilen 4

Holmestrand ­ HOF
Nyere arkitekttegnet enebolig i markanært område. Solrik terrasse og familievennlig hage. Carport m/utebod. Lekeplass.

Totalpris:

Kr 4831750,00

BRA-i:

150 m²
Mikkel Revs vei 20
6800000,00  0,00

Mikkel Revs vei 20

Holmestrand ­ HOLMESTRAND
Stor, innholdsrik og flott beliggende familiebolig m/ skjermet uteområde & nydelig utsikt. Godkjent hybel. Dbl. carport

Totalpris:

Kr 6988250,00

BRA-i:

350 m²
Kleiverudveien 39
2690000,00  0,00

Kleiverudveien 39

Holmestrand ­ HOLMESTRAND
Hyggelig rekkehus med fjordutsikt, solrike terrasser & hage. Garasje & god bodplass. Gangavstand til skole, bhg & marka.

Totalpris:

Kr 3230870,00

BRA-i:

108 m²
Platåveien 19B
9950000,00  0,00

Platåveien 19B

Holmestrand ­ Holmestrand
Eksklusiv og prisjustert arkitektbolig med basseng, bergvarme, stor tomt, utsikt, solrikt og sentralt beliggende.

Totalpris:

Kr 10217000,00

BRA-i:

348 m²
Neverveien 14
6790000,00  0,00

Neverveien 14

Holmestrand ­ HOLMESTRAND
Stor og flott familiebolig m/ solrik tomt, råfin utsikt og dbl.garasje. Betydelig oppusset i 2016. Hybel (ikke godkjent)

Totalpris:

Kr 6979000,00

BRA-i:

226 m²
Tunnelveien
2490000,00  0,00

Tunnelveien

Holmestrand ­ Holmestrand
Byggeklar tomt på 711 kvm med utsikt mot fjorden. Attraktivt boligområde med 500 meter til Fjellheisen. Dobbelgarasje.

Totalpris:

Kr 2553600,00

P-rom:

0,00 m²
Kaiveien 4
4950000,00  0,00

Kaiveien 4

Holmestrand ­ SANDE I VESTFOLD
Flott maritim hjørneleilighet på 88 kvm ved fjorden. Terrasse på 32 kvm, garasje og trappefri adkomst. Topp standard.

Totalpris:

Kr 5088000,00

BRA-i:

88 m²
Gartneriveien 32
4290000,00  0,00

Gartneriveien 32

Holmestrand ­ HOLMESTRAND
Nyere og pen 5-roms endeleilighet over to plan. Solrike terrasser m/åpent utsyn + garasjeplass. Fine fellesområder.

Totalpris:

Kr 4410500,00

BRA-i:

112 m²
Markveien 5
3490000,00  0,00

Markveien 5

Holmestrand ­ HOLMESTRAND
Flott rekkehus med solrik uteplass, 4 soverom, 2 bad (1 fra 2024), 2 stuer, garasje, elbil lader.

Totalpris:

Kr 3942246,00

BRA-i:

114 m²
Røllesveien 21
4790000,00  0,00

Røllesveien 21

Holmestrand ­ Sande i vestfold
Nyere og lekkert enderekkehus m/ rolig beliggenhet og fin utsikt - Carport med lader & p-plass - 4 sov, 2 bad & vaskerom

Totalpris:

Kr 4930000,00

BRA-i:

155 m²
Se flere boliger
Bolig til salgs

Inspirasjon

Inspirerende interiørbilder fra norske hjem.
sov1
Soverom
kjo1
Kjøkken
stue
Stue

Boligartikler

Nyttig informasjon, råd og inspirasjon for deg som er opptatt av bolig.
aaletidligute
Aktuelt

Kapret først drømmeboligen, solgte egen bolig få dager senere

Konseptet vårt, Tidlig ute, legger til rette for et stressfritt boligsalg på kundens premisser. Poenget er å være ute i god tid, slik at prosessen...
vo4
Aktuelt

178 dager uten bud; - Proaktiv solgte boligen min etter første visning

Huset i Vestre Olsvikveg hadde mistet alt av moment etter et halvt år ute i markedet. Da Proaktiv ved Jon Kristian Røsok kom inn i bildet ble...
n_r-16
Aktuelt

Drømmer du om å drive ditt eget meglerkontor?

Proaktiv Eiendomsmegling er alltid på utkikk etter flinke folk som ønsker å skape sin egen suksess. Er du en målrettet og verdiskapende megler, med...