4789123_1a
Velkommen til en lekker enebolig i Vestaveien 47A, presentert av Truls Hauge v/Proaktiv. ( 1 av )
4767027_1a
Eiendommen byr bla. på nydelige uteområder med 82 kvm takterrasse, markterrasse og stor hage. Dobbelgarasje integrert i huset. ( 2 av )
4767023_1a
Terrassen er utstyrt med deilig jacuzzi plassbygd i plattingen - her kan du nyte fantastisk utsikt hele dagen og kvelden. ( 3 av )
4767025_1a
Terrassen har plass til å samle hele familien, med mulighet for utelounge, spiesplass og solsenger. ( 4 av )
4767024_1a
En usjenert uteplass med strålende sol- og utsiktsforhold. ( 5 av )
4767111_1a
Boligen består av 1.og 2. etasje + takterrasse ( 6 av )
4760525_1a
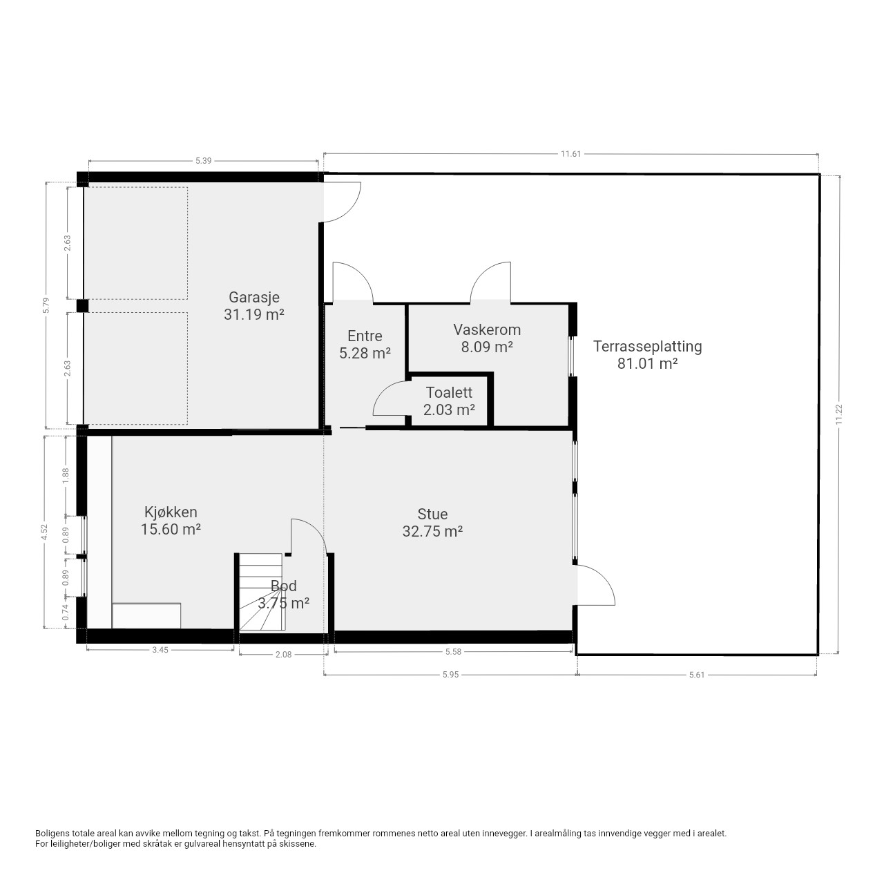
Plantegning 1.etasje. ( 7 av )
4767055_1a
I boligens hovedetasje ligger et flott allrom med stue og kjøkken i åpen løsning, og likevel i adskilte soner. ( 8 av )
4767056_1a
Det er godt gjennomlys fra begge sider av rommet, og fra stuen kommer du ut til terrassen og hagen på bakkeplan. ( 9 av )
4767085_1a
Utsikt mot hagen. ( 10 av )
4767077_1a
I stuen er det peisovn, og hele rommet har downlightsbelysning. ( 11 av )
4767061_1a
Åpent og sosialt med plass til sofagruppe og spisebord i egne soner. ( 12 av )
4767057_1a
Boligen har balansert ventilasjon og det er gulvvarme i 1. etasje. ( 13 av )
4767021_1a
Koselig kveldsstemning med utsikt mot terrassen og hagen. ( 14 av )
4767029_1a
Utenfor stuen er det markterrasse på ca. 81 kvm, som ble oppgradert med ny utestue i 2023. ( 15 av )
4767028_1a
Her er det mulighet for lun og koselig sitteplass og grill. Terrassen ligger ut mot en stor og pent opparbeidet hage. ( 16 av )
4767060_1a
( 17 av )
4767183_1a
( 18 av )
4767059_1a
Boligen har et romslig kjøkken innerst i allrommet, med plass til spisebord i tilknytning. ( 19 av )
4767063_1a
Kjøkkenet har innredning fra Norema, med slette fronter, laminat benkeplate og helintegrerte hvitevarer som medfølger i salget. ( 20 av )
4767064_1a
God belysning fra downlights i taket, og naturlig lysinnslipp fra vinduet over benken. ( 21 av )
4767189_1a
Tilknyttet entreen ligger et praktisk vaskerom som også har egen inngang fra terrasse/hage. ( 22 av )
4767069_1a
Fra entreen er det også adkomst til gjestetoalett. ( 23 av )
4767079_1a
Det er trinnfri adkomst inn til entreen, og her møter du et romslig og hyggelig rom med flislagt gulv og gulvvarme. God plass til lagring av yttertøy i entré og vaskerom. ( 24 av )
4767112_1a
( 25 av )
4760526_1a
Plantegning 2.etasje. ( 26 av )
4767053_1a
Oppe i boligens 2. etasje ligger ytterligere en romslig stue med mulighet for egen tv-stue eller lekerom til barna i huset. ( 27 av )
4767054_1a
Fra stuen er det utgang til takterrasse på ca. 17 kvm, med trapp opp til den store takterrassen. ( 28 av )
4767076_1a
I 2. etasje er det familietilpasset planløsning med 3 soverom (ett med walk-in), bad og bod. ( 29 av )
4767075_1a
( 30 av )
4767065_1a
Delikat baderom med store fliser på vegger og gulv, varmekabler, downlights og balansert ventilasjon. ( 31 av )
4767066_1a
Badet har stor innredning med god lagringsplass,speil m/lys, toalett og dusjhjørne. ( 32 av )
4767074_1a
På andre siden av stuen ligger to barnerom/gjesterom. ( 33 av )
4767078_1a
Store og fine rom malt i rolige farger, med plass til dobbeltseng. ( 34 av )
4767072_1a
Alle rommene har garderobeløsning som medfølger. ( 35 av )
4767073_1a
Soverom nr. II. ( 36 av )
4767070_1a
Innbydende hovedsoverom med god plass til dobbeltseng. ( 37 av )
4767071_1a
Hovedsoverommet har tilknyttet walk-in closet med innredning. ( 38 av )
4767235_1a
( 39 av )
4760527_1a
Plantegning takterrasse på toppen av huset. ( 40 av )
4767094_1a
Takterrassen byr på upåklagelige solforhold, flott utsikt over området og god plass til møblering. ( 41 av )
4767082_1a
Terrassen har tredekke og frostet rekkverk i glass som gir god skjerming mot innsyn. ( 42 av )
4767081_1a
( 43 av )
4767083_1a
( 44 av )
4767185_1a
En fantastisk sted å nye sommeren med familie og venner! ( 45 av )
4767080_1a
Takterrasse på ca. 17 kvm utenfor stuen i 2.etasje og over garasjen. Herfra går trappen opp til øverste takterrassen. ( 46 av )
4767022_1a
Denne takterrassen er sydvestvendt og byr på sol fra tidlig formiddagen og til godt utpå kvelden. ( 47 av )
4789129_1a
Et flott familiehjem med store og flotte uteområder, og god og innholdsrik planløsning innvendig. ( 48 av )
4789130_1a
Nydelig hage med god plass til både lek og avslapping. Hyggelig utestue ble etablert i 2023. ( 49 av )
4789125_1a
God plass til flere soner ( 50 av )
4789132_1a
Enkel adkomst fra garasje til huset, samt egen inngang direkte til boligens vaskerom. ( 51 av )
4789127_1a
Nede på bakkeplan er det terrasse på hele 81 kvm, og stor hage avgrenset med gjerde og hekk mot naboer. ( 52 av )
4789128_1a
( 53 av )
4789131_1a
Platting med gode solforhold fra tidlig formiddag. ( 54 av )
4789126_1a
Dobbelgarasje. ( 55 av )
4767234_1a
I hagen er det plass til feks drivhus på eget platå, med plassbygd trapp og bed for blomster. (Selgers egne bilder). ( 56 av )
4767188_1a
Hagen er svært pent opparbeidet og bugner av blomster, planter og trær på sommerstid. (Selgers egne bilder). ( 57 av )
4767233_1a
(Selgers egne bilder). ( 58 av )
4788952_1a
Boligen har attraktivt beliggenhet, høyt og solrikt på Røykås på Rasta. ( 59 av )
4788953_1a
Fra boligen er det kort avstand til fine markaområder, barnehage, skoler, buss og Lørenskog sentrum med alle fasiliteter. ( 60 av )
4788954_1a
( 61 av )
4767113_1a
( 62 av )
4767178_1a
Rasta Senter med Meny butikk og apotek ligger i nærområdet. ( 63 av )
4767176_1a
Flere barnehager i nærheten, her ved Eventyrstua barnehage. ( 64 av )
4767179_1a
Kort vei også til Rasta skole. ( 65 av )
4767175_1a
Boligen ligger tett på marka med helårs turterreng. ( 66 av )
4767181_1a
Kun noen minutters kjøretur til Triaden kjøpesenter. ( 67 av )
4767177_1a
Lørenskog hus er et moderne kulturhus med bl.a. kino, bibliotek samt musikk- og kulturskole. ( 68 av )
4767180_1a
Populær aktivitetspark ved Sørlihavna. ( 69 av )
4767182_1a
Østmarka byr på fine turstier, fiske- og badevann, og milelange skiløyper på vinterstid. ( 70 av )

Vestaveien 47A

Se alle bilder (0)
4789123_1a
4767027_1a
4767023_1a
4767025_1a
4767024_1a
4767111_1a
4760525_1a
4767055_1a
4767056_1a
4767085_1a
4767077_1a
4767061_1a
4767057_1a
4767021_1a
4767029_1a
4767028_1a
4767060_1a
4767183_1a
4767059_1a
4767063_1a
4767064_1a
4767189_1a
4767069_1a
4767079_1a
4767112_1a
4760526_1a
4767053_1a
4767054_1a
4767076_1a
4767075_1a
4767065_1a
4767066_1a
4767074_1a
4767078_1a
4767072_1a
4767073_1a
4767070_1a
4767071_1a
4767235_1a
4760527_1a
4767094_1a
4767082_1a
4767081_1a
4767083_1a
4767185_1a
4767080_1a
4767022_1a
4789129_1a
4789130_1a
4789125_1a
4789132_1a
4789127_1a
4789128_1a
4789131_1a
4789126_1a
4767234_1a
4767188_1a
4767233_1a
4788952_1a
4788953_1a
4788954_1a
4767113_1a
4767178_1a
4767176_1a
4767179_1a
4767175_1a
4767181_1a
4767177_1a
4767180_1a
4767182_1a

Vestaveien 47A

Prisantydning:
Fra Kr 10600000,00
til Kr 0,00
Totalpris:
Kr 10872750,00
BRA:
189,00 - 0,00
BRA-i:
158 - 0
Soverom:
3 - 0
Boligtype:
Enebolig
Eierform:
Eiet tomt
Byggeår:
2015
Etasje:
0
Tomteareal:
516

Innbydende enebolig med 82m² takterrasse, glimrende solforhold & nydelig hage | Dobbelgarasje | Etterspurt beliggenhet!

Ansvarlig megler:
Truls Hauge

Daglig leder/ Partner/ Eiendomsmegler MNEF

Visning

Boligen er solgt og er ikke lengre tilgjengelig for visning. 

Vestaveien 47A

image005

Nøkkelinformasjon

plus_G_2025

BELIGGENHET

plus_G
minus_G

BESKRIVELSE AV EIENDOMMEN

plus_G
minus_G

OFFENTLIGE FORHOLD

plus_G
minus_G

PRISANTYDNING INKLUDERT OMKOSTNINGER

plus_G
minus_G

SAMEIET/ØKONOMI

plus_G
minus_G

ØVRIGE KJØPSFORHOLD

plus_G
minus_G

Dokumenter

plus_G_2025

Del boligen

facebook-gold
Twitter-gold

Lurer du på noe om denne boligen?

Ta kontakt under via skjemaet.


Relaterte boliger

Njåls vei 4
4950000,00  0,00

Njåls vei 4

Lørenskog ­ Lørenskog
Visperud, flott boligtomt på hele 1104 kvm. i attraktivt og etablert villaområde

Totalpris:

Kr 5092000,00

P-rom:

0,00 m²
Njåls vei 4
4950000,00  0,00

Njåls vei 4

Lørenskog ­ Lørenskog
Enebolig med stor tomt - Total rehabilitering eller flott boligtomt.

Totalpris:

Kr 5093000,00

BRA-i:

127 m²
Kantarellveien 73
6500000,00  0,00

Kantarellveien 73

Lørenskog ­ RASTA
Halvpart tomannsbolig m/ nydelig utsikt i meget barnevennlige omgivelser | 4 sov + innredet rom, bad & wc | Garasje m/EL

Totalpris:

Kr 6639377,00

BRA-i:

129 m²
Losbyveien 42C
3350000,00  0,00

Losbyveien 42C

Lørenskog ­ FINSTADJORDET
Gjennomgående 2(3)-roms endeleilighet med fast p-plass m/ EL | To balkonger og gode solforhold | Landlig, men sentralt!

Totalpris:

Kr 3562872,00

BRA-i:

56 m²
Oscar Wistings vei 5
8700000,00  0,00

Oscar Wistings vei 5

Lørenskog ­ Fjellhamar
Hel tomannsbolig med leieinntekter, 1,6 mål tomt & fantastisk utsikt | Stort potensiale | Like ved tog, skole & marka

Totalpris:

Kr 8935750,00

BRA-i:

159 m²
Ingvald Kristiansens gate 7
5995000,00  0,00

Ingvald Kristiansens gate 7

Lørenskog ­ LØRENSKOG
Nyoppført og attraktiv 4-roms selveier m/garasjeplass & innglasset balkong | Sentralt & moderne i Skårerløkka Premium

Totalpris:

Kr 6158120,00

BRA-i:

78 m²
Vestaveien 45
12900000,00  0,00

Vestaveien 45

Lørenskog ­ Rasta
Påkostet familievilla med nydelig uteområde, innflyttingsklare kvaliteter og 3 garasjer | 4 sov & 3 bad | Rett ved marka

Totalpris:

Kr 13240750,00

BRA-i:

197 m²
Korallsoppveien 25A
6950000,00  0,00

Korallsoppveien 25A

Lørenskog ­ RASTA
Barnevennlig innerst i blindvei ved Østmarka. Halvpart av tomannsbolig. Garasje m/lader. 4 soverom. 2 bad

Totalpris:

Kr 7137000,00

BRA-i:

140 m²
Isak H. Wiiks gate 10
3500000,00  0,00

Isak H. Wiiks gate 10

Lørenskog ­ LØRENSKOG
Perfekt førstegangskjøp! Splitter ny 1-roms m/alkove & fransk balkong | Felles takterrasse & sentral beliggenhet

Totalpris:

Kr 3600750,00

BRA-i:

34 m²
Søster Mathildes gate 24
5300000,00  0,00

Søster Mathildes gate 24

Lørenskog ­ LØRENSKOG
Svært romslig 4-roms hjørneleilighet med sørvendt balkong på ca. 15 m² | Garasjeplass m/ lader | 3 boder

Totalpris:

Kr 5445750,00

BRA-i:

90 m²
Se flere boliger
Bolig til salgs

Inspirasjon

Inspirerende interiørbilder fra norske hjem.
sov1
Soverom
kjo1
Kjøkken
stue
Stue

Boligartikler

Nyttig informasjon, råd og inspirasjon for deg som er opptatt av bolig.
vo4
Aktuelt

178 dager uten bud; - Proaktiv solgte boligen min etter første visning

Huset i Vestre Olsvikveg hadde mistet alt av moment etter et halvt år ute i markedet. Da Proaktiv ved Jon Kristian Røsok kom inn i bildet ble...
n_r-16
Aktuelt

Drømmer du om å drive ditt eget meglerkontor?

Proaktiv Eiendomsmegling er alltid på utkikk etter flinke folk som ønsker å skape sin egen suksess. Er du en målrettet og verdiskapende megler, med...
ole4
Aktuelt

Bygget i 2021. Solgt for 2,5 millioner mer i 2025

Boligen i Ole I. Bores veg ble solgt for én million over prisantydning etter å ha ligget ute i markedet i kun en uke.