4856162_1a
Proaktiv v/Ola Skarra Arnesen presenterer en etterspurt og flott halvpart av tomannsbolig i Høgda 5B. ( 1 av )
4856167_1a
Boligen ligger på toppen med egen gårdsplass, dobbelgarasje og nydelige uteplasser. ( 2 av )
4856177_1a
Meget attraktiv beliggende på toppen med panoramautsikt. ( 3 av )
4856176_1a
( 4 av )
4856172_1a
Nordvestvendt terrasse med sol og utsikt. ( 5 av )
4856170_1a
Terrassen måler ca. 18 kvm og har adkomst via skyvedør fra stuen. ( 6 av )
4856171_1a
( 7 av )
4856168_1a
Bak dobbelgarasjen er det anlagt en skjermet og lun terrasse på ca. 28 kvm. ( 8 av )
4856169_1a
Uteplassen har skjermende, tett hekk rundt, utebelysning på vegg og god plass til utemøblement og grill. ( 9 av )
4856173_1a
( 10 av )
4856160_1a
Sosialt og åpent allrom med stue, spisestue og kjøkken. ( 11 av )
4856208_1a
Generøs takhøyde og store vinduer med storslagen utsikt! ( 12 av )
4856156_1a
Stuen har god plass til stuemøblement, gasspeis og tidsriktige fargetoner. ( 13 av )
4856157_1a
( 14 av )
4856161_1a
De store vinduene sørger for at rommet blir fylt med lys og en flott åpenhet mot omgivelsene. ( 15 av )
4856158_1a
( 16 av )
4856159_1a
( 17 av )
4856155_1a
Gasspeisen er plassert sentralt i allrommet. ( 18 av )
4856165_1a
Kjøkken i egen sone med mye skap- og arbeidsplass på benken. ( 19 av )
4856166_1a
Spisebordet finner sin naturlige plassering ved kjøkkensonen. ( 20 av )
4856164_1a
Innredning fra Sigdal med mørke, profilerte fronter og heltre benkeplate med nedfelt kum. ( 21 av )
4856154_1a
Det er stekeovn, platetopp og oppvaskmaskin integrert i innredningen. ( 22 av )
4856163_1a
( 23 av )
4856145_1a
Badet ble pusset opp i 2020 og fremstår som delikat og moderne. Varme i gulvet. ( 24 av )
4856146_1a
Regnfallsdusj i nisje. Praktiske veggskap til baderomsartiklene. ( 25 av )
4856147_1a
Separat vaskerom med dør ut. Varme i gulvet. ( 26 av )
4856144_1a
Flott gjestetoalett i entreen. Varme i gulvet. ( 27 av )
4856148_1a
Boligen har tre gode soverom, alle med plass til seng, nattbord og garderobeskap. ( 28 av )
4856149_1a
Hovedsoverom med to garderobeskap. ( 29 av )
4856150_1a
Soverom 2 - også med integrert skyvedørsgarderobe. ( 30 av )
4856151_1a
Soverom 2. ( 31 av )
4856152_1a
Soverom 3. ( 32 av )
4856153_1a
Romslig, flislagt gang med skyvedørsgarderobe. ( 33 av )
4856175_1a
( 34 av )
4856174_1a
( 35 av )
4852126_1a
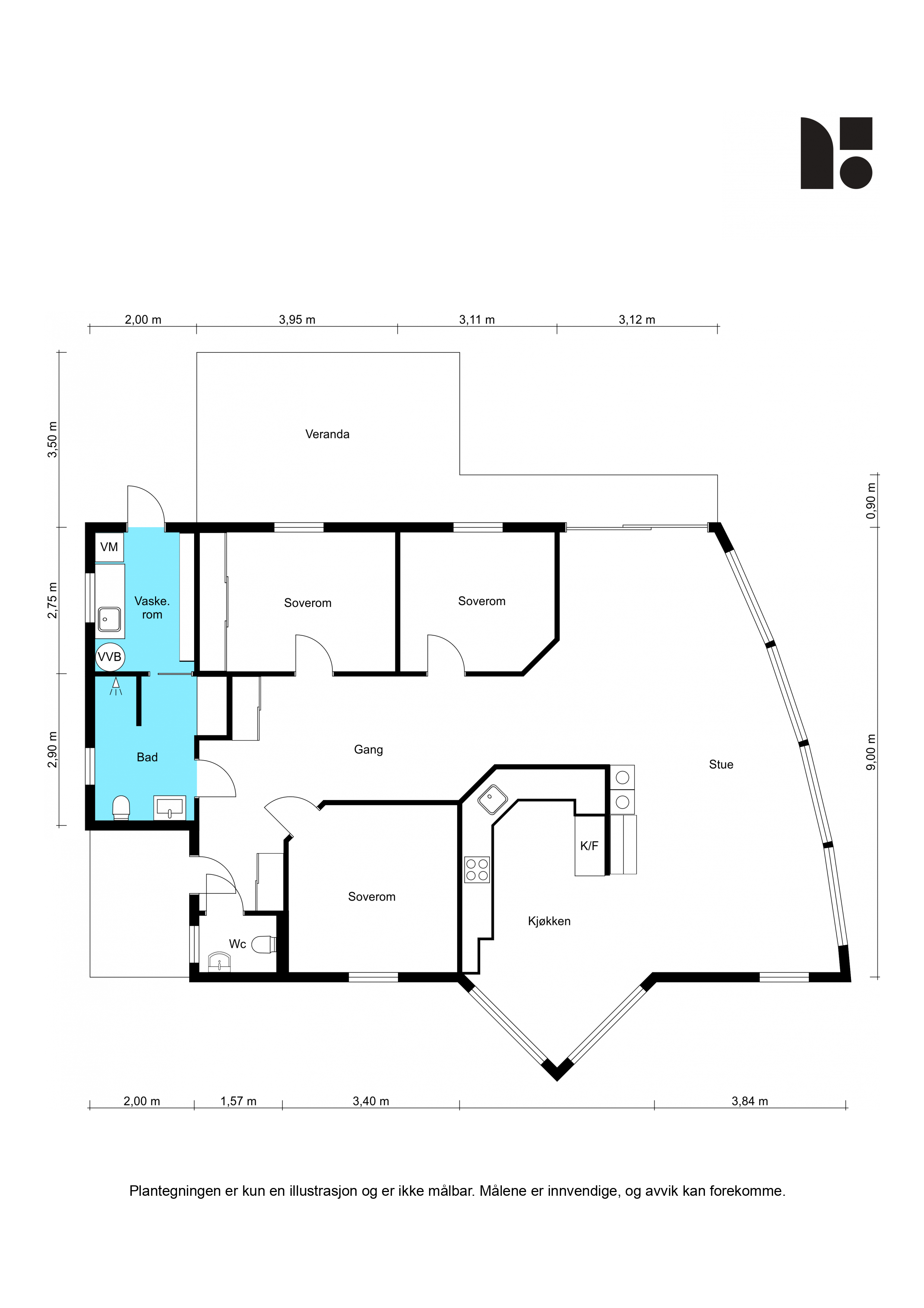
Plantegning. ( 36 av )

Høgda 5B

Se alle bilder (0)
4856162_1a
4856167_1a
4856177_1a
4856176_1a
4856172_1a
4856170_1a
4856171_1a
4856168_1a
4856169_1a
4856173_1a
4856160_1a
4856208_1a
4856156_1a
4856157_1a
4856161_1a
4856158_1a
4856159_1a
4856155_1a
4856165_1a
4856166_1a
4856164_1a
4856154_1a
4856163_1a
4856145_1a
4856146_1a
4856147_1a
4856144_1a
4856148_1a
4856149_1a
4856150_1a
4856151_1a
4856152_1a
4856153_1a
4856175_1a
4856174_1a
4852126_1a

Høgda 5B

Prisantydning:
Fra Kr 7490000,00
til Kr 0,00
Totalpris:
Kr 7681750,00
BRA:
126,00 - 0,00
BRA-i:
126 - 0
Soverom:
3 - 0
Boligtype:
Leilighet
Eierform:
Eiet tomt
Byggeår:
2004
Etasje:
0
Tomteareal:
2896

Særdeles attraktiv bolig på 126m² med alt på ett plan - trappefritt, dobbelgarasje og panoramautsikt. 3 soverom.

Ansvarlig megler:
Ola Skarra Arnesen

Salgsleder / Partner / Eiendomsmegler

Visning

Boligen er solgt og er ikke lengre tilgjengelig for visning. 

Høgda 5B

image005

Nøkkelinformasjon

plus_G_2025

BELIGGENHET

plus_G
minus_G

BESKRIVELSE AV EIENDOMMEN

plus_G
minus_G

OFFENTLIGE FORHOLD

plus_G
minus_G

PRISANTYDNING INKLUDERT OMKOSTNINGER

plus_G
minus_G

SAMEIET/ØKONOMI

plus_G
minus_G

ØVRIGE KJØPSFORHOLD

plus_G
minus_G

Dokumenter

plus_G_2025

Del boligen

facebook-gold
Twitter-gold

Lurer du på noe om denne boligen?

Ta kontakt under via skjemaet.


Relaterte boliger

Amtmand Bangs gate 5
4700000,00  0,00

Amtmand Bangs gate 5

Drammen ­ DRAMMEN
Delikat 3-roms selveier i klassisk og historisk nabolag. Carport med lader. Solrikt fellesareal med hage og terrasse.

Totalpris:

Kr 4831750,00

BRA-i:

76 m²
Strømsø torg 5D
1850000,00  0,00

Strømsø torg 5D

Drammen ­ DRAMMEN
Supersentral 2-roms endeleilighet midt i byen! Rett ved tog, buss og alle servicetilbud. God takhøyde. Fjernvarme inkl.

Totalpris:

Kr 2169902,00

BRA-i:

44 m²
Tangenveien 35
5840000,00  0,00

Tangenveien 35

Drammen ­ SVELVIK
Flott beliggende enebolig på 250 kvm i rolig nabolag. Garasje, carport og fine utearealer. Kjøkken og bad fra 2020/2021.

Totalpris:

Kr 6005250,00

BRA-i:

250 m²
Skippergata 32N
3000000,00  0,00

Skippergata 32N

Drammen ­ DRAMMEN
Hyggelig enebolig over to plan med fjordutsikt, hage og fine utearealer. Garasjeplass. Nye vinduer fra 2022. Oppussing.

Totalpris:

Kr 3413114,00

BRA-i:

75 m²
Bulows vei 10
4950000,00  0,00

Bulows vei 10

Drammen ­ DRAMMEN
Flott beliggende generasjonsbolig med oppussingsbehov. Trippelgarasje. Nydelig utsikt. Rolig blindvei ved skogen.

Totalpris:

Kr 5093000,00

BRA-i:

158 m²
Bragernes Torg 12
3990000,00  0,00

Bragernes Torg 12

Drammen ­ DRAMMEN
Supersentral selveierleilighet på 63 m² på Bragernes Torg. Heis og vestvendt fransk balkong. Fjernvarme inkl. 3 boder.

Totalpris:

Kr 4104000,00

BRA-i:

63 m²
Brenmehls gate 12
4750000,00  0,00

Brenmehls gate 12

Drammen ­ SVELVIK
Frittliggende, oppusset enebolig på 182m² med dobbelgarasje, solrike uteplasser og lettstelt hage. Nytt kjøkken fra 2025

Totalpris:

Kr 4888000,00

BRA-i:

182 m²
Hagatjernveien 8D
3790000,00  0,00

Hagatjernveien 8D

Drammen ­ MJØNDALEN
Nyere 3-roms selveierleilighet fra 2020 vendt mot Consto Arena | Garasje m/lader, heis og vestvendt terrasse | Sentralt!

Totalpris:

Kr 3899000,00

BRA-i:

50 m²
Wærners gate 11Q
4100000,00  0,00

Wærners gate 11Q

Drammen ­ DRAMMEN
Flott rekkehus i sentralt & barnevennlig område | 3 soverom | 2 bad & nyere kjøkken | P-plasser | Gangavstand til skole

Totalpris:

Kr 4344010,00

BRA-i:

147 m²
Oscar Kiærs vei 24
5590000,00  0,00

Oscar Kiærs vei 24

Drammen ­ DRAMMEN
Enebolig over tre plan (200m²) med flott fjordutsikt, stor terrasse og integrert garasje. Kjøkken fra 2015. To innganger

Totalpris:

Kr 5749000,00

BRA-i:

200 m²
Se flere boliger
Bolig til salgs

Inspirasjon

Inspirerende interiørbilder fra norske hjem.
sov1
Soverom
kjo1
Kjøkken
stue
Stue

Boligartikler

Nyttig informasjon, råd og inspirasjon for deg som er opptatt av bolig.
aaletidligute
Aktuelt

Kapret først drømmeboligen, solgte egen bolig få dager senere

Konseptet vårt, Tidlig ute, legger til rette for et stressfritt boligsalg på kundens premisser. Poenget er å være ute i god tid, slik at prosessen...
vo4
Aktuelt

178 dager uten bud; - Proaktiv solgte boligen min etter første visning

Huset i Vestre Olsvikveg hadde mistet alt av moment etter et halvt år ute i markedet. Da Proaktiv ved Jon Kristian Røsok kom inn i bildet ble...
n_r-16
Aktuelt

Drømmer du om å drive ditt eget meglerkontor?

Proaktiv Eiendomsmegling er alltid på utkikk etter flinke folk som ønsker å skape sin egen suksess. Er du en målrettet og verdiskapende megler, med...