Standard
En gjennomgang av boligens rom:
1. etasje:
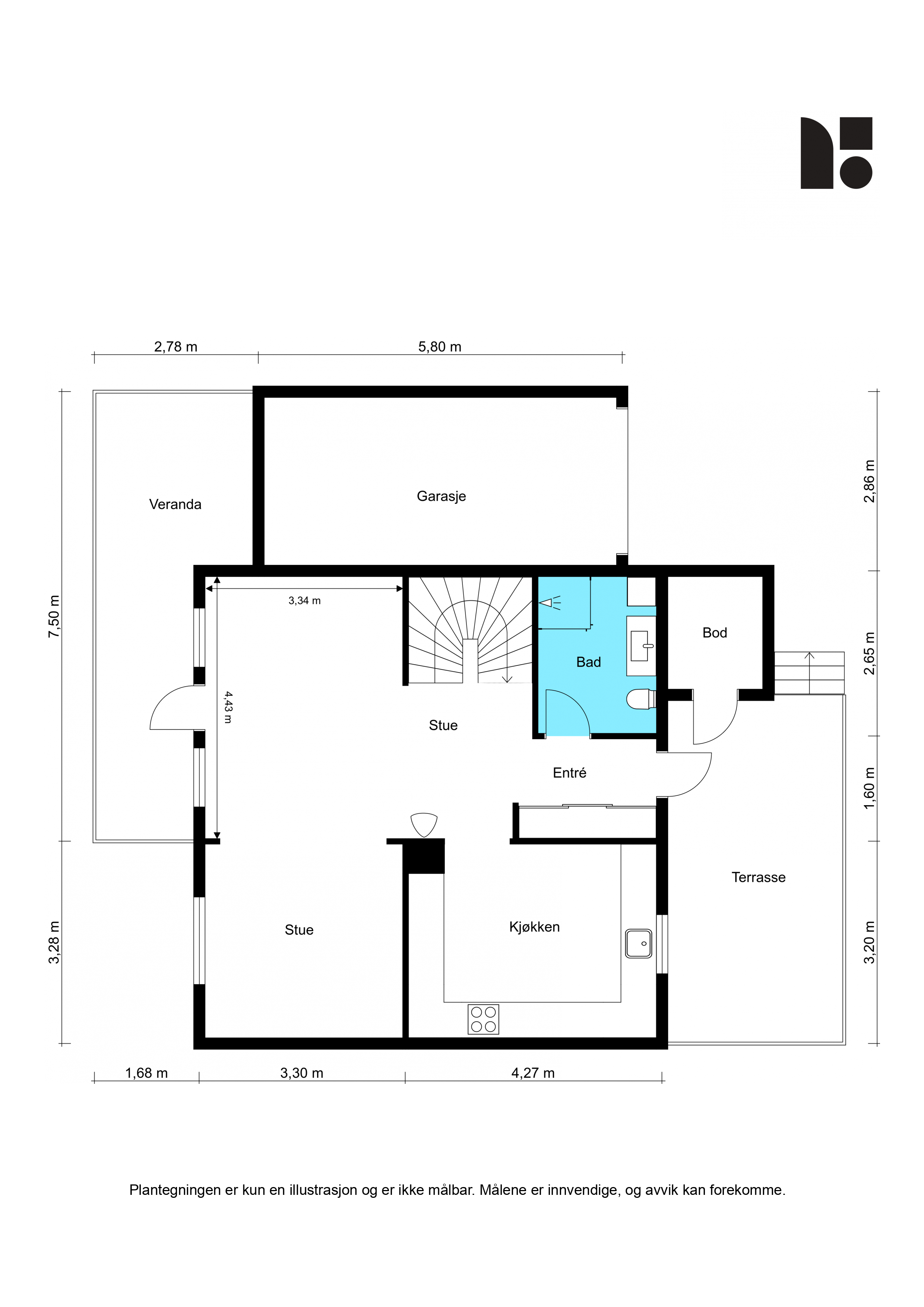
Entré:
Boligen har et hyggelig inngangsparti med tilknyttet terrasse og utebod med lagring for sykler og diverse. 
Ytterdøren har praktisk kodelås. Innenfor døren er det flislagt entré med varmekabler som er malt i mørk 
farge, med downlightsbelysning i taket. Langs veggen er det stor skyvedørsgarderobe med speilfronter, 
hvor du kan lagre familiens yttertøy. Ytterligere oppbevaringsplass i trappegangen.
Bad:
I tilknytning til entreen ligger et fint bad totalrenovert i 2016. Badet har flislagt gulv og vegger, og malt 
himling med dowlights. Badet er innredet med skuffeseksjon og høyskap i samme stil, speilskap med 
tilknyttet lys, dusjkabinett m/regnfallsdusj, og veggmontert toalett. Det er varmekabler i gulvet. 
Kjøkken:
Boligens kjøkken ligger rett innenfor gangen i eget rom, men med delvis åpen løsning mot stuen. 
Kjøkkenet fra 2022 er meget godt utnyttet med rikelig lagringsplass og benkeflate for matlagingen. Det er 
etablert Ikea innredning langs tre vegger, med slette fronter i treutførelse og høyskap i hvitt. Kjøkkenet er 
utstyrt med integrerte hvitevarer som ekstra bred platetopp, mikro og stekeovn i praktisk høyde, kombinert 
kjøl- og fryseskap samt oppvaskmaskin. Det er avtrekk via kjøkkenventilator plassert over kokesonen. 
Naturlig lysinnslipp via vindu over benken, og spotbelysning i taket.
Stue og spisestue:
Videre inn i 1. etasje ligger en stor og luftig stue med god plass til møblering av flere soner. Her er det 
plass til spisestue nærmest kjøkkenet, og eget område med sofakrok og tv. Rommet er malt i lyse farger 
og har slitesterkt laminatgulv. Flott utsikt og masse lysinnslipp fra flere vinduer, samt utgang til veranda. 
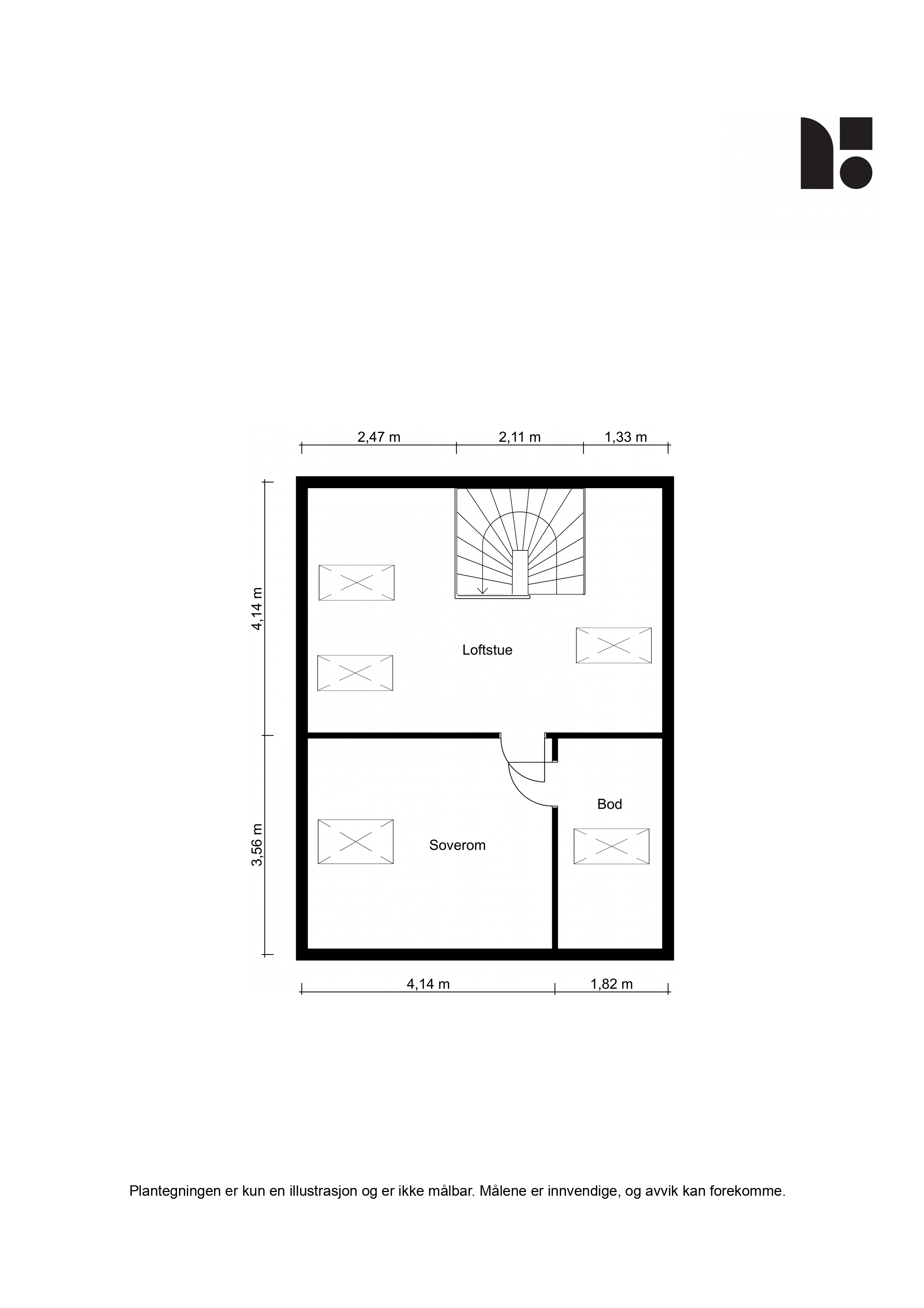
Loft:
Loftet er innredet med ekstra tv-stue og soverom med tilknyttet bod. Det er ikke kjent om loftet er 
bruksendret fra tilleggsdel til hoveddel.
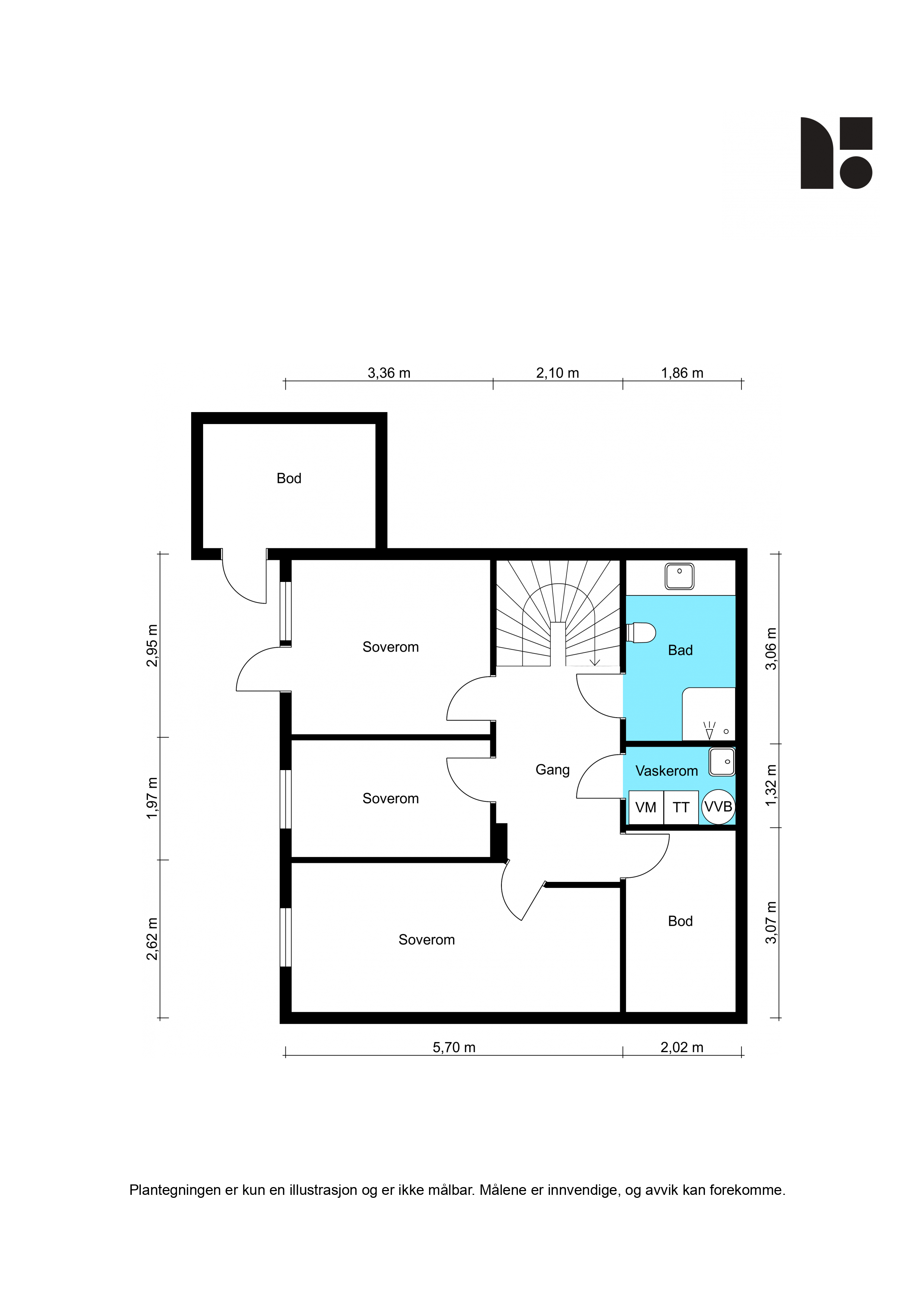
Underetasje:
Bad:
I underetasjen i huset ligger ytterligere ett bad. Badet har flislagte overflater og er utstyrt med flislagt benk 
tilpasset rommet, med skålservant og hyller i glass. Over benken er det innmurt speil. Videre har badet 
gulvmontert wc og dusjhjørne. Det er varmekabler i gulvet. 
Vaskerom/teknisk rom:
Vegg i vegg med badet er det vaskerom/teknisk rom med servantskap og speilskap, varmtvannsbereder 
og opplegg or både vaskemaskin og tørketrommel. Rommet har malte vegger og vinylbelegg på gulvet.  
Soverom:
Boligen har 3 soverom i underetasjen, samt innredet rom på loftet. Alle soverommene har plass til 
nødvendig møblement som seng og nattbord, og rommene er utstyrt med garderobeskap. Ett av 
soverommene har også utgang til terrassen og hagen på baksiden av boligen.
Selger har fått utarbeidet en tilstandsrapport for eiendommen. Rapporten er en teknisk gjennomgang 
av boligen og angir eventuelle byggetekniske avvik.Takstmann har gjennomgått boligen og gjort 
vurderinger på en tilstandsgrad fra 1 til 3. Graderingene er som følger:
Tilstandsgrad 0, TG0: Ingen avvik.
Tilstandsgrad 1, TG1: Mindre avvik.
Tilstandsgrad 2, TG2: Vesentlige avvik og mindre avvik som etter NS 3600 gir TG2. 
Tilstandsgrad 3, TG3: Store eller alvorlige avvik.
TGIU: Ikke tilgjengelig for undersøkelse.
TG3:
- Balkonger, terrasser og rom under balkonger: Rekkverket er lavere enn dagens krav, men tilfredsstiller 
gjeldende krav under byggetidspunktet. Det er slark i rekkverk. Det er visuelt registrert skjevheter i 
konstruksjonen. Det er registrert høy slitasje på konstruksjonen. Det er registrert råteskader i 
konstruksjonen/rekkverk. Kostnadsestimat: 50 000 - 100 000 kr. 
TG2 avvik som kan kreve tiltak:
- Taktekking: Det ble registrert fuktmerker og soppartikler i undertaket inspisert fra ekstern bod. Det er 
registrert mose og begroing på taket. Taktekkingen har nådd en alder der slitasje øker risikoen for 
lekkasjer.
- Nedløp og beslag: Det er ikke montert snøfangere på hele taket, men dette var ikke et krav da boligen 
ble oppført. Beslag, takrenner og nedløp har oppnådd en alder der slitasje kan øke muligheten for 
reparasjoner/utskiftning.
- Veggkonstruksjon: Kledningen har værslitasje inkludert sprekkdannelser. Kledningen er montert tett mot 
beslag. Det ble ikke registrert synlig musesperre ved stikkprøvekontroll. Ved stikkprøvekontroll er det 
registrert manglende luftespalte i nedkant av kledningen. Kledningen er plassert for nær terrenget. Det er 
registrert avflassing i maling på fasaden.
- Takkonstruksjon/loft: Det er synlige sprike gjennom undertak. Spikre gjennom undertak øker faren for 
kondens som igjen kan skape fuktskader/fuktmerker. Det er registrert slitasje på vindskiene. Det er 
registrert symptomer på kondensering i takkonstruksjonen.
- Vinduer: Det er registrert tegn til punkterte isolerglass i form av kondens på utsiden av et takvindu. 
Vinduene har passert mer enn halvparten av forventet levetid og har bruksslitasje.
- Dører: Ytterdør tar i karmen. Balkongdør har passert mer enn halvparten av forventet levetid og har 
bruksslitasje. Det er registrert avvik i den ytre tettingen/vannavledning rundt døren (terrassedør mangler 
beslag under dør).
- Rom Under Terreng: Organiske materialer i konstruksjonen er sårbare for fuktpåkjenninger. Det er viktig 
å merke seg at multimur er kjent for å ha en økt risiko for fuktproblematikk.
- Innvendige trapper: Det er ikke håndløper på begge sider i trappen, som er et forskriftskrav under 
befaringen.
- Innvedige dører: Det er registrert at enkelte dører tar i karmen. Slitasje/bruksmerker på enkelte dører.
- Bad u.etg - overflater vegger og himling: Konstruksjonen har passert halvparten av forventet levetid og 
har bruksslitasje. Glassbyggersten er plassert i våt sone uten vanntett overgang mot membran.
- Bad u.etg - overflater gulv: Det er registrert bom i fliser (hulrom mellom flis og fliselim). Høydeforskjell 
mellom topp slukrist og overkant gulv ved døren er lavere enn 25 mm. Fallet mot sluket er ikke 
tilfredsstillende. Konstruksjonen har passert halvparten av forventet levetid og har bruksslitasje.
- Bad u.etg- sluk, membran og tettesjikt: Sluket fremstår eldre og ikke dokumentert som kompatibelt med 
eventuelt "nyere" membran. Membranen kan ikke konstateres visuelt, og det foreligger ikke 
dokumentasjon. Det er mangelfull/feil utførelse ved glassbyggerstein. Membranen har passert halvparten 
av forventet levetid. Sluket har oppnådd mer enn halvparten av forventet levetid.
- Bad u.etg - anitærutstyr og innredning: Armaturer har passert halvparten av forventet levetid.
- Vaskerom/teknisk rom - overflater vegger og himling: Konstruksjonen har passert halvparten av forventet 
levetid og har bruksslitasje. Det er en veggåpning under servantmøbel uten vanntett overgang mot 
membran.
- Vaskerom/teknisk rom - overflater gulv: Konstruksjonen har passert halvparten av forventet levetid og har 
bruksslitasje.
- Vaskerom/teknisk rom - sluk, membran og tettesjikt: Sluket har oppnådd mer enn halvparten av forventet 
levetid. Membranen har passert forventet levetid.
- Vaskerom/teknisk rom - sanitærutstyr og innredning: Det er registrert svelling i baderomsinnredningen. 
Armaturer har passert halvparten av forventet levetid.
- Bad 1.etg - overflater gulv: Fallet mot sluket er ikke tilfredsstillende.
- Vannledninger: Normal levetid for plastrør er 25 - 50 år. Det er registrert korrosjon på kobberrør i 
underetasjen. Kobberrør har passert halvparten av forventet levetid. Det mangler automatisk 
lekkasjestopper i kjøkkenet.
- Avløpsrør: Rørene har passert halvparten av forventet levetid.
- Varmesentral: Det mangler dokumentasjon på faglig utførelse. Ingen dokumentasjon på service eller 
inspeksjon de siste to årene. Varmepumpen har passert halvparten av forventet levetid (12 - 15 år for 
luft-til-luft).
- Elektrisk anlegg: På grunn av manglende lovpålagt samsvarserklæring på nyere automater i skapet, og 
det faktum at det ikke har vært tilsyn ila de fem siste årene, bør en el-takstmann kontaktes for en utvidet 
el-kontroll av det elektriske anlegget slik at eventuelle avvik og tiltak kan kartlegges.
- Fuktsikring og drenering: Eventuell drenering skjult i bakken har oppnådd mer enn halvparten av 
forventet levetid. Grunnmursplaten er avsluttet høyere enn terrenget.
- Grunnmur og fundamenter: Boligen er oppført med multimur, en grunnmur av betong med 
gips-/treinnslag og polyuretan-isolasjon i kjernen. Den organiske kjernen sammen med betong gir økt 
mulighet for skjulte fukt-, muggog råteskader hvis betongen sprekker eller fuktsperren svikter.
- Terrengforhold: Terrenget har ikke tilfredstillende fall fra grunnmuren (mindre enn ca. 1:50 over 3 m).