4784516_1a
Vardestubben 2 presentert av Proaktiv Eiendomsmegling v. Kay Stian Espeland. ( 1 av )
4784500_1a
Det er store vindusflater i stuen som sikrer rikelig med naturlig lys og en god atmosfære. ( 2 av )
4784492_1a
Collage. ( 3 av )
4784526_1a
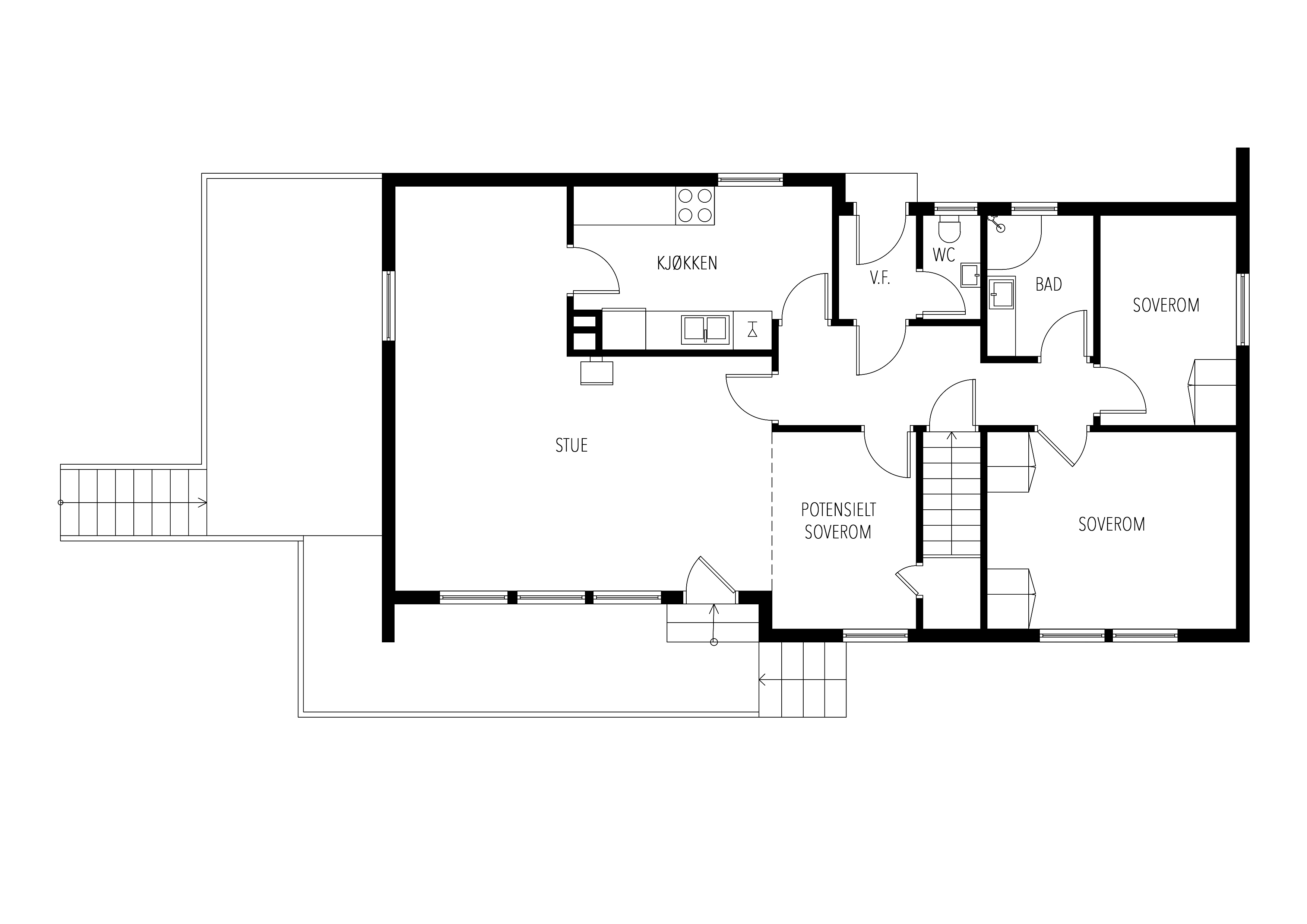
Plantegning 1.etasje. ( 4 av )
4784504_1a
Inngang i første etasje. Her har man også enkel tilgang til et praktisk gjestetoalett. ( 5 av )
4784501_1a
Planløsningen i første etasje er god, og det er også enkel mulighet for å få inn et ekstra soverom i etasjen. ( 6 av )
4784503_1a
I enden av rommet her, var det tredje soverommet originalt. ( 7 av )
4784514_1a
Fra stuen har man utgang til en terrasse som strekker seg fra sør-øst siden av huset til sør-vest. ( 8 av )
4784515_1a
Det er også en stor hage med masse plass å boltre seg på. ( 9 av )
4784499_1a
Stuen er enkel å innrede og man har god plass til både spisebord, sofa-krok og annet ønsket møblement. ( 10 av )
4784502_1a
Fin vedovn til kaldevintersdager. ( 11 av )
4784497_1a
Kjøkkenet er av god størrelse med nok av skap- og bankeplass. ( 12 av )
4784498_1a
Det er også plass til et koselig lite spisebord med dagens løsning. ( 13 av )
4784493_1a
Hovedsoverommet er av god størrelse med plass til dobbeltseng, garderobeløsning og nattbord. ( 14 av )
4784494_1a
( 15 av )
4784495_1a
Det andre rommmet er er noe mindre, men fungerer fint som et barnerom eller gjesterom/ kontor. ( 16 av )
4784496_1a
Bad i hovedetasjen. ( 17 av )
4784527_1a
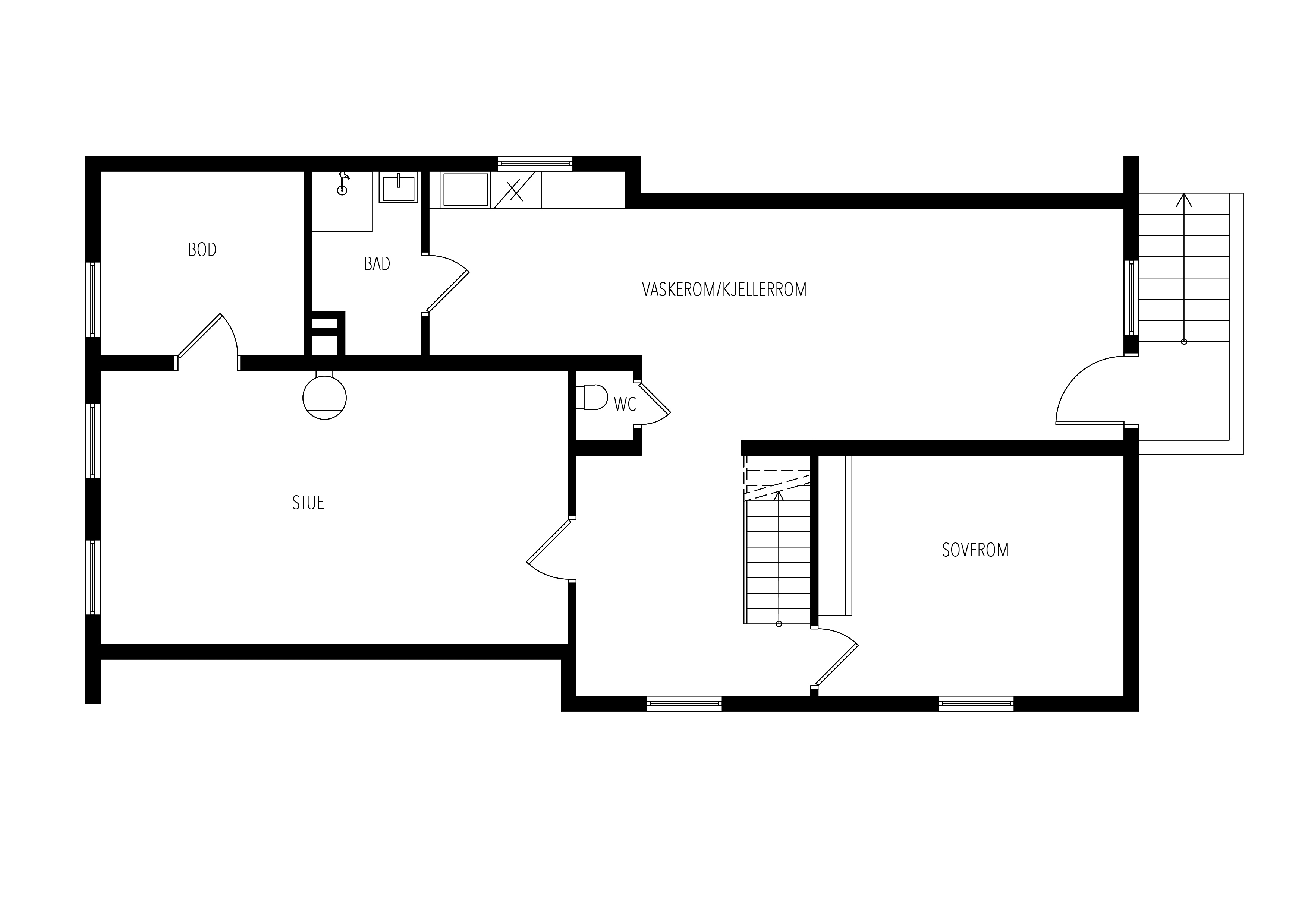
Plantegning kjeller. ( 18 av )
4784509_1a
Kjelleren er delvis innrerdet, men det er ikke byggesøkt. Kjellerenstuen og soverommet nede er dermed ikke godkjent til rom for varig opphold. ( 19 av )
4784506_1a
Kjellerstue (ikke godkjent). ( 20 av )
4784507_1a
( 21 av )
4784505_1a
Soverom av god størrelse (ikke godkjent). ( 22 av )
4784510_1a
Bad i kjeller. ( 23 av )
4784508_1a
Vaskerom/ kjellerrom. ( 24 av )
4784511_1a
Inngangsparti. ( 25 av )
4784512_1a
Innkjørsel og garasje. ( 26 av )
4784513_1a
( 27 av )
4784517_1a
Nærområde. ( 28 av )
4784518_1a
Nærområde. ( 29 av )
4784519_1a
Nærområde. ( 30 av )
4784520_1a
Nærområde. ( 31 av )
4784521_1a
Nærområde. ( 32 av )
4784522_1a
Nærområde. ( 33 av )
4784523_1a
Nærområde. ( 34 av )
4784524_1a
Nærområde. ( 35 av )
4784525_1a
Nærområde. ( 36 av )

Vardestubben 2

Se alle bilder (0)
4784516_1a
4784500_1a
4784492_1a
4784526_1a
4784504_1a
4784501_1a
4784503_1a
4784514_1a
4784515_1a
4784499_1a
4784502_1a
4784497_1a
4784498_1a
4784493_1a
4784494_1a
4784495_1a
4784496_1a
4784527_1a
4784509_1a
4784506_1a
4784507_1a
4784505_1a
4784510_1a
4784508_1a
4784511_1a
4784512_1a
4784513_1a
4784517_1a
4784518_1a
4784519_1a
4784520_1a
4784521_1a
4784522_1a
4784523_1a
4784524_1a
4784525_1a

Vardestubben 2

Prisantydning:
Fra Kr 5500000,00
til Kr 0,00
Totalpris:
Kr 5655750,00
BRA:
169,00 - 0,00
BRA-i:
169 - 0
Soverom:
2 - 0
Boligtype:
Enebolig
Eierform:
Eiet tomt
Byggeår:
1967
Etasje:
0
Tomteareal:
934

Enebolig med stor og solrik tomt. Sentral beliggenhet. Barnevennlig.

Ansvarlig megler:
Kay Stian Espeland

Daglig leder/Megler

Visning

Boligen er solgt og er ikke lengre tilgjengelig for visning. 

Vardestubben 2

image005

Nøkkelinformasjon

plus_G_2025

BELIGGENHET

plus_G
minus_G

BESKRIVELSE AV EIENDOMMEN

plus_G
minus_G

OFFENTLIGE FORHOLD

plus_G
minus_G

PRISANTYDNING INKLUDERT OMKOSTNINGER

plus_G
minus_G

ØVRIGE KJØPSFORHOLD

plus_G
minus_G

Dokumenter

plus_G_2025

Del boligen

facebook-gold
Twitter-gold

Lurer du på noe om denne boligen?

Ta kontakt under via skjemaet.


Relaterte boliger

Havbris 25
5790000,00  0,00

Havbris 25

Sola ­ TANANGER
Rekkehus i ende med bra standard og god planløsning - Flott sjøutsikt og solrikt uteområde - Parkering.

Totalpris:

Kr 5954000,00

BRA-i:

108 m²
Se flere boliger
Bolig til salgs

Inspirasjon

Inspirerende interiørbilder fra norske hjem.
sov1
Soverom
kjo1
Kjøkken
stue
Stue

Boligartikler

Nyttig informasjon, råd og inspirasjon for deg som er opptatt av bolig.
ole4
Aktuelt

Bygget i 2021. Solgt for 2,5 millioner mer i 2025

Boligen i Ole I. Bores veg ble solgt for én million over prisantydning etter å ha ligget ute i markedet i kun en uke.
sk3

Proaktiv overtok oppdrag i Oslo; Solgte for 1,2 millioner mer enn opprinnelig pris

Da Caroline Ringså Ask tok over oppdraget i Skøyensvingen gjorde hun det hun pleier å gjøre – ta kontroll, tenke og handle annerledes.
artikkelaug

Bolighøsten har startet; august vil gi oss mange svar

Rentesnakk, Trump og toll og regionale ubalanser i tilbud og etterspørsel.