4776209_1a
Velkommen til Heggdalsringen 47! ( 1 av )
4776208_1a
Denne flotte eneboligen ligger i et populært og familievennlig boområde, med gangavstand til barnehage, barne- og ungdomsskole. ( 2 av )
4776216_1a
Boligen har en flott tomt på 512 kvm, med solrik hage og pene utearealer. ( 3 av )
4776215_1a
Markterrassen måler 37 kvm og vender mot sørvest for optimale solforhold. ( 4 av )
4776212_1a
Her kan man enkelt møblere med ønsket utemøblement. ( 5 av )
4776210_1a
( 6 av )
4776220_1a
Eiendommen ligger på en høyde, slik at man har flott uhindret utsikt rett fra hagen. ( 7 av )
4776211_1a
( 8 av )
4776213_1a
Terrassen strekker seg rundt til østsiden av boligen mot inngangspartiet. ( 9 av )
4776214_1a
( 10 av )
4776225_1a
Eiendommen har en vakker brosteinsbelagt gårdsplass. ( 11 av )
4776226_1a
( 12 av )
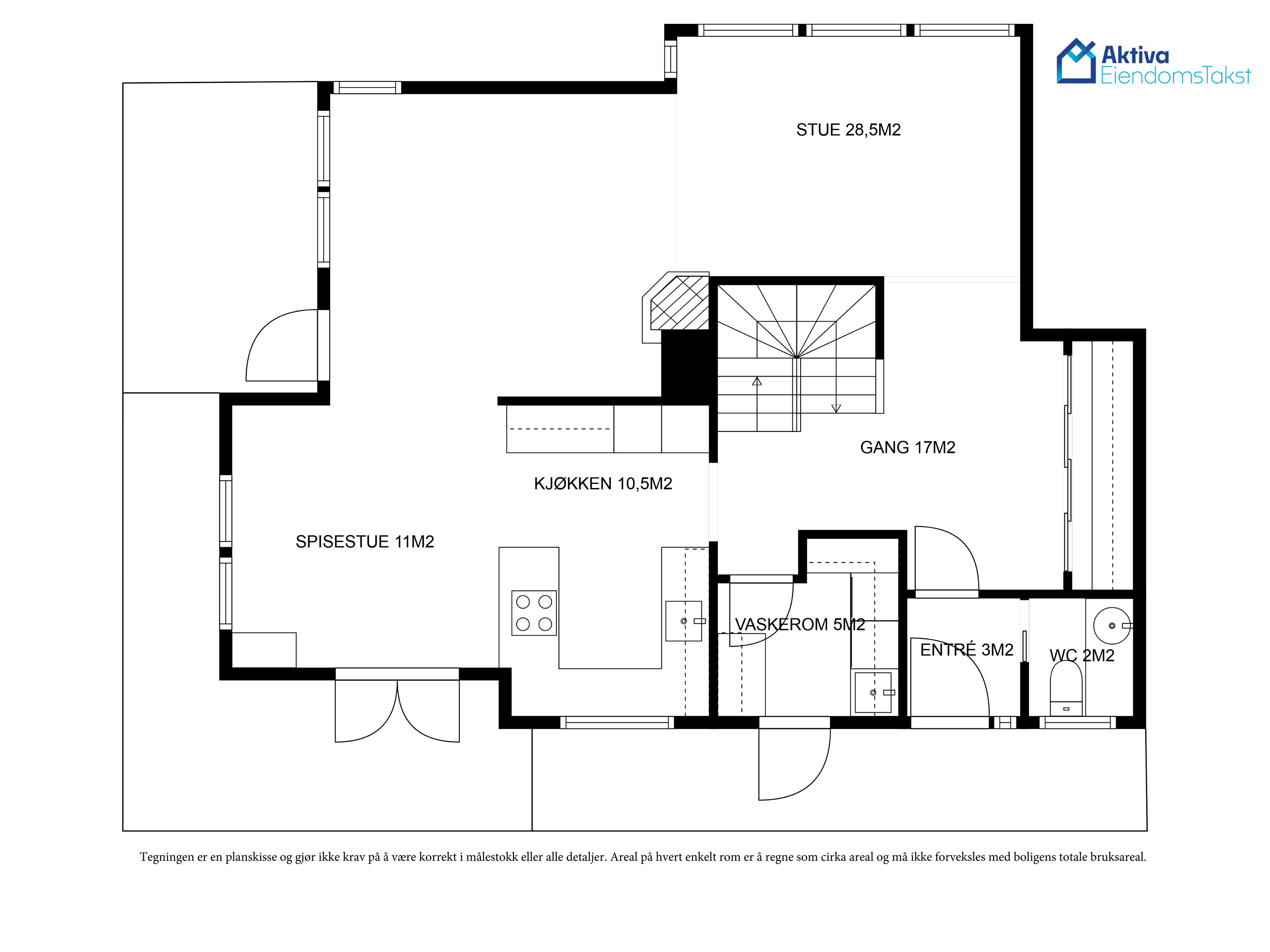
4783117_1a
Planskisse første etasje. ( 13 av )
4781893_1a
Inn inngangsdøren har man et lite vindfang før man kommer inn i gangen på 17 kvm. ( 14 av )
4781866_1a
I gangen har man en stor skyvedørsgarderobe med god plass til oppbevaring av alt av sko og yttertøy. ( 15 av )
4781878_1a
Lys og flott stue på 28,5 kvm. ( 16 av )
4781877_1a
Her kan man enkelt møblere etter eget ønske med blant annet sofa/sittegruppe og tilhørende mediemøblement. ( 17 av )
4781875_1a
Stuen er innredet med peis for ekstra varme og hygge på mørke vinterkvelder. ( 18 av )
4781876_1a
( 19 av )
4781886_1a
Rommets store vindusflater sørger for rikelig med lysinnslipp, og gir en flott romfølelse. ( 20 av )
4781872_1a
Spisestuen på 11 kvm har god plass til 8+ middagsgjester. ( 21 av )
4776221_1a
Herfra kan man også nyte den vakre utsikten. ( 22 av )
4781873_1a
( 23 av )
4781883_1a
( 24 av )
4781874_1a
( 25 av )
4781871_1a
Boligen har et lekkert åpent kjøkken med flott utsikt mot spisestuen og hagen. ( 26 av )
4781882_1a
Kjøkkenet måler 11,5 kvm og er nytt av 2018. ( 27 av )
4781867_1a
( 28 av )
4781870_1a
Kjøkkeninnredningen byr på store arbeidsflater og rikelig med oppbevaringsplass. ( 29 av )
4781868_1a
Kjøkkenet er også utstyrt med integrerte hvitevarer som medfølger i handelen. ( 30 av )
4781869_1a
Herfra har kokken god oversikt. ( 31 av )
4781894_1a
I første etasje finner vi et praktisk vaskerom på 5 kvm med opplegg for vaskemaskin og tørketrommel. ( 32 av )
4781896_1a
Ved vaskerommet er det også et eget toalettrom på 2 kvm. ( 33 av )
4783118_1a
Planskisse andre etasje. ( 34 av )
4781863_1a
I andre etasje finner vi de to soverommene i hoveddelen. ( 35 av )
4781865_1a
Rommet er innredet med en plassbygd skyvedørsgarderobe. ( 36 av )
4781864_1a
Hovedsoverommet måler hele 31 kvm og har store vindu mot sør. ( 37 av )
4776224_1a
Rommet har en egen balkong på 4 kvm. ( 38 av )
4776222_1a
Herfra har man full oversikt over hagen, og kan nyte den samme flotte utsikten. ( 39 av )
4781858_1a
Soverom nummer to måler 24,4 kvm. ( 40 av )
4781859_1a
Rommet er innredet med en stor garderobe. I tillegg finner man en bod/garderobe på 6,8 kvm mellom de to soverommene. ( 41 av )
4781860_1a
Badet i andre etasje er pusset opp i 2019 og fremstår som svært stilrent og moderne. ( 42 av )
4781861_1a
Baderommet måler romslige 15 kvm. ( 43 av )
4783116_1a
Planskisse kjelleretasje. ( 44 av )
4781857_1a
Ned trappen til kjelleretasjen har man en gang på 20 kvm med adkomst til alle deler av kjelleretasjen. ( 45 av )
4781852_1a
Boligen har en stor kjellerstue på 29 kvm. ( 46 av )
4781854_1a
Rommet har mange potensielle bruksområder, for eksempel som TV-stue, hobbyrom eller ekstra soverom. ( 47 av )
4781853_1a
( 48 av )
4781849_1a
Badet i kjelleretasjen måler 5 kvm. ( 49 av )
4781856_1a
Bod/teknisk rom på 11,6 kvm. ( 50 av )
4781851_1a
Boligen har svært god lagringsplass i kjelleretasjen med totalt 6 boder på til sammen 42,2 kvm. ( 51 av )
4781855_1a
En av bodene benyttes i dag som trimrom. ( 52 av )
4783120_1a
Planskisse utleiedel. ( 53 av )
4781901_1a
I første etasje har man en egen separat utleiedel med eget inngangsparti, og leieinntekter på kr 12 000,- per måned. ( 54 av )
4781900_1a
Utleiedelen måler totalt ca. 30 kvm. ( 55 av )
4781899_1a
Soverommet i utleiedelen måler 6,7 kvm og kan enkelt innredes med seng og garderobeskap. ( 56 av )
4781897_1a
Badet i utleiedelen på 3,7 kvm med opplegg for både vaskemaskin og tørketrommel. ( 57 av )
4776207_1a
Boligen har også egen frittstående garasje på 21 kvm. ( 58 av )
4776206_1a
På Steinan har man alt man behøver i hverdagen i nærområdet, med flere dagligvarebutikker, apotek, frisør, bibliotek, bensinstasjon og diverse spisesteder innen gangavstand. ( 59 av )
4776202_1a
Boligfeltet har egen velforening og felles lekeplass like utenfor inngangsdøren. ( 60 av )
4776203_1a
Området har et godt utviklet veinett for både myke og harde trafikkanter, med kort og trygg skolevei for barna. ( 61 av )
4776204_1a
Velkommen på visning! ( 62 av )

Heggdalsringen 47

Se alle bilder (0)
4776209_1a
4776208_1a
4776216_1a
4776215_1a
4776212_1a
4776210_1a
4776220_1a
4776211_1a
4776213_1a
4776214_1a
4776225_1a
4776226_1a
4783117_1a
4781893_1a
4781866_1a
4781878_1a
4781877_1a
4781875_1a
4781876_1a
4781886_1a
4781872_1a
4776221_1a
4781873_1a
4781883_1a
4781874_1a
4781871_1a
4781882_1a
4781867_1a
4781870_1a
4781868_1a
4781869_1a
4781894_1a
4781896_1a
4783118_1a
4781863_1a
4781865_1a
4781864_1a
4776224_1a
4776222_1a
4781858_1a
4781859_1a
4781860_1a
4781861_1a
4783116_1a
4781857_1a
4781852_1a
4781854_1a
4781853_1a
4781849_1a
4781856_1a
4781851_1a
4781855_1a
4783120_1a
4781901_1a
4781900_1a
4781899_1a
4781897_1a
4776207_1a
4776206_1a
4776202_1a
4776203_1a
4776204_1a

Heggdalsringen 47

Prisantydning:
Fra Kr 12000000,00
til Kr 0,00
Totalpris:
Kr 12325250,00
BRA:
294,00 - 0,00
BRA-i:
273 - 0
Soverom:
3 - 0
Boligtype:
Enebolig
Eierform:
Eiet tomt
Byggeår:
1998
Etasje:
0
Tomteareal:
512

Innholdsrik enebolig med nydelig beliggenhet. Solrik tomt med utsikt. Kjøkken 2018. Bad 2019. Separat utleiedel. Garasje

Visning

Boligen er solgt og er ikke lengre tilgjengelig for visning. 

Heggdalsringen 47

image005

Nøkkelinformasjon

plus_G_2025

BELIGGENHET

plus_G
minus_G

BESKRIVELSE AV EIENDOMMEN

plus_G
minus_G

OFFENTLIGE FORHOLD

plus_G
minus_G

PRISANTYDNING INKLUDERT OMKOSTNINGER

plus_G
minus_G

ØVRIGE KJØPSFORHOLD

plus_G
minus_G

Dokumenter

plus_G_2025

Del boligen

facebook-gold
Twitter-gold

Lurer du på noe om denne boligen?

Ta kontakt under via skjemaet.


Relaterte boliger

Ringvålvegen 10
9500000,00  0,00

Ringvålvegen 10

Trondheim ­ Heimdal
Næringseiendom (374 kvm BRA) m/gode leieinntekter (50.000,-/mnd*). Godt vedlikeholdt bygningsmasse. Rikelig m/p-plasser

Areal (BTA):

374,00
Biskop Sigurds gate 6B
3250000,00  0,00

Biskop Sigurds gate 6B

Trondheim ­ Trondheim
Sentral & tiltalende 2-roms selveier. Tidløst baderom fra 2021 og innholdsrikt kjøkken. Lys og romslig. Nærhet til "alt"

Totalpris:

Kr 3345240,00

BRA-i:

49 m²
Marie Sørdals veg 11E
3690000,00  0,00

Marie Sørdals veg 11E

Trondheim ­ Trondheim
VISNING 16.12: Familierekkehus med 3 soverom. 2 bad/vaskerom med gulvvarme & wc. 2 solrike uteplasser. Oppvarmet garasje

Totalpris:

Kr 3848006,00

BRA-i:

110 m²
Lade alle 156
3450000,00  0,00

Lade alle 156

Trondheim ­ TRONDHEIM
Lys og moderne 2-roms leilighet fra 2024 - perfekt for førstegangskjøperen! Balkong, fjernvarme, intern og ekstern bod.

Totalpris:

Kr 3550240,00

BRA-i:

37 m²
Myrmannsvegen 16
2990000,00  0,00

Myrmannsvegen 16

Trondheim ­ HEIMDAL
Lys og romslig 3(4)-roms leilighet med balkong i et barnevennlig boområde. Eget vaskerom. 3 boder. P-plass. Nær Bymarka.

Totalpris:

Kr 3065257,00

BRA-i:

90 m²
Nardoskrenten 5B
10975000,00  0,00

Nardoskrenten 5B

Trondheim ­ Trondheim
VISNING 17.12: Enebolig fra 2023 med høy standard. Hybelutleie i sokkel. Carport og solrik takterrasse.

Totalpris:

Kr 11270865,00

P-rom:

175,00 m²
Lillian Byes veg 115
3380000,00  0,00

Lillian Byes veg 115

Trondheim ­ TRONDHEIM
VISNING 16.12: Svært familievennlig enderekkehus. Egen romslig takterrasse. Carport. 4 soverom.IN ordning på fellesgjeld

Totalpris:

Kr 5097537,00

BRA-i:

139 m²
Kirkegata 12C
2990000,00  0,00

Kirkegata 12C

Trondheim ­ TRONDHEIM
2-ROMS SELVEIERLEILIGHET FRA 2003. LAVE FELLESKOSTNADER. Rolig og skjermet bakgård. Balkong. Gangavstand til alt

Totalpris:

Kr 3077740,00

BRA-i:

45 m²
Hoeggvegen 45A
5200000,00  0,00

Hoeggvegen 45A

Trondheim ­ TRONDHEIM
Enebolig over 2 plan i attraktiv gate. Solrike uteområder og skjermet hage. Modernisering/oppussing må påregnes.

Totalpris:

Kr 5350250,00

BRA-i:

160 m²
2550000,00  0,00

Anne Martha Kvams veg 9

Trondheim ­ Trondheim
Lys og delikat 2-roms selveierleilighet i 3. etasje. TG0/TG1 på alt. Stor & solrik balkong. Lave fellesutgifter. P-plass

Totalpris:

Kr 2625000,00

BRA-i:

38 m²
Se flere boliger
Bolig til salgs

Inspirasjon

Inspirerende interiørbilder fra norske hjem.
sov1
Soverom
kjo1
Kjøkken
stue
Stue

Boligartikler

Nyttig informasjon, råd og inspirasjon for deg som er opptatt av bolig.
aaletidligute
Aktuelt

Kapret først drømmeboligen, solgte egen bolig få dager senere

Konseptet vårt, Tidlig ute, legger til rette for et stressfritt boligsalg på kundens premisser. Poenget er å være ute i god tid, slik at prosessen...
vo4
Aktuelt

178 dager uten bud; - Proaktiv solgte boligen min etter første visning

Huset i Vestre Olsvikveg hadde mistet alt av moment etter et halvt år ute i markedet. Da Proaktiv ved Jon Kristian Røsok kom inn i bildet ble...
n_r-16
Aktuelt

Drømmer du om å drive ditt eget meglerkontor?

Proaktiv Eiendomsmegling er alltid på utkikk etter flinke folk som ønsker å skape sin egen suksess. Er du en målrettet og verdiskapende megler, med...