4855967_1a
Innbydende og delikat leilighet med 2 soverom. ( 1 av )
4855933_1a
Boligen inneholder vindfang, romslig stue med åpen løsning mot kjøkken og utgang til herlig terrasse. 2 gode soverom med plass til dobbeltseng og garderobe, bad med opplegg for vaskemaskin og en innvendig bod ( 2 av )
4855954_1a
Flott bad med baderomsinnredning og dusjvegger av nyere dato. ( 3 av )
4855936_1a
Den ligger i 1. etasje og har en terrasse på hele 24 m2. ( 4 av )
4855957_1a
Velkommen inn. ( 5 av )
4855968_1a
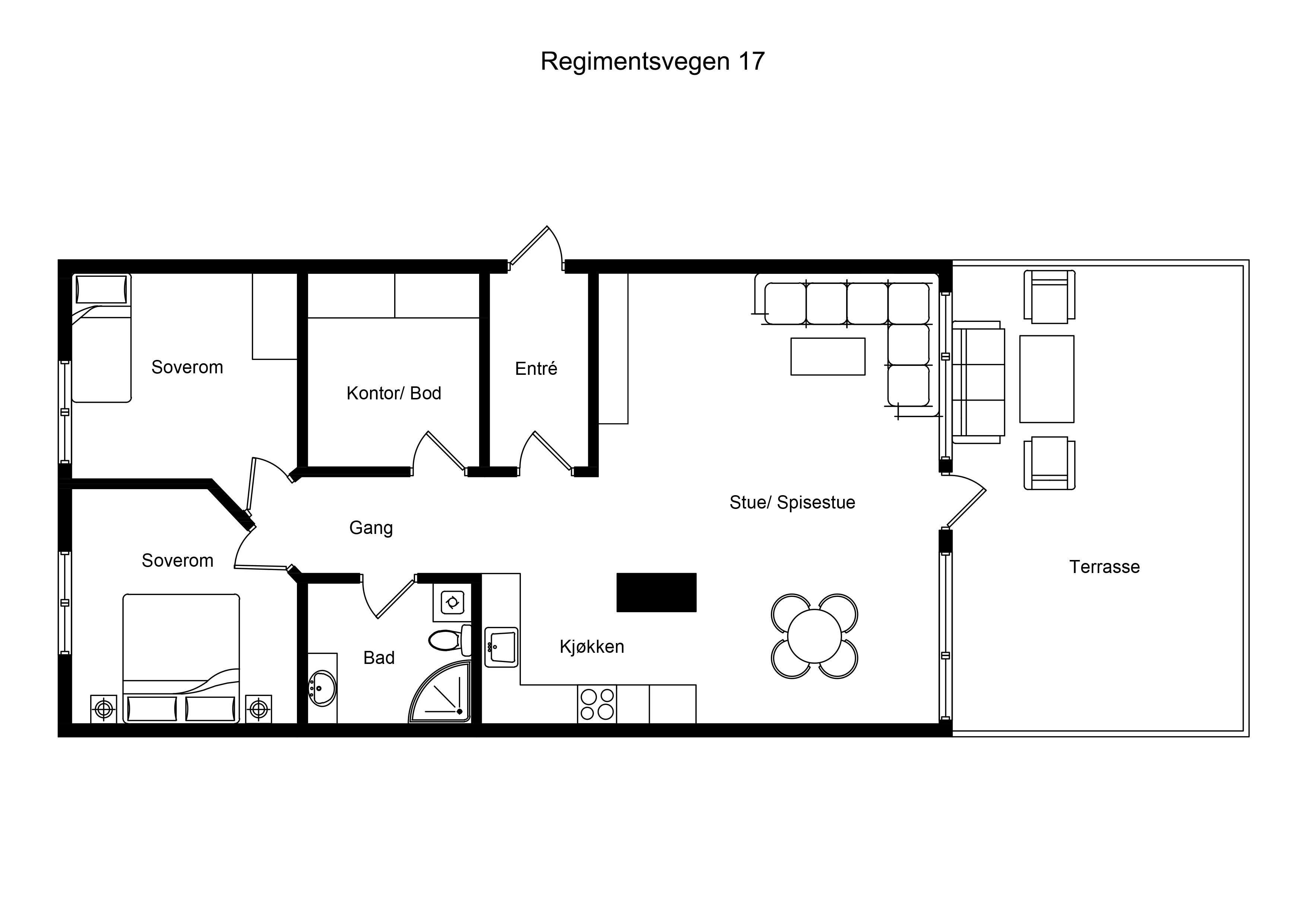
Her kan du sette deg inn i planløsningen til leiligheten. ( 6 av )
4855937_1a
Romslig stue med god plass for møblering. ( 7 av )
4855928_1a
Kjøkken i åpen løsning med stuen. ( 8 av )
4855929_1a
De store vinduene i front gjør stuen ekstra lys og trivelig. ( 9 av )
4855965_1a
Så var det den store terrrassen med utgang fra stuen. ( 10 av )
4855947_1a
Godt med skapplass på kjøkkenet. ( 11 av )
4855935_1a
Alle veggene er malt i 2022. ( 12 av )
4855931_1a
Kjøkkeneter fra 2016. ( 13 av )
4855934_1a
Spisestue ( 14 av )
4855932_1a
Her ble platetopp byttet og vegg under overskap med ny kontaktplass i 2022. ( 15 av )
4855946_1a
Flotte og moderne fargevalg i hele leiligheta. ( 16 av )
4855969_1a
Alle vegger er malt og alle gulv bort sett fra på bad er skiftet i 2022. ( 17 av )
4855959_1a
Det er varmekabler i vindfang, stue og kjøkken, bad og delvis i innergangen. ( 18 av )
4855973_1a
Plassen rundt spisebordet er romslig. ( 19 av )
4855974_1a
Bad og soverom er i andre enden av leiigheten. ( 20 av )
4855940_1a
Ny baderomsinnredning i 2022. ( 21 av )
4855952_1a
Innredningen er toppet med et rundt speil over servanten med innebygget lys. ( 22 av )
4855972_1a
Det er lyse fliser på gulv og vegger. ( 23 av )
4855945_1a
Opplegg for vaskemaskin på badet. ( 24 av )
4855960_1a
2 gode soverom i leiligheten. ( 25 av )
4855953_1a
God plass til en dobbeltseng på 1,80. ( 26 av )
4855970_1a
Smakfulle farger på soverommene. ( 27 av )
4855949_1a
Soverom 2. ( 28 av )
4855951_1a
Det er plass til dobbeltseng også på dette rommet. ( 29 av )
4855948_1a
( 30 av )
4855971_1a
( 31 av )
4855944_1a
Stor bod der det er satt inn praktiske skap. ( 32 av )
4855958_1a
Leiligheten ligger solrikt til. ( 33 av )
4855963_1a
Terrassen er overbygd og du kan sitte ute selv om det duskregner. ( 34 av )
4855966_1a
Parkering i carport og godt med gjesteparkering. ( 35 av )
4855956_1a
Sportsbod i carporten. ( 36 av )
4855927_1a
( 37 av )
4855930_1a
Bernvennlig med lekeplass i nærheten. ( 38 av )
4855961_1a
Eiendommen ligger fint til i regulert område på Tvildemoen med god utsikt og meget god solgang. ( 39 av )
4855962_1a
Boligområdet ligger barnevennlig og skjermet til med gangavstand til Vangen. ( 40 av )
4855964_1a
Ved å dekke inn fellesgjelden vil felleskostnader bare bli 3.209,-. ( 41 av )

Regimentsvegen 17

Se alle bilder (0)
4855967_1a
4855933_1a
4855954_1a
4855936_1a
4855957_1a
4855968_1a
4855937_1a
4855928_1a
4855929_1a
4855965_1a
4855947_1a
4855935_1a
4855931_1a
4855934_1a
4855932_1a
4855946_1a
4855969_1a
4855959_1a
4855973_1a
4855974_1a
4855940_1a
4855952_1a
4855972_1a
4855945_1a
4855960_1a
4855953_1a
4855970_1a
4855949_1a
4855951_1a
4855948_1a
4855971_1a
4855944_1a
4855958_1a
4855963_1a
4855966_1a
4855956_1a
4855927_1a
4855930_1a
4855961_1a
4855962_1a
4855964_1a

Regimentsvegen 17

Prisantydning:
Fra Kr 3100000,00
til Kr 0,00
Totalpris:
Kr 3992108,00
BRA:
71,00 - 0,00
BRA-i:
71 - 0
Soverom:
2 - 0
Boligtype:
Leilighet
Eierform:
Eiet tomt
Byggeår:
2009
Etasje:
1
Tomteareal:
0

Innbydende og delikat 3-roms leilighet på Tvildemoen med trappefri adkomst, carport og gangavstand til sentrum.

Ansvarlig megler:
Sirianne Voie Brochmann

Eiendomsmegler MNEF

Visning

Boligen er solgt og er ikke lengre tilgjengelig for visning. 

Regimentsvegen 17

image005

Nøkkelinformasjon

plus_G_2025

BELIGGENHET

plus_G
minus_G

BESKRIVELSE AV EIENDOMMEN

plus_G
minus_G

BORETTSLAGET/ØKONOMI

plus_G
minus_G

OFFENTLIGE FORHOLD

plus_G
minus_G

PRISANTYDNING INKLUDERT OMKOSTNINGER

plus_G
minus_G

ØVRIGE KJØPSFORHOLD

plus_G
minus_G

Dokumenter

plus_G_2025

Del boligen

facebook-gold
Twitter-gold

Lurer du på noe om denne boligen?

Ta kontakt under via skjemaet.


Relaterte boliger

Rognsbakken 17
3950000,00  0,00

Rognsbakken 17

Voss ­ VOSS
Stor 4-roms leilighet med meget attraktiv beliggenhet. Uteplass, hage og flott utsikt. 2 p-plasser. Godt med bodplass.

Totalpris:

Kr 4063000,00

BRA-i:

105 m²
Ringheimsvegen 16A
9000000,00  0,00

Ringheimsvegen 16A

Voss ­ VOSS
Hel tomannsbolig i Ringheimsvegen 16: En herskapelig prakteiendom midt i hjertet av Voss sentrum; en sjelden mulighet.

Totalpris:

Kr 9244250,00

BRA-i:

519 m²
Skulegata 11 A
5950000,00  0,00

Skulegata 11 A

Voss ­ Voss
Vangen - Stor, ny og innholdsrik 4-roms andelsleilighet med balkong og parkeringsplass midt på Vangen. Heis i bygget.

Totalpris:

Kr 5960250,00

BRA-i:

93 m²
Filipshaugen 174/28
850000,00  0,00

Filipshaugen 174/28

Voss ­ Voss
Tomt på Filipshaugen like ved Bjørgum. Kort vei til idrettsplass, lekeplass, barnehage og skole.

Totalpris:

Kr 872600,00

P-rom:

0,00 m²
Hangursvegen 44/116
2000000,00  0,00

Hangursvegen 44/116

Voss ­ VOSS
Sentrumsnær og solrik tomt på Hangurssiden med panoramautsikt over Voss, Vangsvatnet og Gråsida

Totalpris:

Kr 2051350,00

P-rom:

0,00 m²
Tymbrålsbakkane 9
5500000,00  0,00

Tymbrålsbakkane 9

Voss ­ VOSS
Innholdsrik og flott enebolig m/ bl.a. 4 soverom, 2 bad, kjellerstue, 2 ekstra innredede rom m.m. Dobbeltgarasje.

Totalpris:

Kr 5656750,00

BRA-i:

223 m²
Nedre Reime 95
450000,00  0,00

Nedre Reime 95

Voss ­ VOSS
Nedre Reime 95 - Enkel hytte med kort vei til togstasjonen. Fredelige omgivelser og flott natur utsikt.

Totalpris:

Kr 476600,00

P-rom:

21,00 m²
Raundalsvegen 1670
3150000,00  0,00

Raundalsvegen 1670

Voss ­ VOSS
Fantastisk helårshytte med perfekt kombinasjon av sjarm og moderne kvaliteter i nydelige omgivelser på Reime i Raundalen

Totalpris:

Kr 3244100,00

BRA-i:

97 m²
Kleivavegen 289
2950000,00  0,00

Kleivavegen 289

Voss ­ Voss
Fjellidyll på Mjølfjell - Stor og solrik tomt med turmuligheter rett utenfor hyttedøren. Kort vei til butikk.

Totalpris:

Kr 3039100,00

BRA-i:

68 m²
Eskelandsvegen 8
5100000,00  0,00

Eskelandsvegen 8

Voss ­ Voss
Moderne 3-roms leilighet med meget gode kvaliteter og høy standard. Rolig område med kort vei til sentrum.

Totalpris:

Kr 5241750,00

BRA-i:

68 m²
Se flere boliger
Bolig til salgs

Inspirasjon

Inspirerende interiørbilder fra norske hjem.
sov1
Soverom
kjo1
Kjøkken
stue
Stue

Boligartikler

Nyttig informasjon, råd og inspirasjon for deg som er opptatt av bolig.
aaletidligute
Aktuelt

Kapret først drømmeboligen, solgte egen bolig få dager senere

Konseptet vårt, Tidlig ute, legger til rette for et stressfritt boligsalg på kundens premisser. Poenget er å være ute i god tid, slik at prosessen...
vo4
Aktuelt

178 dager uten bud; - Proaktiv solgte boligen min etter første visning

Huset i Vestre Olsvikveg hadde mistet alt av moment etter et halvt år ute i markedet. Da Proaktiv ved Jon Kristian Røsok kom inn i bildet ble...
n_r-16
Aktuelt

Drømmer du om å drive ditt eget meglerkontor?

Proaktiv Eiendomsmegling er alltid på utkikk etter flinke folk som ønsker å skape sin egen suksess. Er du en målrettet og verdiskapende megler, med...