4848730_1a
Velholdt og romslig enebolig over to plan i Svendsemarka 1 på Tranby - Velkommen! ( 1 av )
4848734_1a
Bak huset ligger også en flat, opparbeidet hage med plass til ballspill, lek og trampoline. ( 2 av )
4848731_1a
Stor terrasse på ca. 37 kvm - usjenert og solrik ( 3 av )
4848735_1a
( 4 av )
4848736_1a
( 5 av )
4848729_1a
Huset i Svendsemarka ligger på en flott hjørnetomt med gangavstand til bussholdeplass i Ringveien. Her har man også marka like ved. ( 6 av )
4848726_1a
Frittliggende dobbel garasje med lagringsloft ( 7 av )
4848733_1a
Inngangspartiet ( 8 av )
4848716_1a
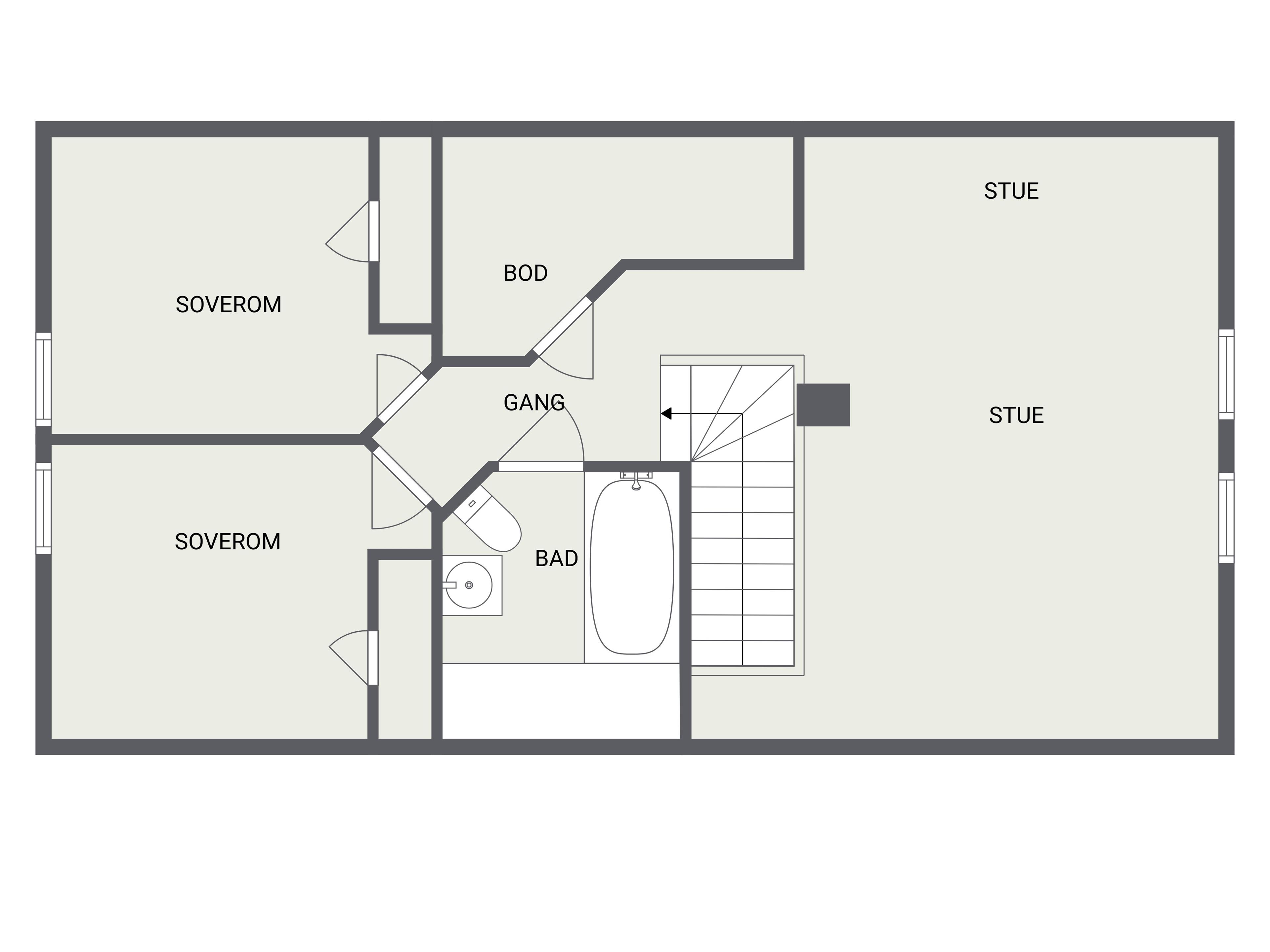
Plantegning 1. etasje. ( 9 av )
4848761_1a
Gjennomgående stue med utgang til terrassen i enden. ( 10 av )
4848765_1a
Stuens utforming gir plass til sofagruppe og spisebord i egne soner. ( 11 av )
4848764_1a
Plassbygget peis. ( 12 av )
4848762_1a
( 13 av )
4848763_1a
Doble dører ut til terrassen. ( 14 av )
4848760_1a
Kjøkkenet ligger separat og har inngang fra stuen. ( 15 av )
4848757_1a
Kjøkkenrommet har vinduer ut mot hagen og plass til spisebord under. ( 16 av )
4848759_1a
Innredning langs to vegger med lyse, profilerte fronter, benkeplate med komposittkum og fliser over benken. ( 17 av )
4848766_1a
( 18 av )
4848754_1a
Huset har totalt fire soverom, to plassert i hver etasje. ( 19 av )
4848753_1a
Hovedsoverom. ( 20 av )
4848750_1a
Soverom II er i dag innredet som kontor. ( 21 av )
4848749_1a
Flislagt baderom med varmekabler i gulvet. ( 22 av )
4848751_1a
Bad ( 23 av )
4848752_1a
Bad ( 24 av )
4848756_1a
Gang ( 25 av )
4848758_1a
Trappoppgang til 2.etasje ( 26 av )
4848747_1a
Separat vaskerom. ( 27 av )
4848746_1a
Kott under trappen med varmtvannsberederen (198 liter), sikringsskap og lagringsmuligheter. ( 28 av )
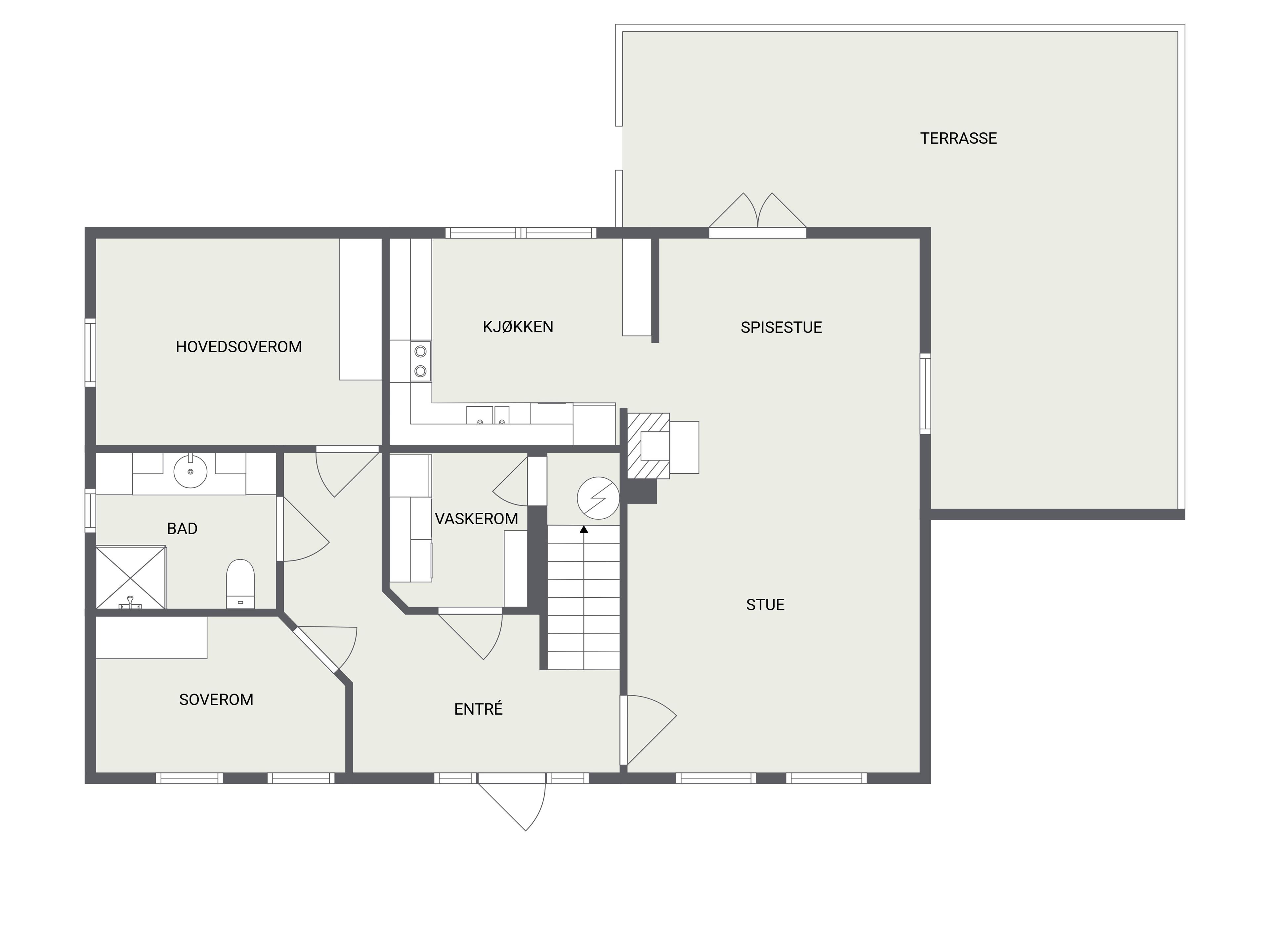
4848717_1a
Plantegning 2. etasje. ( 29 av )
4848744_1a
Stor stue med plass til en ekstra sofagruppe. Mulighet å inndele til et ekstra stort soverom. ( 30 av )
4848745_1a
Loftstue. ( 31 av )
4848748_1a
Trappegang med innvendig bod for ytterligere lagring. ( 32 av )
4848738_1a
Soverom med plassbygde skap. ( 33 av )
4848737_1a
To soverom i 2. etasje. ( 34 av )
4848739_1a
Soverom. ( 35 av )
4848741_1a
Også dette soverommet har integrerte skap, noe som utnytter plassen godt. ( 36 av )
4848740_1a
Flislagt baderom med varmekabler. ( 37 av )
4848743_1a
Innmurt badekar med dusj og glassvegg. ( 38 av )
4848742_1a
( 39 av )
4848718_1a
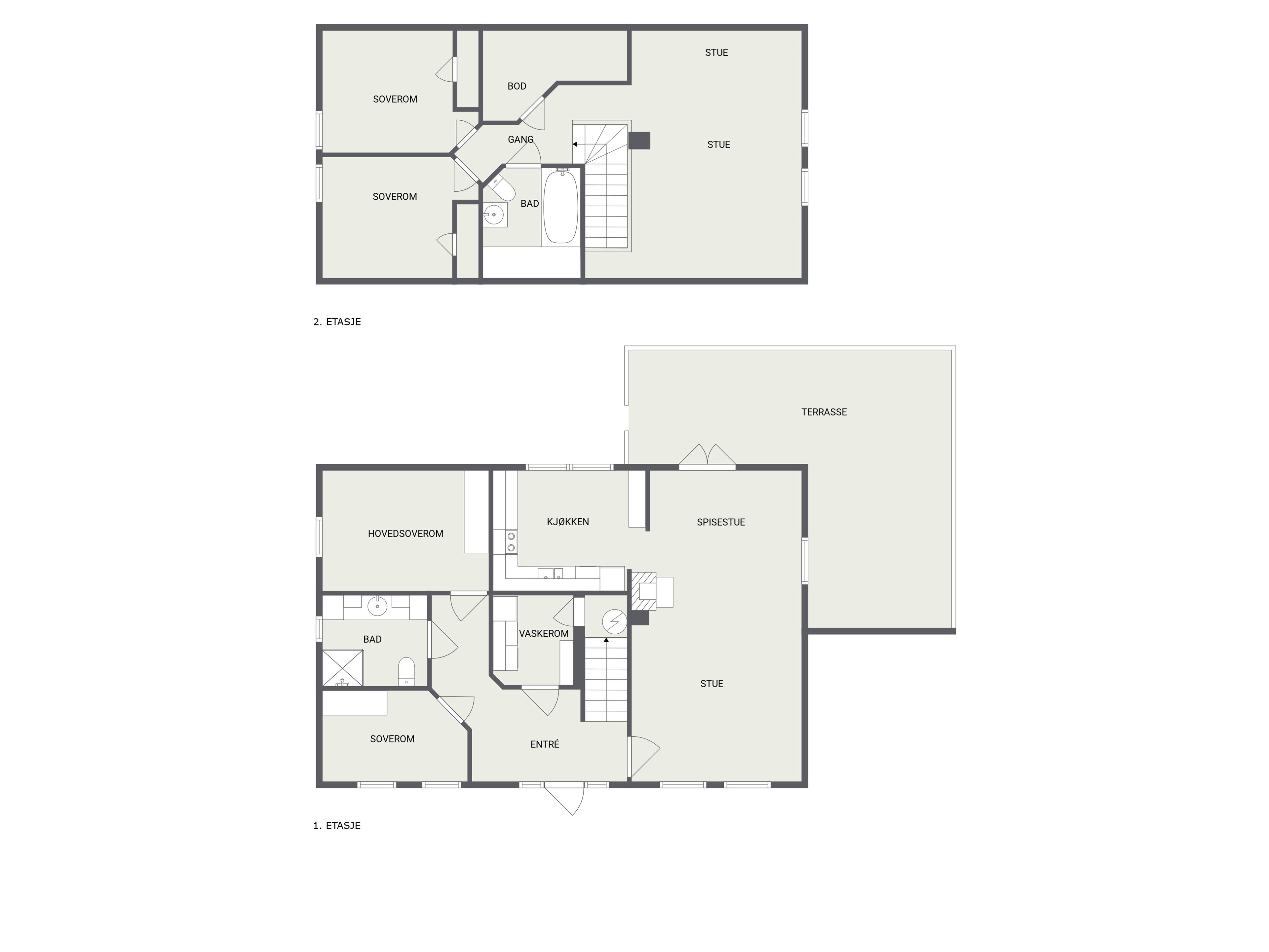
Plantegning begge etasjer. ( 40 av )
4848732_1a
Frittliggende dobbel garasje med utebelysning på vegg og lagringsloft. ( 41 av )
4848767_1a
( 42 av )
4848725_1a
Etablert nabolag på Tranby, like ved gode turområder og fritidsaktiviteter. ( 43 av )
4848719_1a
( 44 av )
4851205_1a
Området er populært blant familier med barn grunnet den korte avstanden til fritidsaktiviteter, lekeplasser, marka, skoler og barnehager. ( 45 av )
4851206_1a
( 46 av )

Svendsemarka 1

Se alle bilder (0)
4848730_1a
4848734_1a
4848731_1a
4848735_1a
4848736_1a
4848729_1a
4848726_1a
4848733_1a
4848716_1a
4848761_1a
4848765_1a
4848764_1a
4848762_1a
4848763_1a
4848760_1a
4848757_1a
4848759_1a
4848766_1a
4848754_1a
4848753_1a
4848750_1a
4848749_1a
4848751_1a
4848752_1a
4848756_1a
4848758_1a
4848747_1a
4848746_1a
4848717_1a
4848744_1a
4848745_1a
4848748_1a
4848738_1a
4848737_1a
4848739_1a
4848741_1a
4848740_1a
4848743_1a
4848742_1a
4848718_1a
4848732_1a
4848767_1a
4848725_1a
4848719_1a
4851205_1a
4851206_1a

Svendsemarka 1

Prisantydning:
Fra Kr 6350000,00
til Kr 0,00
Totalpris:
Kr 6522000,00
BRA:
140,00 - 0,00
BRA-i:
140 - 0
Soverom:
4 - 0
Boligtype:
Enebolig
Eierform:
Eiet tomt
Byggeår:
1993
Etasje:
0
Tomteareal:
465

Velholdt enebolig i attraktivt område. 4 soverom. Usjenert terrasse og hage. Dobbel garasje med lagringsloft.

Ansvarlig megler:
Alexander Abelseth

Daglig leder / Partner / Eiendomsmegler

Visning

Boligen er solgt og er ikke lengre tilgjengelig for visning. 

Svendsemarka 1

image005

Nøkkelinformasjon

plus_G_2025

BELIGGENHET

plus_G
minus_G

BESKRIVELSE AV EIENDOMMEN

plus_G
minus_G

OFFENTLIGE FORHOLD

plus_G
minus_G

PRISANTYDNING INKLUDERT OMKOSTNINGER

plus_G
minus_G

ØVRIGE KJØPSFORHOLD

plus_G
minus_G

Dokumenter

plus_G_2025

Del boligen

facebook-gold
Twitter-gold

Lurer du på noe om denne boligen?

Ta kontakt under via skjemaet.


Relaterte boliger

Briskeveien 11
8900000,00  0,00

Briskeveien 11

Lier ­ TRANBY
Innbydende og påkostet enebolig med flotte uteplasser. Dobbel garasje. 4 soverom, 2 stuer, 2 bad og vaskerom.

Totalpris:

Kr 9141750,00

BRA-i:

238 m²
Mellomenga 21
5150000,00  0,00

Mellomenga 21

Lier ­ LIER
Delikat rekkehus betydelig oppusset i 2024. Perfekt for en barnefamilie. 3 soverom+loft. Garasje m/lader og bod.

Totalpris:

Kr 5293000,00

BRA-i:

120 m²
Haugane 27
4500000,00  0,00

Haugane 27

Lier ­ TRANBY
Flott halvpart tomannsbolig over to plan med sol, utsikt og fine uteplasser. Garasje. Bad fra 2020. Blindvei.

Totalpris:

Kr 4908742,00

BRA-i:

124 m²
Strandtunet 31
3800000,00  0,00

Strandtunet 31

Lier ­ LIERSTRANDA
Gjennomgående 3-roms leilighet over to plan. Balkong med kveldssol og carport m/lader. Utleie tillatt. Sentralt.

Totalpris:

Kr 3909250,00

BRA-i:

65 m²
Saueveien 40
6800000,00  0,00

Saueveien 40

Lier ­ LIER
Fint beliggende enebolig på 1 måls hjørnetomt. Nydelig hage og solrik terrasse. 3 soverom + 2 bad. Garasje.

Totalpris:

Kr 6989250,00

BRA-i:

202 m²
Frydenlund 22C
2700000,00  0,00

Frydenlund 22C

Lier ­ LIERSTRANDA
Fin 2-roms toppleilighet med fjordutsikt og sydvestvendt balkong. Bad fra 2023. Ingen gjenboere. Kort vei til Drammen.

Totalpris:

Kr 3152587,00

BRA-i:

55 m²
Øvre Solspillet 4
7500000,00  0,00

Øvre Solspillet 4

Lier ­ LIER
Stor og delikat familiebolig i blindvei med panoramautsikt, 140m² uteplasser & dobbelgarasje. 4 sov. Rolig og markanært

Totalpris:

Kr 7705750,00

BRA-i:

212 m²
Dokka 27
4500000,00  0,00

Dokka 27

Lier ­ REISTAD
Rålekker 3-roms selveier fra 2020, ytterligere oppgradert i 2022-2025, garasje og heis, sydvestvendt balkong m/utsikt.

Totalpris:

Kr 4625750,00

BRA-i:

62 m²
Haskollveien 6B
3350000,00  0,00

Haskollveien 6B

Lier ­ LIER
Rekkehus o/3 plan med 27 m² solrik terrasse, utebod og garasje. Nytt tak og vinduer i 2024. 3 sov og sep.vaskerom.

Totalpris:

Kr 4272818,00

BRA-i:

130 m²
Sognaveien 10A
4100000,00  0,00

Sognaveien 10A

Lier ­ LIER
Stor 3-roms eierleilighet fra 2018 med nydelig utsikt fra egen markterrasse og hage. To garasjeplasser. Rett ved marka!

Totalpris:

Kr 4215750,00

BRA-i:

99 m²
Se flere boliger
Bolig til salgs

Inspirasjon

Inspirerende interiørbilder fra norske hjem.
sov1
Soverom
kjo1
Kjøkken
stue
Stue

Boligartikler

Nyttig informasjon, råd og inspirasjon for deg som er opptatt av bolig.
aaletidligute
Aktuelt

Kapret først drømmeboligen, solgte egen bolig få dager senere

Konseptet vårt, Tidlig ute, legger til rette for et stressfritt boligsalg på kundens premisser. Poenget er å være ute i god tid, slik at prosessen...
vo4
Aktuelt

178 dager uten bud; - Proaktiv solgte boligen min etter første visning

Huset i Vestre Olsvikveg hadde mistet alt av moment etter et halvt år ute i markedet. Da Proaktiv ved Jon Kristian Røsok kom inn i bildet ble...
n_r-16
Aktuelt

Drømmer du om å drive ditt eget meglerkontor?

Proaktiv Eiendomsmegling er alltid på utkikk etter flinke folk som ønsker å skape sin egen suksess. Er du en målrettet og verdiskapende megler, med...