4676174_1a
Vi har gleden av å presentere en svært sentralt beliggende utleiebolig på populære Øya. ( 1 av )
4676165_1a
Boligen leies i dag ut for kr. 46.900,- per mnd og leieinntektene er fordelt på 3 leieforhold som er strukturert etter etasje. ( 2 av )
4676124_1a
Klostergata 36B ligger svært attraktivt til med tanke på byens store studiesteder, Campus, sentrumsområde mm. ( 3 av )
4676135_1a
Langs byggets vestvegg er det parkeringsplasser for flere biler. ( 4 av )
4676164_1a
Inngangspartiet ligger i skjemet bakgård som oppleves som privat. Her finner man også uthus med gulvareal på ca 57 kvm med innlagt strøm, vann og avløp. ( 5 av )
4676132_1a
Velkommen inn! ( 6 av )
4743932_1a
Boligen har et innvendig bruksareal på 186 m² fordelt på kjeller, 1. og 2. etasje. ( 7 av )
4667729_1a
Alt leies i dag ut for kr. 46.900,- per mnd og leieinntektene er fordelt på 3 leieforhold som er strukturert etter etasje. ( 8 av )
4743921_1a
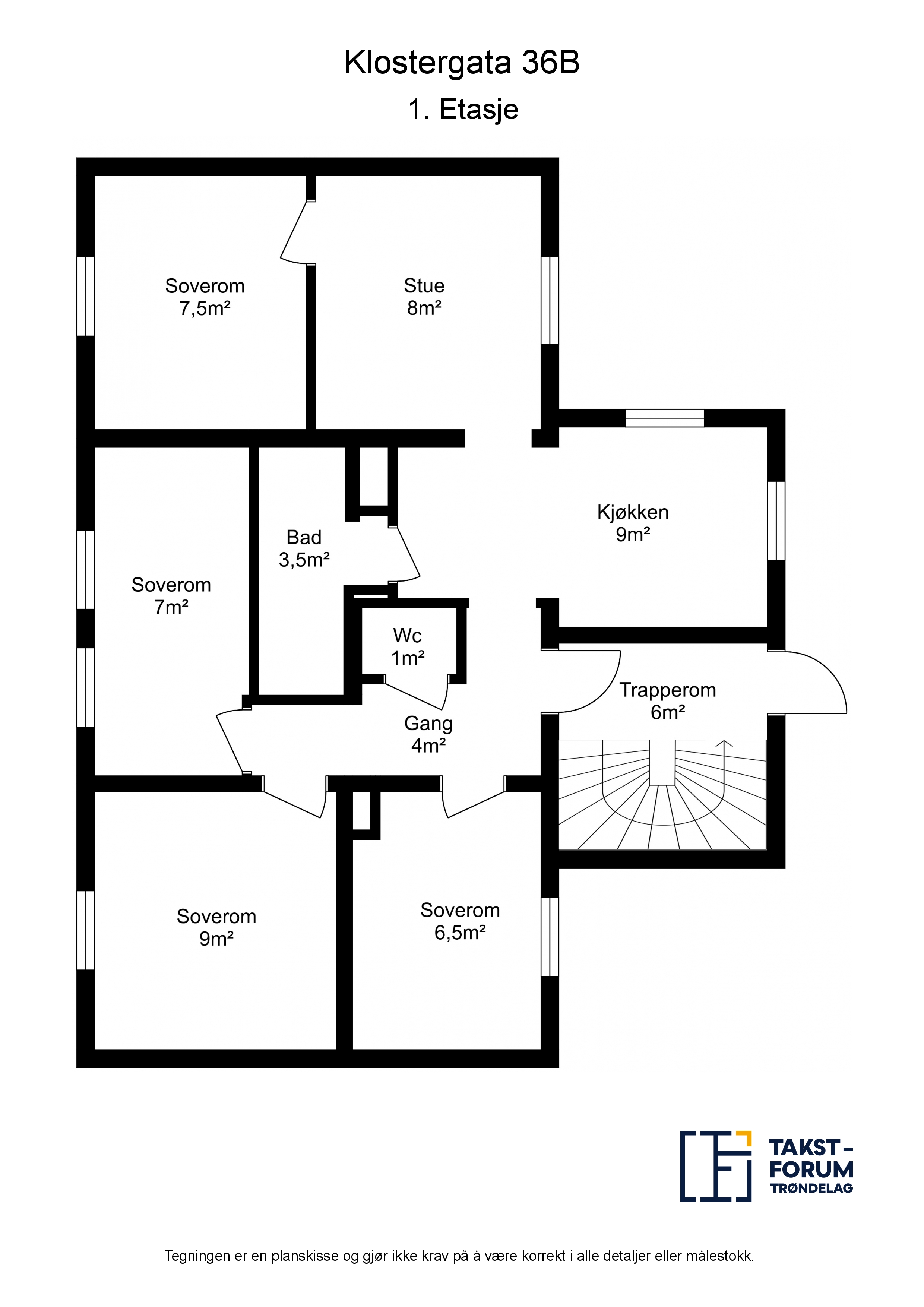
I 1. etasje finner vi 4 soverom, kjøkken, bad, WC-rom og stue. Etasjen utleies for kr. 18.000,- per mnd. ( 9 av )
4667732_1a
2. etasje fremstår med samme rominndeling og leies også ut for kr. 18.000,- per mnd. ( 10 av )
4667721_1a
Kjelleren har vært leid ut for kr. 10.900,- per mnd og inneholder 2 soverom, kjøkken, bad og stue. Soverommene i kjelleren er godkjent iht ferdigattest vedr. bruksendring datert 13.12.2017. ( 11 av )
4676166_1a
Boligen fremstår med en grei utleiestandard. ( 12 av )
4667734_1a
Samtlige av boligens bad er utstyrt med dusjkabinett. ( 13 av )
4667735_1a
Planskisse - 1. etasje ( 14 av )
4667736_1a
Planskisse - 2. etasje ( 15 av )
4667737_1a
Planskisse - Kjeller ( 16 av )
4676161_1a
( 17 av )
4676171_1a
Boligen har en meget sentral og attraktiv beliggenhet. ( 18 av )
4676125_1a
Fra eiendommen er det bl.a. gangavstand til Trondheim sentrum med de fleste fasiliteter, blant annet Trondheim Torg. ( 19 av )
4676168_1a
Byens store studie- og arbeidssteder ligger alle innen kort avstand. Sentrum, Studentersamfunnet, Høyskoleparken og Gløshaugen ligger i rusleavstand. ( 20 av )
4676169_1a
Gangavstand er det også til bl.a. Gløshaugen, St. Olavs Hospital, Teknobyen, BI, Handelshøyskolen mm. ( 21 av )
4676137_1a
Nærbutikken Coop Prix Øya ligger et par minutt gange unna leiligheten. ( 22 av )
4676129_1a
Eiendommen er svært sentralt beliggende, men har likevel prominaden langs og rundt Nidelva liggende bare noen meter fra ytterdøra. ( 23 av )
4676116_1a
( 24 av )
4676162_1a
Velkommen til visning! Husk å meld deg på til visning via påmeldingsfunksjonen på Finn.no ( 25 av )

Klostergata 36B

Se alle bilder (0)
4676174_1a
4676165_1a
4676124_1a
4676135_1a
4676164_1a
4676132_1a
4743932_1a
4667729_1a
4743921_1a
4667732_1a
4667721_1a
4676166_1a
4667734_1a
4667735_1a
4667736_1a
4667737_1a
4676161_1a
4676171_1a
4676125_1a
4676168_1a
4676169_1a
4676137_1a
4676129_1a
4676116_1a
4676162_1a

Klostergata 36B

Prisantydning:
Fra Kr 8390000,00
til Kr 0,00
Totalpris:
Kr 8615250,00
BRA:
186,00 - 0,00
BRA-i:
186 - 0
Soverom:
10 - 0
Boligtype:
Enebolig
Eierform:
Festet tomt
Byggeår:
1897
Etasje:
0
Tomteareal:
269

NY PRIS! Sentralt beliggende utleiebolig på Øya. Leieinntekt kr. 46.900,-/mnd. Parkering. Uthus m/vann & avløp.

Ansvarlig megler:
Kenneth Vårvik

Eiendomsmegler / Partner / Jurist

Visning

Boligen er solgt og er ikke lengre tilgjengelig for visning. 

Klostergata 36B

image005

Nøkkelinformasjon

plus_G_2025

BELIGGENHET

plus_G
minus_G

BESKRIVELSE AV EIENDOMMEN

plus_G
minus_G

OFFENTLIGE FORHOLD

plus_G
minus_G

PRISANTYDNING INKLUDERT OMKOSTNINGER

plus_G
minus_G

ØVRIGE KJØPSFORHOLD

plus_G
minus_G

Dokumenter

plus_G_2025

Del boligen

facebook-gold
Twitter-gold

Lurer du på noe om denne boligen?

Ta kontakt under via skjemaet.


Relaterte boliger

Østre Moholt-tun 17
4190000,00  0,00

Østre Moholt-tun 17

Trondheim ­ TRONDHEIM
Lys og tiltalende 4-roms leilighet i 1. etasje. Solrik balkong med nedgang til hage. Parkering. God bodplass. Nært "alt"

Totalpris:

Kr 4199303,00

BRA-i:

89 m²
Edgar B. Schieldrops veg 10A
3450000,00  0,00

Edgar B. Schieldrops veg 10A

Trondheim ­ TRONDHEIM
Lekker 3-roms med topp og endebeliggenhet - Gode solforhold - Fantastisk utsikt mot Gråkallen - Delikat bad og kjøkken.

Totalpris:

Kr 3740014,00

BRA-i:

72 m²
Dybdahls veg 19B
5800000,00  0,00

Dybdahls veg 19B

Trondheim ­ TRONDHEIM
Innholdsrikt og sentrumsnært rekkehus over 3 plan i barnevennlig boligfelt. Skjermet hage og glimrende solforhold.

Totalpris:

Kr 5964280,00

BRA-i:

113 m²
Hans Finnes gate 27
6650000,00  0,00

Hans Finnes gate 27

Trondheim ­ TRONDHEIM
Sjelden anledning! Selveierleilighet over 2 plan med attraktiv beliggenhet. Fantastisk fjordutsikt. 2 solrike uteplasser

Totalpris:

Kr 6830240,00

BRA-i:

111 m²
Røllikvegen 25
5290000,00  0,00

Røllikvegen 25

Trondheim ­ TRONDHEIM
Fin 4-roms familiebolig med god planløsning og sentral beliggenhet. 2 p-plasser. Terrasse med utsikt og gode solforhold.

Totalpris:

Kr 5436240,00

BRA-i:

112 m²
Odenseveien 31
2600000,00  0,00

Odenseveien 31

Trondheim ­ TRONDHEIM
Innbydende 3-roms i toppetasjen like ved marka. Flott utsikt, rehabilitert fasade og god planløsning. Tre boder

Totalpris:

Kr 3434059,00

BRA-i:

62 m²
Ringduevegen 12
2900000,00  0,00

Ringduevegen 12

Trondheim ­ Kattem
Attraktivt rekkehus over tre plan i rolig borettslag. Vestvendt terrasse og hage. Fjernvarme. Parkering.

Totalpris:

Kr 3485248,00

BRA-i:

153 m²
Marie Sørdals veg 11E
3850000,00  0,00

Marie Sørdals veg 11E

Trondheim ­ Trondheim
Familievennlig rekkehus over to plan beliggende på et attraktivt tun. 2 solrike uteplasser. Oppvarmet garasjeplass m.m.

Totalpris:

Kr 4008006,00

BRA-i:

110 m²
Lade alle 156
3450000,00  0,00

Lade alle 156

Trondheim ­ TRONDHEIM
Lys og moderne 2-roms leilighet fra 2024 - perfekt for førstegangskjøperen! Balkong, fjernvarme, intern og ekstern bod.

Totalpris:

Kr 3550240,00

BRA-i:

37 m²
Væressletta 13B
5990000,00  0,00

Væressletta 13B

Trondheim ­ RANHEIM
Lekker leilighet i toppetasjen fra 2023. Moderne og lyst. Parkering i kjeller. Fantastisk utsikt. Heis. Vannbåren varme

Totalpris:

Kr 6008203,00

BRA-i:

82 m²
Se flere boliger
Bolig til salgs

Inspirasjon

Inspirerende interiørbilder fra norske hjem.
sov1
Soverom
kjo1
Kjøkken
stue
Stue

Boligartikler

Nyttig informasjon, råd og inspirasjon for deg som er opptatt av bolig.
aaletidligute
Aktuelt

Kapret først drømmeboligen, solgte egen bolig få dager senere

Konseptet vårt, Tidlig ute, legger til rette for et stressfritt boligsalg på kundens premisser. Poenget er å være ute i god tid, slik at prosessen...
vo4
Aktuelt

178 dager uten bud; - Proaktiv solgte boligen min etter første visning

Huset i Vestre Olsvikveg hadde mistet alt av moment etter et halvt år ute i markedet. Da Proaktiv ved Jon Kristian Røsok kom inn i bildet ble...
n_r-16
Aktuelt

Drømmer du om å drive ditt eget meglerkontor?

Proaktiv Eiendomsmegling er alltid på utkikk etter flinke folk som ønsker å skape sin egen suksess. Er du en målrettet og verdiskapende megler, med...