4857269_1a
Velkommen til Væresstranda 40! ( 1 av )
4857262_1a
En vakker eiendom med småbrukfølelse bestående av enebolig og sommerhus, med stor og solrik tomt på ca. 2,75 mål. ( 2 av )
4857275_1a
( 3 av )
4857282_1a
Hagen er pent opparbeidet med frukt og bærtrær, stauder, grønnsaker og beplantning. ( 4 av )
4857276_1a
Flotte solforhold på eiendommen med sol fra soloppgang til solnedgang midtsommers. ( 5 av )
4857256_1a
Eiendommen har unik utsikt med fantastisk variasjon i lysspill fra fjorden. ( 6 av )
4857270_1a
( 7 av )
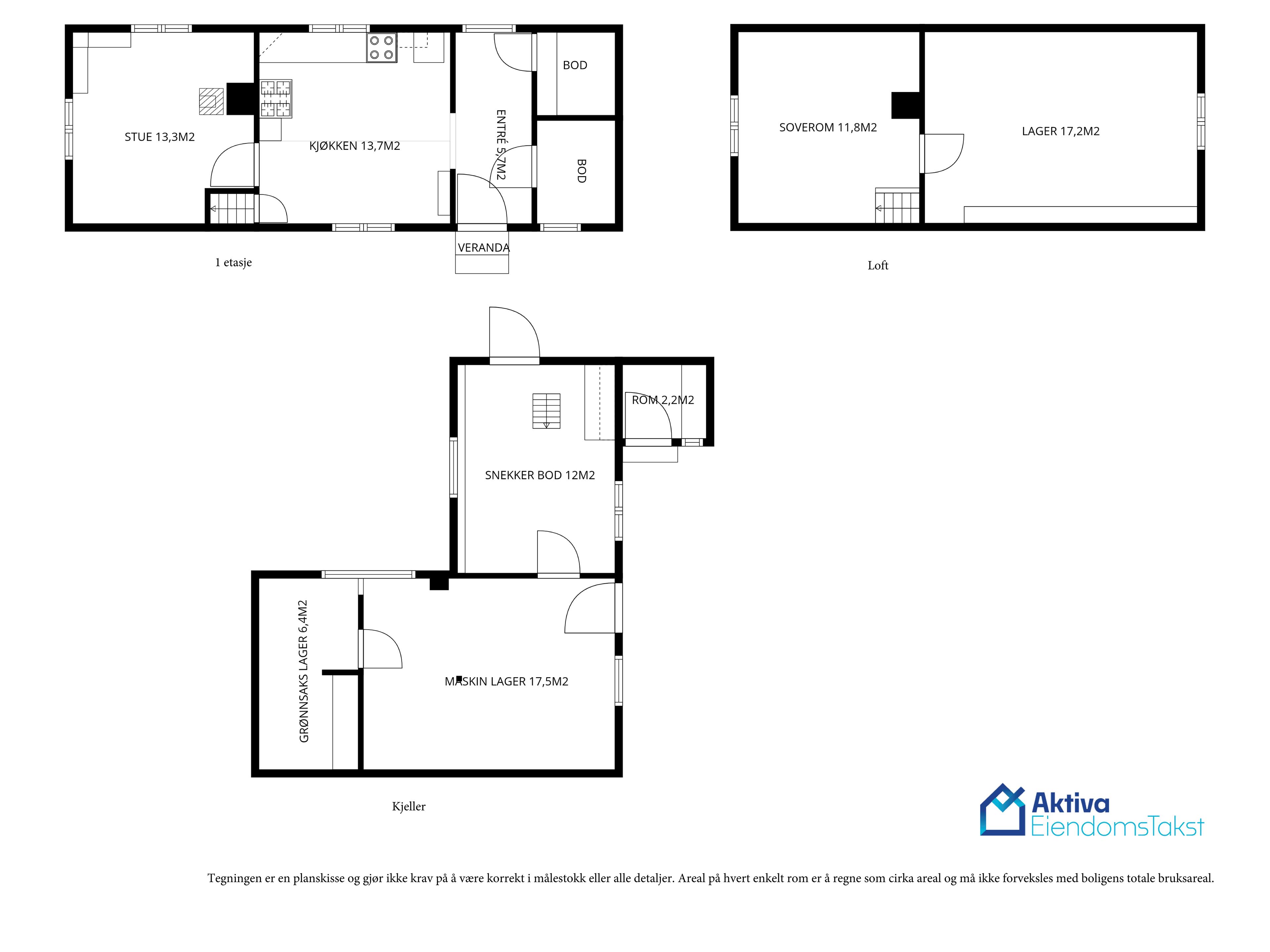
4858167_1a
Planskisse første etasje. ( 8 av )
4857238_1a
Inn i eiendommens hovedbolig blir vi møtt av en koselig gang med plass til sko og yttertøy. ( 9 av )
4857228_1a
Stuen er romslig med plass til alt av ønsket møblement. ( 10 av )
4857267_1a
Stuen har store vindusflater for flott naturlig belysning og fantastisk utsikt. ( 11 av )
4857268_1a
alle vinduer i hovedhuset er fra 2006 og er godt vedlikeholdt. ( 12 av )
4857229_1a
( 13 av )
4857230_1a
( 14 av )
4857231_1a
( 15 av )
4857232_1a
( 16 av )
4857233_1a
Sjarmerende kjøkken integrerte hvitevarer. ( 17 av )
4857234_1a
Kjøkkeninnredningen byr på god plass til matlaging, og mye oppbevaringsplass. ( 18 av )
4857235_1a
( 19 av )
4857237_1a
Hovedboligen har en koselig peis for ekstra hygge på kalde vinterkvelder. ( 20 av )
4857239_1a
Bad i første etasje på 4 kvm. ( 21 av )
4857241_1a
( 22 av )
4857240_1a
Dusjhørne med innfellbar glassvegg for maksimal arealutnyttelse. ( 23 av )
4858168_1a
Planskisse andre etasje. ( 24 av )
4857252_1a
Hovedsoverom på 12,5 kvm. ( 25 av )
4857245_1a
Soverom nummer to på 9,5 kvm. ( 26 av )
4857246_1a
Soverommet har god plass til seng og ønsket oppbevaringsmøblement. ( 27 av )
4857248_1a
Soverom tre på 11 kvm har en åpen løsning mot et atelier. ( 28 av )
4857247_1a
( 29 av )
4857249_1a
Atelier på 15,2 kvm med flere potensielle bruksområder. Rommet har takvindu og hybelbenk med varmt og kaldt vann. ( 30 av )
4857255_1a
( 31 av )
4857250_1a
( 32 av )
4857251_1a
I andre etasje har man også en enkel balkong. ( 33 av )
4858166_1a
Planskisse kjeller. ( 34 av )
4857243_1a
Lyst og innbydende bad på 7,3 kvm. ( 35 av )
4857244_1a
( 36 av )
4857242_1a
Eget vaske/tørkerom i kjeller. Alle våtrom i hovedhus har gulvvarme. ( 37 av )
4857274_1a
Eiendommen disponerer et idyllisk sommerhus på tomten perfekt for sammenkomster og gjester. ( 38 av )
4857273_1a
( 39 av )
4858173_1a
Planskisser sommerhus. ( 40 av )
4857222_1a
Originalt kjøkken fra 1915. "Gamle Ranheim"! Velegnet både som bakstehus og selskapslokale. ( 41 av )
4857223_1a
Stue i sommerhus perfekt for ro og hygge. ( 42 av )
4857224_1a
( 43 av )
4857226_1a
( 44 av )
4857221_1a
( 45 av )
4857225_1a
( 46 av )
4857227_1a
Lyst og romslig soverom på 11,8 kvm. ( 47 av )
4857271_1a
Eiendommen har fine opparbeidede uteområder. ( 48 av )
4857277_1a
Perfekt for varme sommerdager hvor man kan sitte å nyte det fine været. ( 49 av )
4857279_1a
( 50 av )
4857281_1a
( 51 av )
4857261_1a
Væresstranda er å finne i umiddelbar nærhet fra boligen. ( 52 av )
4858163_1a
Eiendommen disponerer også eget naust, som gir maksimal utnyttelse av kystbeliggenheten. ( 53 av )
4857265_1a
Velkommen på visning! ( 54 av )

Væresstranda 40

Se alle bilder (0)
4857269_1a
4857262_1a
4857275_1a
4857282_1a
4857276_1a
4857256_1a
4857270_1a
4858167_1a
4857238_1a
4857228_1a
4857267_1a
4857268_1a
4857229_1a
4857230_1a
4857231_1a
4857232_1a
4857233_1a
4857234_1a
4857235_1a
4857237_1a
4857239_1a
4857241_1a
4857240_1a
4858168_1a
4857252_1a
4857245_1a
4857246_1a
4857248_1a
4857247_1a
4857249_1a
4857255_1a
4857250_1a
4857251_1a
4858166_1a
4857243_1a
4857244_1a
4857242_1a
4857274_1a
4857273_1a
4858173_1a
4857222_1a
4857223_1a
4857224_1a
4857226_1a
4857221_1a
4857225_1a
4857227_1a
4857271_1a
4857277_1a
4857279_1a
4857281_1a
4857261_1a
4858163_1a
4857265_1a

Væresstranda 40

Prisantydning:
Fra Kr 9990000,00
til Kr 0,00
Totalpris:
Kr 10263990,00
BRA:
213,00 - 0,00
BRA-i:
213 - 0
Soverom:
3 - 0
Boligtype:
Enebolig
Eierform:
Eiet tomt
Byggeår:
1898
Etasje:
0
Tomteareal:
2751

Idyllisk enebolig med sentral beliggenhet like ved fjorden. Stor tomt på 2,75 mål. Naust. Utsikt mot Væresholmen.

Ansvarlig megler:
Eirik Døsen

Advokat MNA/Partner

Visning

Boligen er solgt og er ikke lengre tilgjengelig for visning. 

Væresstranda 40

image005

Nøkkelinformasjon

plus_G_2025

BELIGGENHET

plus_G
minus_G

BESKRIVELSE AV EIENDOMMEN

plus_G
minus_G

OFFENTLIGE FORHOLD

plus_G
minus_G

PRISANTYDNING INKLUDERT OMKOSTNINGER

plus_G
minus_G

ØVRIGE KJØPSFORHOLD

plus_G
minus_G

Dokumenter

plus_G_2025

Del boligen

facebook-gold
Twitter-gold

Lurer du på noe om denne boligen?

Ta kontakt under via skjemaet.


Relaterte boliger

Edgar B. Schieldrops veg 10A
3450000,00  0,00

Edgar B. Schieldrops veg 10A

Trondheim ­ TRONDHEIM
Lekker 3-roms med topp og endebeliggenhet - Gode solforhold - Fantastisk utsikt mot Gråkallen - Delikat bad og kjøkken.

Totalpris:

Kr 3740014,00

BRA-i:

72 m²
Dybdahls veg 19B
5800000,00  0,00

Dybdahls veg 19B

Trondheim ­ TRONDHEIM
Innholdsrikt og sentrumsnært rekkehus over 3 plan i barnevennlig boligfelt. Skjermet hage og glimrende solforhold.

Totalpris:

Kr 5964280,00

BRA-i:

113 m²
Hans Finnes gate 27
6650000,00  0,00

Hans Finnes gate 27

Trondheim ­ TRONDHEIM
Sjelden anledning! Selveierleilighet over 2 plan med attraktiv beliggenhet. Fantastisk fjordutsikt. 2 solrike uteplasser

Totalpris:

Kr 6830240,00

BRA-i:

111 m²
Røllikvegen 25
5290000,00  0,00

Røllikvegen 25

Trondheim ­ TRONDHEIM
Fin 4-roms familiebolig med god planløsning og sentral beliggenhet. 2 p-plasser. Terrasse med utsikt og gode solforhold.

Totalpris:

Kr 5436240,00

BRA-i:

112 m²
Odenseveien 31
2600000,00  0,00

Odenseveien 31

Trondheim ­ TRONDHEIM
Innbydende 3-roms i toppetasjen like ved marka. Flott utsikt, rehabilitert fasade og god planløsning. Tre boder

Totalpris:

Kr 3434059,00

BRA-i:

62 m²
Ringduevegen 12
2900000,00  0,00

Ringduevegen 12

Trondheim ­ Kattem
Attraktivt rekkehus over tre plan i rolig borettslag. Vestvendt terrasse og hage. Fjernvarme. Parkering.

Totalpris:

Kr 3485248,00

BRA-i:

153 m²
Marie Sørdals veg 11E
3850000,00  0,00

Marie Sørdals veg 11E

Trondheim ­ Trondheim
Familievennlig rekkehus over to plan beliggende på et attraktivt tun. 2 solrike uteplasser. Oppvarmet garasjeplass m.m.

Totalpris:

Kr 4008006,00

BRA-i:

110 m²
Lade alle 156
3450000,00  0,00

Lade alle 156

Trondheim ­ TRONDHEIM
Lys og moderne 2-roms leilighet fra 2024 - perfekt for førstegangskjøperen! Balkong, fjernvarme, intern og ekstern bod.

Totalpris:

Kr 3550240,00

BRA-i:

37 m²
Væressletta 13B
5990000,00  0,00

Væressletta 13B

Trondheim ­ RANHEIM
Lekker leilighet i toppetasjen fra 2023. Moderne og lyst. Parkering i kjeller. Fantastisk utsikt. Heis. Vannbåren varme

Totalpris:

Kr 6008203,00

BRA-i:

82 m²
Ringvålvegen 360
3790000,00  0,00

Ringvålvegen 360

Trondheim ­ Heimdal
Svært flott 1/4-part over 2 etasjer m/vannbåren gulvvarme. Totalt 197 kvm BRA. Utleid kjellerdel*. Dobbelgarasje.

Totalpris:

Kr 3897740,00

BRA-i:

129 m²
Se flere boliger
Bolig til salgs

Inspirasjon

Inspirerende interiørbilder fra norske hjem.
sov1
Soverom
kjo1
Kjøkken
stue
Stue

Boligartikler

Nyttig informasjon, råd og inspirasjon for deg som er opptatt av bolig.
aaletidligute
Aktuelt

Kapret først drømmeboligen, solgte egen bolig få dager senere

Konseptet vårt, Tidlig ute, legger til rette for et stressfritt boligsalg på kundens premisser. Poenget er å være ute i god tid, slik at prosessen...
vo4
Aktuelt

178 dager uten bud; - Proaktiv solgte boligen min etter første visning

Huset i Vestre Olsvikveg hadde mistet alt av moment etter et halvt år ute i markedet. Da Proaktiv ved Jon Kristian Røsok kom inn i bildet ble...
n_r-16
Aktuelt

Drømmer du om å drive ditt eget meglerkontor?

Proaktiv Eiendomsmegling er alltid på utkikk etter flinke folk som ønsker å skape sin egen suksess. Er du en målrettet og verdiskapende megler, med...