Byggemåte
I forbindelse med salget har det blitt laget en tilstandsrapport for bolig med arealmåling av Takstingenør
Johan Rye-Holmboe. En tilstandsrapport beskriver synlige skader/avvik eller tegn på skader/avvik på
boligen som er særlig relevante ved eierskifte. Den bygningssakkyndige undersøker rom og
bygningsdeler slik det kommer frem av Forskrift til avhendingsloven. Tilstandsrapporten inneholder bare
avvik som den bygningssakkyndige kan se eller kontrollere med enkle hjelpemidler. Det gjøres ikke
nærmere undersøkelser slik som åpning av vegger eller andre bygningsdeler.
Tilstanden gir uttrykk for en gitt forventet tilstand, blant annet vurdert ut fra alder og normal bruk. Ved
Tilstandsgrad 0 (TG0) og Tilstandsgrad 1 (TG1) gir den bygningssakkyndige normalt ingen begrunnelse
for valg av tilstandsgrad. Grunnen er at bygningen eller bygningsdelen da bare har normal slitasje. Ved
skjulte konstruksjoner kan alder alene avgjøre tilstandsgrad. Når bygningssakkyndige anbefaler tiltak, for
eksempel utbedringer, må brukeren av rapporten vurdere om tiltakene er nødvendige og lønnsomme.
Tilstandsgrad 0 : Ingen avvik
Tilstandsgrad 1 : Mindre eller moderate avvik
Tilstandsgrad 2 : Avvik som ikke krever tiltak
Tilstandsgrad 2 : Avvik som kan kreve tiltak
Tilstandsgrad 3 : Store eller alvorlige avvik
Tilstandsgrad IU: Konstruksjoner som ikke er undersøkt
Hva det vil koste å utbedre rom eller bygningsdeler, er et forsiktig anslag basert på nåværende kvalitet,
registrert avvik og angitte tiltak i rapporten. Anslaget er gitt på generelt grunnlag og må ikke forveksles
med et pristilbud fra en håndverker. Det kan foreligge avvik og tiltak som ikke kommer frem av rapporten.
Utbedringskostnad avhenger blant annet av personlige valg av og markedspris på materialer og
tjenesteyter. For bygningsdeler som er gitt tilstandsgrad 2 eller 3, hvor det er påregnelig med tiltak, settes
et anslag for utbedring.
BYGGEMÅTE
- Tak: Saltak tekket med betongstein, takrenner og nedløp i plast.
- Kledning: Yttervegger er oppført i trekonstruksjon, kledd med liggende kledning, kjellervegger av pusset
mur.
- Vinduer: Vinduer med enkle og isolerglass i trekarmer av eldre dato i 1.etasje og kjeller.
- Etasjeskillere: Bygningen har etasjeskille av trebjelkelag, betongsåle på grunn.
- Grunnmur: Murkonstruksjon på antatt fast grunn.
TILSTANDSGRADER
TILSTANDSGRAD 0 (1 av 39 punkter)
Loft > Bad > Tilliggende konstruksjoner våtrom
TILSTANDSGRAD 1 (9 av 39 punkter)
- Vinduer (loft)
- Overflater
- Loft > Bad > Ventilasjon
- 1.Etasje > Bad > Overflater gulv
- 1.Etasje > Bad > Ventilasjon
- 1.Etasje > Kjøkken > Overflater og innredning
- 1.Etasje > Kjøkken > Avtrekk
- Ventilasjon
- Varmesentral
TILSTANDSGRAD 2 (25 av 39 punkter)
- Taktekking: Tak er kun besiktiget fra bakkeplan (og evt fra takvinduer) i henhold til HMS (helse, miljø og
sikkerhet), med de begrensninger dette medfører. Det kan være steder av taket som ikke er synlig fra
bakkeplan, og tilstand slike parti kan dermed ikke garanteres av utførende takstforetak.
- Nedløp og beslag: Det mangler snøfangere på hele eller deler av taket, men det var ikke krav om dette
på byggemeldingstidspunktet. Mer enn halvparten av forventet brukstid er passert på
renner/nedløp/beslag.
- Veggkonstruksjon: Det er ingen eller liten lufting i nedre kant av kledning mot grunnmur. Det er påvist
spredte råteskader i bordkledningen. Det er stedvise sprekkdannelser i forblending/utvendig puss.
- Takkonstruksjon/Loft: Det er begrenset/dårlig ventilering av takkonstruksjonen. Hele takkonstruksjonen
er gjenbygget. Det er ingen mulighet til vurdering utover alder og observasjoner fra underliggende etg.
- Vinduer: Eldre vinduer på slutten av forventet levetid.
- Dører: Det er påvist avvik rundt innsettingsdetaljer.
- Balkonger, terrasser og rom under balkonger - 2: Det er ikke fall som leder vann av balkongen. Eier har
anlagt enkel drenering med rør igjennom dekke, dette er ikke optimalt mtp. at det skal veldig lite til for at
drenering går tett. Armering er for langt ute i dekke noe som gjør at armeringsjern ruster og det sprekker
betong av dekke på undersiden.
- Balkonger, terrasser og rom under balkonger - 3: Synlig at konstruksjon er lagt direkte i terreng og det er
ikke synlige bjelkesko, det er da fare for råteskade og sig. Dette vil forkorte levetiden til konstruksjonen.
Konstruksjonen har skjevheter.
- Balkonger, terrasser og rom under balkonger: Mer enn halvparten av forventet brukstid er passert på
tettesjikt/membran. Rekkverket er for lavt i forhold til dagens krav til rekkverkshøyder. Det er
værslitt/oppsprukket trevirke/trepaneler.
- Rom under terreng: Det er registrert salt/kalkutslag og høye fuktverdier i vegger mot grunn, dette er tegn
på fuktvandring i vegg pga. dårlig drenering.
- Innvendige trapper: Åpninger i rekkverk er større enn dagens forskriftskrav til rekkverk i trapper. Det
mangler håndløper på vegg i trappeløpet. Rekkverkshøyder er under dagens forskriftskrav til rekkverk i
trapper.
- Loft > Bad > Overflater vegger og himling: Det er registrert svertesopp i fuger i dusj.
- Loft > Bad > Overflater gulv: Det er påvist avvik i fallforhold til sluk i forhold til krav i forskrift på
byggetidspunktet.
- Loft > Bad > Sluk, membran og tettesjikt: Mer enn halvparten av forventet brukstid er passert på
membranløsningen.
- Loft > Bad > Sanitærutstyr og innredning: Det er ikke påvist tilfredsstillende løsning for å synliggjøre
lekkasje fra innebygget sisternen.
- 1.Etasje > Bad > Overflater vegger og himling: Det er påvist at flisfuger har riss/sprekker.
- 1.Etasje > Bad > Sluk, membran og tettesjikt: Mer enn halvparten av forventet brukstid er passert på
membranløsningen.
- 1.Etasje < Toalettrom > Overflater og konstruksjon: Det er ikke påvist tilfredsstillende løsning for å
synliggjøre lekkasje fra innebygget sisternen. Det er brukt mdf-plater på vegger, disse vil ikke tåle
fuktbelastning fra servant.
- Vannledninger: Mer enn halvparten av forventet brukstid er passert på innvendige vannledninger.
- Avløpsrør: Mer enn halvparten av forventet brukstid er passert på innvendige avløpsledninger.
- Varmtvannstank: Det er ikke påvist tilfredsstillende avrenning eller annen kompenserende løsning fra
varmtvannstank.
- Elektrisk anlegg: Det foreligger ikke eltilsynsrapport de siste 5 år eller samsvarserklæring for hele
elanlegget, det anbefales en elkontroll.
- Drenering: Det mangler, eller på grunn av alder er det sannsynlig at det mangler, utvendig fuktsikring av
grunnmuren ved kjeller/underetasje. Mer enn halvparten av forventet levetid på drenering er overskredet.
Grunnmur og fundamenter: Det er registrert skråriss som er symptom på setninger. Grunnmuren har
sprekkdannelser.
- Utvendige vann- og avløpsledninger - 2: Ledninger fra byggeår. Ikke kontrollert da dette er skjulte
installasjoner, valgt tilstandsgrad er derfor kun satt ut fra forhold som alder/forventet levetid, det tas
følgelig forbehold vedr. dette (nedgravde ledninger/avløp kan være i bedre/dårligere stand kontra
"levetidstabeller" som er ett gjennomsnitt.
TILSTANDSGRAD 3 (4 av 39 punkter)
- Etasjeskille/gulv mot grunn: Målt høydeforskjell på over 30 mm gjennom hele rommet. Tilstandsgrad 3
gis med bakgrunn i standardens krav til godkjente måleavvik. Stedvis registret knirk i gulv/bjelkelag.
- Pipe og ildsted: Ildfast plate mangler på gulvet under sotluke/feieluke på pipe. Mangler også på gulvet
under/foran ildstedet. Mer enn halvparten av forventet brukstid er passert på pipe. Kostnadsestimat:
10.000 - 50.000
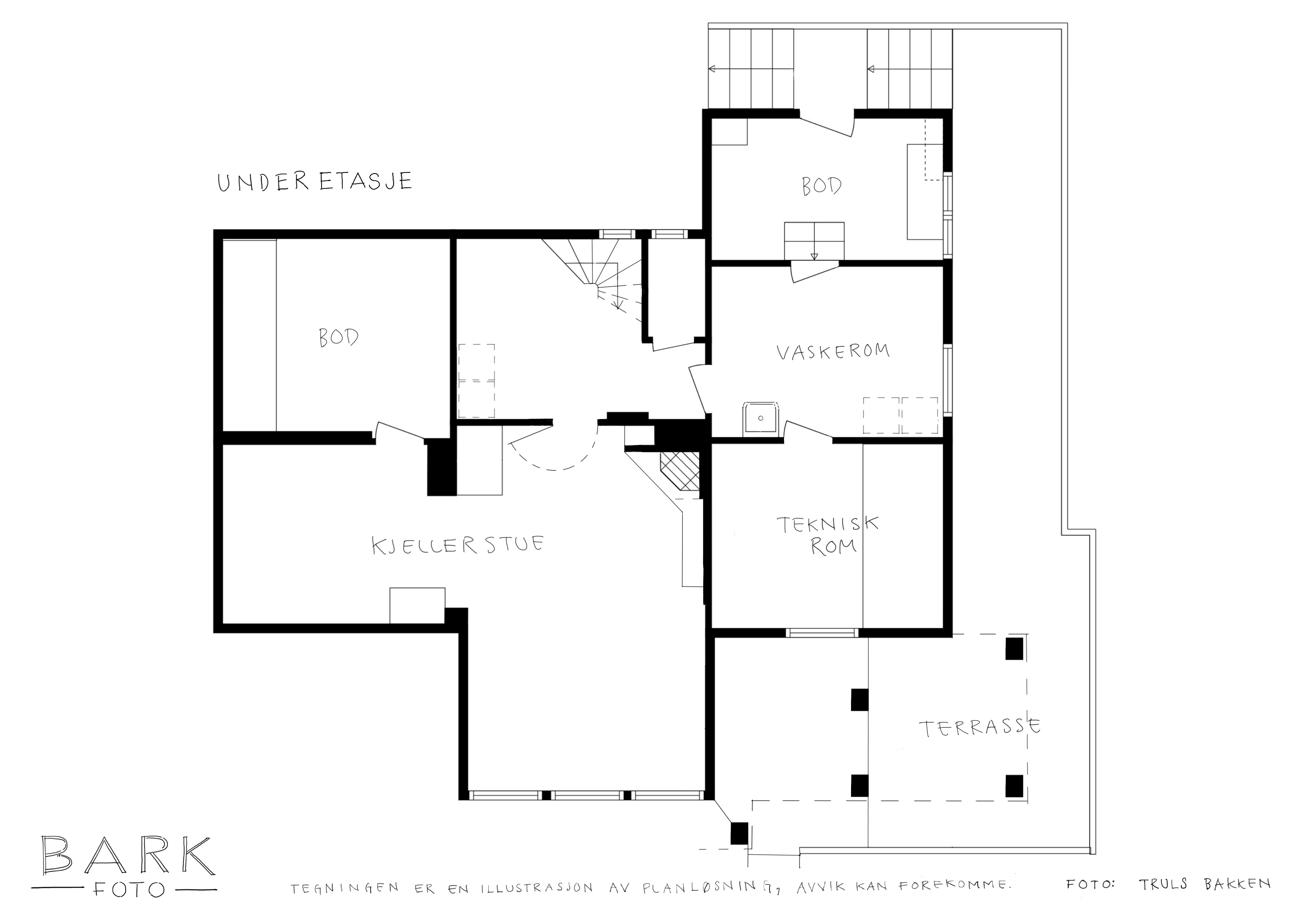
- Kjeller > Vaskerom > Generell: Vaskerommet er av høy alder (før 1997) og har passert normal levetid.
Rommet står derfor foran renovering i nærmeste tid selv om rommet i dag fungerer med dagens løsning.
Vaskerommet har originalt støpejernsluk, dette er en risikokonstruksjon med fare for lekkasje mellom
sluk og gulv. Kostnadsestimat: 50.000 - 100.000.
- Forstøtningsmurer: Det er påvist større sprekker og/eller skjevheter i muren. Kostnadsestimat: Over
300.000.
Se vedlagt boligsalgsrapport avholdt 22.01.25, hvor ovennevnte opplysninger er hentet fra, for nærmere
teknisk beskrivelse av eiendommen.