Byggemåte
Bygningen står på faste masser.
Drenering fra byggeår.
Boligen er fundamentert på støpt og isolert betong såle.
Grunnmur av betong/elementer.
Tak er tekket med betongtakstein. Etter byggemåte med sløyfer, lekter og undertak.
Isolert bindingsverk fra byggeår. Utvendig kledd med stående trepanel. Overflatebehandlet.
Saltak takkonstruksjon av prefabrikkerte takstoler. Undertak av bordtak.
Isolerglass i treramme. Overflatebehandlet.
Ytterdør i tre med glassfelt. Verandadør i tre med isolerglass.
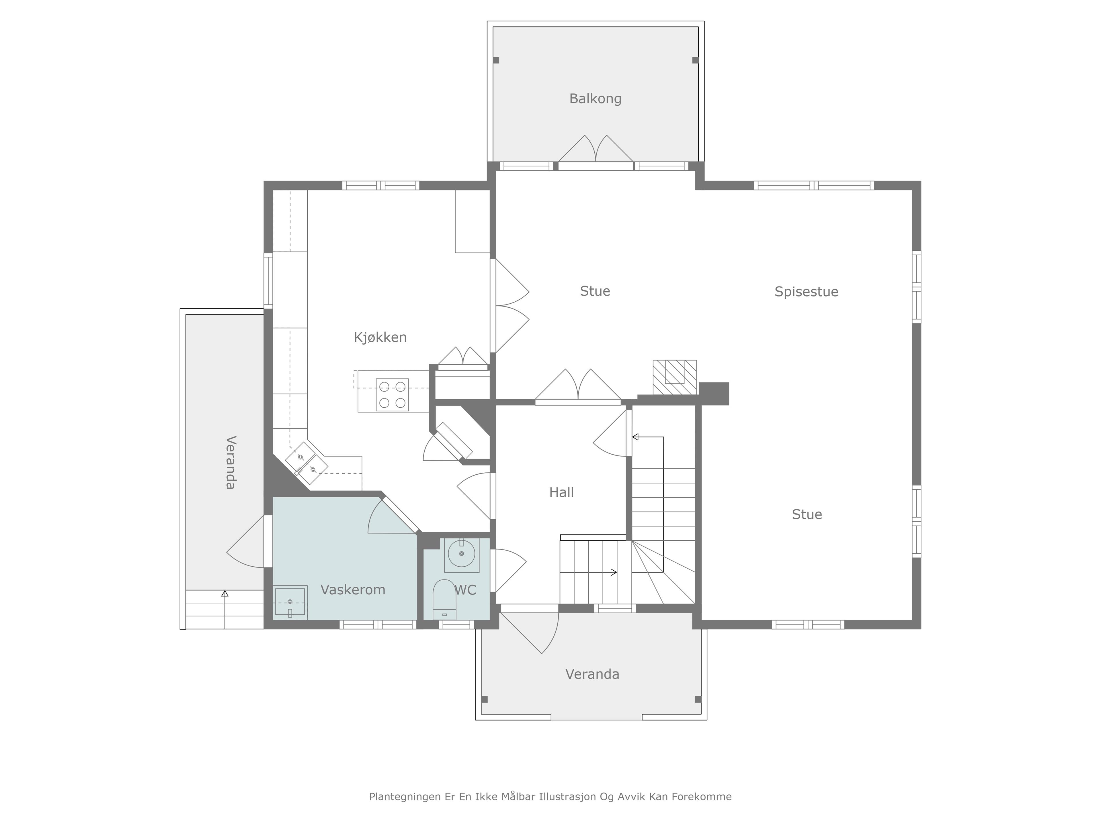
Fra stue i 1.etg er det utgang til en terrasse på ca. 9 kvm oppsatt i trekonstruksjoner.
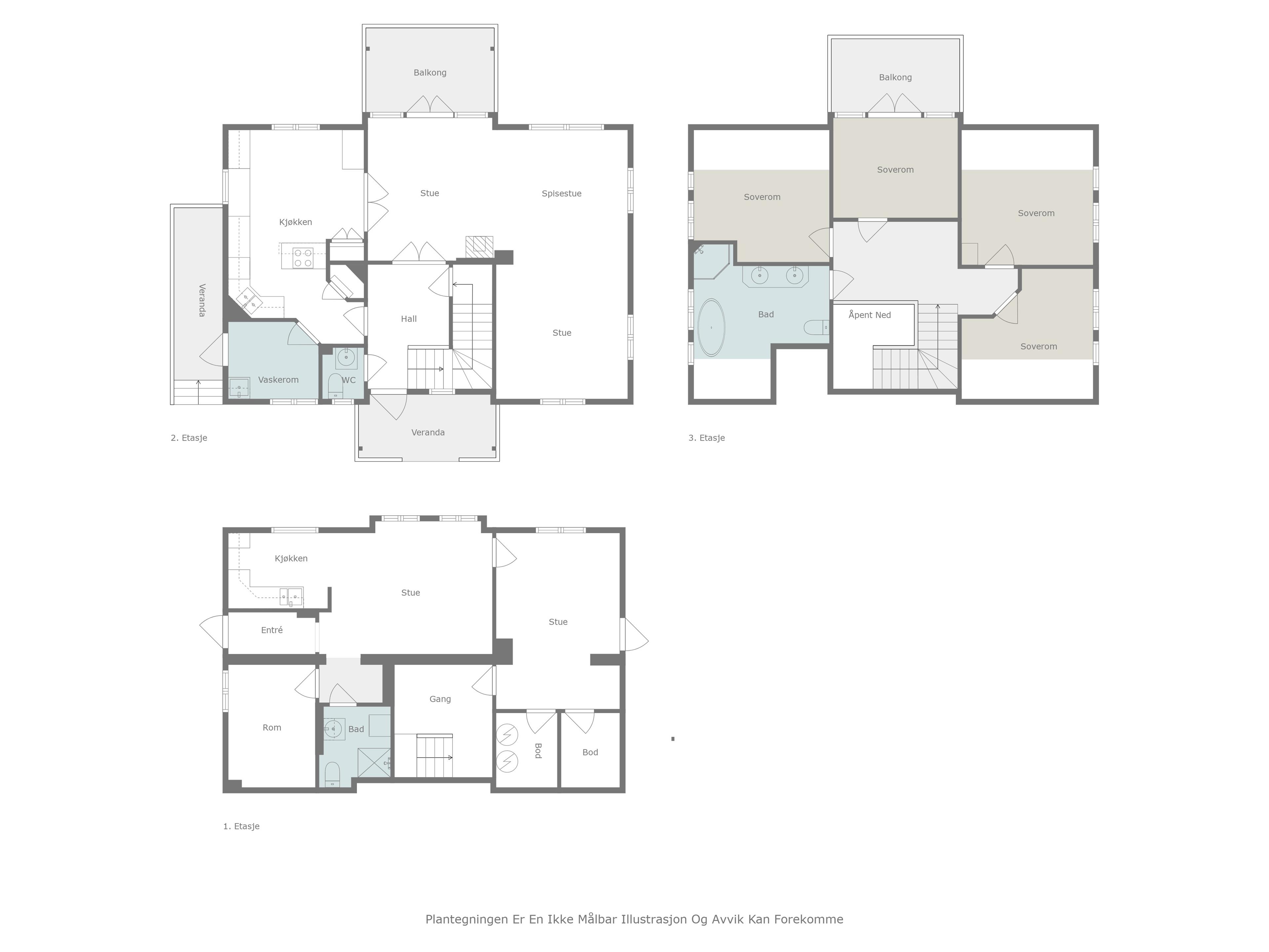
Fra stue i 2.etg er det utgang til en terrasse på ca. 7 kvm oppsatt i trekonstruksjoner.
Fra vaskerom er det utgang til en terrasse på ca. 6 kvm oppsatt i trekonstruksjoner.
Utvendig betong trapp kledd med fliser.
Garasje oppsatt i trekonstruksjoner.
Denne er ikke vurdert og det er ikke utarbeidet tilstandsrapport på bygget.
Men det kan nevnes at det det er registrert skjevheter, utettheter og fuktskader i bygget.
Må betraktes som er oppussingsobjekt.
Låve er oppsatt i trekonstruksjoner.
Denne er ikke vurdert og det er ikke utarbeidet tilstandsrapport på bygget.
Men det kan nevnes at det det er registrert skjevheter, utettheter og fuktskader i bygget.
Må betraktes som er oppussingsobjekt.
Se vedlagt boligsalgsrapport avholdt 30.07.25, hvor ovennevnte opplysninger er hentet fra, for
nærmere teknisk beskrivelse av eiendommen.
Takstmannen har utarbeidet en tilstandsrapport med gradering av eiendommens tilstand.
En tilstandsrapport beskriver boligens tilstand med synlige skader/avvik eller tegn på skader/avvik på
boligen. Rapporten fremhever vanligvis ikke positive egenskaper ved boligen. I felt hvor det er gitt
Tilstandsgrad 0 er det ingen avvik. I felt hvor det er gitt Tilstandsgrad 1 er det mindre avvik. Bygningsdeler
som tildeles Tilstandsgrad 2 angir mindre avvik som etter NS 3600 gir TG2 som ikke krever umiddelbare
tiltak eller vesentlige avvik som kan kreve tiltak. Bygningsdeler som tildeles Tilstandsgrad 3, har store
eller alvorlige avvik. Der det er angitt Tilstandsgrad IU er det ikke undersøkt eller bygningsdelen er ikke
tilgjengelig for undersøkelse.
I følge tilstandsrapport er det registrert følgende avvik på tilstandsgrad:
TG 3:
- Elektrisk anlegg: Det foreligger ikke el-tilsynsrapport siste 5 år. Det er registrert løse kontakter. Mangler
deksel på brytere, berøringsfare. Løse lampepunkter. Kurser anbefales merket.
- Branntekniske forhold: Røykvarsler anbefales byttet.
TG IU:
- Terrengforhold: Tomten er snødekt og derfor ikke nærmere vurdert.
- Utvendige vann- og avløpsledninger: Utvendige vann- og avløpsledninger er nedgrav og av naturlige
årsaker ikke sjekket.
TG 2:
- Taktekking: Mer enn halvparten av forventet brukstid er passert på taktekkingen.
- Nedløp og beslag: Det er ikke tilfredsstillende bortledning av vann fra taknedløp ved grunnmur. Mer enn
halvparten av forventet brukstid er passert på
renner/nedløp/beslag.
- Veggkonstruksjon: Dagens krav til isolering og tetthet er strengere enn de som var da denne
eiendommen ble bygget. Yttervegger er trolig isolert med datidens krav til isolasjon. Dette kan følgelig
ikke med sikkerhet stadfestes da det ligger skjult i byggkonstruksjonen. Noe tørkesprekker/enderåte
enkelte steder. Ikke konstatert musebånd.
- Takkonstruksjon/loft: Det er begrenset/dårlig ventilering. Isolasjon går noen steder helt ut til undertak.
- Utvendige vinduer: Tilstand settes med tanke på alder, noe kondensmerker enkelte steder.
- Utvendige dører: Mer enn halvparten av forventet brukstid er oppbrukt.
- Balkonger, terrasser og rom under balkonger: Rekkverket er for lavt i forhold til dagens krav til
rekkverkshøyder.
- Utvendige trapper: Noen ødelagte fliser.
- Innvendige overflater: Noe bruksslitasje/skade på overflater noe steder.
- Etasjeskille/gulv mot grunn: Det er målt høydeforskjell på mellom 15-30 mm gjennom hele rommet.
Tilstandsgrad 2 gis med bakgrunn i standardens krav til godkjente måleavvik.
- Radon: Det er ikke foretatt radonmålinger, og bygget er heller ikke utført med radonsperre.
- Pipe og ildsted: Mer enn halvparten av forventet brukstid er oppbrukt.
- Rom under terreng: Det er utforede vegger i U. etg. Dette er en risikokonstruksjon. Mulig skjult svikt. Det
er registrert fukt i kjellervegg.
- Innvendige trapper: Det mangler håndløper på vegg i trappeløpet. Mangler deler av håndløper.
- Innvendige dører: Bruksslitasje. Mangler beslag/dørvrider noen steder.
- Vannledninger: Vurdering er basert på alder. Tilstandsgrad 2 gis med bakgrunn i at mer enn halvparten
av forventet brukstid for skjulte røranlegg er
passert. Det er nå ingen symptomer på funksjonssvekkelse, men vær oppmerksom på at dette er en
risikokonstruksjon.
- Avløpsrør: Vurdering er basert på alder. Tilstandsgrad 2 gis med bakgrunn i at mer enn halvparten av
forventet brukstid for skjulte røranlegg er passert. Det er nå ingen symptomer på funksjonssvekkelse,
men vær oppmerksom på at dette er en risikokonstruksjon.
- Ventilasjon: Det er påvist mangelfull ventilasjon på ett eller flere rom i boligen. Noe innvendige klaff
ventiler er ødelagte.
- Varmesentral: Mer enn halvparten av forventet brukstid på varmesentral er oppbrukt. Ikke vært service i
senere tid.
- Varmtvannstank: Det er ikke påvist tilfredsstillende el-tilkobling av varmtvannstank iht. gjeldende forskrift.
Det er påvist at varmtvannstank er over 20 år.
- Fuktsikring og drenering: Mer enn halvparten av forventet levetid på drenering er overskredet.
- Grunnmur og fundamenter: Tilstand settes med tanke på alder.
- Overflater og konstruksjon toalettrom 1. etasje: Toalettrom har kun naturlig avtrekk fra rommet, NS 3600
krever mekanisk avtrekk for å kunne gi TG 0/1.
- Overflater og innredning kjøkken 1. etasje: Tilstand settes med tanke på alder. Noe bruksslitasje.
- Avtrekk kjøkken 1. etasje: Mer enn halvparten av forventet brukstid for ventilator er oppbrukt
- Overflater vegger og himling vaskerom 1. etasje: Mer enn halvparten av forventet brukstid er oppnådd.
- Overflater gulv vaskerom 1. etasje: Det er påvist at høydeforskjell fra topp slukrist til gulv/synlig topp
membran ved dørterskel er mindre enn 25 mm. Det er påvist avvik i fallforhold til sluk i forhold til krav i
forskrift på byggetidspunktet.
- Sluk, membran og tettesjikt vaskerom 1. etasje: Mer enn halvparten av forventet brukstid er passert på
membranløsningen.
- Sanitærutstyr og innredning vaskerom 1. etasje: Mer enn halvparten av forventet brukstid er oppbrukt.
- Ventilasjon vaskerom 1. etasje: Rommet har kun naturlig ventilasjon.
- Overflater vegger og himling bad 2. etasje: Mer enn halvparten av forventet brukstid er oppnådd.
- Overflater gulv bad 2. etasje: Det er påvist at høydeforskjell fra topp slukrist til gulv/synlig topp membran
ved dørterskel er mindre enn 25 mm. Det er påvist avvik i fallforhold til sluk i forhold til krav i forskrift på
byggetidspunktet. Gulv er relativt flatt.
- Sluk, membran og tettesjikt bad 2. etasje: Mer enn halvparten av forventet brukstid er passert på
membranløsningen.
- Sanitærutstyr og innredning bad 2. etasje: Det er påvist fuktskjolder/svelling i skapinnredning. Det er
registrert skader på dusjkabinett. Merke på wc.
- Ventilasjon bad 2. etasje: Rommet har kun naturlig ventilasjon.
- Overflater og innredning kjøkken kjeller: Tilstand settes med tanke på alder. Noe bruksslitasje.
- Avtrekk kjøkken kjeller: Mer enn halvparten av forventet brukstid for ventilator er oppbrukt.
- Overflater vegger og himling bad kjeller: Mer enn halvparten av forventet brukstid er oppnådd.
- Overflater gulv bad kjeller: Det er påvist at høydeforskjell fra topp slukrist til gulv/synlig topp membran ved
dørterskel er mindre enn 25 mm. Det er påvist avvik i fallforhold til sluk i forhold til krav i forskrift på
byggetidspunktet. Noe løse fuger i gulv.
- Sluk, membran og tettesjikt bad kjeller: Mer enn halvparten av forventet brukstid er passert på
membranløsningen.
- Sanitærutstyr og innredning bad kjeller: Mer en halvparten av forventet brukstid er oppbrukt.
- Ventilasjon bad kjeller: Rommet har kun naturlig ventilasjon.
For øvrig er det kun mindre avvik med TG 1 og TG 0.