Byggemåte
Boligen må betraktes som et renoveringsobjekt.
Tak er tekket med eternittplater. Etter byggemåte med sløyfer, lekter og undertak.
Takrenner, beslag og nedløp i plastbelagt stål.
Isolert bindingsverk fra byggeår. Utvendig kledd med liggende og stående trepanel. Overflatebehandlet.
U.etg har pusset og malt fasade.
Isolerglass i treramme. Overflatebehandlet. Trevinduer med koblet glass.
Ytterdør i tre. Verandadør i tre med isolerglass.
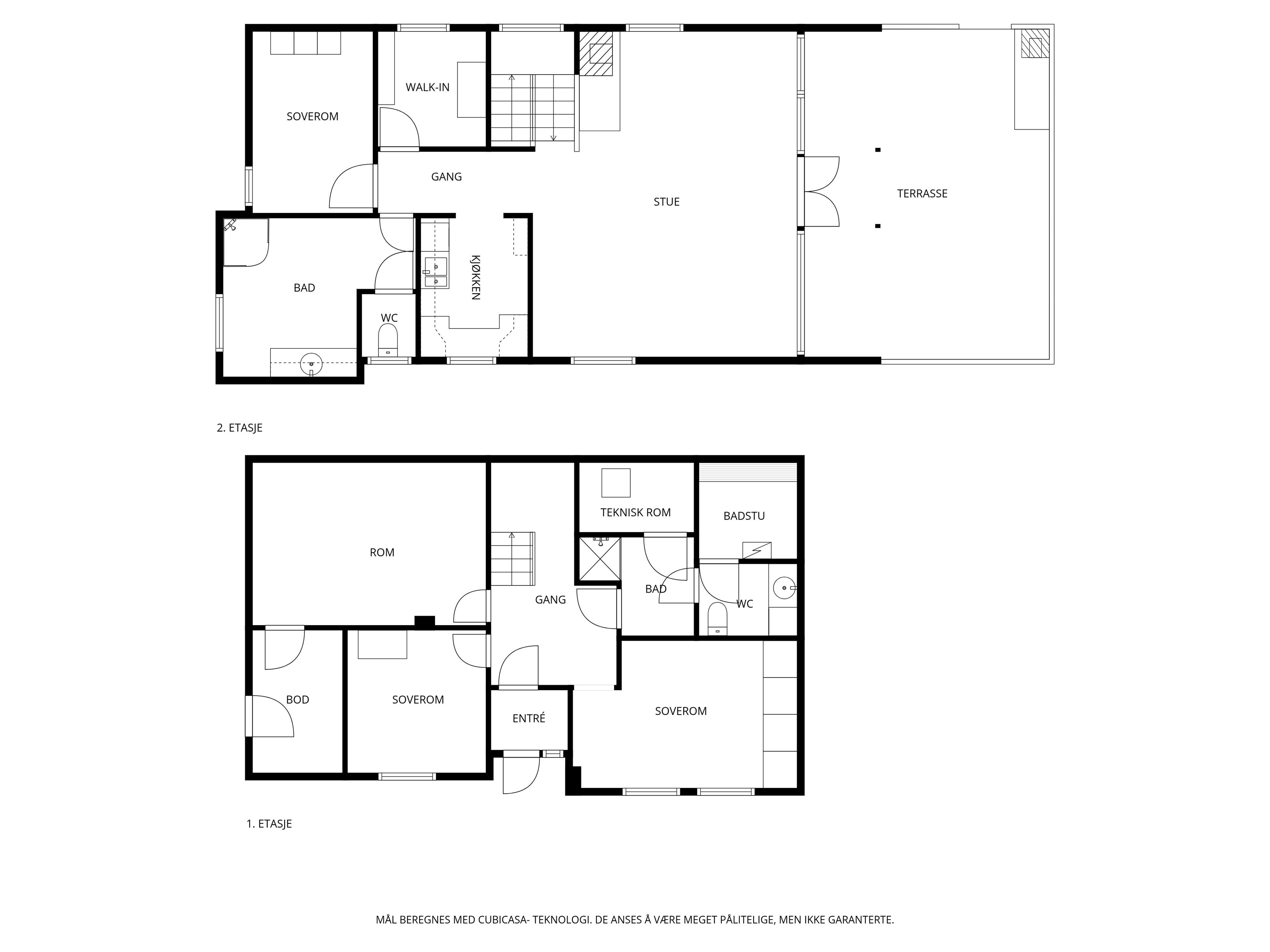
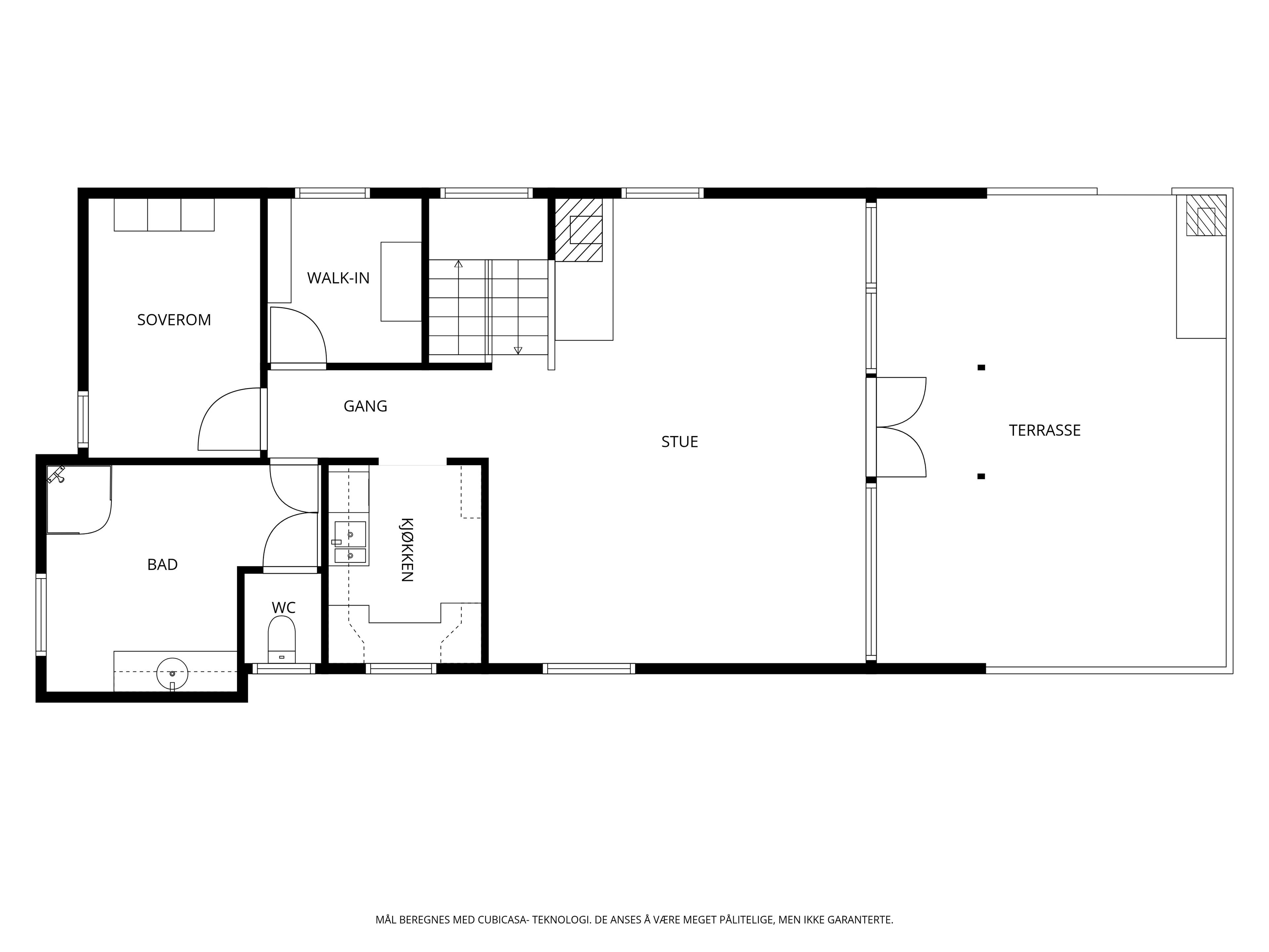
Fra stue er det utgang til en terrasse på ca 40 kvm oppsatt i trekonstruksjoner.
Det står en utepeis på terrasse.
Utvendig trapp i stein- murkonstruksjoner.
Se vedlagt boligsalgsrapport avholdt 03.11.25, hvor ovennevnte opplysninger er hentet fra, for
nærmere teknisk beskrivelse av eiendommen.
Takstmannen har utarbeidet en tilstandsrapport med gradering av eiendommens tilstand.
En tilstandsrapport beskriver boligens tilstand med synlige skader/avvik eller tegn på skader/avvik på
boligen. Rapporten fremhever vanligvis ikke positive egenskaper ved boligen. I felt hvor det er gitt
Tilstandsgrad 0 er det ingen avvik. I felt hvor det er gitt Tilstandsgrad 1 er det mindre avvik. Bygningsdeler
som tildeles Tilstandsgrad 2 angir mindre avvik som etter NS 3600 gir TG2 som ikke krever umiddelbare
tiltak eller vesentlige avvik som kan kreve tiltak. Bygningsdeler som tildeles Tilstandsgrad 3, har store
eller alvorlige avvik. Der det er angitt Tilstandsgrad IU er det ikke undersøkt eller bygningsdelen er ikke
tilgjengelig for undersøkelse.
I følge tilstandsrapport er det registrert følgende avvik på tilstandsgrad:
TG 3:
- Taktekking: Mer enn halvparten av forventet brukstid er passert på taktekkingen. Mer enn halvparten av
forventet brukstid er passert på undertak.
- Veggkonstruksjon: Det er ingen eller liten lufting i nedre kant av kledning mot grunnmur. Det er påvist
fuktskader i veggkonstruksjonen. Det er påvist spredte råteskader i bordkledningen.
- Takkonstruksjon/loft: Det er begrenset/dårlig ventilering av takkonstruksjonen. Det er påvist
fukt-/råteskader i takkonstruksjonen.
- Vinduer: Karmene i vinduer er slitte og det er sprekker i trevirket. Registrert sopp og råte i flere vinduer.
- Dører: Det er påvist dør(er) med fukt/råteskader. Inngangsdør og verandadør er skadet.
- Balkonger, terrasser og rom under balkonger: Det er påvist fukt-/råteskader i konstruksjonen. Rekkverket
er for lavt i forhold til dagens krav til rekkverkshøyder. Terrasse er underdimensjonert.
- Utvendige trapper: Det er ikke montert rekkverk. Det er skjevheter og sprekker i trapp.
- Innvendige overflater: Det er stedvis påvist synlige skader på overflater. Overflater har en del slitasjegrad
utover det en kan forvente.
- Etasjeskille/gulv mot grunn: Det er registrert symptom på sopp/råte.
- Pipe og ildsted: Pipevanger er ikke synlige. Sotmerker på peis.
- Rom under terreng: Det er påvist fuktighet i oppforet tregulv i underetg/kjeller, og det er derfor ikke foretatt
hulltaking. Det er påvist synlige fukt/råteskader i treverk i underetg./kjeller, hulltaking er derfor ikke
nødvendig. Det er store sopp og råteskader i hele underetasje.
- Innvendige dører: Skader på flere dører.
- Vannledninger: Stoppekran er ikke lokalisert eller tilgjengelig.
- Avløpsrør: Det er registrert feil/mangler på anlegget.
- Ventilasjon: Det er påvist store avvik på ventilasjonsløsning i forhold til byggets oppføringstidspunkt.
- Andre VVS-installasjoner: Radiatorer - Mer enn halvparten av forventet brukstid på VVS-installasjoner er
oppbrukt. Det er usikkert på om dette er tilkoblet eller virker.
- Varmtvannstank: Det er påvist at varmtvannstank er over 20 år.
- Elektrisk anlegg: Historikk på anlegget er ukjent. Det foreligger ikke dokumentasjon på anlegget eller
utført arbeid. Store deler av anlegget må byttes.
- Utstyr for varsling og slukking av brann: Røykvarslere og slukkeapparat må monteres.
- Fuktsikring og drenering: Mer enn halvparten av forventet levetid på drenering er overskredet. Det er ut
ifra observasjoner konstatert at drenering/tettesjikt har funksjonssvikt/svært begrenset effekt. Dreneringen
er utilstrekkelig og har idag begrenset effekt.
- Grunnmur og fundamenter: Grunnmuren har sprekkdannelser.
- Terrengforhold: Det er påvist dårlig fall eller flatt terreng inn mot grunnmur og dermed muligheter for
større vannansamlinger. Terrenget faller inn mot bygningen og det er maksimale forhold for vann inn mot
muren.
- Oljetank: Det er ikke påvist tilfredsstillende lekkasjesikring på oljetank som er i bruk. Det er opplyst om
at oljetank er sanert, men tilfredsstillende
dokumentasjon mangler.
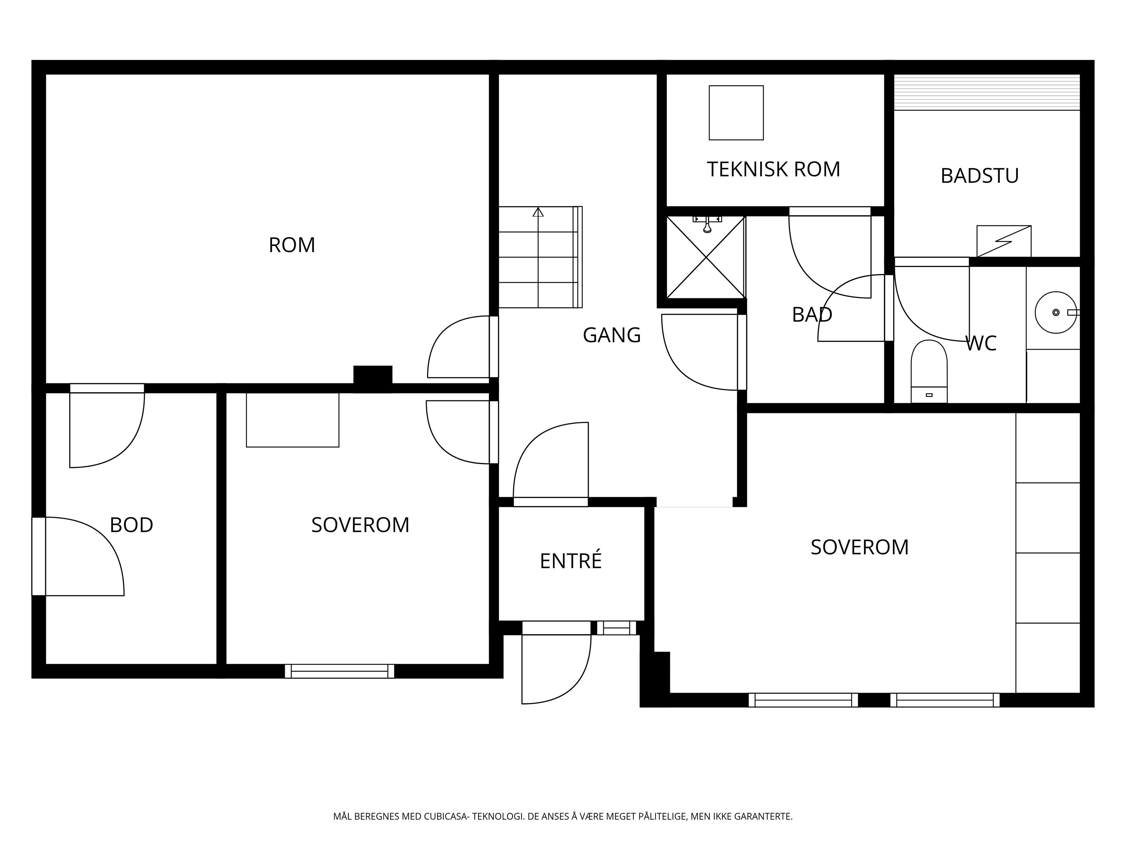
- Bad 1. etasje: Våtrommet må oppgraderes for å tåle normal bruk etter dagens krav.
- Tilliggende konstruksjoner bad 1. etasje: Hulltaking er foretatt og det er påvist avvik i konstruksjonen.
Ved andre fuktundersøkelser enn hulltaking, er det påvist indikasjoner på fuktskader.
- Overflater og innredning kjøkken: Det er påvist at overflater/kjøkkeninnredning har omfattende skader.
- Avtrekk kjøkken: Kjøkkenventilatoren virker ikke.
- Bad U. etasje: Våtrommet må oppgraderes for å tåle normal bruk etter dagens krav.
- Tilliggende konstruksjoner bad U. etasje: Hulltaking er foretatt og det er påvist avvik i konstruksjonen.
Ved andre fuktundersøkelser enn hulltaking, er det påvist indikasjoner på fuktskader.
TG IU:
- Utvendige vann- og avløpsledninger: Utvendige vann- og avløpsledninger er nedgrav og av naturlige
årsaker ikke sjekket. Det er ikke opplyst om pålegg, funksjonsfeil eller andre mangler ved anlegget.
TG 2:
- Nedløp og beslag: Det er ikke tilfredsstillende bortledning av vann fra taknedløp ved grunnmur. Det
mangler snøfangere på hele eller deler av taket, men det var ikke krav om dette på
byggemeldingstidspunktet. Mer enn halvparten av forventet brukstid er passert på renner/nedløp/beslag.
- Radon: Det er ikke foretatt radonmålinger, og bygget er heller ikke utført med radonsperre.
- Innvendige trapper: Trapp har store bruksslitasjer og fukt skader.
- Forstøtningsmurer: Det er påvist mindre sprekker og/eller skjevheter i muren.
For øvrig er det kun mindre avvik med TG 1 og TG 0.