Vi har byttet meglersystem. Noe avvik kan derfor forekomme. Kontakt oss om du opplever utfordringer.
Vi har byttet meglersystem. Noe avvik kan derfor forekomme. Kontakt oss om du opplever utfordringer.
logo
search
879720971374311
Flott beliggende enebolig på Tranby i Hansebråtan 5. ( 1 av )
879720971374307
( 2 av )
879720971374323
Huset ligger på en pent opparbeidet og frodig hjørnetomt på ca. 877 kvm. ( 3 av )
879720971374300
Veranda på ca. 53 kvm vendt mot sydvest. ( 4 av )
879720971374301
God plass til flere soner for grilling, avslapping og sosialisering. ( 5 av )
879720971374303
Flott utsikt fra eiendommen. ( 6 av )
879720971374302
Verandaen har utgang både fra stuen, kjøkkenet og i fra det ene soverommet oppe. ( 7 av )
879720971374310
Gruset adkomst med gode parkeringsmuligheter. Integrert garasje på venstre side. ( 8 av )
879720971374320
( 9 av )
879720971374318
Området er rolig, men likevel barnevennlig med under 5 minutters gange til barneskolen. ( 10 av )
879720971374312
( 11 av )
879720971374292
Inngang i underetasjen. ( 12 av )
879720971374288
Flislagt trappegang. ( 13 av )
879720971374305
Romslig utformet stue med plass til spisebord og sofagruppe i egne soner. ( 14 av )
879720971374304
Midt i rommet er det også en peis som sørger for god oppvarming. ( 15 av )
879720971374309
Stuen har downlightsbelysning, store vinduer og skyvedør i glass ut til verandaen. ( 16 av )
879720971374306
( 17 av )
879720971374308
( 18 av )
879720971374298
Separat kjøkken med plass til spisebord og utgang til verandaen. ( 19 av )
879720971374299
( 20 av )
879720971374295
Hovedsoverom med utgang til verandaen. ( 21 av )
879720971374296
Soverom 2. ( 22 av )
879720971374324
Soverom 3. ( 23 av )
879720971374325
Rom benyttet som soverom (godkjent som bod pdd.) ( 24 av )
879720971374290
Rom benyttet som stue (ikke omsøkt) med vedovn. Bod i bakkant. ( 25 av )
879720971374289
( 26 av )
879720971374327
Vaskerommet er av eldre dato, men fliser på gulvet er lagt i 2021. ( 27 av )
879720971374287
Separat toalettrom i underetasjen. ( 28 av )
879720971374293
Flislagt bad med både badekar og dusjkabinett. ( 29 av )
879720971374294
Badet ligger i 1. etasje, mens toalettrom og vaskerom er plassert i underetasjen. ( 30 av )
879720971374291
Bod. ( 31 av )
879720971374326
Bod. ( 32 av )
879720971374361
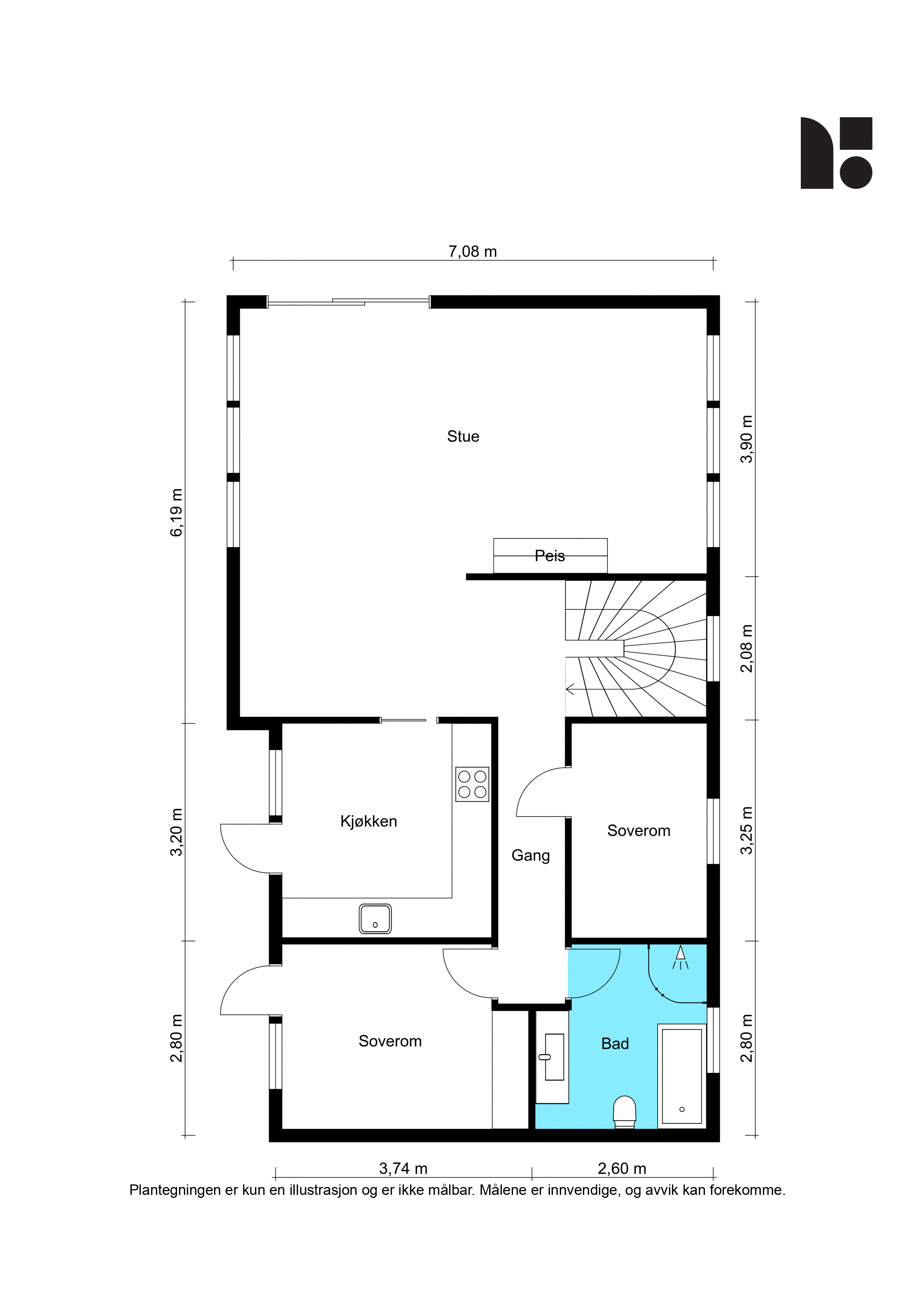
Plantegning 1. etasje. ( 33 av )
879720971374417
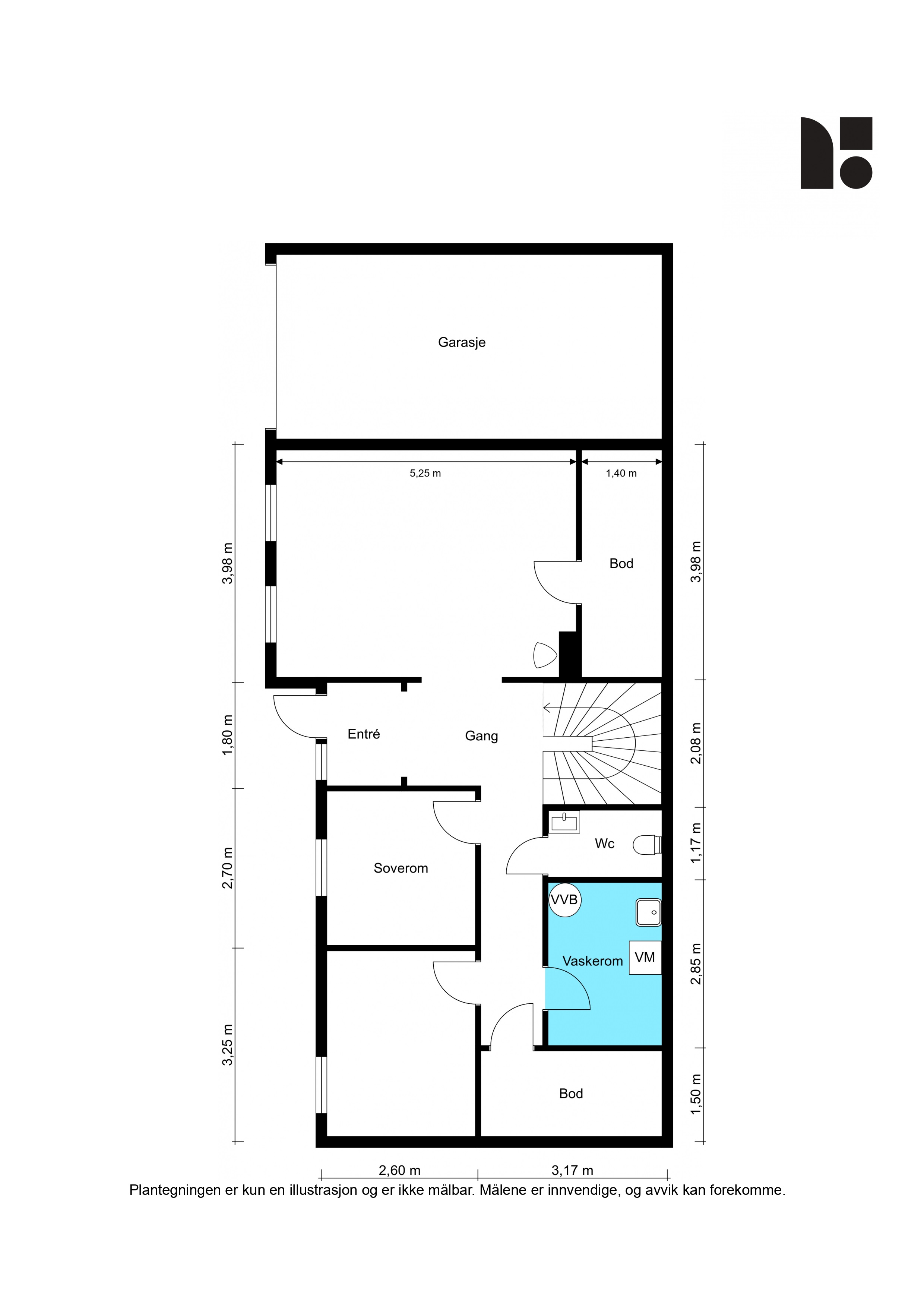
Plantegning underetasje. ( 34 av )
879720971374321
Over hele boligområdet er det opparbeidet interne gangstier, noe som gjør bl.a skoleveien trygg for de minste. ( 35 av )
879720971374314
Under 5 minutters gange til barneskolen og flere barnehager. ( 36 av )
879720971374316
Etablert og hyggelig nabolag på Tranby bestående primært av eneboliger. ( 37 av )
830242948127181
Over hele boligområdet er det opparbeidet interne gangstier, noe som gjør bl.a skoleveien trygg for de minste. ( 38 av )

Hansebråtan 5

Se alle bilder (0)
879720971374311
879720971374307
879720971374323
879720971374300
879720971374301
879720971374303
879720971374302
879720971374310
879720971374320
879720971374318
879720971374312
879720971374292
879720971374288
879720971374305
879720971374304
879720971374309
879720971374306
879720971374308
879720971374298
879720971374299
879720971374295
879720971374296
879720971374324
879720971374325
879720971374290
879720971374289
879720971374327
879720971374287
879720971374293
879720971374294
879720971374291
879720971374326
879720971374361
879720971374417
879720971374321
879720971374314
879720971374316
830242948127181

Hansebråtan 5

Prisantydning:
Kr 6900000
Totalpris:
Kr 7091490
BRA:
189
BRA-i:
163
Soverom:
3
Boligtype:
Enebolig
Eierform:
Eiet​
Byggeår:
1983
Etasje:
2
Tomteareal:
877,3

Frittliggende enebolig med sydvestvendt veranda og flott utsikt. Integrert garasje. Under 5 min gange til barneskolen.

Eneboligen i Hansebråtan 5 ligger fint til på feltet, i et familietilpasset og etterspurt område på Tranby. Fra huset er det trygg og kort gangvei helt frem til Hennummarka barneskole, som nås på under 5 minutter. I gangavstand ligger også flere barnehager. Et aktivt nærmiljø med mange barnefamilier - ideelt for en trygg og god oppvekst. Huset går over to etasjer og har en god planløsning som kan tilpasses familien over tid. Velholdt og romslig. Ute er det frodig og solrikt med stor vinkelterrasse mot sydvest på 53kvm og fin utsikt. Pent opparbeidet hjørnetomt med stor hage, gruset gårdsplass. - I 2023 ble det lagt ny papp, sløyfer, lekter og takstein. Nye takrenner, nedløp og beslag. Ny takhatt og helbeslag av pipe. Satt på snøfangere. - I 2019 ble det skiftet ytterdør og garasjeport.
Ansvarlig megler:
Fredrik Engebråten

Partner / Eiendomsmegler

Visning

For at vår megler og selger skal kunne gi deg den beste oppfølgingen og kjøpsopplevelsen er det obligatorisk påmelding til alle våre visninger. Dersom ditt reserverte tidspunkt likevel ikke kan benyttes trenger vi beskjed så tidlig som mulig sånn at vi kan finne en alternativ løsning. Vi har alltid tid til deg. Visninger uten påmeldte deltagere avlyses.

05.05.2026 17:30 - 18:30

Legg visning til i kalender 05.05.2026 17:30 05.05.2026 18:30 Central European Time Visning av Hansebråtan 5, 3409 TRANBY Boligvisning av Hansebråtan 5, 3409 TRANBY Hansebråtan 5, 3409 TRANBY

Passer ikke visningstidspunktene?

Avtal privatvisning her
Visningspåmelding

Hansebråtan 5

image005

Nøkkelinformasjon

plus_G

Områdebeskrivelse

plus_G
minus_G

Beskrivelse av eiendommen

plus_G
minus_G

Takst og Tilstand

plus_G
minus_G

Borettslaget/sameie/økonomi

plus_G
minus_G

Offentlige forhold

plus_G
minus_G

Prisantydning inkl. omkostninger

plus_G
minus_G

Øvrige kjøpsforhold

plus_G
minus_G

Dokumenter

plus_G

Del boligen

facebook-gold
Twitter-gold

Lurer du på noe om denne boligen?

Ta kontakt under via skjemaet.



Relaterte boliger

879720971371543
7300000 

Øvre Solspillet 4

Lier ­ LIER
Stor og delikat familiebolig i blindvei med panoramautsikt, 140m² uteplasser & dobbelgarasje. 4 sov. Rolig og markanært

Totalpris:

Kr 7500490

BRA-i:

212 m²
879720971373769
4250000 

Syrinveien 11B

Lier ­ TRANBY
Strøken 4-roms toppleilighet - totaloppusset i 21/22.Innglasset balkong m/utsikt.Varmtvann og fyring inkl. i felleskost

Totalpris:

Kr 4342859

BRA-i:

94 m²
879720971372781
4250000 

Dokka 27

Lier ­ REISTAD
Rålekker 3-roms selveier fra 2020, ytterligere oppgradert i 2022-2025, garasje og heis, vestvendt balkong m/utsikt

Totalpris:

Kr 4369240

BRA-i:

62 m²
879720971370863
6500000 

Saueveien 40

Lier ­ LIER
Fint beliggende enebolig på 1 måls hjørnetomt. Nydelig hage og solrik terrasse. 3 soverom + 2 bad. Garasje.

Totalpris:

Kr 6681490

BRA-i:

202 m²
Se flere boliger
Bolig til salgs

Inspirasjon

Inspirerende interiørbilder fra norske hjem.
sov1
Soverom
kjo1
Kjøkken
stue
Stue

Boligartikler

Nyttig informasjon, råd og inspirasjon for deg som er opptatt av bolig.
art

Hvilken tid på året er best for å selge bolig?

Først og fremst avhenger tidspunktet av både boligtype og boligens fasiliteter når du skal selge bolig. Rekkehus med hage eller sentrumsleilighet...
hage4

Dette bør du gjøre for å øke boligens verdi før salg

Du har sikkert hørt flere nyttige råd i forbindelse med klargjøring av bolig før salg. Male tak og vegger, gå over alle lyskilder og høytrykk-spyle...
GA4

Slik gjør du boligen klar for salg; - Jeg fikk konkrete råd før foto

Mange er i gang med det årlige vedlikeholdsarbeidet, spesielt utendørs rundt boligen. Da Robert skulle selge eneboligen i Gåseidmarka i Ålesund kom...