Vi har byttet meglersystem. Noe avvik kan derfor forekomme. Kontakt oss om du opplever utfordringer.
Vi har byttet meglersystem. Noe avvik kan derfor forekomme. Kontakt oss om du opplever utfordringer.
logo
search
879720971372758
Vestvendt 2-roms andelsleilighet i Berberissveien 31B - presentert av Proaktiv v/Alexander Abelseth. ( 1 av )
879720971372770
Leiligheten ligger i de populære blokkene sentralt på Tranby med kort vei til hverdagens nødvendigheter. ( 2 av )
879720971372759
Utenfor stuen ligger en innglasset balkong med sol, utsikt og store vinduer som kan åpnes opp på de fineste dagene. ( 3 av )
879720971372780
Her kan man også sitte ute i all slags vær og vind når vinduene er igjen. ( 4 av )
879720971372762
God plass til utemøblementet på ca. 15 kvm. Fliser på dekket, utebelysning på vegg og dobbel stikkontakt. ( 5 av )
879720971372779
Like bak blokka ligger Tranby ungdomsskole, Hallingstad barneskole, Tranby idrettspark og Extra-butikk. ( 6 av )
879720971372768
( 7 av )
879720971372760
Bilde fra Berberissveien 31B ( 8 av )
879720971372761
Stuen er lettmøblert med plass til både spisebord og sofasone. ( 9 av )
879720971372778
( 10 av )
879720971372773
Veggene er malt i lyse farger, og det er parkett på gulvet. Skyvedør ut til balkongen. ( 11 av )
879720971372775
( 12 av )
879720971372767
Bilde fra Berberissveien 31B ( 13 av )
879720971372766
Bilde fra Berberissveien 31B ( 14 av )
879720971372769
Bilde fra Berberissveien 31B ( 15 av )
879720971372772
Leiligheten har ett soverom med plass til seng, nattbord og garderobeskap. ( 16 av )
879720971372764
( 17 av )
879720971372763
Bilde fra Berberissveien 31B ( 18 av )
879720971372765
( 19 av )
879720971372771
Innvendig bod. Det medfølger også én ekstern bod. ( 20 av )
879720971372777
Garasjeplass i felles, oppvarmet anlegg under bakken. ( 21 av )
879720971372774
Felles bod i borettslaget. ( 22 av )
879720971372864
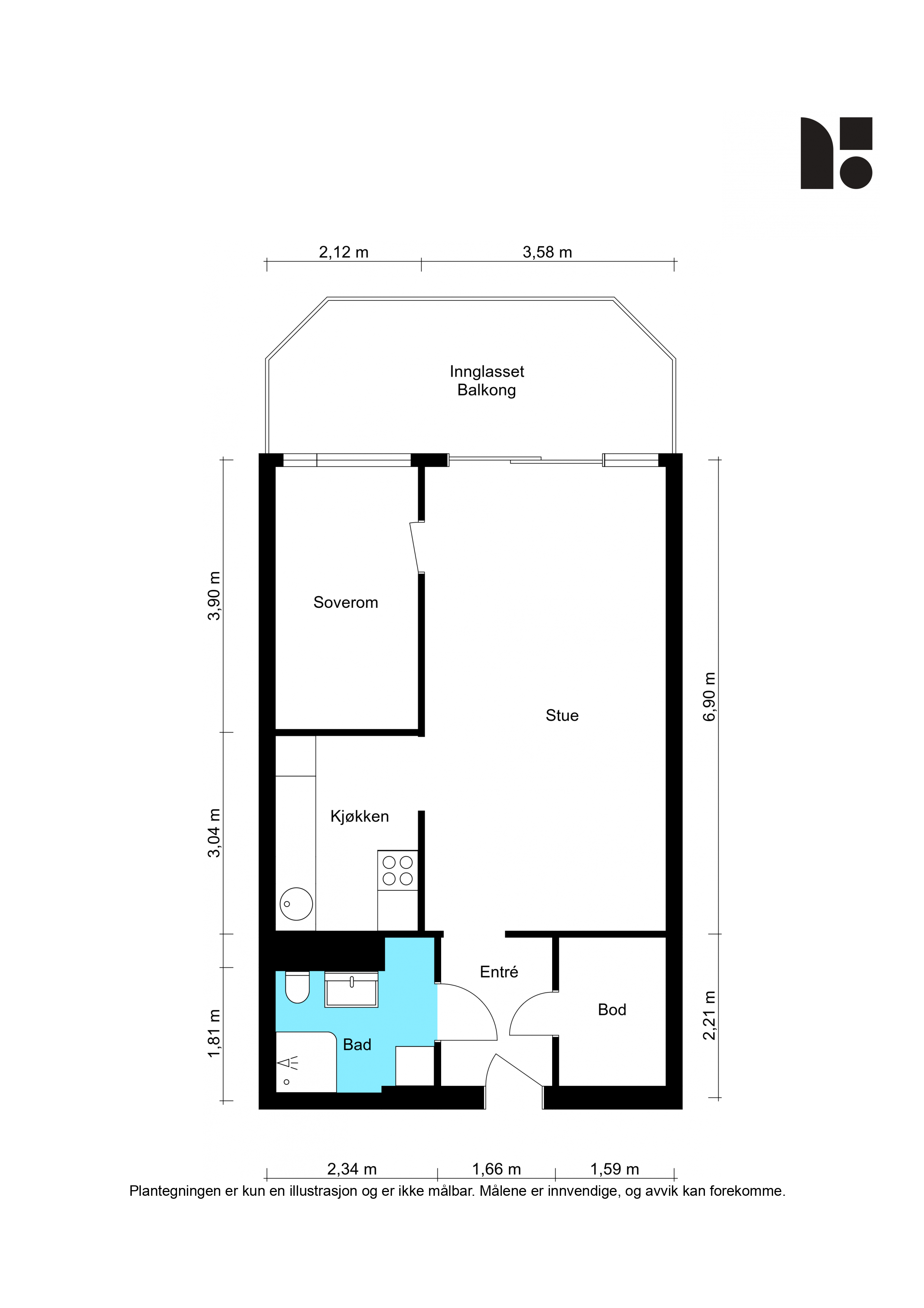
Plantegning. ( 23 av )
879720971372865
Bilde fra Berberissveien 31B ( 25 av )
879720971372866
Bilde fra Berberissveien 31B ( 26 av )
879720971372867
Bilde fra Berberissveien 31B ( 27 av )
879720971372868
Bilde fra Berberissveien 31B ( 28 av )
879720971372869
Bilde fra Berberissveien 31B ( 29 av )
879720971372870
Bilde fra Berberissveien 31B ( 30 av )
879720971372871
Bilde fra Berberissveien 31B ( 31 av )
879720971372872
Bilde fra Berberissveien 31B ( 32 av )
879720971372873
Bilde fra Berberissveien 31B ( 33 av )
879720971372874
Bilde fra Berberissveien 31B ( 34 av )
879720971372875
Bilde fra Berberissveien 31B ( 35 av )
879720971372876
Bilde fra Berberissveien 31B ( 36 av )
879720971372877
Bilde fra Berberissveien 31B ( 37 av )
879720971372878
Bilde fra Berberissveien 31B ( 38 av )
879720971372879
Bilde fra Berberissveien 31B ( 39 av )
879720971372880
Bilde fra Berberissveien 31B ( 40 av )
879720971372881
Bilde fra Berberissveien 31B ( 41 av )
879720971372882
Bilde fra Berberissveien 31B ( 42 av )

Berberissveien 31B

Se alle bilder (0)
879720971372758
879720971372770
879720971372759
879720971372780
879720971372762
879720971372779
879720971372768
879720971372760
879720971372761
879720971372778
879720971372773
879720971372775
879720971372767
879720971372766
879720971372769
879720971372772
879720971372764
879720971372763
879720971372765
879720971372771
879720971372777
879720971372774
879720971372864
879720971372865
879720971372866
879720971372867
879720971372868
879720971372869
879720971372870
879720971372871
879720971372872
879720971372873
879720971372874
879720971372875
879720971372876
879720971372877
879720971372878
879720971372879
879720971372880
879720971372881
879720971372882

Berberissveien 31B

Prisantydning:
Kr 2500000
Totalpris:
Kr 2608056
BRA:
71
BRA-i:
54
Soverom:
1
Boligtype:
Leilighet
Eierform:
Andel​
Byggeår:
1972
Etasje:
3
Tomteareal:
14264

Lettstelt 2-roms leilighet med innglasset balkong. Garasjeplass. Vestvendt med flott utsikt. Fjernvarme

Leiligheten i Berberissveien 31B ligger i de populære blokkene sentralt på Tranby. Her bor du i et rolig nabolag, hvor grønne omgivelser og et trygt miljø danner rammen rundt hverdagen. Rett utenfor døren finner du skoler, barnehage, fritidsaktiviteter, matbutikk og fine turområder. Det er også kort vei ut til E18-aksen hvor man bruker ca. 15 min til Drammen, eller under halvtimen til Oslo. Kort gangavstand til bussholdeplass med forbindelse til Asker, Drammen og Oslo. Vestvendt beliggende i 3. etasje med innglasset balkong på 15 kvm. Her har man sol, flott utsikt og store vinduer som kan åpnes opp. Garasjeplass medfølger (opplegg for elbillader skal etableres). God planløsning med entré, bod, stue, separat kjøkken, bad med opplegg for vaskemaskin og ett soverom. Utvendig bod.
Ansvarlig megler:
Alexander Abelseth

Daglig leder / Partner / Eiendomsmegler

Visning

09.03.2026 18:30 - 19:00

Legg visning til i kalender 09.03.2026 18:30 09.03.2026 19:00 Central European Time Visning av Berberissveien 31B, 3408 TRANBY Boligvisning av Berberissveien 31B, 3408 TRANBY Berberissveien 31B, 3408 TRANBY

Passer ikke visningstidspunktene?

Visningspåmelding
Avtal privatvisning her

Berberissveien 31B

image005

Nøkkelinformasjon

plus_G

Områdebeskrivelse

plus_G
minus_G

Beskrivelse av eiendommen

plus_G
minus_G

Takst og Tilstand

plus_G
minus_G

Borettslaget/sameie/økonomi

plus_G
minus_G

Offentlige forhold

plus_G
minus_G

Prisantydning inkl. omkostninger

plus_G
minus_G

Øvrige kjøpsforhold

plus_G
minus_G

Dokumenter

plus_G

Del boligen

facebook-gold
Twitter-gold

Lurer du på noe om denne boligen?

Ta kontakt under via skjemaet.


Relaterte boliger

879720971372781
4400000 

Dokka 27

Lier ­ REISTAD
Rålekker 3-roms selveier fra 2020, ytterligere oppgradert i 2022-2025, garasje og heis, vestvendt balkong m/utsikt

Totalpris:

Kr 4522990

BRA-i:

62 m²
879720971372598
3850000 

Syrinveien 13B

Lier ­ TRANBY
Fin 4-roms leilighet med trappefri adkomst. To stuer. Innglasset terrasse på 24m². Bad og vaskerom. . Vannbåren radiatorvarme.

Totalpris:

Kr 3948472

BRA-i:

110 m²
879720971371543
7300000 

Øvre Solspillet 4

Lier ­ LIER
Stor og delikat familiebolig i blindvei med panoramautsikt, 140m² uteplasser & dobbelgarasje. 4 sov. Rolig og markanært

Totalpris:

Kr 7500490

BRA-i:

212 m²
879720971372651
3450000 

Kunterudveien 12D

Lier ­ GULLAUG
Vestvendt 4-roms leilighet med 25m² balkong. Vidstrakt utsikt, sol og naturnær beliggenhet. Garasjeplass m/elbillader.

Totalpris:

Kr 4110838

BRA-i:

100 m²
879720971372561
6100000 

Gamle Ringeriksvei 37

Lier ­ TRANBY
Enebolig med moderniseringsbehov i landlig og sentralt område. Solrikt. Fin utsikt. 5 garasjeplasser. 1,4 måls tomt.

Totalpris:

Kr 6271490

BRA-i:

142 m²
879720971370832
2600000 

Frydenlund 22C

Lier ­ LIERSTRANDA
Fin 2-roms toppleilighet med fjordutsikt og sydvestvendt balkong. Bad fra 2023. Ingen gjenboere. Kort vei til Drammen.

Totalpris:

Kr 3052327

BRA-i:

55 m²
879720971371677
5750000 

Stoppenkollen 17

Lier ­ LIER
Eksklusiv 3-roms selveierleilighet fra 2021 med spektakulær utsikt, heis, garasjeplass og balkong på 19m².

Totalpris:

Kr 5912740

BRA-i:

77 m²
879720971371612
4490000 

Røykenveien 59

Lier ­ GULLAUG
Flott halvpart av tomannsbolig på 168 m². To plan. Usjenert med fin fjordutsikt. Veranda, fast p-plass og felles hage.

Totalpris:

Kr 4616240

BRA-i:

168 m²
879720971370908
6800000 

Saueveien 40

Lier ­ LIER
Fint beliggende enebolig på 1 måls hjørnetomt. Nydelig hage og solrik terrasse. 3 soverom + 2 bad. Garasje.

Totalpris:

Kr 6988990

BRA-i:

202 m²
879720971370497
4450000 

Roseveien 39F

Lier ­ TRANBY
Påkostet og delikat enderekkehus m/ ekstra stor uteplass. Særdeles barnevennlig. Garasjeplass. 4 soverom. Flytt rett inn

Totalpris:

Kr 4867597

BRA-i:

122 m²
Se flere boliger
Bolig til salgs

Inspirasjon

Inspirerende interiørbilder fra norske hjem.
sov1
Soverom
kjo1
Kjøkken
stue
Stue

Boligartikler

Nyttig informasjon, råd og inspirasjon for deg som er opptatt av bolig.
_RM_9989
Aktuelt

E-takst vs. verdivurdering – hva er forskjellene?

Skal du refinansiere eller selge bolig, møter du begrepene E-takst og verdivurdering. Folk bruker dem om hverandre, men det finnes viktige...
_RM_0829

Digital verdivurdering vs meglers verdivurdering – dette må du vite

En digital verdivurdering gir et raskt, automatisk estimat basert på data og algoritmer. En meglers verdivurdering bygger på fysisk befaring, faglig...
artikkelaug
Aktuelt

E-takst - Hva er det og hvorfor trenger du det?

En e-takst er en elektronisk verdivurdering av en bolig som utføres av eiendomsmegler, og som sier hva boligen din er verdt i dagens marked. Den er...