Standard
Når en kommer inn i boligen har en gode muligheter til å henge fra seg yttertøy i gangen. Fra gangen er
det tilkomst til et romslig vaskerom med garderobemuligheter. Vaskerommet er ikke godkjent til varig
opphold.
Det er 3 soverom boligen som ligger i første etasje. 3 lyse og gode soverom med godt med
garderobeplass. Fra hovedsoverommet er det utgang til en hage, hvor en kan bruke kreativiteten og lage
en fin uteplass.
Lekkert baderom som er pent innredet med vegghengt toalett, dusj og baderomsservant. Her er det god
plass til oppbevaring av diverse.
I første etasje er det også er toalettrom som er perfekt når en har gjester på besøk eller barn i hus.
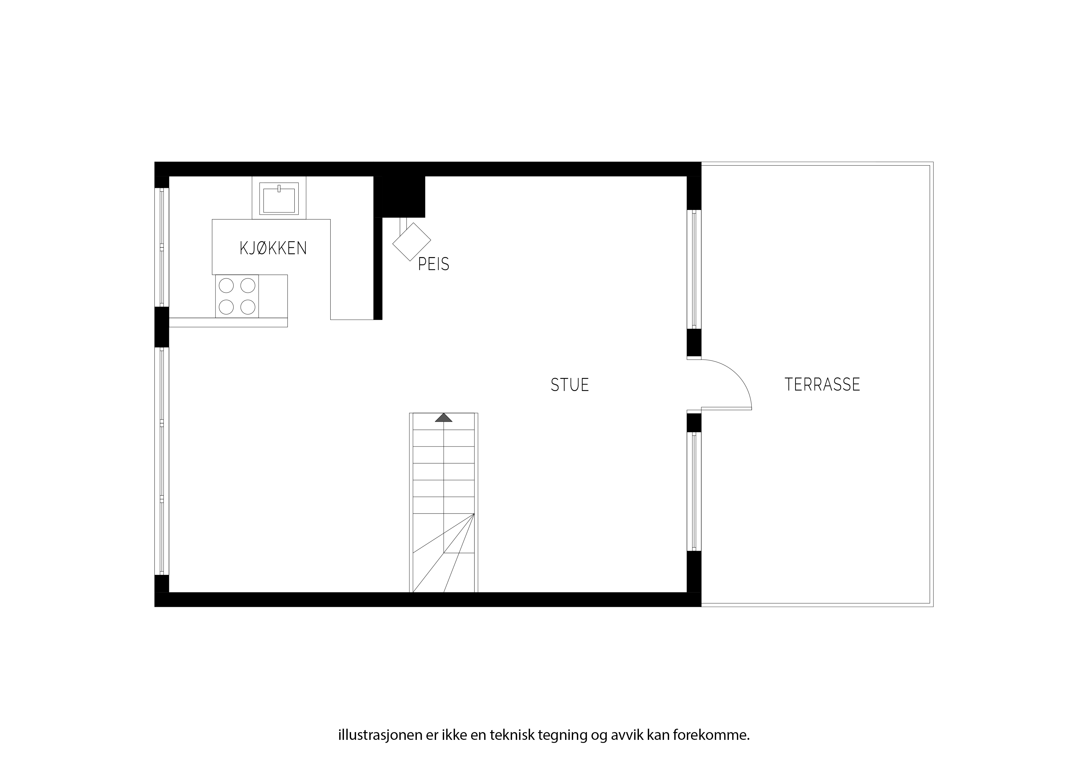
Videre opp til hovedetasjen kommer enn til stuen og kjøkkenet. Lyst kjøkken med integrerte hvitevarer
som platetopp, kjøleskap og komfyr. Frittstående oppvaskmaskin.
Romslig stue med god plass til både sittegruppe og spisegruppe. Her er det god plass til å invitere over
venner og familie på et bedre måltid. I stuen er det vedovn som gir god varme til boligen, samt
varmepumpe i trappoppgang. Fra stuen er det utgang til en terrasse, hvor en kan nyte fine dager.
Selger har fått utarbeidet en tilstandsrapport for eiendommen. Rapporten er en teknisk gjennomgang av
boligen og angir eventuelle byggetekniske avvik. I rapporten fremkommer det forhold som takstmannen
mener kjøper må være særskilt oppmerksom på, herunder:
Utvendig
Taktekking,TG2
Taktekkingen er av pvc-duk. Taket er besiktiget fra taknivå.
Vurdering av avvik:
- Mer enn halvparten av forventet brukstid er passert på taktekkingen.
- Mer enn halvparten av forventet brukstid er passert på undertak.
- Det er registrert vannansamlinger på taktekkingen.
Tiltak
- Overvåk tilstanden jevnlig. For å få tilstandsgrad 0 eller 1 må tekkingen skiftes ut, men tidspunktet for når
dette er nødvendig er vanskelig å si noe om.
- Når taktekking og undertak begynner å bli gamle, øker risikoen for lekkasjer, noe som kan føre til
omfattende og kostbare reparasjoner av underliggende konstruksjoner dersom en ikke foretar tiltak på
konstruksjonene før dette oppstår.
- Det bør etableres tiltak for å sikre tilfredsstillende fall og avrenning på taket, slik at vannansamlinger
unngås.
Nedløp og beslag,TG2
Takrenner og nedløp fra altan av plast. Innvendig skjult nedløp fra tak.
Vurdering av avvik:
- Mer enn halvparten av forventet brukstid er passert på renner/nedløp/beslag.
Tiltak
- Overvåk tilstanden jevnlig. For å få tilstandsgrad 0 eller 1 må beslag/renner/nedløp skiftes ut, men
tidspunktet for når dette er nødvendig er vanskelig å si noe om.
Veggkonstruksjon,TG2
Bindingsverkskonstruksjon og liggende bordkledning. Utvendig listverk rundt dører og vinduer er utført på
tradisjonell måte etter lokal byggeskikk, uten bruk av beslag. I dag anbefales løsninger rundt dører og
vinduer med beslag. Konsekvens av manglende beslag med klaring til vannbord er at eventuell fukt på
baksiden av kledning ikke dreneres bort, noe som igjen kan føre til kortere levetid på treverket på grunn av
råte.
Vurdering av avvik:
- Det er ingen musesperre i nedre kant av konstruksjon.
Tiltak
- Musesperre må etableres.
- Det er montert hønsenetting under kledning på fasade mot nord.
Vinduer - 2,TG2
Bygningen har malte trevinduer med 2-lags glass. Vinduer mot nord er fra 1992.
Vurdering av avvik:
- Karmene i vinduer er slitte og det er sprekker i trevirket.
- Ett vindu mot nord i 2.etasje har punktert glass. Vinduene har passert normal levetid. Godt vedlikehold
har gjort at vinduene er i god stand, alder tatt i betraktning.
Tiltak
- Det må påregnes noe vedlikehold og at enkelte vinduer må skiftes ut.
- Det bør vurderes utskifting av vinduene, spesielt det med punktert glass, for å opprettholde god
isoleringsevne og forhindre ytterligere forringelse. Dersom vinduene ikke skiftes ut, vil det være økt risiko
for varmetap, trekk og eventuelle fuktskader i tilstøtende konstruksjoner.
Balkonger, terrasser og rom under balkonger,TG2
Altan er tekket med PVC-belegg. Høyde på rekkverk ble målt til 92 cm. Det er montert terrassebord av tre
på tilfarere over tekking. Tekking under terrassebord og fallforhold på tekking er ikke kontrollert. Ukjent
alder på membran.
Vurdering av avvik:
- Mer enn halvparten av forventet brukstid er passert på tettesjikt/membran.
- Balkong/terrasse ligger over innredede boligrom, usikker konstruksjon. Konstruksjonsutforming gir økt
fare for skader.
Tiltak
- Andre tiltak:
- Det anbefales å gjennomføre ytterligere undersøkelser av tekking og membran, da ukjent alder og
manglende kontroll medfører usikkerhet om tilstanden. Dette kan medføre økt risiko for lekkasjer og
fuktskader i underliggende boligrom. Konstruksjonsutformingen gir økt fare for skader, og jevnlig kontroll
samt rask avrenning anbefales for å forebygge skader på konstruksjonen.
Utvendige trapper,TG2
Støpte utvendige trapper.
Vurdering av avvik:
- Betongtrapp har mindre sprekker/skader
Tiltak
- Påviste skader må utbedres.
Innvendig
Etasjeskille/gulv mot grunn,TG2
Etasjeskiller med trebjelkelag.
Vurdering av avvik:
- Det er målt høydeforskjell på mellom 15-30 mm gjennom hele rommet. Tilstandsgrad 2 gis med
bakgrunn i standardens krav til godkjente måleavvik.
- Høydeforskjeller på gulv er vurdert med tilfeldige målinger innvendig i hvert rom og ikke totalt pr etasje.
Det kan derfor forekomme skjevheter som ikke er registrert ved måling. Det ble målt 25 mm
høydeforskjell på gulv i soverom mot sør. Det ble målt 15 mm høydeforskjell på gulv i gang, i soverom
med terrassedør og i stue.
Tiltak
- For å få tilstandsgrad 0 eller 1 må høydeforskjeller rettes opp. Det vil imidlertid sjelden være økonomisk
rasjonelt som et enkeltstående tiltak i en bolig som dette. Dersom boligen en gang skal renoveres, kan
man vurdere slike tiltak.
Pipe og ildsted,TG2
Feieren i kommunen er tilsynsmyndighet for piper og ildsteder. Det er montert peisovn i stue. Pipe med
murstein.
Vurdering av avvik:
- Mer enn halvparten av forventet brukstid er passert på pipe.
Tiltak
- Tidspunkt for piperehabilitering nærmer seg.
Krypkjeller,TG3
Bygningen har krypkjeller under trebjelkelag og stubbegulv. Krypkjeller regnes for å være en
risikokonstruksjon som er utsatt for fukt- og råteskader i bunnsvill, trebjelkelaget og andre tilstøtende
konstruksjoner, på grunn av fuktighet fra grunnen og kondensering ved temperaturforskjeller. Selv om det
ikke er avdekket tegn på skader, betyr ikke dette nødvendigvis at det ikke foreligger skader i eller i
forbindelse med krypkjelleren. Vær oppmerksom på denne risikoen, overvåk tilstanden og undersøk dette
nærmere, helst med hjelp av en fagkyndig. Det er montert eternittplater under bjelkelag over krypkjeller.
Eternitt plater inneholder asbest. Kjøper bør gjøre seg kjent med hvilke HMS tiltak det medfører dersom
platene en gang skal fjernes.
Vurdering av avvik:
- Det er påvist synlig vann i krypkjeller eller synlige tegn på innsig av vann i krypkjeller.
Tiltak
- Andre tiltak:
- Det bør iverksettes tiltak for å lede vann bort fra krypkjelleren, for eksempel ved forbedret drenering eller
andre fuktsikringstiltak. Dersom tiltak ikke gjennomføres, vil det være økt risiko for fuktskader, råte og
soppdannelse i bjelkelag, bunnsvill og tilstøtende konstruksjoner, noe som kan medføre omfattende
reparasjonsbehov og redusert levetid for bygningen. Vær oppmerksom på at krypkjeller og grunnmur er
delt med naboer, og at tetting/drenering kan være vanskelig å gjennomføre uten samtykke og samarbeid
fra alle berørte parter.
Kostnadsestimat : 20 000 - 100 000
Våtrom
1.etasje > Bad
Overflater vegger og himling,TG2
Våtromstapet på vegger og malt innvendig tak.
Vurdering av avvik:
- Det er avvik:
- Det er ikke montert sokkellist i underkant av våtromsplater. Det skal være montert sokkellist i underkant
av våtromsplater i våtsoner.
Tiltak
- Tiltak:
- Det er ikke mulig å ettermontere sokkellister. Dette må gjøres i forbindelse med oppussing. Sokkellisten
er viktig for å forhindre at vann trenger inn under platene, spesielt langs kantene. Uten sokkellist kan vann
sive inn under platene, noe som kan føre til fuktskader på underlaget, muggvekst og råte.
1.etasje > Bad
Overflater Gulv,TG3
Gulvet har vinylbelegg. Rommet har panelovn som varmekilde. Gulv ved dør ligger ca 3 mm lavere enn
gulvet ved sluk. Det er ca 50 mm høydeforskjell mellom topp slukrist og topp membran ved terskel til dør.
Vurdering av avvik:
- Målinger viser at det ikke er fall til sluk (motfall).
Tiltak
- Et bad med manglende/redusert fall til sluk blir mindre funksjonelt og sikkert for brukeren. Dette kan
medføre stående vann på gulvet, vann som ikke ledes effektivt til sluket, økt risiko for at vann renner ut av
rommet og redusert sklisikkerhet på gulvet.
Kostnadsestimat : Under 20 000
1.etasje > Bad
Sanitærutstyr og innredning,TG2
Badet har dusjkabinett, veggmontert toalett og seksjon med heldekkende vask.
Vurdering av avvik:
- Det er ikke påvist tilfredsstillende løsning for å synliggjøre lekkasje fra innebygget sisterne.
Tiltak
- Ved implementering av innebygget sisterne var det ikke krav om lekkasjesikring, konstruksjonen bør
jevnlig observeres.
- Uten dreneringsløsning/lekkasjesikring kan lekkasjer pågå over lang tid uten å bli oppdaget. Dette kan
føre til omfattende fuktskader i omkringliggende byggematerialer.
Spesialrom
1.etasje > Toalettrom
Overflater og konstruksjon,TG2
Toalettrom med servant og vegghengt toalett.
Vurdering av avvik:
- Det er ikke påvist tilfredsstillende løsning for å synliggjøre lekkasje fra innebygget sisterne.
- Toalettrom har kun naturlig avtrekk fra rommet, NS 3600 krever mekanisk avtrekk for å kunne gi TG 0/1.
Tiltak
- Uten dreneringsløsning/lekkasjesikring kan lekkasjer pågå over lang tid uten å bli oppdaget. Dette kan
føre til omfattende fuktskader i omkringliggende byggematerialer.
- Mekanisk avtrekk bør etableres på toalettrom.
Tekniske installasjoner
Vannledninger,TG2
Røropplegget for vann i boligen er med kobberrør. Hovedstoppekran er plassert i bod. Vannrør er ikke
nærmere kontrollert og tilstandsvurdert utover det som er synlig i rommene.
Vurdering av avvik:
- Mer enn halvparten av forventet brukstid er passert på innvendige vannledninger.
Tiltak
- Det er ikke behov for utbedringstiltak siden anlegget fungerer i dag, men ut ifra alder kan skader
plutselig oppstå på eldre anlegg.
Avløpsrør,TG2
Det er avløpsrør av støpejern.
Vurdering av avvik:
- Mer enn halvparten av forventet brukstid er passert på innvendige avløpsledninger.
Tiltak
- Det er ikke behov for utbedringstiltak siden anlegget fungerer i dag, men ut ifra alder kan skader
plutselig oppstå på eldre anlegg.
- I forbindelse med oppgradering av våtrom vil det være naturlig med utskiftning av rør.
- Eldre avløpsrør har blant annet større sannsynlighet for lekkasjer, noe som kan føre til omfattende og
kostbare vannskader i boliger.
Andre VVS-installasjoner,TG2
Det er opplegg for vaskemaskin i bod. Rommet har gulvbelegg på gulv og sluk av plast i området med
vaskemaskin.
Vurdering av avvik:
- Mer enn halvparten av forventet brukstid på VVS-installasjoner er oppbrukt.
- Boden har ikke ventil.
Tiltak
- Det er ikke behov for utbedringstiltak siden VVS-installasjonen(e) fungerer i dag, men ut ifra alder kan
skader plutselig oppstå på eldre VVS-installasjoner
- Det bør etableres ventilasjon i boden for å sikre tilstrekkelig luftutskifting. Manglende ventilasjon kan føre
til økt fuktighet, kondens og risiko for mugg- og råteskader, spesielt ved bruk av vaskemaskin.
Tomteforhold
Fuktsikring og drenering,TG3
Ingen tilgjengelig/synlig drenering. Det er etablert drenskum på gårdsplass.
Vurdering av avvik:
- Det er ut ifra observasjoner konstatert at drenering/tettesjikt har funksjonssvikt/svært begrenset effekt.
- Vann i krypkjeller er symptom på sviktende drenering.
Tiltak
- Det må foretas utskiftning av drenering/tettesjikt.
- Vær oppmerksom på at krypkjeller og grunnmur er delt med naboer, og at tetting/drenering kan være
vanskelig å gjennomføre uten samtykke og samarbeid fra alle berørte parter.
Kostnadsestimat : 20 000 - 100 000
Grunnmur og fundamenter,TG2
Grunnmur av plasstøpt betong.
Vurdering av avvik:
- Grunnmuren har sprekkdannelser.
Tiltak
- Lokal utbedring må utføres.
Utvendige vann- og avløpsledninger,TG2
Utvendige avløpsrør er av støpejern Utvendige vannledninger er av ukjent type Utvendige vann- og
avløpsledninger er ikke kontrollert. Tilstandsgrad er vurdert etter alder.
Vurdering av avvik:
- Mer enn halvparten av forventet brukstid er passert på utvendige avløpsledninger.
- Mer enn halvparten av forventet brukstid er passert på utvendige vannledninger.
Tiltak
- Det er ikke behov for utbedringstiltak siden anlegget fungerer i dag, men ut ifra alder kan skader
plutselig oppstå på eldre anlegg.
- Eier opplyser om at det foreligger planer om å fornye utvendige vann- og avløpsrør. Dette er nærmere
forklart i selgers egenerklæringsskjema.