Standard
Hytten holder gjennomgående god hyttestand. Det er foretatt flere utbedringer de siste årene som blant
annet store gode vindu som strekker seg fra gulv til tak, nytt bad og delvis ny kjøkkeninnredning.
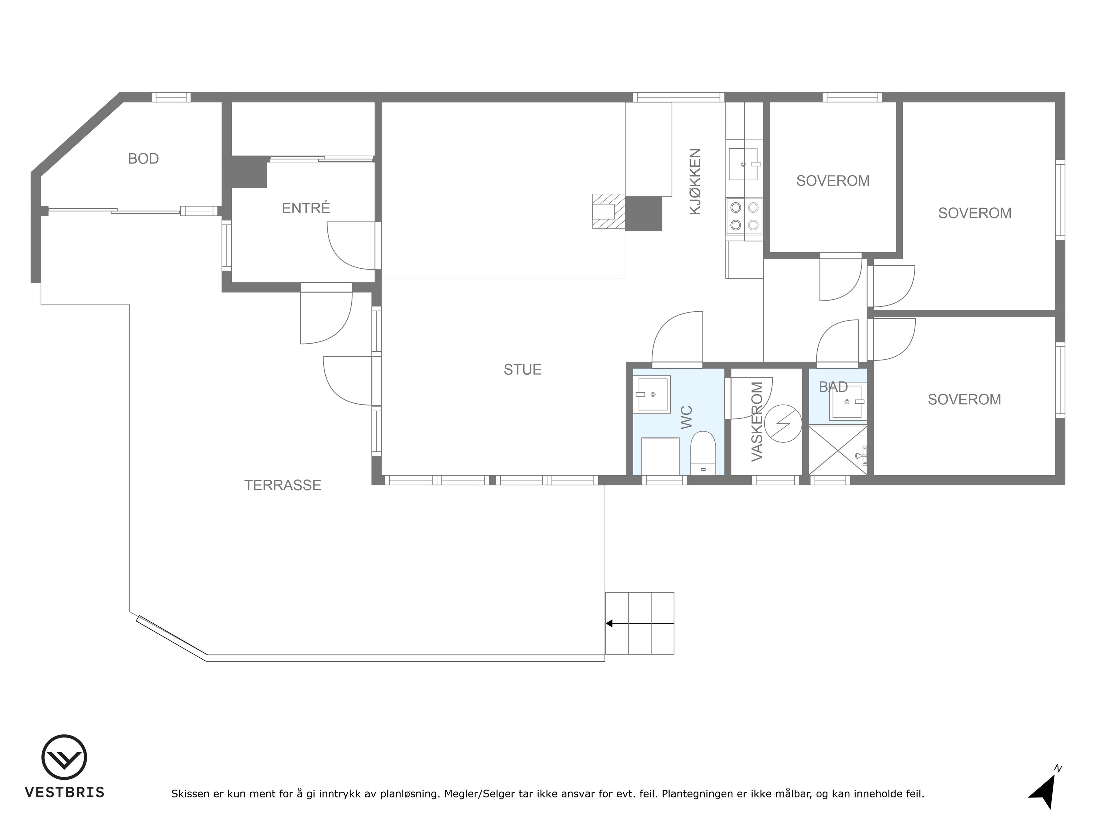
Entre/gang med god lagring. Det er satt opp en stor skyvedørgarderobe. Her er det mikro og ekstra
kjøleskap og muligheter for lagring av klær.
Kjøkken med eldre og nyere kjøkkeninnredning. Her er det intregrerte hvitevarer som oppvaskmaskin,
platetopp, komfyr og kjøleskap.
Toalettrom med vaskemaskin, servant og wc.
Et fint dusjrom hvor det er lagt fliser på gulv med baderomsplater på vegg. Det er dusjsone og servant.
Varmekabler i gulv.
Det er tre soverom. Hvorav to av soverommene har dobbeltseng. Det tredje soverommet har dobbeltseng
og to overkøyer. En hytte som har romslig med plass og overnattingsmuligheter. 8 sengeplasser.
Nyeste oppgraderingene av hytten:
Montert varmepumpe i 2020.
De store vinduene og terrassedøren i stuen ble montert i 2021.
Terrasse og utebod er bygd i 2021.
Vakumtoalett og ny spredegrøft. 2015.
Bad renovert i 2022.
Nytt sikringsskap.
Selger har fått utarbeidet en tilstandsrapport for eiendommen. Rapporten er en teknisk gjennomgang av
boligen og angir eventuelle byggetekniske avvik. I rapporten fremkommer det forhold som takstmannen
mener kjøper må være særskilt oppmerksom på, herunder:
TG 3:
1.1 Byggegrunn, fundamenter og grunnmur
Det er registrert flere søyler med stort loddavik. Dette tyder på bevegelse på søyler etter at boligen ble
oppført. Ytterlige undersøkelser anbefales. Det er ikke mulig å få en god prisvurdering uten å foreta mer
omfattende undersøkelser en det som forventes av en tilstands/eierskifterapport. Prisvurdering er av den
grunn ikke satt. Det er ikke undersøkt om dybde på fundament/søyler under terreng er tilfredsstillende.
Det var ikke adkomst til å inspisere mer en litt av arealet under boligen på befaringsdagen.
6.1 Terrasser, balkonger, trapper o.l.
Rekkverk på terrassen tilfredsstiller ikke dagens krav.
Åpninger i rekkverket skal være maksimum 0,10 m opp til en høyde på minimum 0,75 m.
Rekkverk skal ha en høyde på minimum 1,0m
Takstmannens prisvurdering ved utskiftning antas mellom Kr. 10.000. - og 25.000.-
Det er påvist svekkelser i forankring eller understøtting. Det er ikke påvist skader, slik som avskalling,
deformasjoner, riss, sprekker, råteskader og rust på overflater. Det er en terrasse i tre på ca 33m2 på
boligen.
Det var ikke mulig å inspisere bjelker og innfesting for hele terrassen på befaringsdagen. Et
oppleggspunkt for bjelkene var løst.
Deler av terrassen ligg tett på terreng noe som vil gi forkortet levetid.
7.1 Piper og ildsteder
Boligen har vedovn montert til lecapipe.
Merknader: Det er en synlig sprekk i lecapipen. Det er også en liten sprekk i mellom pipe og brannmur.
Hjemmelshaver opplyser om at disse sprekkene har vert like siden de kjøpte boligen. Sotluken er for nær
brennbart materiale.
Sprekk i pipen kan ha sammenheng med punkt 1.1 og må overvåkes og tiltak vurderes. Sotluken skal ha
30 cm til brennbart materiale, 10 cm dersom det er montert sotlukestein. Det er målt ca 13 cm til
brennbart materiale det er ikke sotlukestein i pipa. Prisvurderingen gjelder utbedring av avstand til
brennbart materiale.
Takstmannens prisvurdering ved utskiftning antas mellom kr. 0 - og 10.000
TG 2:
1.2 Krypekjeller.
Det er ikke krypkjeller men boligen har bjelkelag mot terreng. Bjelkelaget har stubbeloftsplater av typen
asfalt vindtett.
1.3 Drenering
Fall fra grunnmur vurderes ikke som tilstrekkelig.
Boligen står på søyler av leca det er ikke registrert drenering rundt bygget.
2.1 Yttervegger og veggkonstruksjon.
Kledningen er noen plasser nær terreng. Dette fører til forkortet levetid av kledningen.
Det er registrert en sprekk i nedre del av en vindski
3.1 Vinduer og ytterdører.
Vinduene er visuelt undersøkt og det er foretatt funksjonstesting av tilfeldig utvalgte vinduer.
Kjøkkenvindu og baderomsvindu er trege og ble ikke åpnet.
4.2 Undertak, lekter og yttertekking (taktekkingen)
Undertaket antas å være i fra 1984.
Det var ikke mulig å inspisere undertak og sløyfer/lekter på befaringsdagen.
4.3 Renner, nedløp og beslag
Boligen har takrenner av stål på fremsiden og takrenner av plast på baksiden.
Merknader: Det er ikke montert bordtaksbeslag over takrenner. Dette gir nederste taklekt og nedre del av
sløyfer mer utsatt for fukt.
8.1 Etasjeskillere
Det er bjelkelag mot terreng som er beskrevet under punkt 8.1
Merknader: Ujevnheter i bjelkelag kan sees i samm med punkt 1.1
10.1.1 BAD - Overflate vegger og himling.
Det er vindu i våtsonen på badet. Foringene til vinduet er laget av baderomsplater men selve
vinduskarmen er av tre. Tiltak for å hindre vannsprut mot vindu anbefales.
11.1 Kjøkken.
Vanninstallasjonen er fra ca. Antatt byggeår.
Det er registrert litt knirk i gulvet.
12.1 Andre rom.
Overflater på andre rom har normal bruksslitasje og fremstår i god stand i forhold til alder. Det er
observert noen sprekker og sår i panel men ikke mer en normalt for en fritidsbolig fra 1984. Gulvet er
naturlig nok mer slitt og har merker. Det er også noen sprekker i gulvet.
13.1 WC og innvendige vann- og avløpsrør.
Det er kobberrør i boligen antatt fra byggeår. Det er lagt inn rør i rør i forbindelse med renovering av badet.
Det er stor forskjell på levetid på kobberrør m.a spiller vannkvaliteten inn. Det er av den grunn viktig med
jevnlig overvåkning.
13.2 Varmtvannsbereder.
Varmtvannsbereder skal ha lekkasjesikring mot avdrypp. Vanlig løsning er at eventuelt avdrypp kan renne
ut i gulvsluk.
13.5 Ventilasjon.
Boligen har naturlig ventilasjon som ihht NS3600 gir TG2.
Dette er ikke et avvik i forhold til byggeforskriftene som boligen er bygget etter.
13.6 Toalettrom.
Toalettromet har panel på vegger og i tak. Gulvet har gulvplater av huntonitt. Rommet innehar Jets
vakuumtoalett og vaskemaskin.
Det anbefales mekanisk avtrekk på toalettrom.
Elektrisk.
Kabler er i hovedsak godt festet men der er registrert noen løse kabler.
Utfyllende informasjon om ovenfor nevnte bygningsdeler fremgår av vedlagte tilstandsrapport, herunder
forslag til utbedringsmetoder og sjablongmessige kostnadsanslag.