4875599_1a
Stephan Erichsen v/Proaktiv Eiendomsmegling Sola har gleden av å presentere Åsenstubben 1 for salg. ( 1 av )
4875593_1a
Her får du en lekker endeleilighet av høy standard, beliggende i et ettertraktet boligområde med nærhet til det meste du trenger i hverdagen for å trives i lang tid. ( 2 av )
4875597_2a
Dette er en gjennomført bolig med funksjonelle løsninger og et moderne uttrykk. ( 3 av )
4876598_1a
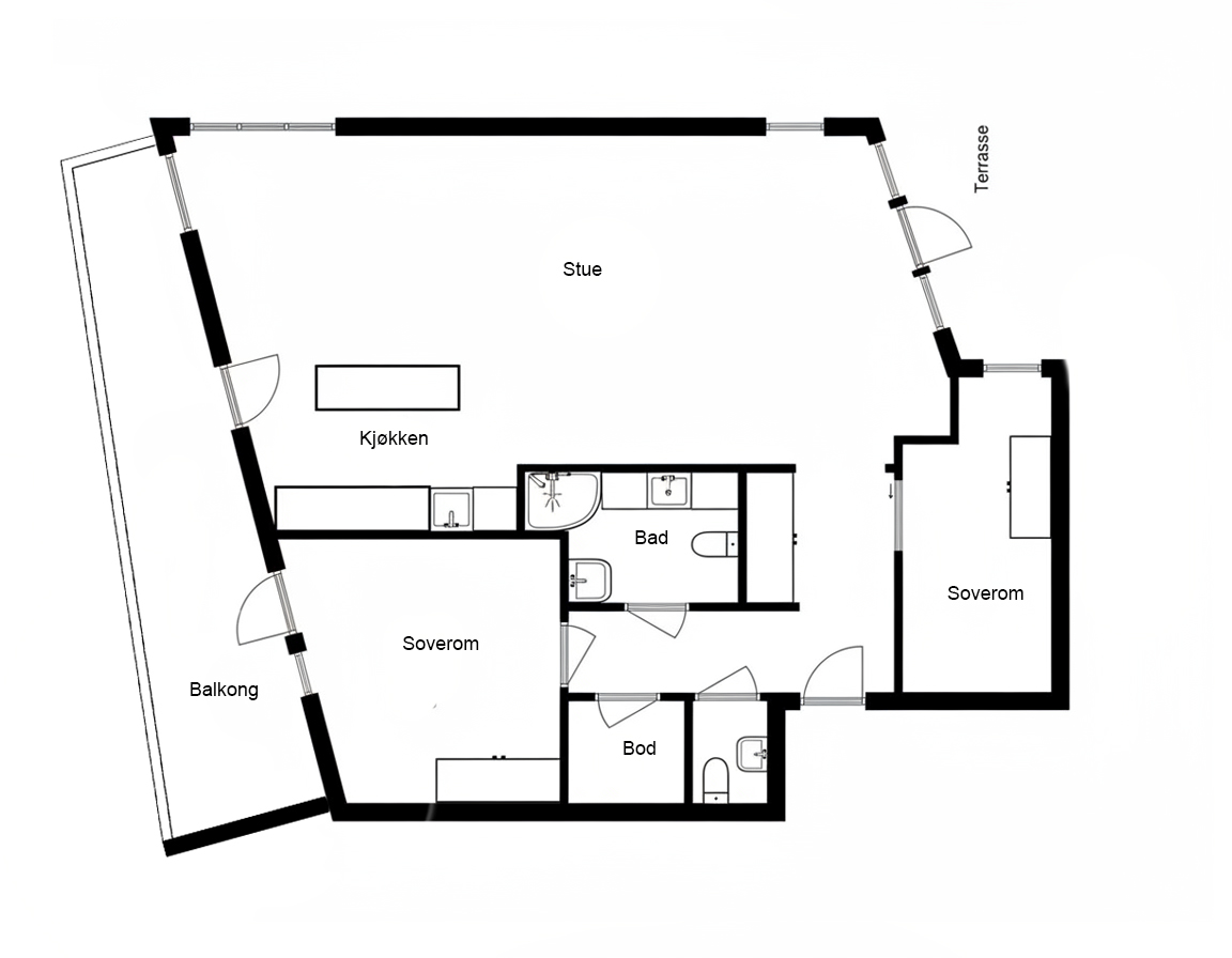
Plantegning 1. etg. ( 4 av )
4875620_1a
Innbydende entré med praktisk gjestetoalett og god plass til oppbevaring av ytterklær og sko i gangens garderobeskap. ( 5 av )
4875588_1a
Stue og kjøkken ligger i åpen løsning. Parkett på gulv og listefri utførelse mellom vegg og tak. ( 6 av )
4875622_1a
Ekstra takhøyde bidrar til å skape en luftig romfølelse kombinert med de store vindusflatene som slipper inn rikelig med naturlig lys. ( 7 av )
4875626_1a
Stuen kan innredes med både sittesone og tv-seksjon. Smartlys system med bridge fra Philips Hue medfølger i handelen. Det meste av belysning og oppvarming i leiligheten kan smartstyres. ( 8 av )
4875594_1a
Fra stuen har man adkomst til eget pent opparbeidet uteområde hvor deler er overbygget. ( 9 av )
4875589_1a
Sør-vestvendt terrasse belagt med steinheller og hekk som sørger for usjenerte forhold. ( 10 av )
4875590_1a
Her kan man nyte finværet uten særlig innsyn fra naboer. ( 11 av )
4875592_1a
God plass til flere sittegrupper. ( 12 av )
4875603_1a
Nok av plass til spisebord av ønsket størrelse i allrom. ( 13 av )
4875605_1a
Her kan man enkelt underholde middagsgjestene samtidig som man kokkelerer. ( 14 av )
4875621_1a
Flott kjøkken fra HTH med innredning fra Norema. ( 15 av )
4875623_1a
Lyse, slette fronter og rikelig med skap- og benkplass. Hvitevarer på kjøkken medfølger i handelen. ( 16 av )
4875625_1a
Kjøkkenet er oppgradert med innredning og fronter i 2018. ( 17 av )
4875604_1a
Kjøkkenøya gir godt med plass til matlaging og praktisk kjøkkenbruk. ( 18 av )
4875628_1a
Stor balkong med adkomst fra kjøkken og hovedsoverom hvor det kan innredes med sittegruppe. ( 19 av )
4875627_1a
Overbygget tak, som øker bruksområde på balkongen. ( 20 av )
4875629_1a
Uteområde på begge sider av boligen gjør at man kan nyte morgensolen på balkongen før man deretter flytter seg med solen til terrassen. ( 21 av )
4875624_1a
( 22 av )
4875595_1a
( 23 av )
4875606_1a
Hovedsoverom av god størrelse. ( 24 av )
4875607_1a
Nok av plass til både dobbeltseng, nattbord og klesskap. ( 25 av )
4875608_1a
Tilkomst til balkong. ( 26 av )
4875611_1a
Soverom 2 kan blant annet brukes som barnerom, gjesterom eller kontor. ( 27 av )
4875633_1a
( 28 av )
4875615_1a
Deilkat, helfliset bad med opplegg til vaskemaskin. Vaskemaskinen medfølger i handelen. Toalett bad har innebygd såpe kapsler som blandes med vannet under spyling som inneholder antikalk. ( 29 av )
4875614_1a
Fliser på både gulv og vegger gir et helhetlig og eksklusivt uttrykk, samtidig som varmekabler i gulv bidrar til ekstra komfort i hverdagen og mer energieffektiv oppvarming. Bade ble pusset opp i 2025. ( 30 av )
4875612_1a
De flotte detaljene gjennomfører inntrykket og gir en eksklusiv helhet. ( 31 av )
4875613_1a
Moderne innredet med vegghengt toalett, dusjhjørne, speil med belysning og god oppbevaringsplass under servant samt ekstra vegghengt skap. ( 32 av )
4875616_1a
( 33 av )
4875618_1a
Praktisk gjestetoalett ved entré. Gjestetoalettet ble pusset opp i 2023. ( 34 av )
4875619_1a
Moderne innredet med tidløst fargevalg på vegg. ( 35 av )
4875601_1a
Fast parkeringsplass i lukket garasjeanlegg. ( 36 av )
4875602_1a
Montert elbillader som medfølger handelen. Zaptec elbillader er en foretrukket lader blant mange. ( 37 av )
4875596_1a
Andelen disponerer egen ekstern bod. ( 38 av )
4875598_1a
Ettersom at hele boligen er på ett plan og blokken har heis, er dette også en bolig som passer folk i alle aldre. ( 39 av )
4875585_1a
Kort vei til Sola sentrum sine mange fasiliteter. Her har du det meste du trenger i nærområde for å trives i lang tid. ( 40 av )
4875586_1a
( 41 av )
4875587_1a
( 42 av )
4875584_1a
Sola kulturhus ( 43 av )
4875580_1a
Sola VGS bare et kort stykke unna. ( 44 av )
4875578_1a
Kort avstand til Sola golfklubb med flotte baner. ( 45 av )
4875579_1a
Nærhet til kjekke aktivitetstilbud. ( 46 av )
4875583_1a
Stort utvalg av fotballbaner like ved. ( 47 av )
4875600_1a
Vår Energi Arena ( 48 av )
4875581_1a
Åsenhallen med flere gode idrettstilbud. ( 49 av )
4875582_1a
Sola turnhall ( 50 av )

Åsenstubben 1

Se alle bilder (0)
4875599_1a
4875593_1a
4875597_2a
4876598_1a
4875620_1a
4875588_1a
4875622_1a
4875626_1a
4875594_1a
4875589_1a
4875590_1a
4875592_1a
4875603_1a
4875605_1a
4875621_1a
4875623_1a
4875625_1a
4875604_1a
4875628_1a
4875627_1a
4875629_1a
4875624_1a
4875595_1a
4875606_1a
4875607_1a
4875608_1a
4875611_1a
4875633_1a
4875615_1a
4875614_1a
4875612_1a
4875613_1a
4875616_1a
4875618_1a
4875619_1a
4875601_1a
4875602_1a
4875596_1a
4875598_1a
4875585_1a
4875586_1a
4875587_1a
4875584_1a
4875580_1a
4875578_1a
4875579_1a
4875583_1a
4875600_1a
4875581_1a
4875582_1a

Åsenstubben 1

Prisantydning:
Fra Kr 3775000,00
til Kr 0,00
Totalpris:
Kr 4109373,00
BRA:
80,00 - 0,00
BRA-i:
75 - 0
Soverom:
2 - 0
Boligtype:
Leilighet
Eierform:
Fellestomt
Byggeår:
2007
Etasje:
0
Tomteareal:
499

Moderne 3-roms hjørneleilighet av høy standard med både terrasse og balkong - Parkering m/elbillader

Ansvarlig megler:
Stephan Michael Erichsen

Daglig leder / Partner / Eiendomsmegler MNEF

Visning

11.11.2025 16:30 - 17:30

Legg visning til i kalender 11.11.2025 16:30 11.11.2025 17:30 Central European Time Visning av Åsenstubben 1 Boligvisning av Åsenstubben 1 Åsenstubben 1

Passer ikke visningstidspunktene?

Visningspåmelding
Avtal privatvisning her

Åsenstubben 1

image005

Nøkkelinformasjon

plus_G_2025

BELIGGENHET

plus_G
minus_G

BESKRIVELSE AV EIENDOMMEN

plus_G
minus_G

BORETTSLAGET/ØKONOMI

plus_G
minus_G

OFFENTLIGE FORHOLD

plus_G
minus_G

PRISANTYDNING INKLUDERT OMKOSTNINGER

plus_G
minus_G

ØVRIGE KJØPSFORHOLD

plus_G
minus_G

Dokumenter

plus_G_2025

Del boligen

facebook-gold
Twitter-gold

Lurer du på noe om denne boligen?

Ta kontakt under via skjemaet.


Relaterte boliger

Se flere boliger
Bolig til salgs

Inspirasjon

Inspirerende interiørbilder fra norske hjem.
sov1
Soverom
kjo1
Kjøkken
stue
Stue

Boligartikler

Nyttig informasjon, råd og inspirasjon for deg som er opptatt av bolig.
aaletidligute
Aktuelt

Kapret først drømmeboligen, solgte egen bolig få dager senere

Konseptet vårt, Tidlig ute, legger til rette for et stressfritt boligsalg på kundens premisser. Poenget er å være ute i god tid, slik at prosessen...
vo4
Aktuelt

178 dager uten bud; - Proaktiv solgte boligen min etter første visning

Huset i Vestre Olsvikveg hadde mistet alt av moment etter et halvt år ute i markedet. Da Proaktiv ved Jon Kristian Røsok kom inn i bildet ble...
n_r-16
Aktuelt

Drømmer du om å drive ditt eget meglerkontor?

Proaktiv Eiendomsmegling er alltid på utkikk etter flinke folk som ønsker å skape sin egen suksess. Er du en målrettet og verdiskapende megler, med...