Standard
Boligen rom for rom:
1.etasje:
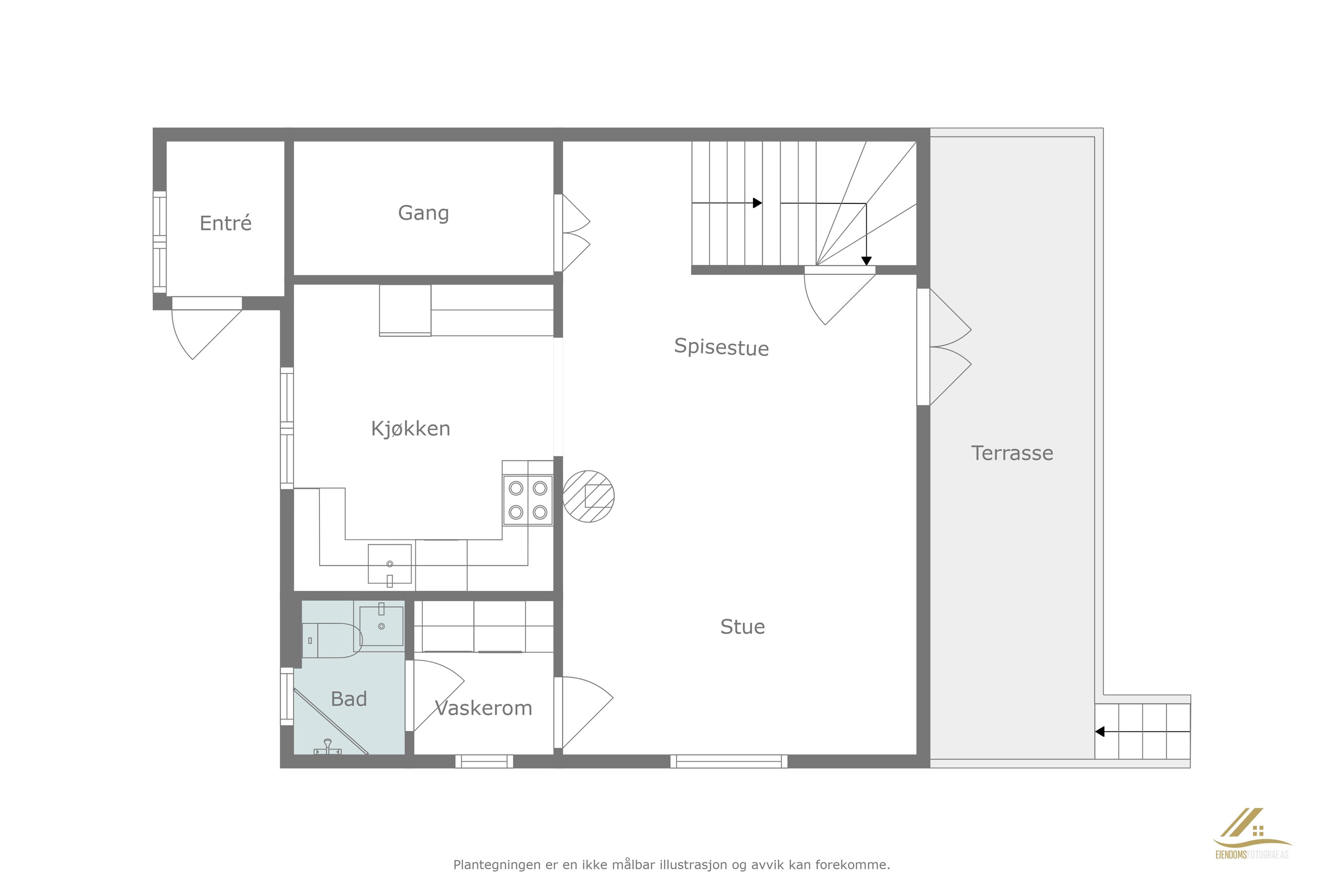
Entré:
Når du kommer inn døren møtes du et vindfang og entré med plass til yttertøyet. Rommene er adskilt med
dør. I entreen har flislagt gulv som tåler vann og masse trafikk. Det er plass til skap, kommode og
knaggrekker.
Stue og kjøkken:
Videre inn i 1. etasje ligger et hyggelig allrom med romslig stue og spisestue, og kjøkken i eget område,
men likevel i åpne løsning. Her er det god plass til både sofagruppe, spisebord og evt. kjøkkenbord hvis
ønskelig. I stuen er det mørkt gulv, malt panel på vegger og tak og sjarmerende takbjelker. God
oppvarming fra peisovn midt i rommet.
Kjøkkenet har god oppbevaringsplass med innredning på to sider av rommet. Det er sorte profilerte
fronter med laminat benkeplate, integrert stekeovn og platetopp, og plass til oppvaskmaskin og stort
kjøleskap. Kjøkkenventilator med avtrekk ut. Rommet har flislagt gulv, malt panel på vegger og i tak.
Bad/vaskerom:
Bad/vaskerom i 1.etg ble pusset opp i 2022, og har har baderomsplater på veggene, vinylbelegg på gulvet
og underliggende varmekabler. I vaskeromsdelen er det hel benk og plass til både vaskemaskin og
tørketrommel. Badet innenfor har servant, speilskap, vegghengt wc og dusjhjørne. Det er elektrisk styrt
vifte montert.
2. etasje:
Disponibelt rom/"stue":
Opp trappen i 2. etasje er det disponibelt rom som i dag benyttes som ekstra stue og kontor. Rommet har
laminatgulv og slette overflater malt i tidsriktig farge. Det er laget stilig spilevegg rundt trappen.
Bad:
Boligens andre bad ligger i 2.etasje, praktisk plassert til hovedsoverommet. Badet er innredet med enkel
servant, speilskap, gulvmontert toalett, og både badekar og dusjhjørne med regnfallsarmatur. Det er
flislagt gulv og vegger, varmekabler og elektrisk styrt vifte montert på veggen.
Soverom:
Hovedsoverommet er av god størrelse og har plass til dobbeltseng og nattbord. Det er montert
skyvedørsgarderobe med plass til oppbevaring, og rommet har direkte tilgang til badet i etasjen. Det
andre soverommet passer fint som barnerom eller gjesterom, med plass til nødvendig møblement.
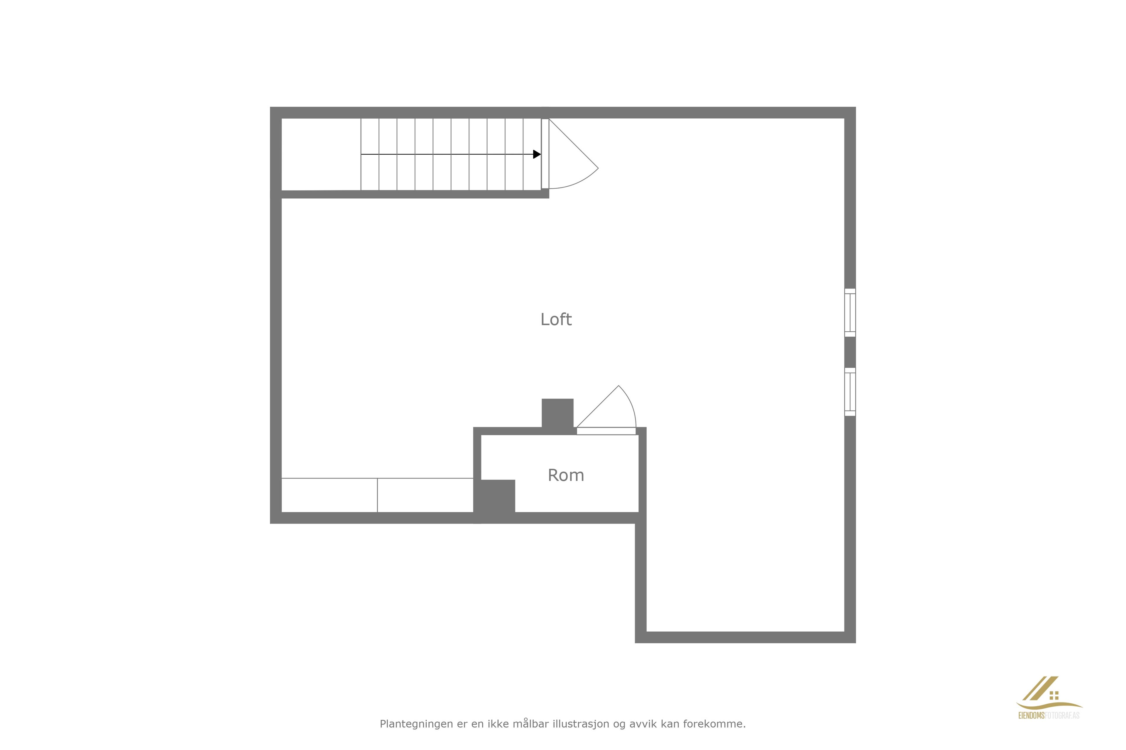
I tillegg til nevnte rom har boligen loft, og kjeller med disponibelt rom og stor bod.
Selger har fått utarbeidet en tilstandsrapport for eiendommen. Rapporten er en teknisk gjennomgang
av boligen og angir eventuelle byggetekniske avvik. Takstmann har gjennomgått boligen og gjort
vurderinger på en tilstandsgrad fra 1 til 3. Graderingene er som følger:
Tilstandsgrad 0, TG0: Ingen avvik.
Tilstandsgrad 1, TG1: Mindre avvik.
Tilstandsgrad 2, TG2: Vesentlige avvik og mindre avvik som etter NS 3600 gir TG2.
Tilstandsgrad 3, TG3: Store eller alvorlige avvik.
TGIU: Ikke tilgjengelig for undersøkelse.
TG3:
- Nedløp og beslag: Det er ikke tilfredsstillende bortledning av vann fra taknedløp ved grunnmur. Det er
påvist avvik i beslagløsninger.
Det mangler snøfangere på hele eller deler av taket, noe som var krav på byggemeldingstidspunktet. Mer
enn halvparten av forventet brukstid er passert på renner/nedløp/beslag. Det er frostsprengning i
nedløpsrør. Kostnadsestimat: 50 000 - 100 000.
- Veggkonstruksjon: Det er ingen eller liten lufting i nedre kant av kledning mot grunnmur. Det er påvist
spredte råteskader i bordkledningen. Det er ingen lufting i konstruksjonen.
- Vinduer: Det er påvist avvik rundt innsettingsdetaljer. Det er påvist vinduer med fukt/råteskader. Karmene
i vinduer er slitte og det er sprekker i
trevirket.
- Balkonger, terrasser og rom under balkonger: Vridning av drager/skjevheter i konstruksjon. Skade i støpt
fundament. Skjevheter og løst rekkverk.
- Det er avskallinger og slitasjer i murte flater. Det er ikke montert rekkverk i trappen. Forstøtningsmur er
ikke sikret. Takoverbygg er ikke tett mot yttervegg på grunn av manglende beslag.
- Loftstrapp: Åpninger mellom trinn i innvendig trapp er større enn dagens forskriftskrav. Det e rikke
montert rekkverk eller håndløper på vegg.
- Elektrisk anlegg: Det må foretas en el-kontroll av anlegget. Prisestimatet gjelder kun for kontroll og ikke
eventuelle nødvendige tiltak på anlegget.
TG2 avvik som kan kreve tiltak:
- Taktekking: Mer enn halvparten av forventet brukstid er passert på undertak og taktekkingen.
Taktekkingen har mose og slitasje på grunn av elde. Raftekasse har synlige slitasjer og er utsatt for
råteskader.
- Veggkontrsuksjon: Det er ingen eller liten lufting i nedre kant av kledning mot grunnmur. Det er ingen
musesperre i nedre kant av konstruksjon.
- Vinduer: Det er påvist avvik rundt innsettingsdetaljer. Slitt belistning/kledning og sålebenker på enkelte
vinduer.
- Dører: Det er påvist avvik rundt innsettingsdetaljer. Manglende tetting/beslag ved dørstokk til
inngangsdør.
- Kjellerdør: Døren har fukt/råteskader.
- Utvendige trapper: Konstruksjonene har skjevheter. Trapp er ikke sikret mot vegg.
- Innvendige overflater: Overflater har en del slitasjegrad utover det en kan forvente. Det er gjenstående
arbeider i alle etasjer.
- Etasjeskille/gulv mot grunn: Det er målt høydeforskjell på mellom 15-30 mm.
- Radon: Eier opplyser om at det har vært avholdt en radonmåling, men det foreligger ingen
dokumentasjon på målingen.
- Pipe og ildsted: Det er avvik på ildsted i kjeller. Det vises til rapport fra VIB IIKS av 25.04.2019.
- Rom under terreng: Det er gjennom målinger påvist høyt fuktnivå i trevegger i underetg./kjeller, det er
derfor ikke foretatt hulltaking. Det er påvist indikasjoner på noe fuktgjennomtrenging i kjellergulv og
kjellermur.
- Innvendige trapper: Det mangler håndløper på vegg i trappeløpet. Eldre trapp til 2 etg. Med slitasjer og
noen fagmessig avslutninger. Uferdige arbeider rundt trappeåpninger.
- Vannledninger: Mer enn halvparten av forventet brukstid er passert på innvendige vannledninger. Det er
irr på rør. Noe dårlig klamring av rør.
- Avløpsrør: Mer enn halvparten av forventet brukstid er passert på innvendige avløpsledninger.
- Fuktsikring og drenering: Det mangler, eller på grunn av alder er det sannsynlig at det mangler, utvendig
fuktsikring av grunnmuren ved kjeller/underetasje. Det er ut ifra observasjoner påvist indikasjoner på at
drenering/tettesjikt har begrenset effekt.
- Grunnmur og fundamenter: Grunnmuren har sprekkdannelser.
- Utvendige vann- og avløpsledninger: Mer enn halvparten av forventet brukstid er passert.
- Bad/vaskerom - overflater vegger og himling: Det er vindu/dør med ikke fuktbestandige materialer i
våtsonen (ved vask, dusj, badekar, osv.), løsningen eller byggematerialet er uegnet.
- Kjøkken - overflater og innredning: Det er påvist skader på overflater/kjøkkeninnredning utover normal
slitasjegrad.
- Kjøkken - avtrekk: Ventilator har redusert effekt.
- Bad 1.etg - overflater vegger og himling: Tilstandsgrad settes som følge av at mer enn 50% av forventet
levetid er oppbrukt og restlevetiden er
begrenset. Det er påvist sprekker i fliser. Det er vindu/dør med ikke fuktbestandige materialer i våtsonen
(ved vask, dusj, badekar, osv.), løsningen eller byggematerialet er uegnet.
- Bad 2.etg - overflater gulv: Det er mulighet for at det kan forekomme vannlekkasje på våtrommet hvor
vann ikke vil gå til sluk. Det er påvist at flisfuger har riss/sprekker. Det er påvist at noen fliser har bom
(hulrom under). Det er påvist avvik i fallforhold til sluk i forhold til krav i forskrift på byggetidspunktet.
- Bad 2.etg - ventilasjon: Våtrommet mangler tilluftsventilering, f.eks. spalte/ventil ved dør.