Standard
En gjennomgang av boligens rom:
1. etasje:
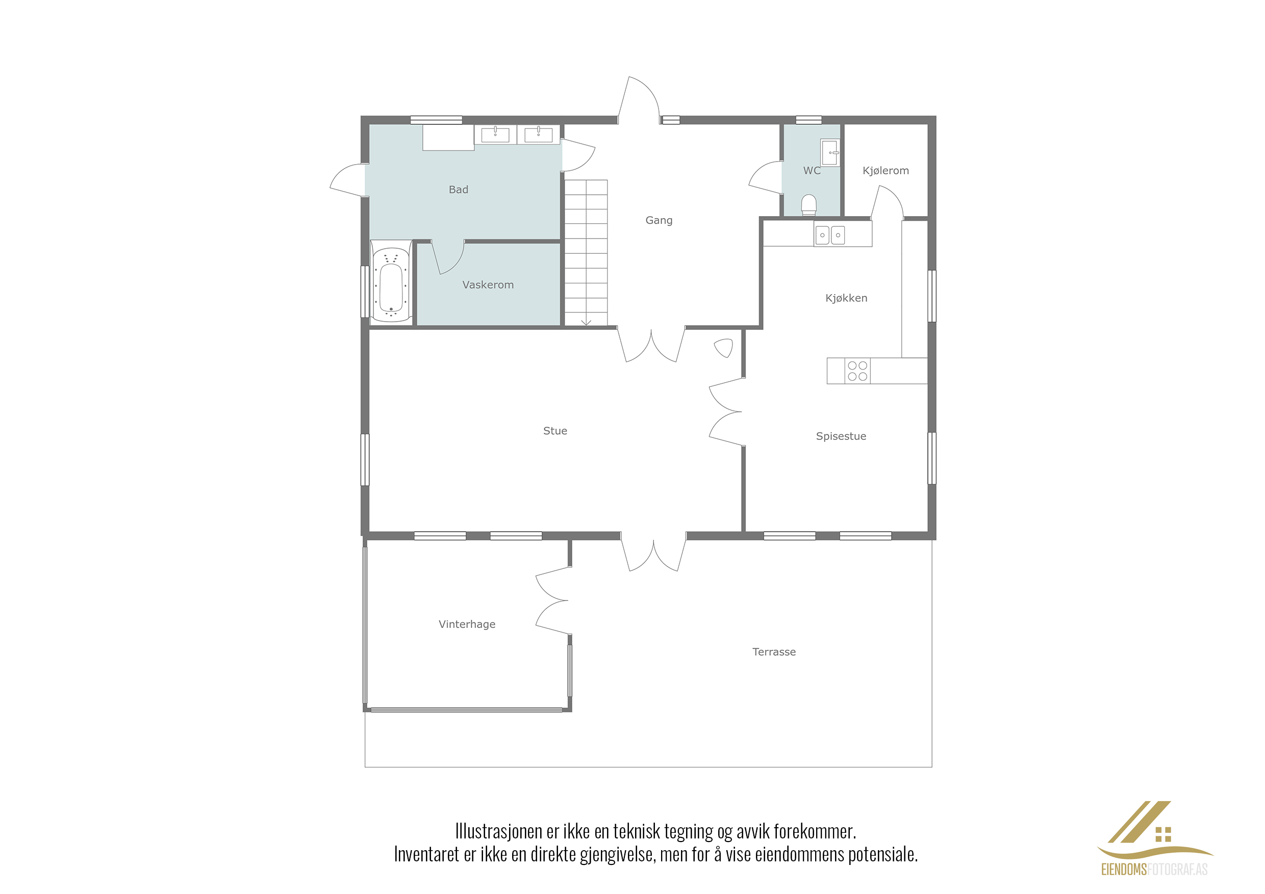
Hall:
Velkommen til et tilbaketrukket inngangsparti på baksiden av huset. Her er det montert ytterdør med stort
glassfelt ved siden av, og kodelås som gir mulighet for en nøkkelfri hverdag. Inne i huset møtes du av en
stor og åpen hall med masse plass til familiens ytterbekledning, innredet med stor skyvedørsgarderobe
og plass til hyller. Hallen har lyse overflater og flislagt gulv som tåler både vannsøl og slitasje. Har du
små barn er det mulighet til å trille vognen helt inn uten at den står i veien.
Alle gulv i 1. etasje har vannbåren gulvvarme (unntatt bod).
Bad/vaskerom:
I tilknytning til hallen er et flott vaskerom og bad som også har egen inngang fra hagen - et svært
kjærkomment rom for familier. Badet er innredet med stor skuffeseksjon med doble skålservanter, speil
med tilknyttet belysning, dusjkabinett og opplegg for både vaskemaskin og tørketrommel. Innerst i
rommet er det toalett og plassbygd badekar-løsning i egen nisje. Luftig løsning med plass til kommode
og hyller for oppbevaring langs veggene. Rommet har flislagt gulv og flislagt vegg i badesonen, og øvrige
vegger og tak er malt i lyse farger. Vannbåren gulvvarme og downlightsbelysning. Bad/vaskerom har fått
TG3.
Gjestetoalett:
I tillegg til bad er det også et fint gjestetoalett som ligger plassert ved hall og stue/kjøkken. Toalettrommet
har flislagt gulv og malte panelvegger, og er utstyrt med servantskap, speil og veggmontert wc. Vannbåren
gulvvarme er installert.
Stue og kjøkken:
Fra hallen kommer du inn til en stor og luftig stue og spisestue, med videre utgang til terrassen. Stuen
har åpen løsning med plass til sofagruppe og tv, spisebord, lesekrok og oppbevaringsmøblement uten at
du må utelukke noe. I hjørnet er det peisovn som gir ekstra hygge og god oppvarming. Rommet er malt i
fresh farge, har parkettgulv og downlights i taket. Det er naturlig lysinnslipp fra vinduer på flere sider, og
utsikt mot hagen uten særlig innsyn.
Innenfor stuen ligger et stort og flott spisekjøkken med god plass til hele familien. Dette blir boligens
naturlige samlingspunkt med mulighet for langbord til sosiale sammenkomster. Rommet har flislagt gulv
med vannbåren gulvvarme, og downlightsbelysning samt naturlig lys fra vinduer mot hagen.
Kjøkkenet er godt utnyttet med romslig innredning langs flere vegger, med rikelig benkeflate og masse
skapplass. Frontene har klassisk stil med profil i hvit farge, og benkeplaten gir fin kontrast. Utstyrt med
integrert gasstopp, stekeovn og takmontert ventilator med avtrekk ut. Videre har kjøkkenet opplegg for
oppvaskmaskin og plass til kjøleskap i egen nisje.
2. etasje:
Boligen har ytterligere en stue i 2. etasje som passer ypperlig som egen tv-stue og lekerom til barna i
huset, praktisk plassert ved alle soverommene. Fra stuen er det også utgang til balkong. Det er plass til
sofa og tv, eller skrivebord for hjemmekontoret. I dag er rommet benyttet som soverom.
Soverom:
Boligen har en meget familievennlig løsning med hele 5 soverom i samme etasje. Alle soverommene er
malt i lyse farger, og har vindu med lys- og luftemuligheter. Det er plass til seng, nattbord og
garderobeløsning. Flere av rommene har i dag garderobeskap som medfølger.
Boligen har ellers god lagringsplass i teknisk rom og i tillegg til mye lagringsplass i knevegg.
Hybel (ikke godkjent):
Det er etablert hybel på loftet på garasjen. Hybelen er ikke omsøkt eller bruksendret fra tilleggsdel til
hoveddel. Leiligheten består av kjøkken med spiseplass, bad og soverom. Egen uteplass i tilknytning.
Kjøkkenet har profilert innredning med laminat benkeplate og fliser mellom benk og overskap. Innredet
med integrert platetopp og stekeovn, samt opplegg for oppvaskmaskin og kombiskap.
Flislagt bad med gulvmontert toalett, dusjhjørne med innfellbare dører, og innredning med nedfelt servant
og tilhørende speilskap. Egen varmtvannstank er montert. Rommet har elektrisk vifte og varmekabler i
gulvet.
Selger har fått utarbeidet en tilstandsrapport for eiendommen. Rapporten er en teknisk gjennomgang
av boligen og angir eventuelle byggetekniske avvik. Takstmann har gjennomgått boligen og gjort
vurderinger på en tilstandsgrad fra 1 til 3. Graderingene er som følger:
Tilstandsgrad 0, TG0: Ingen avvik.
Tilstandsgrad 1, TG1: Mindre avvik.
Tilstandsgrad 2, TG2: Vesentlige avvik og mindre avvik som etter NS 3600 gir TG2.
Tilstandsgrad 3, TG3: Store eller alvorlige avvik.
TGIU: Ikke tilgjengelig for undersøkelse.
TG3:
- Bad/vaskerom 1.etg: Det er påvist mangelfull/feil utførelse rundt rørgjennomføringer. Membran kan ikke
konstateres (ikke synlig og det
foreligger heller ikke dokumentasjon). Mer enn halvparten av forventet brukstid er passert på
membranløsningen og slukløsningen. Det er ikke tilfredsstillende membran/tettesjikt på våtrommet.
Kostnadsestimat: 10 000 - 50 000 kr.
TG2 avvik som kan krebe tiltak:
- Vinduer: Det er påvist tegn på innvendig kondensering av enkelte vindusglass. Karmene i vinduer er
slitte og det er sprekker i trevirket.
- Dører: Det er skade på terrassedøren i stuen.
- Overbygget del av terrasse: Det er registrert noe uferdig arbeid i forbindelse med takkonstruksjonen og
gesimsen.
- Etasjeskille/gulv mot grunn: Det er målt høydeforskjell på mellom 15-30 mm gjennom hele rommet
(målinger foretatt i stue/kjøkken i 1.etg).
- Radon: Det er ikke foretatt radonmålinger, og bygget er heller ikke utført med radonsperre.
- Pipe og ildsted: Det er registrert en sprekk i det ene pipeløpet, jf. rapport fra VIB IKS fra 2022.
- Innvendige trapper: Trappen har noe knirk og overflateslitasje.
- Vannledninger: Det er påvist ufagmessig utførelse på synlig røropplegg under innredning på bad og i
kjøkkenbenk.
- Ventilasjon: Det er påvist avvik i ventilasjonsløsning i forhold til gjeldende krav på oppføringstidspunktet.
- Elektrisk anlegg: Det foreligger ikke samsvarseklæring.
- Toalettrom: Det er ikke påvist tilfredsstillende løsning for å synliggjøre lekkasje fra innebygget sisterne.
Det er utetthet mellom gulvlister og gulv. Det er ikke tilfredsstillende ventilasjon.
- Bad 1.etg - Overflater vegger og himling: Det er påvist at flisfuger har riss/sprekker. Det er vindu/dør med
ikke fuktbestandige materialer i våtsonen. Det er panel på veggene, noe som ikke er egnet i våtsoner.
- Bad 1.etg - overflater gulv: Det er påvist at høydeforskjell fra topp slukrist til gulv/synlig topp membran ved
dørterskel er mindre enn 25 mm. Det er påvist riss og sprekker i flisfugene.
- Bad 1.etg - Sanitærutstyr og innredning: Det er ikke påvist tilfredsstillende løsning for å synliggjøre
lekkasje fra innebygget sisterne.
- Bad 1.etg - ventilasjon: Rommet har kun naturlig ventilasjon.
- Kjøkken - overflater og innredning: Noen gulvfliser har bom (hulrom under).