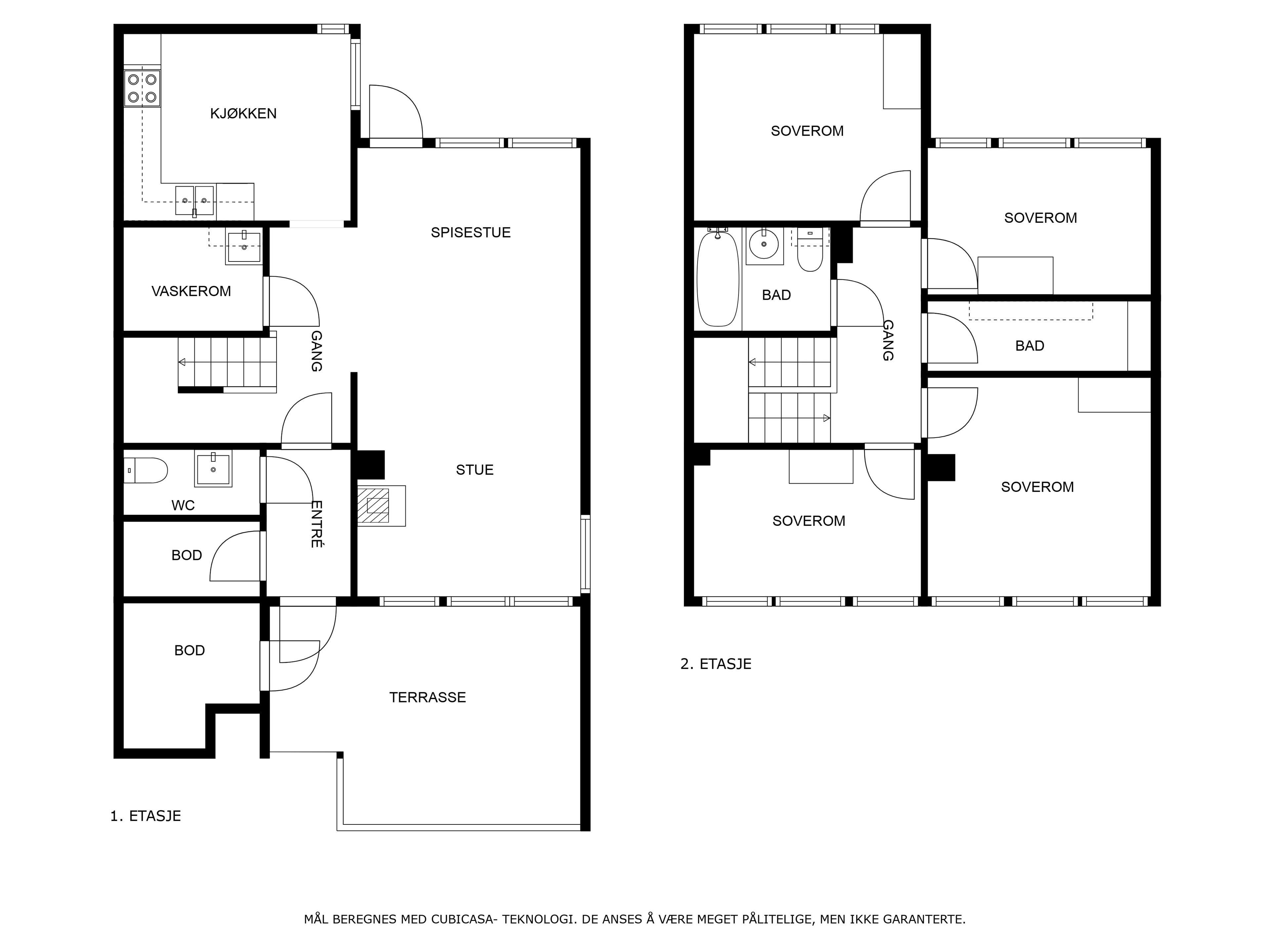
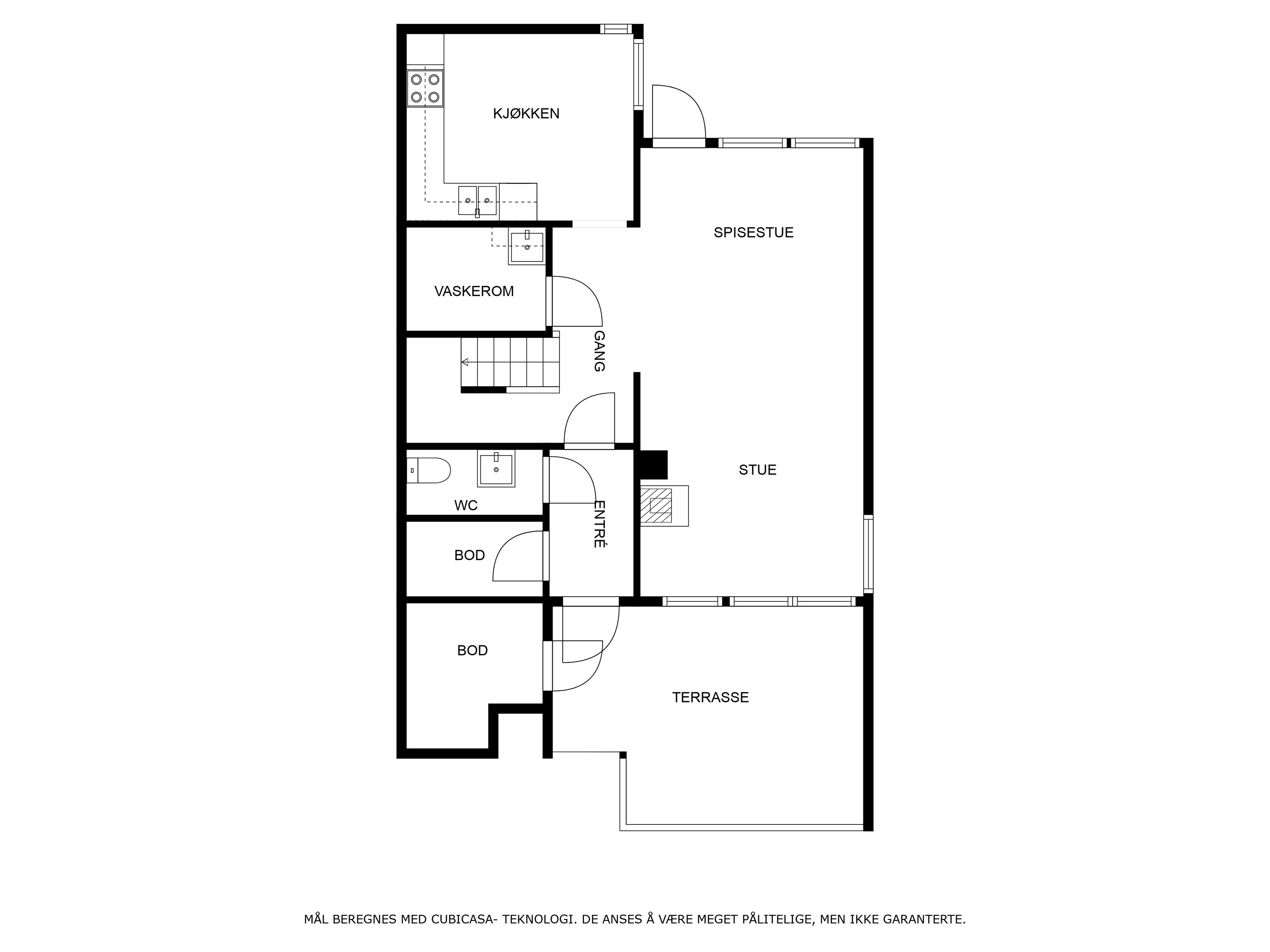
Byggemåte
Boligen er fundamentert på faste stabile masser.
Støpt betongdekke til grunn.
Etasjeskillere i tre.
Yttervegger i bindingsverk med liggende kledning.
Saltakkonstruksjon tekket med papp.
Takrenner og nedløp av plastbelagt stål. Heldekkende beslag over pipe og luftehatter. Vindskier har
beslag.
Vinduer og terrassedør i tre med isolerglass.
Ytterdør i tre.
Se vedlagt boligsalgsrapport avholdt 05.06.25, hvor ovennevnte opplysninger er hentet fra, for
nærmere teknisk beskrivelse av eiendommen.
Takstmannen har utarbeidet en tilstandsrapport med gradering av eiendommens tilstand.
En tilstandsrapport beskriver boligens tilstand med synlige skader/avvik eller tegn på skader/avvik på
boligen. Rapporten fremhever vanligvis ikke positive egenskaper ved boligen. I felt hvor det er gitt
Tilstandsgrad 0 er det ingen avvik. I felt hvor det er gitt Tilstandsgrad 1 er det mindre avvik. Bygningsdeler
som tildeles Tilstandsgrad 2 angir mindre avvik som etter NS 3600 gir TG2 som ikke krever umiddelbare
tiltak eller vesentlige avvik som kan kreve tiltak. Bygningsdeler som tildeles Tilstandsgrad 3, har store
eller alvorlige avvik. Der det er angitt Tilstandsgrad IU er det ikke undersøkt eller bygningsdelen er ikke
tilgjengelig for undersøkelse.
I følge tilstandsrapport er det registrert følgende avvik på tilstandsgrad:
TG 3:
- Vaskerom: Våtrommet må oppgraderes for å tåle normal bruk etter dagens krav.
- Bad: Våtrommet må oppgraderes for å tåle normal bruk etter dagens krav.
TG IU:
- Tilliggende konstruksjoner våtrom vaskerom: Det er utenpåliggende røropplegg og hulltaking med
fuktsøk er derfor ikke fysisk mulig.
- Tilliggende konstruksjoner våtrom bad: Det er utenpåliggende røropplegg og hulltaking med fuktsøk er
derfor ikke fysisk mulig.
TG 2 (avvik som kan kreve tiltak):
- Balkonger, terrasser og rom under balkonger: Det er værslitt/oppsprukket trevirke/trepaneler.
Konstruksjonene har skjevheter.
- Innvendige overflater: Overflater har en del slitasjegrad utover det en kan forvente.
- Pipe og ildsted: Det er påvist sprekker og/eller riss i pipe. Ildfast plate mangler på gulvet under
sotluke/feieluke på pipe. Mer enn halvparten av forventet brukstid er passert på pipe.
- Innvendige trapper: Åpninger i rekkverk er større enn dagens forskriftskrav til rekkverk i trapper. Åpninger
mellom trinn i innvendig trapp er større enn dagens forskriftskrav. Rekkverkshøyder er under dagens
forskriftskrav til rekkverk i trapper. Trappen har en del slitasjegrad.
- Vannledninger: Mer enn halvparten av forventet brukstid er passert på innvendige vannledninger. Enkelte
skjøter på rør er teipet.
- Avløpsrør: Mer enn halvparten av forventet brukstid er passert på innvendige avløpsledninger.
- Varmtvannstank: Det er ikke påvist tilfredsstillende avrenning eller annen kompenserende løsning fra
varmtvannstank. Det er ikke påvist tilfredsstillende el-tilkobling av varmtvannstank iht. gjeldende forskrift.
Det er påvist at varmtvannstank er over 20 år.
- Elektrisk anlegg: Basert på alder på det elektriske anlegget anbefales det å foreta en generell el-kontroll.
Det utelukkes ikke at det vil tilkomme påkostninger på anlegget.
- Overflater og konstruksjon toalettrom: Toalettrom har kun naturlig avtrekk fra rommet, NS 3600 krever
mekanisk avtrekk for å kunne gi TG 0/1.
- Overflater og innredning kjøkken: Det er påvist at overflater har noe skader. Blandebatteri drypper og lar
seg ikke stenge.
- Avtrekk kjøkken: Høy alder på ventilator.
TG 2 (avvik som ikke krever umiddelbare tiltak):
- Etasjeskille/gulv mot grunn: Det er målt høydeforskjell på mellom 15-30 mm gjennom hele rommet.
Tilstandsgrad 2 gis med bakgrunn i standardens krav til godkjente måleavvik. Det er registrert noe knirk.
- Radon: Det er ikke foretatt radonmålinger, og bygget er heller ikke utført med radonsperre.
For øvrig er det kun mindre avvik med TG 1 og TG 0.