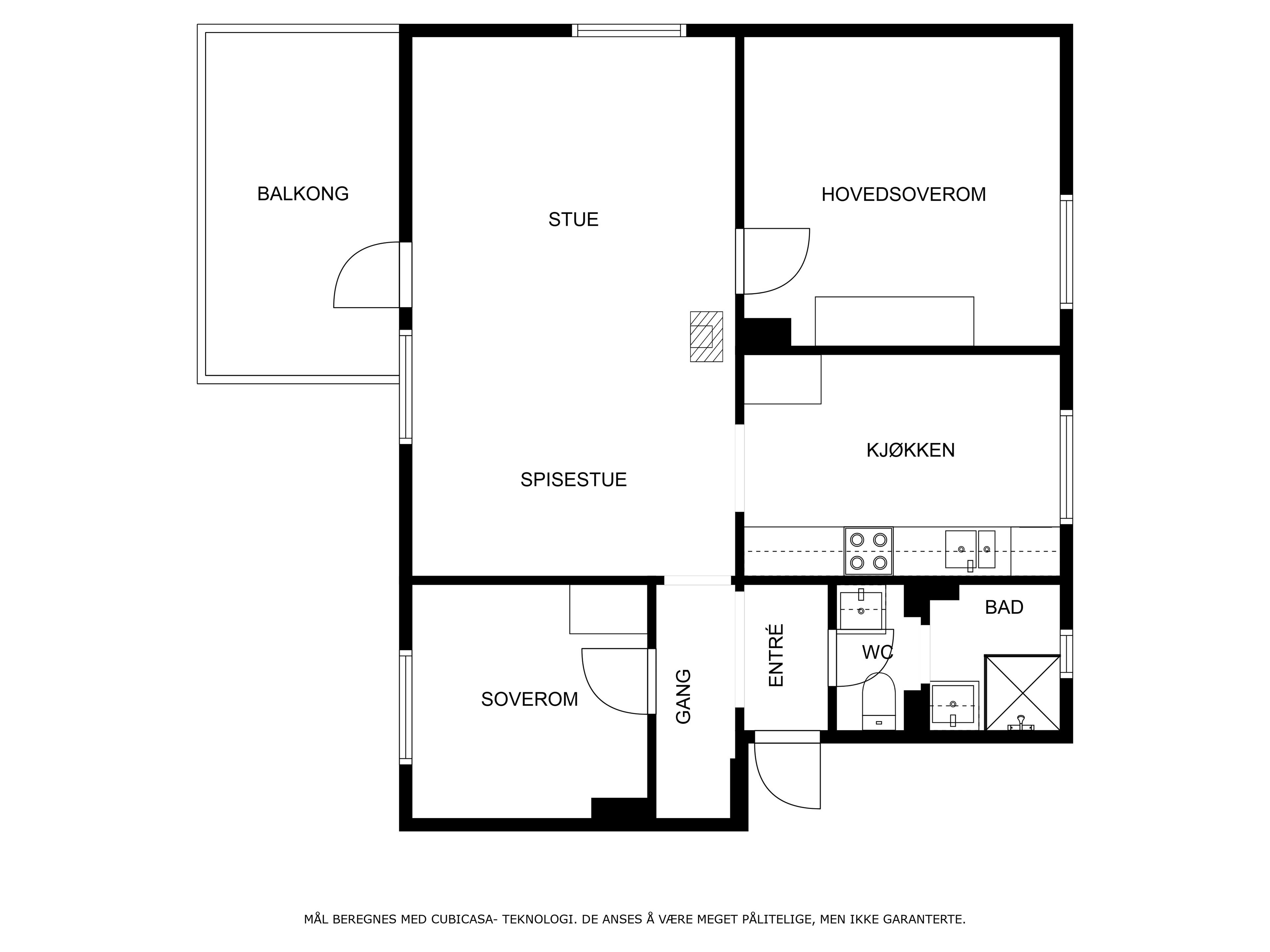
Byggemåte
Byggegrunn av antatt faste stabile masser. 
Antatt grunnforhold av morenegrunn. 
Grunnmur av plasstøpt betong. 
Etasjeskillere av tre.
Yttervegger av bindingsverk med stående kledning. 
Saltakkonstruksjon antatt tekket med papp eller shingel. 
Undertak av rupanel. 
Takrenner og nedløp av plastbelagt stål. 
Vinduer og terrassedør i tre med isolerglass. 
Ytterdører i tre.
Se vedlagt boligsalgsrapport avholdt 19.06.25, hvor ovennevnte opplysninger er hentet fra, for 
nærmere teknisk beskrivelse av eiendommen.
Takstmannen har utarbeidet en tilstandsrapport med gradering av eiendommens tilstand. 
En tilstandsrapport beskriver boligens tilstand med synlige skader/avvik eller tegn på skader/avvik på 
boligen. Rapporten fremhever vanligvis ikke positive egenskaper ved boligen. I felt hvor det er gitt 
Tilstandsgrad 0 er det ingen avvik. I felt hvor det er gitt Tilstandsgrad 1 er det mindre avvik. Bygningsdeler 
som tildeles Tilstandsgrad 2 angir mindre avvik som etter NS 3600 gir TG2 som ikke krever umiddelbare 
tiltak eller vesentlige avvik som kan kreve tiltak. Bygningsdeler som tildeles Tilstandsgrad 3, har store 
eller alvorlige avvik. Der det er angitt Tilstandsgrad IU er det ikke undersøkt eller bygningsdelen er ikke 
tilgjengelig for undersøkelse.
I følge tilstandsrapport er det registrert følgende avvik på tilstandsgrad:
TG 3:
- Utvendige dører: Karmene i dører er værslitte utvendig og det er sprekker i trevirket. Dører har 
råteskader. Verandadør har råteskader.
- Innvendige overflater: Det er stedvis påvist synlige skader på overflater. Overflater har en del slitasjegrad 
utover det en kan forvente.
- Bad: Våtrommet må oppgraderes for å tåle normal bruk etter dagens krav.
TG IU:
- Takkonstruksjon/loft: Det er ikke adkomst til loftet. Konstruksjonen er derfor ikke vurdert eller undersøkt. 
Det anbefales å etablere adkomst til loftet med nedtrekkbar stige.
- Tilliggende konstruksjoner våtrom: Det er utenpåliggende røropplegg og vannuttak ligger mot 
kjøkkeninnredning. Hulltaking med fuktsøk er derfor ikke fysisk mulig.
TG 2 (avvik som kan kreve tiltak):
- Taktekking: Mer enn halvparten av forventet brukstid er passert på taktekkingen. Mer enn halvparten av 
forventet brukstid er passert på undertak.
- Nedløp og beslag: Det mangler snøfangere på hele eller deler av taket, men det var ikke krav om dette 
på byggemeldingstidspunktet. Mer enn halvparten av forventet brukstid er passert på 
renner/nedløp/beslag.
- Veggkonstruksjon: Det er påvist spredte råteskader i bordkledningen. Det er værslitt/oppsprukket 
trevirke/trepaneler.
- Utvendige vinduer: Karmene i vinduer er slitte og det er sprekker i trevirket.
- Balkonger, terrasser og rom under balkonger: Det er værslitt/oppsprukket trevirke/trepaneler.
- Pipe og ildsted: Mer enn halvparten av forventet brukstid er passert på pipe. Pipa har rennemerker etter 
sotvann.
- Vannledninger: Mer enn halvparten av forventet brukstid er passert på innvendige vannledninger.
- Avløpsrør: Mer enn halvparten av forventet brukstid er passert på innvendige avløpsledninger.
- Varmtvannstank: Det er ikke påvist tilfredsstillende avrenning eller annen kompenserende løsning fra 
varmtvannstank. Det er ikke påvist tilfredsstillende el-tilkobling av varmtvannstank iht. gjeldende forskrift. 
Det er påvist at varmtvannstank er over 20 år.
- Elektrisk anlegg: Basert på alder på det elektriske anlegget anbefales det å foreta en generell el-kontroll. 
Det utelukkes ikke at det vil
tilkomme påkostninger på anlegget.
- Fuktsikring og drenering: Mer enn halvparten av forventet levetid på drenering er overskredet. Det måles 
forhøyede verdier i kjeller. Saltutslag observeres. Vurderes relativt normalt i en eldre kjeller. Normale 
kapilærkrefter og kapilærsug vil som regel alltid forekomme.
- Grunnmur og fundamenter: Grunnmuren har sprekkdannelser.
- Utvendige vann- og avløpsledninger: 
- Overflater og konstruksjon toalettrom: Toalettrom har kun naturlig avtrekk fra rommet, NS 3600 krever 
mekanisk avtrekk for å kunne gi TG 0/1.
- Avtrekk kjøkken: Høy alder på ventilator.
TG 2 (avvik som ikke krever umiddelbare tiltak):
- Etasjeskille/gulv mot grunn: Det er målt høydeforskjell på mellom 15-30 mm gjennom hele rommet. 
Tilstandsgrad 2 gis med bakgrunn i standardens krav til godkjente måleavvik. Målt høydeforskjell på 
mellom 10 - 20 mm innenfor en lengde på 2 meter. Tilstandsgrad 2 gis med bakgrunn i standardens krav 
til godkjente måleavvik. Stedvis knirk.
- Radon: Det er ikke foretatt radonmålinger, og bygget er heller ikke utført med radonsperre.
For øvrig er det kun mindre avvik med TG 1 og TG 0.