Byggemåte
Byggegrunn av antatt faste stabile masser. 
Antatt grunnforhold av morenegrunn. 
Grunnmur av plasstøpt betong. 
Etasjeskillere av tre.
Yttervegger av bindingsverk med stående kledning. 
Saltakkonstruksjon antatt tekket med papp eller shingel. 
Takrenner og nedløp av plastbelagt stål. 
Vinduer og terrassedør i tre med isolerglass. 
Ytterdører i tre.
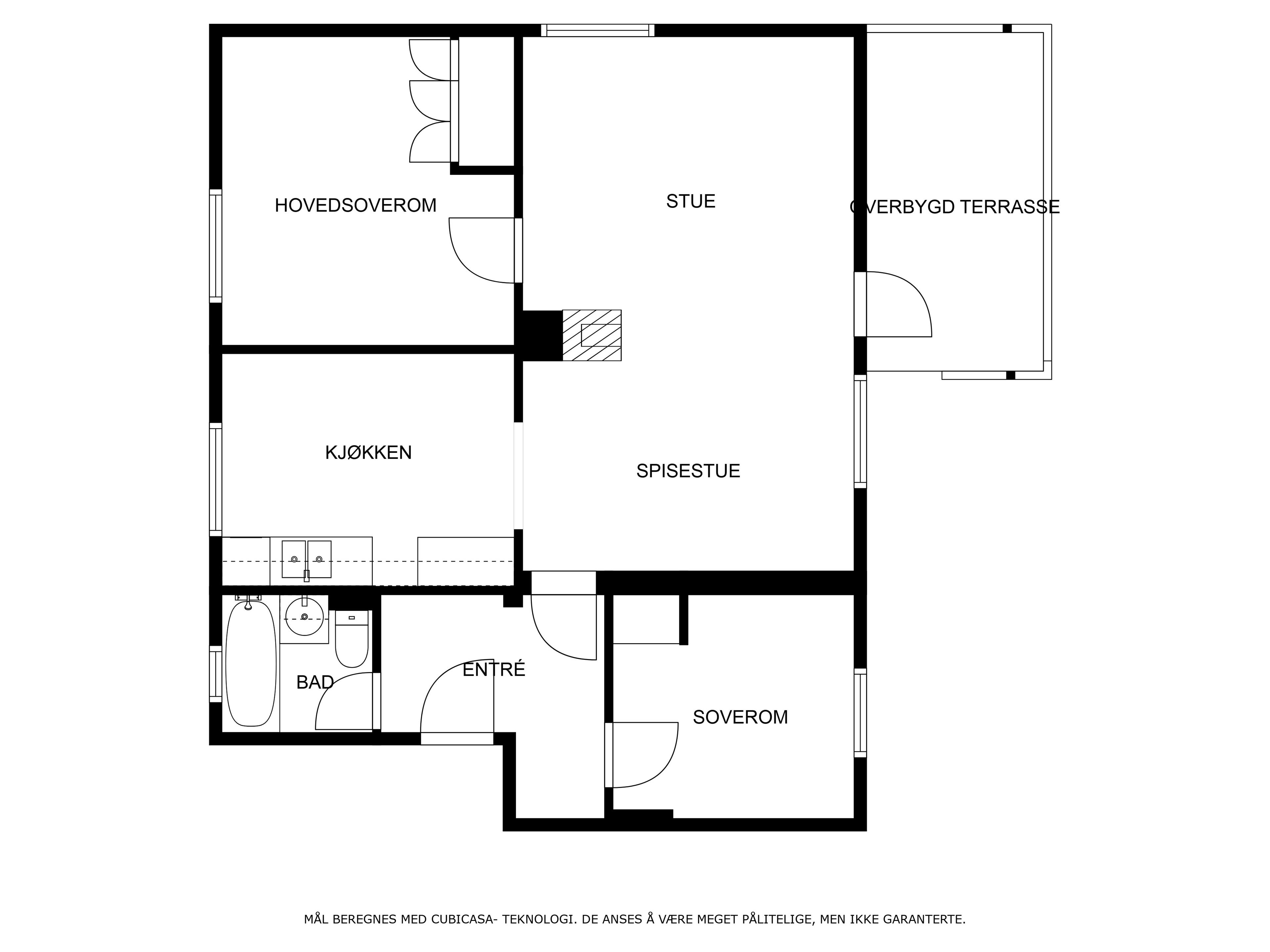
Se vedlagt boligsalgsrapport avholdt , hvor ovennevnte opplysninger er hentet fra, for 
nærmere teknisk beskrivelse av eiendommen.
Takstmannen har utarbeidet en tilstandsrapport med gradering av eiendommens tilstand. 
En tilstandsrapport beskriver boligens tilstand med synlige skader/avvik eller tegn på skader/avvik på 
boligen. Rapporten fremhever vanligvis ikke positive egenskaper ved boligen. I felt hvor det er gitt 
Tilstandsgrad 0 er det ingen avvik. I felt hvor det er gitt Tilstandsgrad 1 er det mindre avvik. Bygningsdeler 
som tildeles Tilstandsgrad 2 angir mindre avvik som etter NS 3600 gir TG2 som ikke krever umiddelbare 
tiltak eller vesentlige avvik som kan kreve tiltak. Bygningsdeler som tildeles Tilstandsgrad 3, har store 
eller alvorlige avvik. Der det er angitt Tilstandsgrad IU er det ikke undersøkt eller bygningsdelen er ikke 
tilgjengelig for undersøkelse.
I følge tilstandsrapport er det registrert følgende avvik på tilstandsgrad:
TG 3:
- Bad: Våtrommet må oppgraderes for å tåle normal bruk etter dagens krav.
TG IU:
- Takkonstruksjon/loft: Det er ikke adkomst til loftet. Konstruksjonen er derfor ikke vurdert eller undersøkt. 
Det anbefales å etablere adkomst til loftet med nedtrekkbar stige.
- Tilliggende konstruksjoner våtrom: Hulltaking er ikke foretatt da det ikke er fysisk mulig pga tilliggende 
konstruksjoner (blandebatteri/vannuttak ligger mot kjøkkeninnredning).
TG 2 (avvik som kan kreve tiltak):
- Taktekking: Mer enn halvparten av forventet brukstid er passert på taktekkingen. Mer enn halvparten av 
forventet brukstid er passert på undertak.
- Nedløp og beslag: Det mangler snøfangere på hele eller deler av taket, men det var ikke krav om dette 
på byggemeldingstidspunktet. Mer enn halvparten av forventet brukstid er passert på 
renner/nedløp/beslag.
- Veggkonstruksjon: Det er påvist spredte råteskader i bordkledningen. Det er værslitt/oppsprukket 
trevirke/trepaneler.
- Utvendige vinduer: Karmene i vinduer er slitte og det er sprekker i trevirket.
- Utvendige dører: Karmene i dører er værslitte utvendig og det er sprekker i trevirket.
- Balkonger, terrasser og rom under balkonger: Det er værslitt/oppsprukket trevirke/trepaneler.
- Innvendige overflater: Overflater har en del slitasjegrad utover det en kan forvente.
- Etasjeskille/gulv mot grunn: Det er målt høydeforskjell på mellom 15-30 mm gjennom hele rommet. 
Tilstandsgrad 2 gis med bakgrunn i standardens krav til godkjente måleavvik.
- Radon: Det er ikke foretatt radonmålinger, og bygget er heller ikke utført med radonsperre.
- Pipe og ildsted: Det er påvist sprekker og/eller riss i pipe. Mer enn halvparten av forventet brukstid er 
passert på pipe. Pipa har rennemerker etter sotvann.
- Vannledninger: Mer enn halvparten av forventet brukstid er passert på innvendige vannledninger.
- Avløpsrør: Mer enn halvparten av forventet brukstid er passert på innvendige avløpsledninger.
- Varmtvannstank: Det er ikke påvist tilfredsstillende avrenning eller annen kompenserende løsning fra 
varmtvannstank. Det er ikke påvist tilfredsstillende el-tilkobling av varmtvannstank iht. gjeldende forskrift. 
Det er påvist at varmtvannstank er over 20 år.
- Elektrisk anlegg: Basert på alder på det elektriske anlegget anbefales det å foreta en generell el-kontroll. 
Det utelukkes ikke at det vil tilkomme påkostninger på anlegget.
- Fuktsikring og drenering: Mer enn halvparten av forventet levetid på drenering er overskredet.
- Grunnmur og fundamenter: Det er registrert horisontalriss som er symptom på jordtrykk. Grunnmuren 
har sprekkdannelser.
- Utvendige vann- og avløpsledninger: Mer enn halvparten av forventet brukstid er passert på utvendige 
avløpsledninger. Mer enn halvparten av forventet brukstid er passert på utvendige vannledninger.
- Overflater og innredning kjøkken: Det er påvist at overflater har noe skader.
- Avtrekk kjøkken:Høy alder på ventilator.
For øvrig er det kun mindre avvik med TG 1 og TG 0.