Byggemåte
Boligen er fundamentert på støpt og isolert betong såle/fundamenterer.
Tak er tekket med betongtakstein. Etter byggemåte med sløyfer, lekter og undertak.
Takrenner, beslag og nedløp i plastbelagt stål.
Isolert bindingsverk fra byggeår. Utvendig kledd med liggende trepanel. Overflatebehandlet.
Det opplyses at boligen er malt utvendig i 2023.
Saltak takkonstruksjon av sperrekonstruksjon.
Vinduer med isolerglass i treramme. Overflatebehandlet.
Ytterdør i tre. Verandadør i tre med isolerglass.
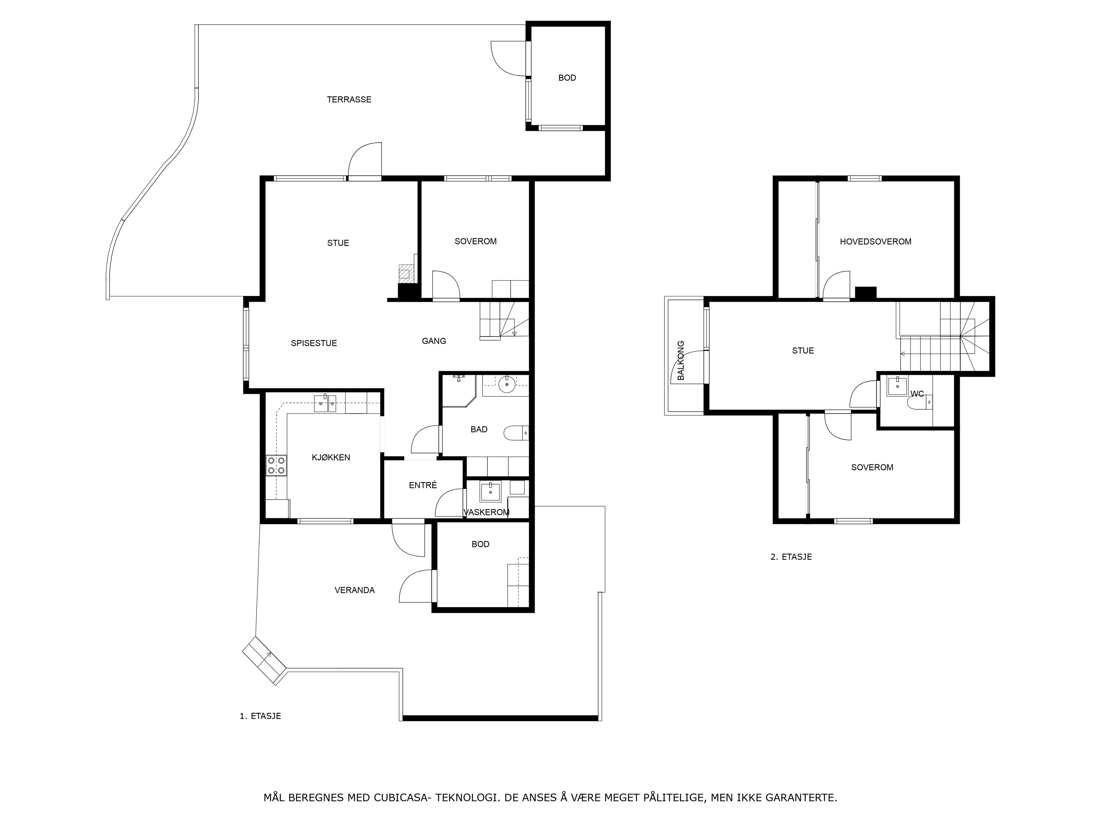
Fra stue i 2. etasje er det utgang til en balkong på ca. 4 kvm oppsatt i trekonstruksjoner.
Fra stue i 1. etasje er det utgang til en terrasse på ca. 55 kvm oppsatt i trekonstruksjoner.
Det er også en frittstående terrasse foran inngangsparti på ca. 30 kvm.
Utvendig tretrapp.
Garasje oppsatt i trekonstruksjoner.
Bod oppsatt i trekonstruksjoner.
Se vedlagt boligsalgsrapport avholdt 12.05.25, hvor ovennevnte opplysninger er hentet fra, for
nærmere teknisk beskrivelse av eiendommen.
Takstmannen har utarbeidet en tilstandsrapport med gradering av eiendommens tilstand.
En tilstandsrapport beskriver boligens tilstand med synlige skader/avvik eller tegn på skader/avvik på
boligen. Rapporten fremhever vanligvis ikke positive egenskaper ved boligen. I felt hvor det er gitt
Tilstandsgrad 0 er det ingen avvik. I felt hvor det er gitt Tilstandsgrad 1 er det mindre avvik. Bygningsdeler
som tildeles Tilstandsgrad 2 angir mindre avvik som etter NS 3600 gir TG2 som ikke krever umiddelbare
tiltak eller vesentlige avvik som kan kreve tiltak. Bygningsdeler som tildeles Tilstandsgrad 3, har store
eller alvorlige avvik. Der det er angitt Tilstandsgrad IU er det ikke undersøkt eller bygningsdelen er ikke
tilgjengelig for undersøkelse.
I følge tilstandsrapport er det registrert følgende avvik på tilstandsgrad:
TG 3:
- Utvendige trapper: Det er ikke montert rekkverk.
- Vaskerom: Våtrommet må oppgraderes for å tåle normal bruk etter dagens krav.
TG IU:
- Takkonstruksjon/loft: Hele takkonstruksjonen er gjenbygget. Det er ingen mulighet til vurdering utover
alder og observasjoner fra underliggende etasjer.
- Utvendige vann- og avløpsledninger: Utvendige vann- og avløpsledninger er nedgrav og av naturlige
årsaker ikke sjekket. Det er ikke opplyst om pålegg, funksjonsfeil eller andre mangler ved anlegget.
TG 2:
- Taktekking: Mer enn halvparten av forventet brukstid er passert på taktekkingen. Mer enn halvparten av
forventet brukstid er passert på undertak.
- Nedløp og beslag: Det mangler snøfangere på hele eller deler av taket, men det var ikke krav om dette
på byggemeldingstidspunktet. Det mangler tilfredsstillende adkomst til pipe for feier. Mer enn halvparten
av forventet brukstid er passert på renner/nedløp/beslag.
- Veggkonstruksjon: Dagens krav til isolering og tetthet er strengere enn de som var da denne
eiendommen ble bygget. Yttervegger er trolig isolert med datidens krav til isolasjon. Dette kan følgelig
ikke med sikkerhet stadfestes da det ligger skjult i byggkonstruksjonen. Tilstand settes med tanke på
alder.
- Utvendige vinduer: TG gis med bakgrunn av alder. Mer enn halvparten av forventet brukstid er oppbrukt.
Noe kondens merker på enkelte vinduer.
- Utvendige dører: Tilstand settes med tanke på alder. Noe bruksslitasje.
- Balkonger, terrasser og rom under balkonger: Rekkverket er for lavt i forhold til dagens krav til
rekkverkshøyder. Noe tørkesprekker/råte enkelte steder. Noe hull i platting etter tidligere rekkverk.
- Innvendige overflater: Noe bruksslitasje. Tilstand settes med tanke på alder.
- Radon: Det er ikke foretatt radonmålinger, og bygget er heller ikke utført med radonsperre.
- Pipe og ildsted: Tilstand settes med tanke på alder.
- Innvendige trapper: Det mangler håndløper på vegg i trappeløpet.
- Innvendige dører: Noe bruksslitasje. Tilstand settes med tanke på alder.
- Vannledninger: Vurdering er basert på alder. Tilstandsgrad 2 gis med bakgrunn i at mer enn halvparten
av forventet brukstid for skjulte røranlegg er
passert. Det er nå ingen symptomer på funksjonssvekkelse, men vær oppmerksom på at dette er en
risikokonstruksjon.
- Avløpsrør: Vurdering er basert på alder. Tilstandsgrad 2 gis med bakgrunn i at mer enn halvparten av
forventet brukstid for skjulte røranlegg er
passert. Det er nå ingen symptomer på funksjonssvekkelse, men vær oppmerksom på at dette er en
risikokonstruksjon.
- Ventilasjon: Tilstand settes med tanke på alder.
- Varmesentral: Det har ikke vært avholdt service på varmepumpe senere år.
- Varmtvannstank: Det er påvist at varmtvannstank er over 20 år.
- Andre installasjoner: Ikke vært service på sentralstøvsuger siste 2 år.
- Elektrisk anlegg: Det foreligger ikke el-tilsynsrapport siste 5 år. Alt som er utført i eiers tid opplyses utført
av godkjent elektriker firma. Hva som er utført før dette er ukjent.
- Grunnmur og fundamenter: Noe tørkesprekker.
- Forstøtningsmurer: Tilstand settes med tanke på alder. Noe skjevheter/sprekker.
- Terrengforhold: Det er påvist dårlig fall eller flatt terreng inn mot grunnmur og dermed muligheter for
større vannansamlinger.
- Overflater vegger og himling bad: Tilstand settes med tanke på alder.
- Overflater gulv bad: Det er påvist at høydeforskjell fra topp slukrist til gulv/synlig topp membran ved
dørterskel er mindre enn 25 mm. Det er påvist avvik i fallforhold til sluk i forhold til krav i forskrift på
byggetidspunktet.
- Sluk, membran og tettesjikt bad: Det foreligger ikke dokumentasjon på oppbygging av baderomsgulv.
Hvordan dette og membranløsninger er utført er ukjent.
- Overflater og innredning kjøkken: Tilstand settes med tanke på alder. Noe bruksslitasje.
- Avtrekk kjøkken: Mer enn halvparten av forventet brukstid for ventilator er oppbrukt.
For øvrig er det kun mindre avvik med TG 1 og TG 0.