Byggemåte
Bygningen står på faste masser. 
Ukjent drenering.
Boligen er fundamentert på støpt og betong såle. Grunnmur av betong.
Tak er tekket med betongtakstein. Etter byggemåte med sløyfer, lekter og undertak.
Takrenner, beslag og nedløp i plastbelagt stål/plast.
Isolert bindingsverk fra byggeår. Utvendig kledd med liggende og stående trepanel. Overflatebehandlet.
Saltak takkonstruksjon av plassbygde takstoler. Undertak av bordtak. Overflatebehandlet. 
Trevinduer med koblet glass. Vinduer er av eldre og nyere dato. Lokal TG 1 på nyere vinduer.
Ytterdør i tre.
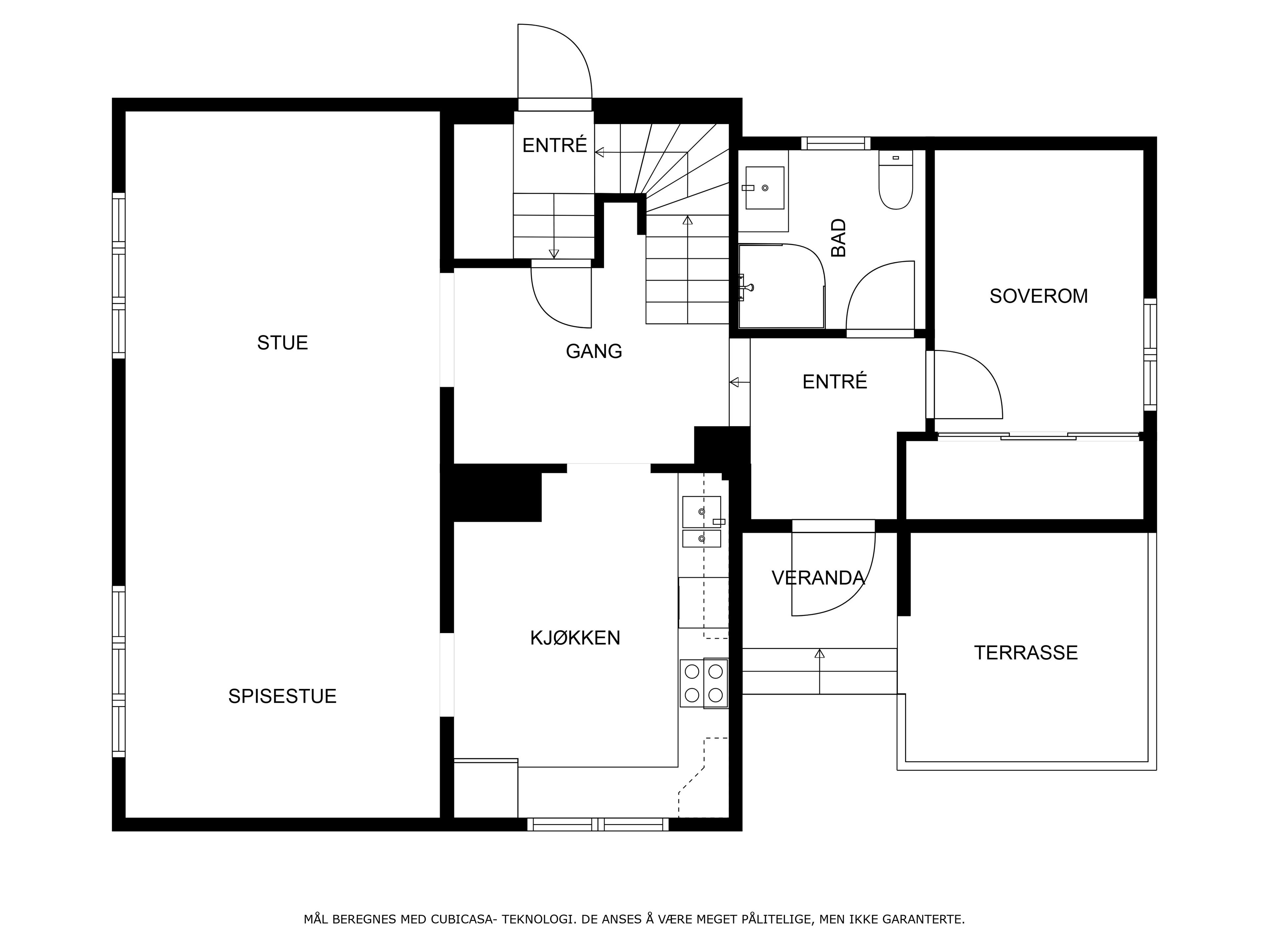
Foran inngang er det en balkong på ca. 7 kvm oppsatt i trekonstruksjoner.
Det er også en frittstående terrasse på ca. 24 kvm på eiendommen.
Oppsatt i trekonstruksjoner.
Utvendig trapp i betong og galvanisert stål.
Se vedlagt boligsalgsrapport avholdt 27.08.25, hvor ovennevnte opplysninger er hentet fra, for 
nærmere teknisk beskrivelse av eiendommen.
Takstmannen har utarbeidet en tilstandsrapport med gradering av eiendommens tilstand. 
En tilstandsrapport beskriver boligens tilstand med synlige skader/avvik eller tegn på skader/avvik på 
boligen. Rapporten fremhever vanligvis ikke positive egenskaper ved boligen. I felt hvor det er gitt 
Tilstandsgrad 0 er det ingen avvik. I felt hvor det er gitt Tilstandsgrad 1 er det mindre avvik. Bygningsdeler 
som tildeles Tilstandsgrad 2 angir mindre avvik som etter NS 3600 gir TG2 som ikke krever umiddelbare 
tiltak eller vesentlige avvik som kan kreve tiltak. Bygningsdeler som tildeles Tilstandsgrad 3, har store 
eller alvorlige avvik. Der det er angitt Tilstandsgrad IU er det ikke undersøkt eller bygningsdelen er ikke 
tilgjengelig for undersøkelse.
I følge tilstandsrapport er det registrert følgende avvik på tilstandsgrad:
TG 3:
- Utvendige trapper: Det er ikke montert rekkverk.
- Innvendige trapper: Det er ikke montert rekkverk.
- Vaskerom kjeller: Våtrommet må oppgraderes for å tåle normal bruk etter dagens krav.
TG IU:
- Utvendige vann- og avløpsledninger: Utvendige vann- og avløpsledninger er nedgrav og av naturlige 
årsaker ikke sjekket. Det er ikke opplyst om pålegg, funksjonsfeil eller andre mangler ved anlegget.
TG 2: 
- Taktekking: Mer enn halvparten av forventet brukstid er passert på taktekkingen. Mer enn halvparten av 
forventet brukstid er passert på undertak.
- Nedløp og beslag: Det mangler snøfangere på hele eller deler av taket, men det var ikke krav om dette 
på byggemeldingstidspunktet. Mer enn halvparten av forventet brukstid er passert på 
renner/nedløp/beslag.
- Veggkonstruksjon: Det er ingen eller liten lufting i nedre kant av kledning mot grunnmur. Noe 
oppsprekking av kledning på værutsatte steder.
- Takkonstruksjon/loft: Det er begrenset/dårlig ventilering av takkonstruksjonen.
- Utvendige vinduer: TG gis med bakgrunn av alder. Noe kondens merker på kjellervindu. Mer enn 
halvparten av forventet brukstid er oppbrukt på de eldste vinduer.
- Balkonger, terrasser og rom under balkonger: Rekkverket er for lavt i forhold til dagens krav til 
rekkverkshøyder.
- Etasjeskille/gulv mot grunn: Det er målt høydeforskjell på mellom 15-30 mm gjennom hele rommet. 
Tilstandsgrad 2 gis med bakgrunn i standardens krav til godkjente måleavvik.
- Radon: Det er ikke foretatt radonmålinger, og bygget er heller ikke utført med radonsperre.
- Pipe og ildsted: Mer enn halvparten av forventet brukstid er passert på pipe. Pipa har rennmerker etter 
sotvann. Det rennmerker på pipetopp.
- Innvendige dører: Det er fuktmerker i bunn av baderomsdør. Skade i dørblad. Noe bruksslitasje på eldre 
dører.
- Vannledninger: Vurdering er basert på alder. Tilstandsgrad 2 gis med bakgrunn i at mer enn halvparten 
av forventet brukstid for skjulte røranlegg er
passert. Det er nå ingen symptomer på funksjonssvekkelse, men vær oppmerksom på at dette er en 
risikokonstruksjon.
- Avløpsrør: Vurdering er basert på alder. Tilstandsgrad 2 gis med bakgrunn i at mer enn halvparten av 
forventet brukstid for skjulte røranlegg er
passert. Det er nå ingen symptomer på funksjonssvekkelse, men vær oppmerksom på at dette er en 
risikokonstruksjon.
- Ventilasjon: Det er påvist mangelfull ventilasjon på ett eller flere rom i boligen.
- Varmtvannstank: Det er påvist at varmtvannstank er over 20 år.
- Elektrisk anlegg: Det foreligger ikke el-tilsynsrapport siste 5 år. Historikk på anlegget er ukjent.
- Fuktsikring og drenering: Det mangler, eller på grunn av alder er det sannsynlig at det mangler, utvendig 
fuktsikring av grunnmuren ved  kjeller/underetasje. Mer enn halvparten av forventet levetid på drenering er 
overskredet.
- Grunnmur og fundamenter: Innsiden av grunnmuren har misfarging. Noe sprekker enkelte steder i 
puss.
- Terrengforhold: Det er påvist dårlig fall eller flatt terreng inn mot grunnmur og dermed muligheter for 
større vannansamlinger.
- Overflater gulv bad: Det er påvist at høydeforskjell fra topp slukrist til gulv/synlig topp membran ved 
dørterskel er mindre enn 25 mm. Det er påvist avvik i fallforhold til sluk i forhold til krav i forskrift på 
byggetidspunktet. Gulv er tilnærmet flatt.
- Sluk, membran og tettesjikt bad: Det foreligger ikke dokumentasjon på oppbygging av baderomsgulv. 
Hvordan dette og membranløsninger er utført er ukjent.
- Ventilasjon bad: Våtrommet mangler tilluftsventilering, f.eks. spalte/ventil ved dør.
- Overflater og innredning toalettrom: Det er ikke påvist tilfredsstillende løsning for å synliggjøre lekkasje 
fra innebygget sisterne. Toalettrom har kun naturlig avtrekk fra rommet, NS 3600 krever mekanisk avtrekk 
for å kunne gi TG 0/1.
For øvrig er det kun mindre avvik med TG 1 og TG 0.