4806922_1a
Boligdrømmen innfris av Riis Bygg AS ! Begge husene er under oppføring og det er mulig å avtale tid for innvendig besiktigelse. ( 1 av )
4806926_1a
Ta kontakt for avtale om innvendig besiktigelse. ( 2 av )
4806924_1a
Såle er støpt ferdig for dobbelgarasje, 42 kvm. ( 3 av )
4806927_1a
( 4 av )
4806930_1a
Boligene ligger i et attraktivt villastrøk på Fjellhamar, stille og rolig - ingen gjennomfartstrafikk tett på. Gangavstand til togstasjonen samt den nye barneskolen + idrettsanlegg. ( 5 av )
4806928_1a
Ta kontakt for avtale om innvendig besiktigelse. ( 6 av )
4806929_1a
God beliggenhet i et rolig og etablert villastrøk. ( 7 av )
4732390_1a
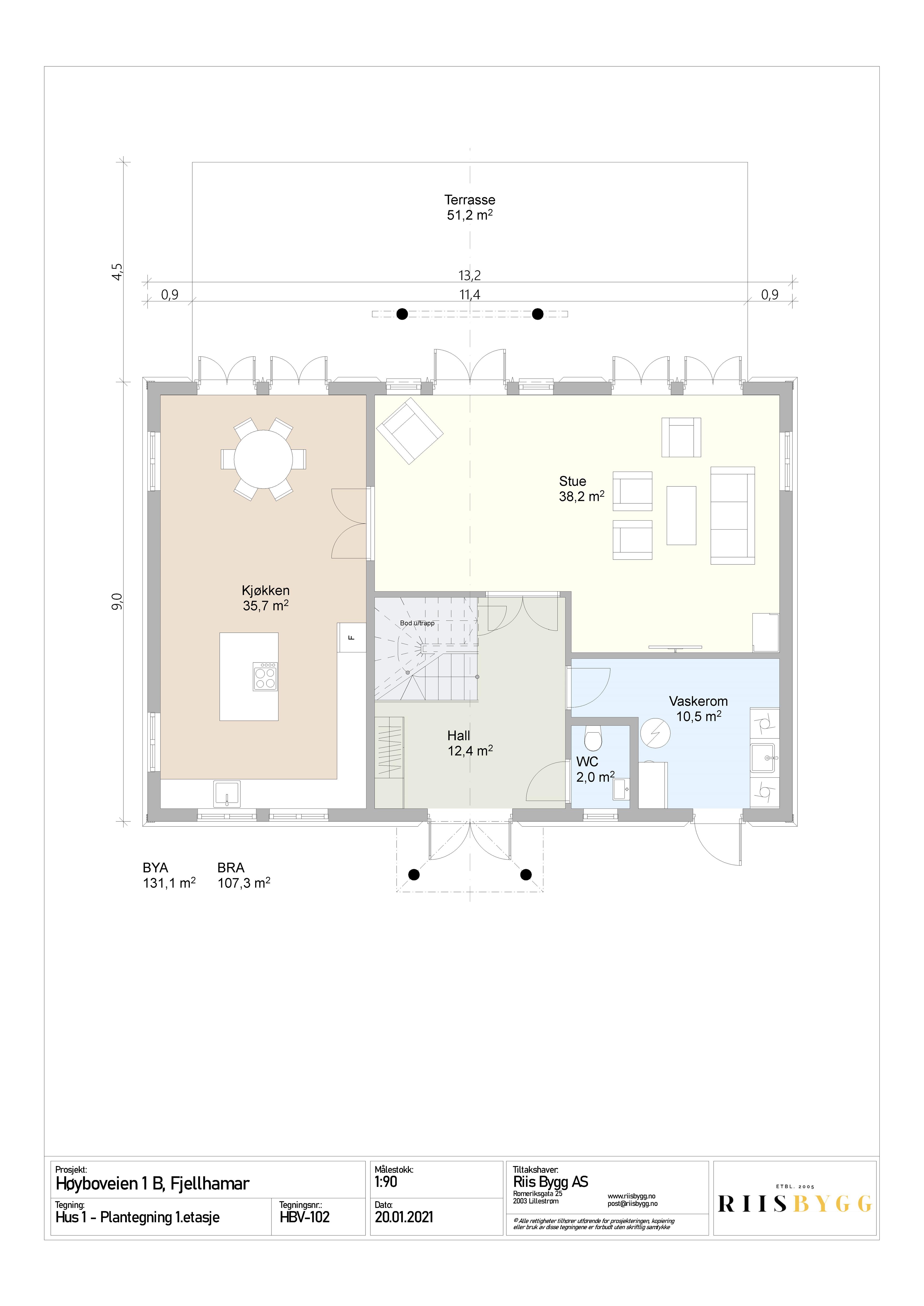
Høyboveien 1B (hus 1 på vedlagte tegninger og i situasjonskartet). Eksklusiv enebolig med god planløsning og flott fasade med store vindusflater. 214 kvm BRA, markterrasse på 51 kvm. ( 8 av )
4732391_1a
Inngangsside på Høyboveien 1B (hus 1). Romslig gårdsplass med mulighet for dobbel garasje (kr. 300.000,-). ( 9 av )
4732395_1a
Plantegning Høyboveien 1B (hus 1). Kan om ønskelig leveres med åpen løsning mellom stue og kjøkken. ( 10 av )
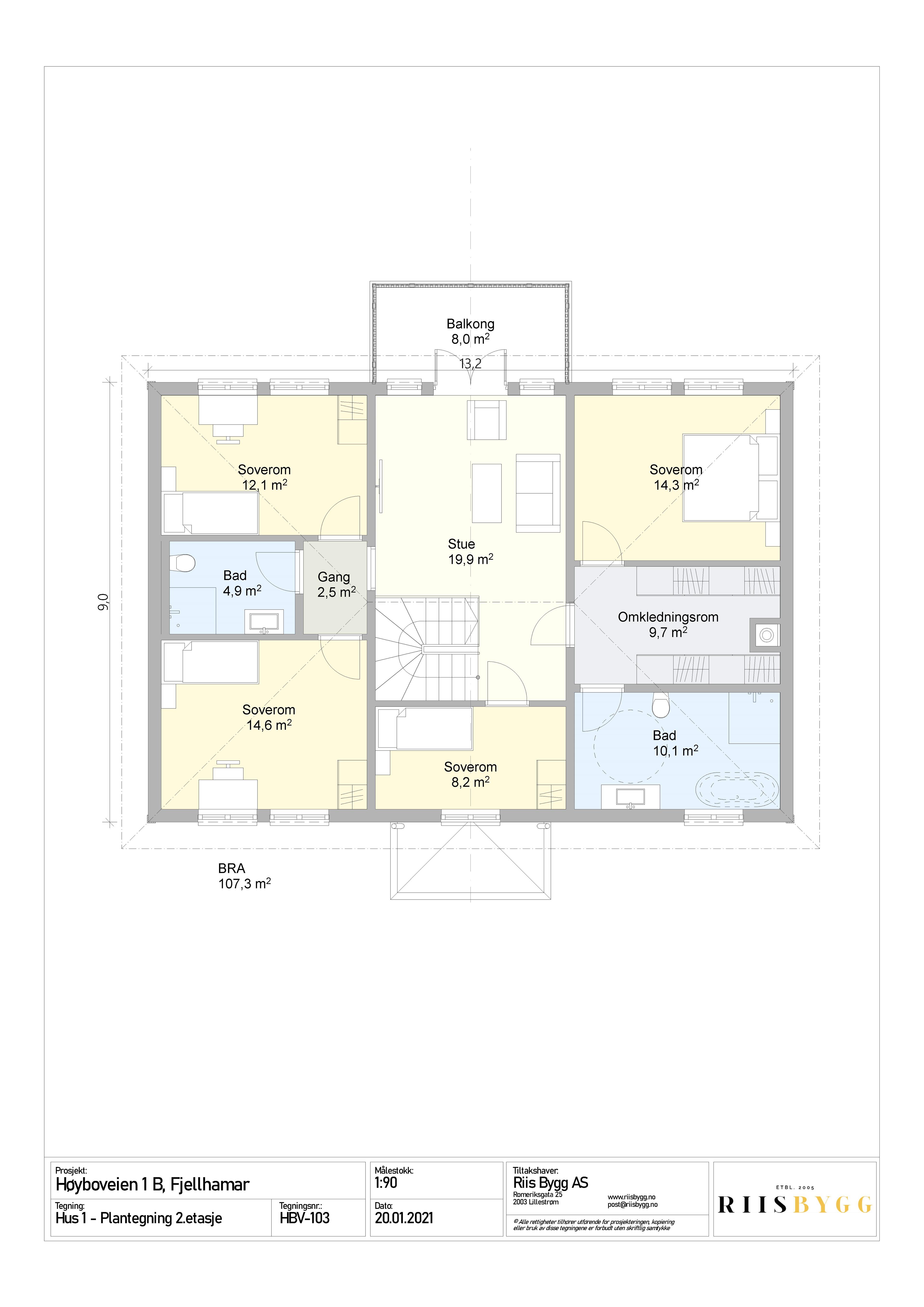
4732396_1a
Høyboveien 1B (hus 1). 2. etg. ( 11 av )
4732392_1a
Høyboveien 1C (hus 2 på vedlagte tegninger og på situasjonskartet). 207 kvm BRA, markterrasse på 84 kvm. ( 12 av )
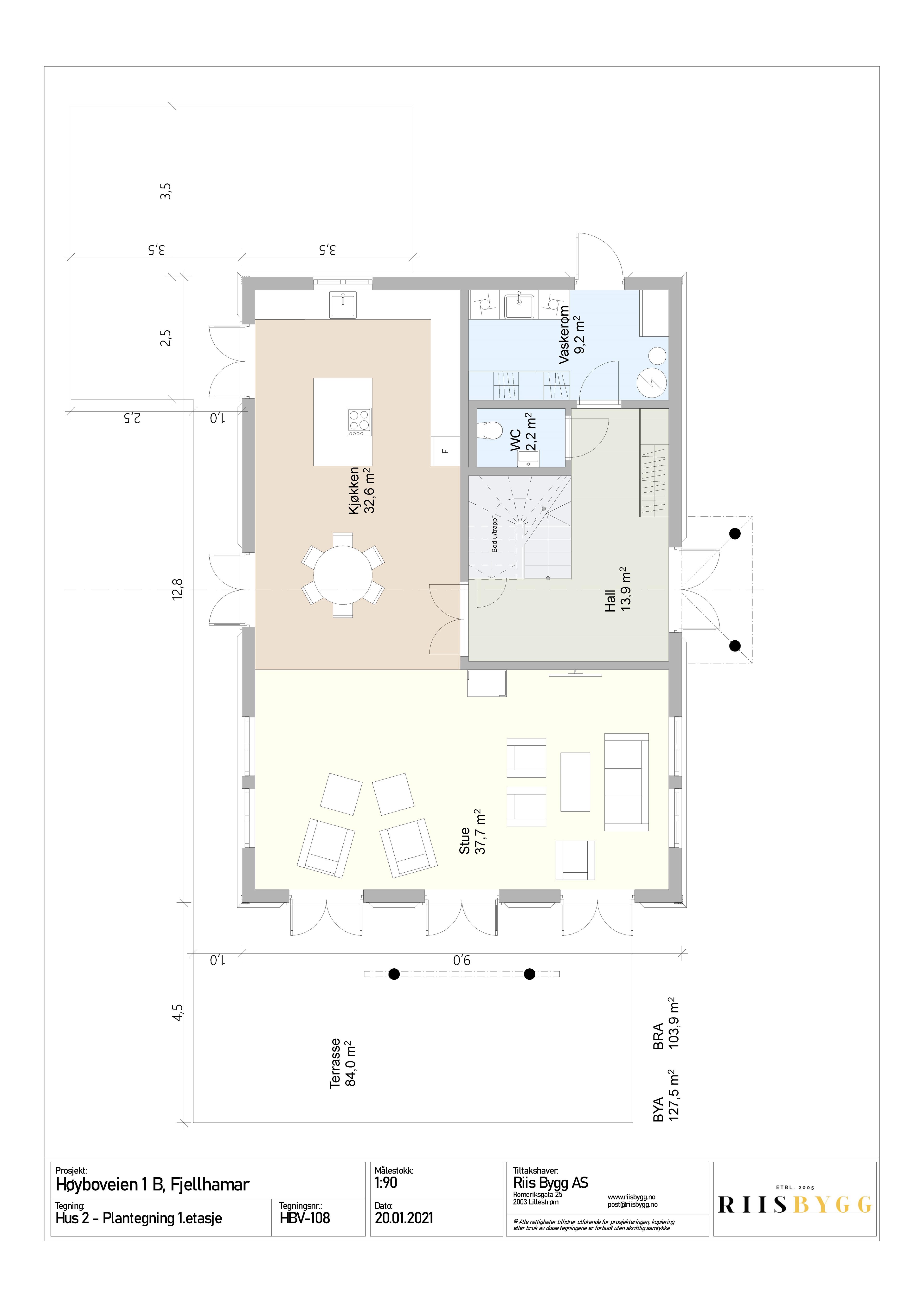
4732393_1a
Høyboveien 1B (hus 2). Romslig gårdsplass med mulighet for dobbelgarasje (kr. 300.000,-). ( 13 av )
4732401_1a
Planløsning Høyboveien 1C (hus 2). ( 14 av )
4732402_1a
Planløsning Høyboveien 1C (hus 2), 2. etg. ( 15 av )
4732394_1a
Situasjonskart Høyboveien 1B og C. ( 16 av )
4732397_1a
Dobbel garasje kan leveres som tilvalg, kr. 300.000,-. ( 17 av )
4732399_1a
Fasader Høyboveien 1B (hus 1). ( 18 av )
4732400_1a
Fasader Høyboveien 1B (hus 1). ( 19 av )
4732405_1a
Fasader Høyboveien 1C (hus 2). ( 20 av )
4732406_1a
Fasader Høyboveien 1C (hus 2). ( 21 av )
4732407_1a
( 22 av )
4733875_1a
Illustrasjonsfoto, velkommen inn ! Merk at det ofte er mulig å få avtalt visning i en bolig fra Riis Bygg AS som allerede er ferdigstillet. ( 23 av )
4733874_1a
Romslig hall med plass for garderobe. Det er varme i alle gulv i inngangsplanet. 260 cm takhøyde. ( 24 av )
4734176_1a
Illustrasjonsbilde. ( 25 av )
4734178_1a
Illustrasjonsbilde. ( 26 av )
4733868_1a
Sep. wc i inngangsplan. ( 27 av )
4734241_1a
Sep. vaskerom med egen utgang i inngangsplanet. ( 28 av )
4733870_1a
( 29 av )
4734179_1a
Begge boligene får store spisekjøkken, god skap og matlagningplass. Leveransen tilpasses kjøpers ønske om design og type kjøkken. ( 30 av )
4734174_1a
Velg fra tre alternative kjøkkenleverandører. ( 31 av )
4734188_1a
Illustrasjonsbilde. ( 32 av )
4734181_1a
( 33 av )
4734214_1a
( 34 av )
4734182_1a
( 35 av )
4734212_1a
( 36 av )
4734190_1a
( 37 av )
4734184_1a
God plass til stort spisebord i overgangen mellom kjøkken og stue. Det kan velges om det er ønskelig med åpen eller lukket løsning. ( 38 av )
4734186_1a
( 39 av )
4734207_1a
( 40 av )
4734199_1a
( 41 av )
4734205_1a
( 42 av )
4734195_1a
( 43 av )
4734203_1a
( 44 av )
4734226_1a
Illustrasjonsbilde fra tidligere ferdigstilte boliger fra utbygger. Ekstra takhøyde og store vindusflater bidrar til et lyst og hyggelig interiør. ( 45 av )
4734217_1a
( 46 av )
4734225_1a
( 47 av )
4734228_1a
( 48 av )
4734224_1a
( 49 av )
4734194_1a
( 50 av )
4733821_1a
( 51 av )
4733857_1a
Illustrasjonsfoto, begge boligene leveres med stor markterrasse. Begge har også balkong i 2. etg. ( 52 av )
4734231_1a
( 53 av )
4734233_1a
Illustrasjonsfoto, stue i 2. etg. ( 54 av )
4734234_1a
Illustrasjonsfoto, stue i 2. etg. ( 55 av )
4734232_1a
Illustrasjonsfoto, stue i 2. etg. ( 56 av )
4733849_1a
( 57 av )
4733871_1a
Begge boliger har 4 soverom, alle plassert i husets 2. etg. Romslig hovedsoverom i masteravdeling med direkte adkomst til walk in closet og romslig bad/wc. ( 58 av )
4733873_1a
( 59 av )
4733858_1a
Illustrasjonsfoto. Romslig baderom i masteravdelingen, kan leveres med badekar som tilvalg. Leveransen tilpasses kjøpers egne ønsker. ( 60 av )
4733862_1a
( 61 av )
4733861_1a
( 62 av )
4734347_1a
( 63 av )
4733865_1a
Bad/wc II i tilknytning til barnerommene. ( 64 av )
4733864_1a
( 65 av )
4733863_1a
( 66 av )
4734346_1a
( 67 av )
4733855_1a
Som tilvalg kan tomten leveres ferdig opparbeidet med plen, hekk/gjerde, stenlagt gårdsplass m.m. ( 68 av )
4733856_1a
Som tilvalg kan tomten leveres ferdig opparbeidet med plen, hekk/gjerde, stenlagt gårdsplass m.m. ( 69 av )
4733872_1a
Begge eiendommer kan leveres med ferdig dobbelgarasje (kr. 300.000,-). ( 70 av )
4765893_1a
( 71 av )
4765896_1a
( 72 av )
4733999_1a
Nye Fjellhamar barneskole sto ferdig i 2023. Skolen har en stor skolegård på ca. 23.000 kvm med blant annet områder til ballspill, klatrestativer, hinderløype og akebakke. ( 73 av )
4733998_1a
Grønlia barnehage ligger en kort trilletur inna. ( 74 av )
4733996_1a
Fjellhamar Torg. ( 75 av )
4733997_1a
Coop Mega på Fjellhamar Torg. ( 76 av )
4733995_1a
Kort vei til både Strømmen og Fjellhamar togstasjon. ( 77 av )
4734003_1a
Strømmen Storsenter med over 200 butikker og tilknyttede virksomheter. ( 78 av )
4734000_1a
Losby Gods - et historisk hotell- og konseransesenter med et av Norges beste golfanlegg. ( 79 av )
4734002_1a
SNØ - verdens råeste helårsarena for snøopplevelser. ( 80 av )
4734001_1a
...perfekte forhold for alpint, langrenn, snowboard og andre vinteraktiviteter året rundt. ( 81 av )
4734305_1a
( 82 av )
4806923_1a
( 83 av )
4823229_1a
Hoyboveien_1b_Juli-1 ( 84 av )
4823230_1a
Hoyboveien_1b_Juli-2 ( 85 av )
4823231_1a
Hoyboveien_1b_Juli-3 ( 86 av )
4823232_1a
Hoyboveien_1b_Juli-4 ( 87 av )
4823233_1a
Hoyboveien_1b_Juli-5 ( 88 av )
4823234_1a
Hoyboveien_1b_Juli-6 ( 89 av )
4823235_1a
Hoyboveien_1b_Juli-7 ( 90 av )
4823236_1a
Hoyboveien_1b_Juli-8 ( 91 av )
4823237_1a
Hoyboveien_1b_Juli-9 ( 92 av )
4823238_1a
Hoyboveien_1b_Juli-10 ( 93 av )
4823239_1a
Hoyboveien_1b_Juli-11 ( 94 av )
4823240_1a
Hoyboveien_1b_Juli-12 ( 95 av )

Høyboveien 1B

Se alle bilder (0)
4806922_1a
4806926_1a
4806924_1a
4806927_1a
4806930_1a
4806928_1a
4806929_1a
4732390_1a
4732391_1a
4732395_1a
4732396_1a
4732392_1a
4732393_1a
4732401_1a
4732402_1a
4732394_1a
4732397_1a
4732399_1a
4732400_1a
4732405_1a
4732406_1a
4732407_1a
4733875_1a
4733874_1a
4734176_1a
4734178_1a
4733868_1a
4734241_1a
4733870_1a
4734179_1a
4734174_1a
4734188_1a
4734181_1a
4734214_1a
4734182_1a
4734212_1a
4734190_1a
4734184_1a
4734186_1a
4734207_1a
4734199_1a
4734205_1a
4734195_1a
4734203_1a
4734226_1a
4734217_1a
4734225_1a
4734228_1a
4734224_1a
4734194_1a
4733821_1a
4733857_1a
4734231_1a
4734233_1a
4734234_1a
4734232_1a
4733849_1a
4733871_1a
4733873_1a
4733858_1a
4733862_1a
4733861_1a
4734347_1a
4733865_1a
4733864_1a
4733863_1a
4734346_1a
4733855_1a
4733856_1a
4733872_1a
4765893_1a
4765896_1a
4733999_1a
4733998_1a
4733996_1a
4733997_1a
4733995_1a
4734003_1a
4734000_1a
4734002_1a
4734001_1a
4734305_1a
4806923_1a
4823229_1a
4823230_1a
4823231_1a
4823232_1a
4823233_1a
4823234_1a
4823235_1a
4823236_1a
4823237_1a
4823238_1a
4823239_1a
4823240_1a

Høyboveien 1B

Prisantydning:
Fra Kr 13250000,00
til Kr 0,00
Totalpris:
Kr 13376350,00
BRA:
207,00 - 214,00
P-rom:
0,00 - 0
Soverom:
4 - 0
Boligtype:
Enebolig
Eierform:
Eiet tomt
Byggeår:
2025
Etasje:
0
Tomteareal:
744

2 eksklusive eneboliger m/god planløsning fra Riis Bygg AS. Attraktiv beliggenhet på Fjellhamar. Ferdigstilles sommer 25

Ansvarlig megler:
Petter André Aure

Eiendomsmegler MNEF / Partner

Visning

Boligen er solgt og er ikke lengre tilgjengelig for visning. 

Høyboveien 1B

image005

Nøkkelinformasjon

plus_G_2025

BELIGGENHET

plus_G
minus_G

BESKRIVELSE AV EIENDOMMEN

plus_G
minus_G

NØKKELINFORMASJON

plus_G
minus_G

OFFENTLIGE FORHOLD

plus_G
minus_G

PRISANTYDNING INKLUDERT OMKOSTNINGER

plus_G
minus_G

ØVRIGE KJØPSFORHOLD

plus_G
minus_G

Dokumenter

plus_G_2025

Del boligen

facebook-gold
Twitter-gold

Lurer du på noe om denne boligen?

Ta kontakt under via skjemaet.


Relaterte boliger

Gamleveien 71A
6490000,00  0,00

Gamleveien 71A

Lørenskog ­ RASTA
Frittliggende enebolig med oppussingsbehov | Stor tomt på 992m², garasje og meget sentral beliggenhet!

Totalpris:

Kr 6671500,00

BRA-i:

135 m²
Haukeveien 3A
11500000,00  0,00

Haukeveien 3A

Lørenskog ­ Rasta
Stor, påkostet familiebolig fra 2020 m/ fantastisk utsikt! Stue & kjøkken på over 80 m² | 5 sov, 3 bad | Dobbelgarasje

Totalpris:

Kr 11800750,00

BRA-i:

215 m²
Oscar Nissens vei 22
7500000,00  0,00

Oscar Nissens vei 22

Lørenskog ­ Fjellhamar
Oppgradert enebolig i blindvei m/garasje, nytt kjøkken 2025 | 3 soverom | Vannbåren varme | U.etg med potensiale

Totalpris:

Kr 7706750,00

BRA-i:

190 m²
Skårerveien 58A
10950000,00  0,00

Skårerveien 58A

Lørenskog ­ LØRENSKOG
Innflyttningsklar familiebolig fra 2025 med balkong, carport og parkeringsplass. 3/4 soverom og to bad + vaskerom.

Totalpris:

Kr 11225100,00

BRA-i:

147 m²
Kantarellveien 73
6500000,00  0,00

Kantarellveien 73

Lørenskog ­ RASTA
Flott familiebolig m/ nydelig utsikt i meget barnevennlige omgivelser | Garasje m/EL | Hage & uteplaser, 4 sov, bad & wc

Totalpris:

Kr 6639377,00

BRA-i:

129 m²
Oscar Wistings vei 5
8700000,00  0,00

Oscar Wistings vei 5

Lørenskog ­ Fjellhamar
Hel tomannsbolig med leieinntekter, 1,6 mål tomt & fantastisk utsikt | Stort potensiale | Like ved tog, skole & marka

Totalpris:

Kr 8935750,00

BRA-i:

159 m²
Ingvald Kristiansens gate 7
5995000,00  0,00

Ingvald Kristiansens gate 7

Lørenskog ­ LØRENSKOG
Nyoppført og attraktiv 4-roms selveier m/garasjeplass & innglasset balkong | Sentralt & moderne i Skårerløkka Premium

Totalpris:

Kr 6158120,00

BRA-i:

78 m²
Vestaveien 45
12900000,00  0,00

Vestaveien 45

Lørenskog ­ Rasta
Påkostet familievilla med nydelig uteområde, innflyttingsklare kvaliteter og 3 garasjer | 4 sov & 3 bad | Rett ved marka

Totalpris:

Kr 13240750,00

BRA-i:

197 m²
Korallsoppveien 25A
6950000,00  0,00

Korallsoppveien 25A

Lørenskog ­ RASTA
Barnevennlig innerst i blindvei ved Østmarka. Halvpart av tomannsbolig. Garasje m/lader. 4 soverom. 2 bad

Totalpris:

Kr 7137000,00

BRA-i:

140 m²
Isak H. Wiiks gate 10
3500000,00  0,00

Isak H. Wiiks gate 10

Lørenskog ­ LØRENSKOG
Perfekt førstegangskjøp! Splitter ny 1-roms m/alkove & fransk balkong | Felles takterrasse & sentral beliggenhet

Totalpris:

Kr 3600750,00

BRA-i:

34 m²
Se flere boliger
Bolig til salgs

Inspirasjon

Inspirerende interiørbilder fra norske hjem.
sov1
Soverom
kjo1
Kjøkken
stue
Stue

Boligartikler

Nyttig informasjon, råd og inspirasjon for deg som er opptatt av bolig.
aaletidligute
Aktuelt

Kapret først drømmeboligen, solgte egen bolig få dager senere

Konseptet vårt, Tidlig ute, legger til rette for et stressfritt boligsalg på kundens premisser. Poenget er å være ute i god tid, slik at prosessen...
vo4
Aktuelt

178 dager uten bud; - Proaktiv solgte boligen min etter første visning

Huset i Vestre Olsvikveg hadde mistet alt av moment etter et halvt år ute i markedet. Da Proaktiv ved Jon Kristian Røsok kom inn i bildet ble...
n_r-16
Aktuelt

Drømmer du om å drive ditt eget meglerkontor?

Proaktiv Eiendomsmegling er alltid på utkikk etter flinke folk som ønsker å skape sin egen suksess. Er du en målrettet og verdiskapende megler, med...