Standard
Lys og fin 2-roms andelsleilighet. Leiligheten holder gjennomgående god standard.
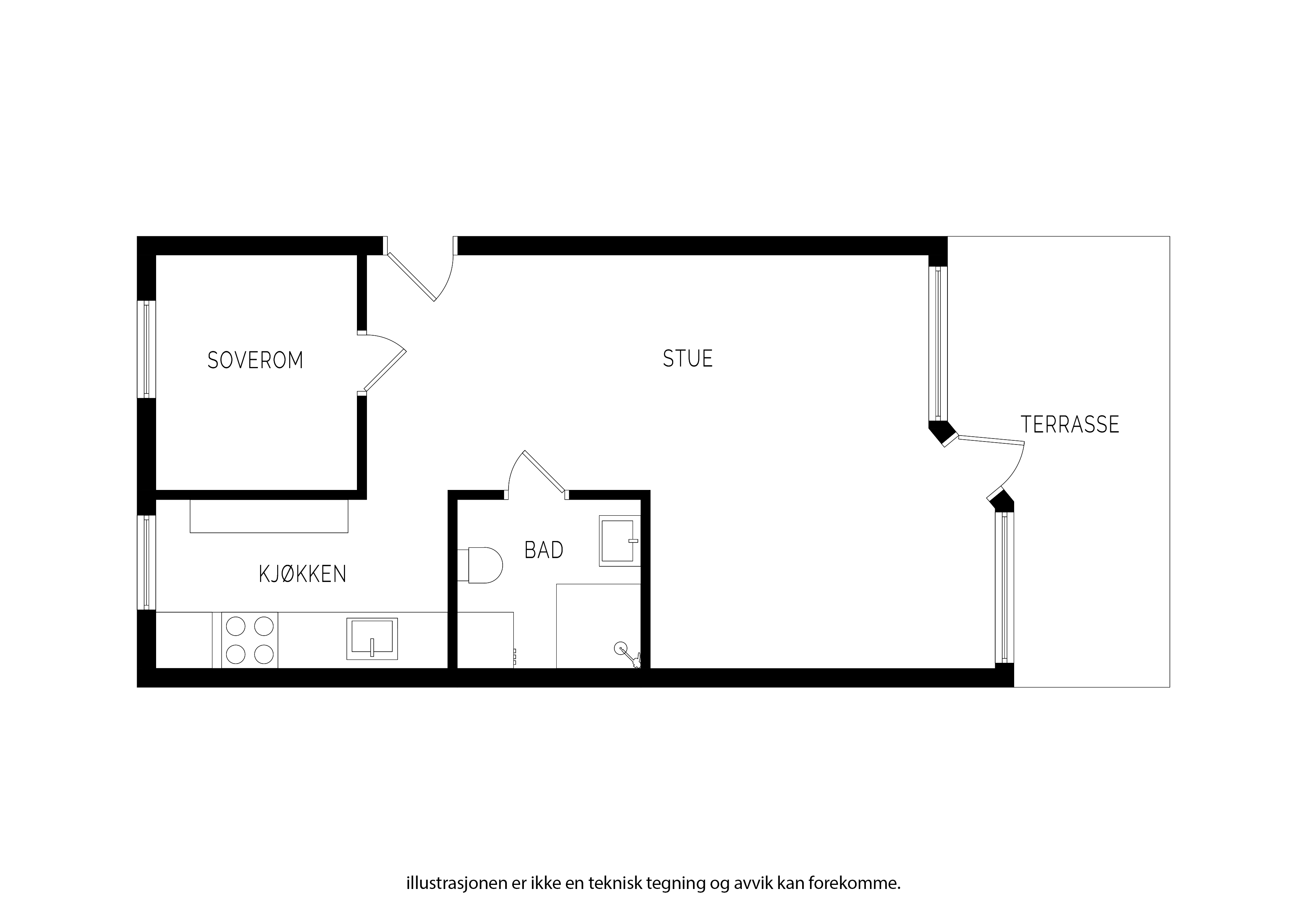
Leiligheten holder en arealeffektiv planløsning.
Fint kjøkken med integrerte hvitevarer. Her er det god skap- og benkeplass, med en liten øy på siden hvor
en kan nyte en god frokost med barstoler.
Badet holder lyse farger på vegg, med mørkere flisere på gulv. Baderommet er innredet med nyere
baderomsservant. Ellers er det dusjsone og toalett.
Kjekk stue med plass til spisegruppe og sittegruppe. Her kan en slappe av en fredagskveld. Fra stuen er
det utgang til balkong, med gode solforhold.
Soverom med enkelt garderobeskap.
Bod i underetasjen og parkering på felles utvendig biloppstillingsplass.
Selger har fått utarbeidet en tilstandsrapport for eiendommen. Rapporten er en teknisk gjennomgang av
boligen og angir eventuelle byggetekniske avvik. I rapporten fremkommer det forhold som takstmannen
mener kjøper må være særskilt oppmerksom på, herunder:
Utvendig
Vinduer,TG2
Bygningen har malte trevinduer med 2-lags glass mot øst.
Vurdering av avvik:
- Det er avvik:
- Bygningsdelen har passert forventet levetid.
Tiltak
- Tiltak:
- Alderen tilsier at vinduene snart må skiftes. Vinduer av denne alder har liten isoleringsevne
sammenlignet med nyere vinduer.
Innvendig
Etasjeskille/gulv mot grunn,TG2
Gulv på betongdekke.
Vurdering av avvik:
- Det er målt høydeforskjell på mellom 15-30 mm gjennom hele rommet. Tilstandsgrad 2 gis med
bakgrunn i standardens krav til godkjente måleavvik.
- Høydeforskjeller på gulv er vurdert med tilfeldige målinger innvendig i hvert rom og ikke totalt pr etasje.
Det kan derfor forekomme skjevheter som ikke er registrert ved måling. Det ble målt 17 mm
høydeforskjell på gulv i stue. Det ble målt 15 mm høydeforskjell på gulv i soverom.
Tiltak
- For å få tilstandsgrad 0 eller 1 må høydeforskjeller rettes opp. Det vil imidlertid sjelden være økonomisk
rasjonelt som et enkeltstående tiltak i en bolig som dette. Dersom boligen en gang skal renoveres, kan
man vurdere slike tiltak.
Våtrom
2.etasje > Bad/vaskerom
Overflater vegger og himling,TG2
Våtromsplater på vegger og malte plater på innvendig tak.
Vurdering av avvik:
- Det er avvik:
- Det er ikke montert sokkellist i underkant av våtromsplater. Det skal være montert sokkellist i underkant
av våtromsplater i våtsoner.
Tiltak
- Tiltak:
- Det er ikke mulig å ettermontere sokkellister. Dette må gjøres i forbindelse med oppussing. Sokkellisten
er viktig for å forhindre at vann trenger inn under platene, spesielt langs kantene. Uten sokkellist kan vann
sive inn under platene, noe som kan føre til fuktskader på underlaget, muggvekst og råte.
2.etasje > Bad/vaskerom
Overflater Gulv,TG2
Gulvet er flislagt. Rommet har elektriske varmekabler. Det er ikke høydeforskjell (fall) mellom topp slukrist
og gulv ved dør. Det er ikke oppkant med membran ved terskel til dør.
Vurdering av avvik:
- Det er påvist at høydeforskjell fra topp slukrist til gulv/synlig topp membran ved dørterskel er mindre enn
25 mm.
- Det er påvist avvik i fallforhold til sluk i forhold til krav i forskrift på byggetidspunktet.
Tiltak
- Et bad med manglende/redusert fall til sluk blir mindre funksjonelt og sikkert for brukeren. Dette kan
medføre stående vann på gulvet, vann som ikke ledes effektivt til sluket, økt risiko for at vann renner ut av
rommet og redusert sklisikkerhet på gulvet.
- Det må foretas utbedring av fallforhold.
- Konsekvens av manglende oppkant ved dør og manglende fall er risiko for lekkasje til tilstøtende rom.
Lekkasje til tilstøtende rom medfører fuktskade.
2.etasje > Bad/vaskerom
Sluk, membran og tettesjikt,TG2
Det er plastsluk og ukjent tettesjikt/membran. Det er synlig mansjett i klemring i sluk.
Vurdering av avvik:
- Mer enn halvparten av forventet brukstid er passert på membranløsningen.
Tiltak
- Det er viktig å merke seg at levetiden til en membran varierer basert på kvalitet, installasjon og bruk.
Eldre membraner kan bli sprø og sprekke opp, noe som fører til at de mister sin vanntettende funksjon.
Dette kan resultere i vannlekkasjer gjennom vegger og gulv og fuktskader.
2.etasje > Bad/vaskerom
Sanitærutstyr og innredning,TG2
Badet har dusjhjørne, seksjon med heldekkende vask, vegghengt toalett og opplegg for vaskemaskin.
Vurdering av avvik:
- Det er ikke påvist tilfredsstillende løsning for å synliggjøre lekkasje fra innebygget sisterne.
Tiltak
- Ved implementering av innebygget sisterne var det ikke krav om lekkasjesikring, konstruksjonen bør
jevnlig observeres.
- Uten dreneringsløsning/lekkasjesikring kan lekkasjer pågå over lang tid uten å bli oppdaget. Dette kan
føre til omfattende fuktskader i omkringliggende byggematerialer.
2.etasje > Bad/vaskerom
Ventilasjon,TG2
Det er elektrisk styrt vifte.
Vurdering av avvik:
- Våtrommet mangler tilluftsventilering, f.eks. spalte/ventil ved dør.
Tiltak
- Det bør etableres tilfredsstillende tilluft til våtrom f.eks. luftespalte ved dør e.l.
Tekniske installasjoner
Vannledninger,TG2
Røropplegget for vann i boligen er med kobberrør og plast. Hovedstoppekran er plassert i benkeskap på
kjøkken. Vannrør er ikke nærmere kontrollert og tilstandsvurdert utover det som er synlig i rommene.
Vurdering av avvik:
- Mer enn halvparten av forventet brukstid er passert på innvendige vannledninger.
Tiltak
- Det er ikke behov for utbedringstiltak siden anlegget fungerer i dag, men ut ifra alder kan skader
plutselig oppstå på eldre anlegg.
Avløpsrør,TG2
Tilgjengelige avløpsrør av plast og støpejern. Avløpsrør er ikke nærmere kontrollert og tilstandsvurdert
utover det som er synlig i rommene.
Vurdering av avvik:
- Mer enn halvparten av forventet brukstid er passert på innvendige avløpsledninger
Tiltak
- Det er ikke behov for utbedringstiltak siden anlegget fungerer i dag, men ut ifra alder kan skader
plutselig oppstå på eldre anlegg.
Ventilasjon,TG2
Boligen har naturlig ventilasjon med ventil i vegg i soverom.
Vurdering av avvik:
- Det er påvist mangelfull ventilasjon på ett eller flere rom i boligen.
Tiltak
- Det bør etableres veggventiler/vindusventiler i alle oppholdsrom som ikke har det.
Elektrisk anlegg,TG2
Sikringsskap med automatsikringer med felles jordfeilbryter.
2.Er alle elektriske arbeider/anlegg i boligen utført av en registrert elektroinstallasjonsvirksomhet?
Ja
Kommentar:
3.Er det elektriske anlegget utført eller er det foretatt tilleggsarbeider på det elektriske anlegget etter
1.1.1999?
Ja
Kommentar:Forrige eier har opplyst om at arbeid med elektrisk anlegg er utført av Aibel Elektro.
5.Foreligger det kontrollrapport fra offentlig myndighet - Det Lokale Eltilsyn (DLE) eller eventuelt andre
tilsvarende kontrollinstanser med avvik som ikke er utbedret eller kontrollen er over 5 år?
Nei
Kommentar:
6.Forekommer det ofte at sikringene løses ut?
Nei
Kommentar:
7.Har det vært brann, branntilløp eller varmgang (for eksempel termiske skader på deksler,
kontaktpunkter eller lignende) i boligens elektriske anlegg?
Nei
Kommentar:
8.Er det tegn til at det har vært termiske skader (tegn på varmgang) på kabler, brytere, downlights,
stikkontakter og elektrisk utstyr? Sjekk samtidig tilstanden på elektrisk tilkobling av varmtvannsbereder,
jamfør eget punkt under varmtvannstank
Nei
Kommentar:
10.Er der synlig defekter på kabler eller er disse ikke tilstrekkelig festet?
Nei
Kommentar:
14.Er det tegn på at kabelinnføringer og hull i inntak og sikringsskap ikke er tette, så langt dette er mulig å
sjekke uten å fjerne kapslinger?
Nei
Kommentar:
15.Finnes det kursfortegnelse, og er den i samsvar med antall sikringer?
Nei
Kommentar:
16.Foreta en helhetsvurdering av det elektriske anlegget, dets alder, allmenne tilstand og fare for liv og
helse. Bør det elektriske anlegget ha en utvidet el-kontroll?
Ja
Kommentar:Det anbefales kontroll av det elektrisk anlegget hvert 5.år. Eier har ingen dokumentasjon på
arbeid med elektrisk anlegg.