Standard
Boligen har normal, men til dels høy standard. Den vurderte boligen fremstår i god stand for alderen.
Utover enkelte vinduer og enkelte baderom, er vurderte bygningsdeler uten større skader. Avvik har i
hovedsak årsak i normal elde, utførelse eller avvik fra referansenivå etter forskrift til avhendingsloven med
henvisning til NS 3600 «Teknisk tilstandsanalyse ved omsetning av bolig».
Det er registrert totalt 6 stk. TG3 og 31 stk. TG 2 i tilstandsrapporten.
Bygningsdel med TG 3 (avvik som krever tiltak):
- Utvendig > Vinduer - 2
Det er registrert flere vinduer med punktert glass. Det er registrert vinduer med store råteskader. Dette
gjelder i
hovedsak ved sirkelformet karnapp, men det er også andre vindu med påbegynt råte. I hovedsak ved
soverom med balkong i 1.etg. Det er også vinduer hvor lukkefunksjonen er defekt. Det er litt lekkasje og
høy fuktmåling i sutaksbord ved takvindu med
jernramme på uinnredet loft. Punktert glass skiftes ut med nytt glass eller hele vinduet skiftes. Det må
påregnes å skifte flere vinduer, spesielt ved sirkelformet karnapp. Takvindu med jernramme skiftes.
Kostnadsestimat: 100 000 - 300 000
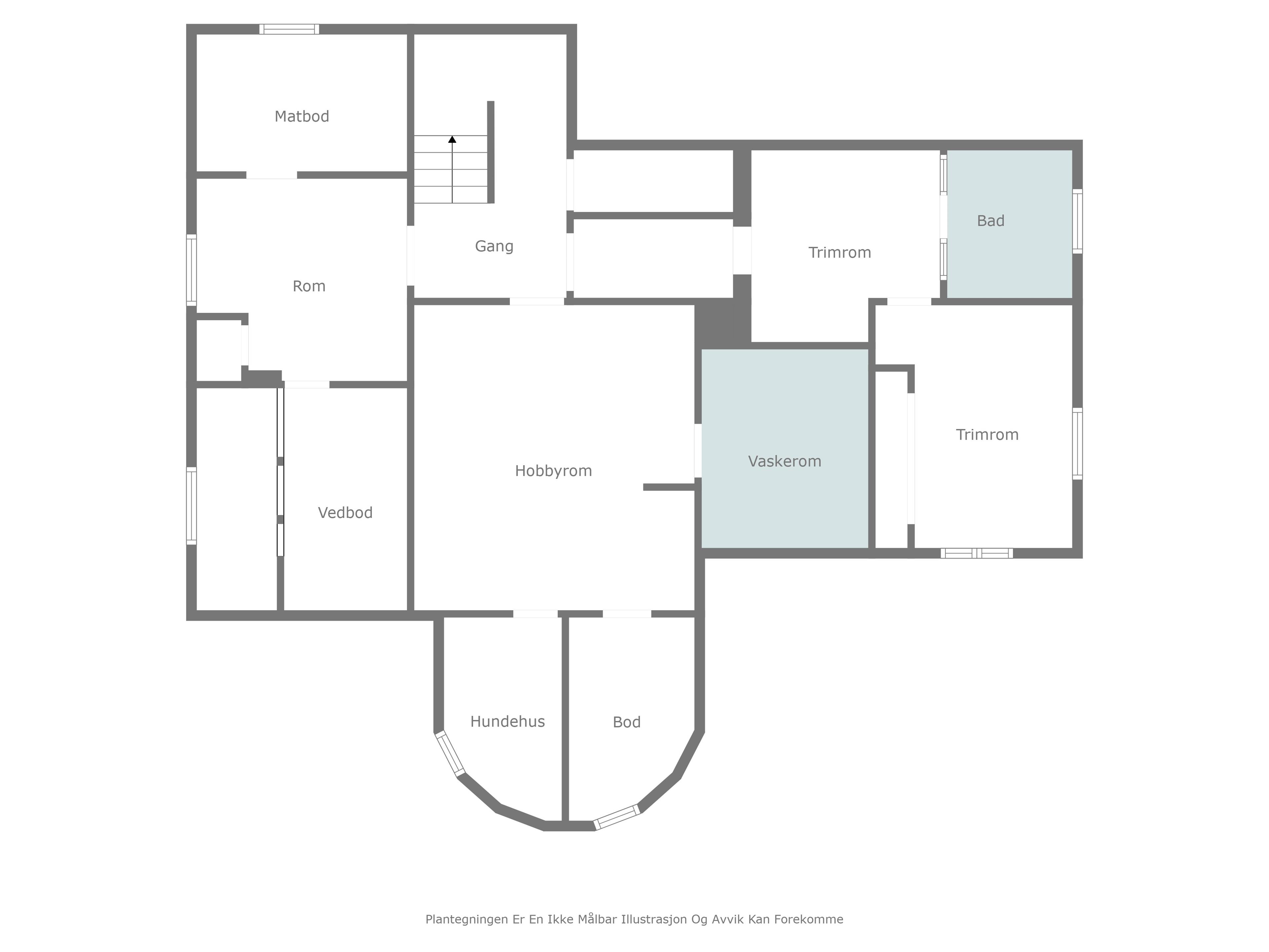
-Våtrom > Kjeller > Vaskerom > Sluk, membran og tettesjikt
Det mangler tettesjikt i sin helhet på gulv og vegger i våtsonen. Manglende tettesjikt i våtsoner
tilfredsstiller ikke dagens krav til
våtrom. Det er en potensiell risiko for at betongen transporterer fukt til tilliggende rom ved mye vannsøl,
men betong/flis i seg selv tar ikke skade av fukt.
Kostnadsestimat: 100 000 - 300 000
-Våtrom > 1. Etasje > Bad 1.etg > Generell
Våtrommet må oppgraderes for å tåle normal bruk etter dagens krav. Rommet er modent for renovering.
Det er opplyst at tettesjikt har funksjonssvikt. Etter at det begynte å renne vann ned i kjelleren ble det satt
inn dusjkabinett. Det er også opplyst at varmekabler er defekt. Det ble også registrert riss i flere fliser.
Kostnadsestimat: 100 000 - 300 000
Våtrom > 1. Etasje > Bad 1.etg > Tilliggende konstruksjoner våtrom
Hulltaking er ikke foretatt da det allerede er påvist andre avvik i våtsonen. Det er opplyst at badet er utett og
det i den forbindelse er satt inn dusjkabinett. Det er fuktmerker i tak og på vegg i kjeller etter lekkasje.
-Våtrom > 2. Etasje > Bad/vaskerom utleiedel > Generell
Våtrommet må oppgraderes for å tåle normal bruk etter dagens krav. Rommet er modent for renovering.
Tettesjikt har funksjonssvikt. Det er sprekker i gulvfliser og en retning ut fra sluk har motfall samtidig som
sluket er avgrenset at tett dusjvegg. Det er mugg/svertesopp på sementbaserte fuger og på elastisk fuge i
dusjen. Servant har gjennomgående sprekk. Det er ikke påvist tilfredsstillende løsning for å synliggjøre
en eventuell lekkasje fra innebygget sisterne.
Kostnadsestimat: 100 000 - 300 000
-Våtrom > 2. Etasje > Bad/vaskerom utleiedel > Tilliggende konstruksjoner våtrom
Det er konstatert kritiske fuktmålinger i konstruksjonen og det er registrert mugg på gipsplate inni vegg.
Det er ellers avdekket svelling i laminatgulv på soverommet ved vegg tilliggende våtrommet, og fuktutslag
ved bruk av fuktindikator. Membran/tettesjikt har
funksjonssvikt. Det er også flere riss og sprekker i fliser som indikerer at underlag har beveget seg.
Rommet må renoveres.
Bygningsdeler med TG 2 (avvik som kan kreve tiltak):
-Utvendig > Taktekking
-Utvendig > Nedløp og beslag
-Utvendig > Utstyr på tak
-Utvendig > Veggkonstruksjon
-Utvendig > Takkonstruksjon/Loft
-Utvendig > Vinduer
-Utvendig > Balkonger, terrasser og rom under balkonger
-Utvendig > Utvendige trapper
-Innvendig > Etasjeskille/gulv mot grunn
-Innvendig > Pipe og ildsted
-Innvendig > Rom Under Terreng
-Innvendig > Innvendige trapper
-Innvendig > Innvendige dører
-Tekniske installasjoner > Vannledninger
-Tekniske installasjoner > Avløpsrør
-Tekniske installasjoner > Elektrisk anlegg
-Tomteforhold > Fuktsikring og drenering
-Våtrom > Kjeller > Bad kjeller > Overflater Gulv
-Våtrom > Kjeller > Bad kjeller > Sluk, membran og tettesjikt
-Våtrom > Kjeller > Bad kjeller > Sanitærutstyr og innredning
-Våtrom > Kjeller > Vaskerom > Ventilasjon
-Våtrom > Kjeller > Vaskerom > Tilliggende konstruksjoner våtrom
-Kjøkken > 1. Etasje > Kjøkken > Overflater og innredning
-Kjøkken > 1. Etasje > Kjøkken > Avtrekk
-Spesialrom > 1. Etasje > Toalettrom > Overflater og konstruksjon
-Kjøkken > 2. Etasje > Kjøkken utleiedel > Overflater og innredning
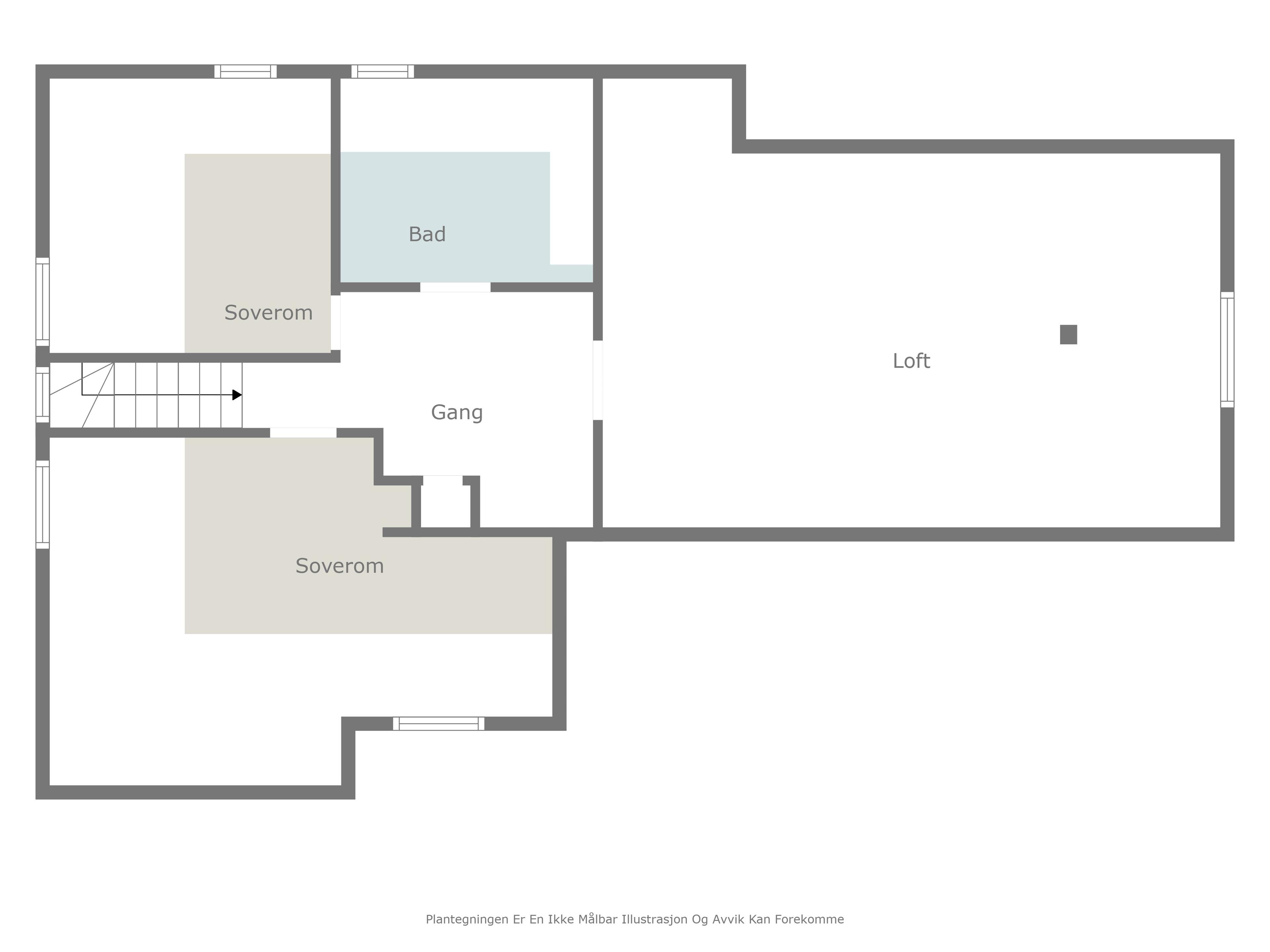
-Våtrom > Loft > Bad loft > Overflater vegger og himling
-Våtrom > Loft > Bad loft > Overflater Gulv
-Våtrom > Loft > Bad loft > Sluk, membran og tettesjikt
-Våtrom > Loft > Bad loft > Sanitærutstyr og innredning
-Våtrom > Loft > Bad loft > Tilliggende konstruksjoner våtrom
Se vedlagt boligsalgsrapport avholdt 26.08.25, hvor ovennevnte opplysninger er hentet fra, for
nærmere teknisk beskrivelse av eiendommen.
UTVENDIG
Taktekking er av teglstein. Boligen har takrennesystem av aluminium på del med takstein fra 2002. Ellers
er det takrenner av plast fra 70-tallet. Yttervegger er murvegger av tegstein som er pusset med Mineralitt
utvendig. Takkonstruksjon er av sperrer av tre.
Boligen har malte trevinduer med hovedsakelig 2-lags glass. Enkelte vindu er med utvendig
aluminiumsbekledning. Det er et nyere vindu på soverom i utleiedel av aluminium med 3-lags glass.
Kjellervinduer er også nyere med 3-lags glass. Det ene takvinduet på uinnredet loftsvindu er av
jernramme med 1-lags glass. Ytterdører/balkongdører er av malt og/eller lakkert tre. Balkongdør
med utgang fra soverom i 1.etg har utvendig aluminiumsbekledning. Terrasse er av trekonstruksjoner
med dekke av terrassebord.
Understøttet balkong er av trekonstruksjoner med dekke av terrassebord opplagt på tilfarere med asfalt
takbelegg under.
Sirkelformet altan er av betong e.l. med avrenning til sluk. Boligen har en utvendig trapp med fliser i trinn
ved inngangsparti,
og en utvendig trapp i trekonstruksjoner opp til terrasse.
INNVENDIG
Overflater utover våtrom som er spesifisert i eget punkt er i grove trekk følgende:
KJELLER
Flis på gulv. Mat murpuss og trepanel på vegger. Trepanel, malte takplater og murpuss i innvendige tak.
1.ETASJE
Heltre parkett, lamellparkett, laminat og flis på gulv. Tapet og finerpanel på vegger. Trepanel og
plankettplater i innvendige tak.
2. ETASJE
Laminat og linoleum på gulv. Flis, trepanel, finerpanel og tapet på vegger. Malte takplater, trepanel og
pappet innvendige tak.
LOFT
Laminat og gulvbord av heltre på gulv. Trepanel på vegger. Trepanel i innvendige tak.
Boligen har støpt gulv mot grunn og etasjeskiller av trebjelkelag. Boligen har 2 teglsteinspiper fra
byggeår. Det er installert vedovn i
stue i utleiedel og stue i egen del samt åpen peis i peisstue. Boligen har en enkel tretrapp ned til kjeller
og opp til loft. mellom
1.etg og 2.etg er det trapp med trinn av heltre eik. Boligen har varierende dører. Hovedsakelig slette dører
og profilerte
fyllingsdører av malt tre.
VÅTROM
Bad kjeller
Rommet har fliser på vegger og trepanel i tak. Rommet har flislagt gulv og elektriske varmekabler.
Rommet har 2 plastsluk og som tettesjikt er det membranplater kombinert med smøremembran.
Rommet har innredning med servant nedfelt i glassplate, speil
innfelt i vegg, vegghengt toalett, dusjvegger/hjørne og boblekar. Rommet har avtrekk via fuktstyrt vifte og
veggventil for tilstrømming
av tilluft.
Vaskerom
Vegger er av malte murflater og noe trepanel. I tak er det trepanel. Rommet har flislagt gulv. Rommet har
plastsluk. Det er ikke etablert tettesjikt i våtsoner. Rommet har innredning med benkeplate og skap. Det
er utslagsvask nedfelt i benkeplate og opplegg/plass for vaskemaskin og kondenstørketrommel.
Rommet har naturlig ventilasjon via veggventil.
Bad 1.etg
Rommet har fliser på vegger og på gulv. Tak har folierte takplate. Det er innredning med nedfelt servant i
benkeskap og veggskap med speil, toalett og dusjkabinett. Rommet har naturlig avtrekk ført over tak.
Bad/vaskerom utleiedel
Rommet har fliser på vegger og malte takplater i tak. Rommet har flislagt gulv og elektriske varmekabler.
Rommet har plastsluk og som tettesjikt er det smøremembran. Rommet har innredning med nedfelt
servant i benkeskap, veggskap, speil, vegghengt toalett, dusjvegger/hjørne og opplegg/plass for
vaskemaskin og kondenstørketrommel. Rommet har elektrisk vifte med periodisk avtrekk og lukkevindu
samt veggventil for tilstrømming av tilluft.
Bad loft
Rommet har fliser på vegger og i tak. Rommet har flislagt gulv og elektriske varmekabler. Rommet har 2
plastsluk og som tettesjikt er det smøremembran. Rommet har innredning med servant nedfelt i
glassplate, speil innfelt i vegg, vegghengt toalett, dusjvegger/hjørne og boblekar. Rommet har elektrisk
vifte med periodisk avtrekk og lukkevindu for tilstrømming av tilluft.
KJØKKEN
Kjøkken 1.etg
Kjøkken har fronter med speilprofil og benkeplate delvis av laminat med nedfelt vask, og delvis av flislagt
membranplate. Det er fliser på vegg mellom benkeplate og veggskap. Kjøkkenet har flislagt gulv med
sluk. Det er i tillegg membran tettesjikt.
Integrerte hvitevarer:
- stekeovn
- microbølgeovn
- koketopp på gass med tilførsel fra dagtank utenfor.
- koketopp
- oppvaskmaskin
I tillegg følger det med et side by side kjøleskap som er tilkoblet vann. Kjøkkenet har avtrekk fra ventilator.
Kjøkken utleiedel
Kjøkken har fronter med speilprofil og benkeplate delvis av laminat med nedfelt vask, og delvis av flislagt
membranplate. Kjøkken har vegger som er helfliset.
Integrerte hvitevarer:
- stekeovn
- koketopp
- microbølgeovn
Kjøkkenet har avtrekk fra ventilator.
SPESIALROM
Toalettrom med parkett på gulv og fliser på vegg, vegghengt toalett og servant. Rommet har mekaniskstyrt
avtrekk med kanalvifte.
TEKNISKE INSTALLASJONER
Vannrør er av kobberrør. Vanninntak med stoppekran er lokalisert i teknisk rom i kjeller. Synlige avløpsrør
er av plast. Det er opplyst at to hovedstammer har avløpsrør av eldre støpejern. Ventilasjonsløsning er
naturlig tilluft via veggventiler og/eller spalteventiler i vindu og periodisk mekaniskstyrt avtrekk fra bad og
kjøkken. Boligen har sentralstøvsiger i alle etasjene i følge eier.
Boligen har installert en 287 liters varmtvannstank.
Boligen har installert en 194 liters varmtvannstank til utleiedel.
Boligen har installert luft til luft varmepumpe i stue i utleiedel.
Boligen har installert en luft til luft varmepumpe i stue i 1.etg.
Boligen har 4 sikringsskap med automatsikringer og er lokalisert i
kjeller, i utleiedel og to 2 på loft.
Boligen er utstyrt med røykvarslere og brannslukningsapparat.
TOMTEFORHOLD
Bygning er oppført på sparesteinsmur hvor sparesteinen er av teglrester istedet for naturstein. Terreng
rundt boligen er opparbeidet med belegningsstein, terrasse og plen.
Utført håndverkstjenester på boligen siste 5 år i følge eier:
2020 - Det er installert varmtvannstank til utleiedel. Det er ikke fremvist faktura.
2022 - Det er montert luft/luft varmepumpe i stue 1.etg. Det er fremvist faktura.
2023 - Det er montert luft/luft varmepumpe i stue i utleiedel. Det er fremvist faktura.