4843235_1a
Velkommen til Grotnesvegen 10, en enebolig i særklasse som bør oppleves. Eiendommen presenteres av Stephan Erichsen v/Proaktiv Eiendomsmegling. ( 1 av )
4802741_1a
( 2 av )
4802740_1a
Når kvelden faller på, er det en helt magisk atmosfære. ( 3 av )
4802738_1a
Fastmontert utebelysning setter stemningen på kveldstid. ( 4 av )
4802739_1a
( 5 av )
4802734_1a
Med eiendommens mange utesoner, har man alle muligheter til å skjerme seg fra vær og vind. ( 6 av )
4802732_1a
( 7 av )
4802735_1a
Gjennomførte og opparbeidet uteområder som gir en rød tråd av kvalitet. ( 8 av )
4802736_1a
( 9 av )
4802731_1a
( 10 av )
4802730_1a
( 11 av )
4796760_1a
Svært pent opparbeidede uteområder, hvor det er lagt vekt på enkelt vedlikehold. ( 12 av )
4796817_1a
Plantegning 1.etg. ( 13 av )
4796790_1a
Lys og innbydende entré, med skyvedørsgarderobe. ( 14 av )
4796801_1a
Videre kommer du inn til en stor luftig stue med vindusflater i flere retninger og en svært god romfølelse. ( 15 av )
4796800_1a
Stuen er lun og god med lekker enstavs eikeparkett på gulv (som ikke har vært slipt før), malte vegger i tidsriktige farger, listefritt mot tak og har spotter. ( 16 av )
4796793_1a
( 17 av )
4796791_1a
I stuen har du plass til flere oppholdssoner. ( 18 av )
4796799_1a
Flott gasspeis i stue som komplementerer rommet som et møbel. ( 19 av )
4796792_1a
God plass til flere alternativer til møblering. ( 20 av )
4796806_1a
Fra stue og kjøkken har du utgang til stor solrik terrasse i atrummet, med markise som kan dekke store deler av terrassen. ( 21 av )
4796785_1a
( 22 av )
4796797_1a
I en sømløs overgang fra stue har du hjerte av hjemme, kjøkkenet. Løsning er perfeksjonert for sosialt sammvær. ( 23 av )
4796798_1a
Kvalitetskjøkken fra Kvikk med svært god skap- og benkeplass. Lyse tidløse fronter og benkeplate i eik. ( 24 av )
4796794_1a
Kjøkkenet er godt utstyrt med kvalitetshvitevarer fra Siemens som stekeovn, dampovn, platetopp, oppvaskmaskin, fryseskap og kjøleskap. ( 25 av )
4796796_1a
Ekstra bred platetopp vender ut mot uteområde og spisebord, som gjør det enkelt å kokkelere mens man underholder gjester. ( 26 av )
4796795_1a
Rikelig med skap- og benkeplass. ( 27 av )
4796783_1a
Flott hovedsoverom med moderne kontrastvegg, praktisk garobeløsning av god størrelse og direkte tilkomst til terrassen i atriumet. Hovedsoverommet er tilknyttet til et eget bad. ( 28 av )
4796784_1a
( 29 av )
4796786_1a
DSCF6600 ( 30 av )
4796787_1a
Lekkert helfliset bad med moderne innredning fra Willroy og Boch, speil med ekstra belysning, ekstra vegghengt skap, vegghengt toalett og dusjhjørne. ( 31 av )
4796788_1a
Varmekabler i gulv og spotter i tak. ( 32 av )
4796789_1a
Praktisk gjestetoalett med tilkomst fra gang. ( 33 av )
4796818_1a
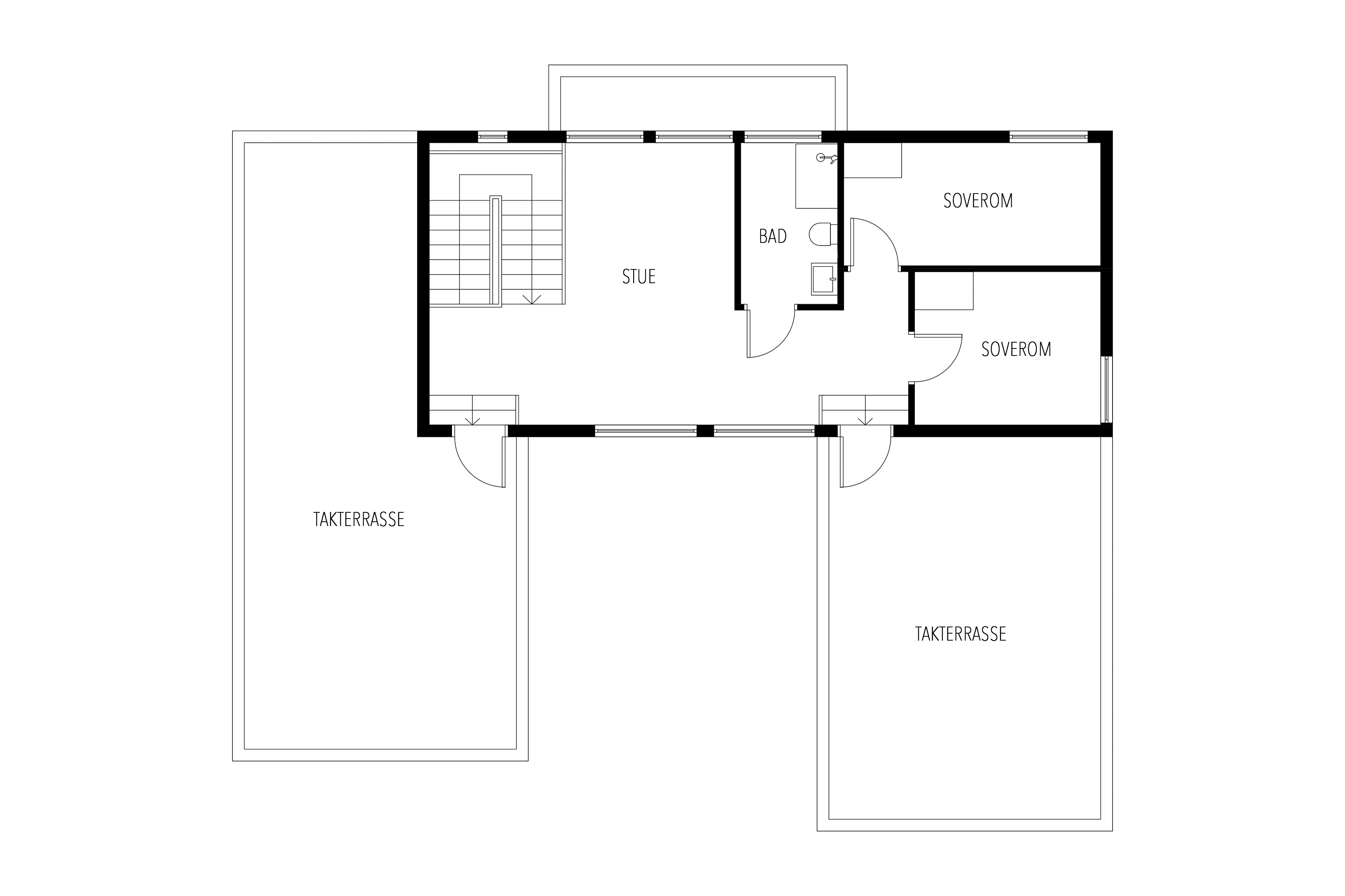
Plantegning 2.etg. ( 34 av )
4796778_1a
En elegant og kvalitetsrik trapp fra Hafrsfjord Eik leder deg videre til 2.etg. Trestavs eikeparkett med unntak av fliser på bad. ( 35 av )
4796777_1a
Lys og luftig stue med mye naturlig daglys fra vindusflater i flere retninger, som bidrar til god romfølelse. God plass til sittegruppe og TV-seksjon. Videre har du plass til arbeidsstasjon i stuen. Det store fine maleriet i trappegangen medfølger. ( 36 av )
4796775_1a
Fra stuen har du utgang til 2 store og solrik takterrasser med flott utsikt. God plass til flere oppholdssoner. ( 37 av )
4796773_1a
( 38 av )
4796776_1a
Med flere solrike uteområder kan du nyte solen fra morgen til kveld, samt flytte deg etter vær og vind. ( 39 av )
4796774_1a
Dette er en eiendom hvor det er lagt like mye fokuse i innemiljø, som utemiljø. ( 40 av )
4796771_1a
Takterrasse nr.2. ( 41 av )
4796770_1a
( 42 av )
4796772_1a
Vakker utsikt fra takterrasse. ( 43 av )
4796779_1a
( 44 av )
4796767_1a
Soverom nr 2. ( 45 av )
4796768_1a
Soverom nr. 3. ( 46 av )
4796769_1a
Fint helfliset bad med moderne innredning, ekstra lagring bak speil, dusjnisje og vegghengt toalett. Varmekabler i gulv og spotter i tak. ( 47 av )
4802859_1a
Plantegning kjeller. ( 48 av )
4796780_1a
En svært gjennomført girlcave som vektlegger kvinnens behov i huset. Rommet har et rosa mykt vegg til vegg teppe og malte vegger i gammelrosa. ( 49 av )
4796781_1a
Her er det enkelt å finne roen med favoritt musikken på, med en lun og avslappende atmosfære. Vegg til veggteppe i "Girl-cave" er ikke limt, og kan fjernes om ønskelig hvor det er eikeparkett under. ( 50 av )
4796782_1a
Gjestetoalett i kjeller, tilhørende hoveddel. ( 51 av )
4802865_1a
Deler av boligen er leid ut stort sett fullt møblert for kr. 20.000,- i måneden. inkl. strøm, TV og internett. ( 52 av )
4802866_1a
God og luftig stue. Plass til TV-krok og spisebord. ( 53 av )
4802860_1a
Varmekabler i gang, baderom og stue-/kjøkken. Møbler og hvitevarer som tilhører selger, medfølger i handelen. ( 54 av )
4802864_1a
Kjøkken med integrerte hvitevarer som kombiskap, stekeovn, platetopp og oppvaskmaskin, som medfølger i handelen. ( 55 av )
4802862_1a
Soverom nr. 4. ( 56 av )
4802861_1a
Soverom nr. 5. ( 57 av )
4802863_1a
Helfliset bad med moderne innredning, toalett og dusjhjørne. Varmekabler i gulv. ( 58 av )
4796804_1a
Videre fra atrium kommer du videre til et særdeles pent opparbeidet uteområde. Uteområdet ble opparbeidet for 4 år siden med dansk strandstein, skifer, skifer på trapp, stort bed for beplanting, som gir en lettstelt hage. ( 59 av )
4796803_1a
Gode lagringsmuigheter under terrasse til hagemøbler og redskaper. ( 60 av )
4796805_1a
Uteområde er både lunt og skjermet med ekstra terrasse. ( 61 av )
4796802_1a
Hagen strekker seg rundt huset og du har totalt 3 terrasser. ( 62 av )
4796759_1a
2 utvendige boder på tilsammen ca. 15 kvm. ( 63 av )
4796809_1a
Nymalt fasade i 2024. ( 64 av )
4796810_1a
Pent steinbelagt gårdsrom med gjennomtenkt løsning og flere bed med flott beplantning. ( 65 av )
4796807_1a
Her er det lagt vekt på et godt utemiljø, som skal være lett å vedlikeholde. ( 66 av )
4796808_1a
Parkering i pent steinbelagt gårdsrom og i carport på ca. 20 kvm. ( 67 av )
4799519_1a
( 68 av )
4796764_1a
( 69 av )
4796765_1a
Nærområde. ( 70 av )
4796766_1a
Nærområde ( 71 av )
4796811_1a
Nærområde ( 72 av )
4796812_1a
Nærområde ( 73 av )
4796813_1a
Nærområde ( 74 av )
4796814_1a
Nærområde ( 75 av )
4796815_1a
Nærområde ( 76 av )
4803250_1a
Nærområde ( 77 av )

Grotnesvegen 10

Se alle bilder (0)
4843235_1a
4802741_1a
4802740_1a
4802738_1a
4802739_1a
4802734_1a
4802732_1a
4802735_1a
4802736_1a
4802731_1a
4802730_1a
4796760_1a
4796817_1a
4796790_1a
4796801_1a
4796800_1a
4796793_1a
4796791_1a
4796799_1a
4796792_1a
4796806_1a
4796785_1a
4796797_1a
4796798_1a
4796794_1a
4796796_1a
4796795_1a
4796783_1a
4796784_1a
4796786_1a
4796787_1a
4796788_1a
4796789_1a
4796818_1a
4796778_1a
4796777_1a
4796775_1a
4796773_1a
4796776_1a
4796774_1a
4796771_1a
4796770_1a
4796772_1a
4796779_1a
4796767_1a
4796768_1a
4796769_1a
4802859_1a
4796780_1a
4796781_1a
4796782_1a
4802865_1a
4802866_1a
4802860_1a
4802864_1a
4802862_1a
4802861_1a
4802863_1a
4796804_1a
4796803_1a
4796805_1a
4796802_1a
4796759_1a
4796809_1a
4796810_1a
4796807_1a
4796808_1a
4799519_1a
4796764_1a
4796765_1a
4796766_1a
4796811_1a
4796812_1a
4796813_1a
4796814_1a
4796815_1a
4803250_1a

Grotnesvegen 10

Prisantydning:
Fra Kr 13750000,00
til Kr 0,00
Totalpris:
Kr 14097000,00
BRA:
297,00 - 0,00
BRA-i:
282 - 0
Soverom:
6 - 0
Boligtype:
Enebolig
Eierform:
Eiet tomt
Byggeår:
2011
Etasje:
0
Tomteareal:
613

Særdeles flott arkitektonisk atriumshus med utleiedel - Flere solrike uteområder, hage, 3 terrasser og 2 takterrasser

Ansvarlig megler:
Stephan Michael Erichsen

Daglig leder / Partner / Eiendomsmegler MNEF

Visning

Boligen er solgt og er ikke lengre tilgjengelig for visning. 

Grotnesvegen 10

image005

Nøkkelinformasjon

plus_G_2025

BELIGGENHET

plus_G
minus_G

BESKRIVELSE AV EIENDOMMEN

plus_G
minus_G

OFFENTLIGE FORHOLD

plus_G
minus_G

PRISANTYDNING INKLUDERT OMKOSTNINGER

plus_G
minus_G

ØVRIGE KJØPSFORHOLD

plus_G
minus_G

Dokumenter

plus_G_2025

Del boligen

facebook-gold
Twitter-gold

Lurer du på noe om denne boligen?

Ta kontakt under via skjemaet.


Relaterte boliger

Kvitlyngvegen 5
5890000,00  0,00

Kvitlyngvegen 5

Sola ­ RÆGE
Innholdsrik familiebolig med god planløsning og solrike uteområder - Parkering i carport og gårdsrom m/elbillader

Totalpris:

Kr 6056500,00

BRA-i:

263 m²
Se flere boliger
Bolig til salgs

Inspirasjon

Inspirerende interiørbilder fra norske hjem.
sov1
Soverom
kjo1
Kjøkken
stue
Stue

Boligartikler

Nyttig informasjon, råd og inspirasjon for deg som er opptatt av bolig.
aaletidligute
Aktuelt

Kapret først drømmeboligen, solgte egen bolig få dager senere

Konseptet vårt, Tidlig ute, legger til rette for et stressfritt boligsalg på kundens premisser. Poenget er å være ute i god tid, slik at prosessen...
vo4
Aktuelt

178 dager uten bud; - Proaktiv solgte boligen min etter første visning

Huset i Vestre Olsvikveg hadde mistet alt av moment etter et halvt år ute i markedet. Da Proaktiv ved Jon Kristian Røsok kom inn i bildet ble...
n_r-16
Aktuelt

Drømmer du om å drive ditt eget meglerkontor?

Proaktiv Eiendomsmegling er alltid på utkikk etter flinke folk som ønsker å skape sin egen suksess. Er du en målrettet og verdiskapende megler, med...