4790054_1a
Stephan Erichsen har gleden av å presenter Prestaskjersveien 60 for salg. ( 1 av )
4790045_1a
Særdeles flott utsikt fra stue og flere rom. ( 2 av )
4790019_1a
( 3 av )
4790035_1a
Ekstra takhøyde i deler av 2.etg. bidrar til en god romfølelse. Lagringsplass på kryploft. ( 4 av )
4790036_1a
Flott kjøkken fra Kvikk med kvalitetshvitevarer. ( 5 av )
4790044_1a
Integrerte hvitevarer som medfølger i handelen. ( 6 av )
4790037_1a
Rikelig med skap- og benkeplass. Planløsningen passer godt til sosiale sammenkomster. ( 7 av )
4790038_1a
( 8 av )
4790039_1a
Plass til stort spisebord ved kjøkken. ( 9 av )
4790041_1a
Kjøkkenet har flere oppholdssoner som gir god plass til ulike alternativer til møblering. ( 10 av )
4790042_1a
Parkett på gulv, malte vegger og listefritt mot tak. Vannbåren fjernvarme i alle gulv i 2.etg. ( 11 av )
4790040_1a
Her er det enkelt å finne roen. ( 12 av )
4790043_1a
( 13 av )
4790046_1a
( 14 av )
4790049_1a
Naboeiendommene er regulert til bolig og det må påregnes videre bebyggelse. Se vedlagt kart i salgsoppgaven. ( 15 av )
4790048_1a
Romslig takterrasse med god plass til flere soner. Takterassen er nordvest vendt. Her har du gode solfrold på dag og kveld. ( 16 av )
4790051_1a
( 17 av )
4790031_1a
Hovedsoverom i en-suite-løsning med plass til dobbeltseng og god garderobeplass i walk-in closet. ( 18 av )
4790030_1a
Moderne og avslappende fargevalg. ( 19 av )
4790050_1a
Sør-vendt balkong hvor morgenkaffe kan nytes og dynene luftes. ( 20 av )
4790033_1a
Pent flislagt bad med moderne innredning. ( 21 av )
4790032_1a
Fliser på gulv og delvis på vegg, vegghengt toalett og dusjnisje. Vannbåren varme i gulv og spotter i tak. ( 22 av )
4790034_1a
Praktisk gjestetoalett. ( 23 av )
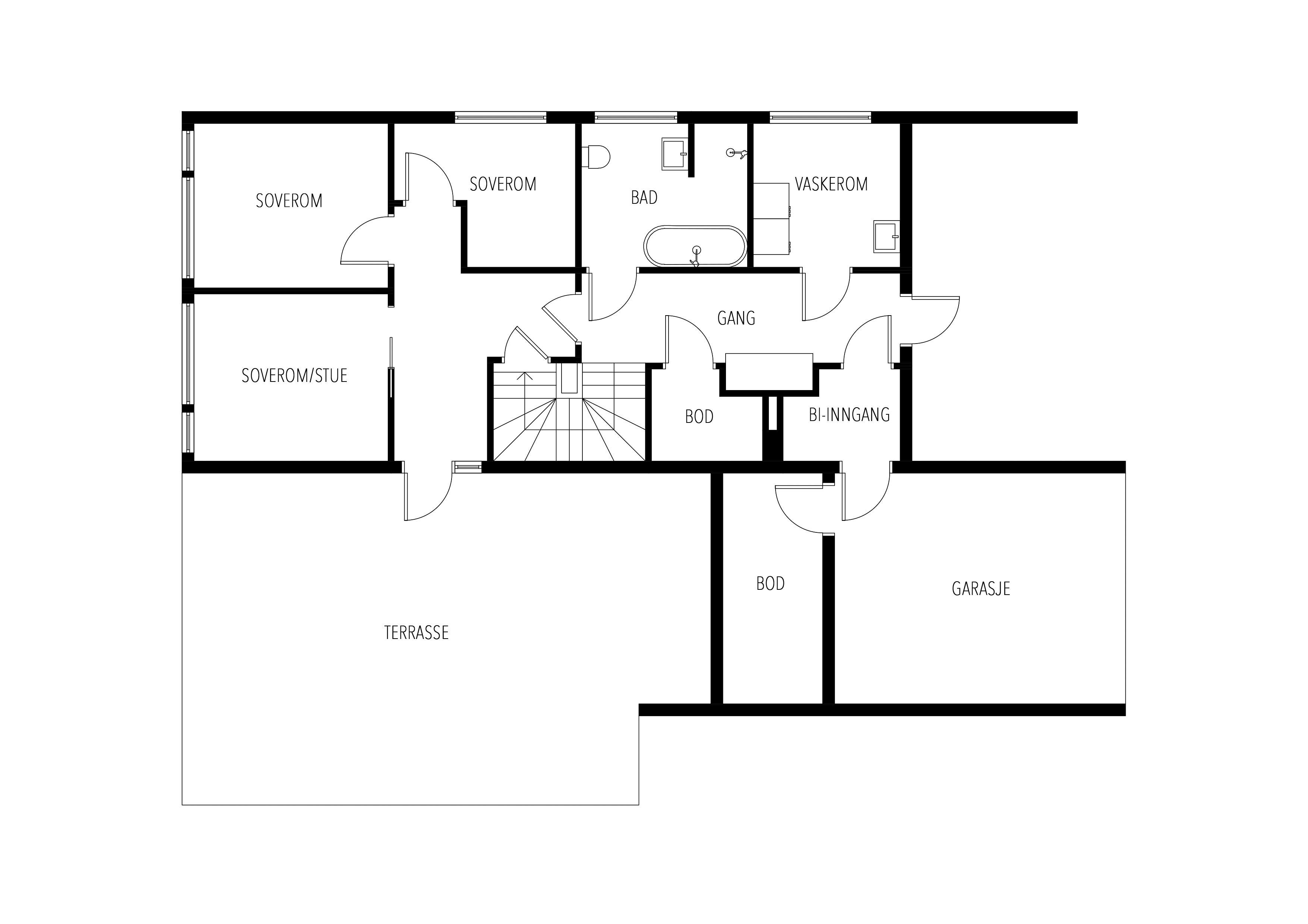
4790070_1a
Plantegning 2.etg. ( 24 av )
4790024_1a
Innbydende entré. Vannbåren varme i gulv i hele 1.etg. med unntak av kott ved trapp. ( 25 av )
4790029_1a
Utgan til stor terrasse fra 1.etg. ( 26 av )
4790058_1a
Deler av terrassen er overbygget hvor man kan sette putekassene og grill, eller montere et utekjøkken. ( 27 av )
4790057_1a
Her har du det meste for å trives i lang tid. ( 28 av )
4790028_1a
Soverom nr. 2. ( 29 av )
4790025_1a
Soverom nr. 3. ( 30 av )
4790026_1a
Soverom nr. 4. ( 31 av )
4790027_1a
( 32 av )
4790022_1a
Svært flott flislagt bad med moderne innredning, vegghengt toalett, badekar og dusjnisje. ( 33 av )
4790023_1a
Perfekt for avslappende dager. Vannbåren fjernvarme i gulv. ( 34 av )
4790020_1a
Praktisk vaskerom av god størrelse med god plass til innredning etter ønske og behov. ( 35 av )
4790021_1a
Bi-inngang fra carport. ( 36 av )
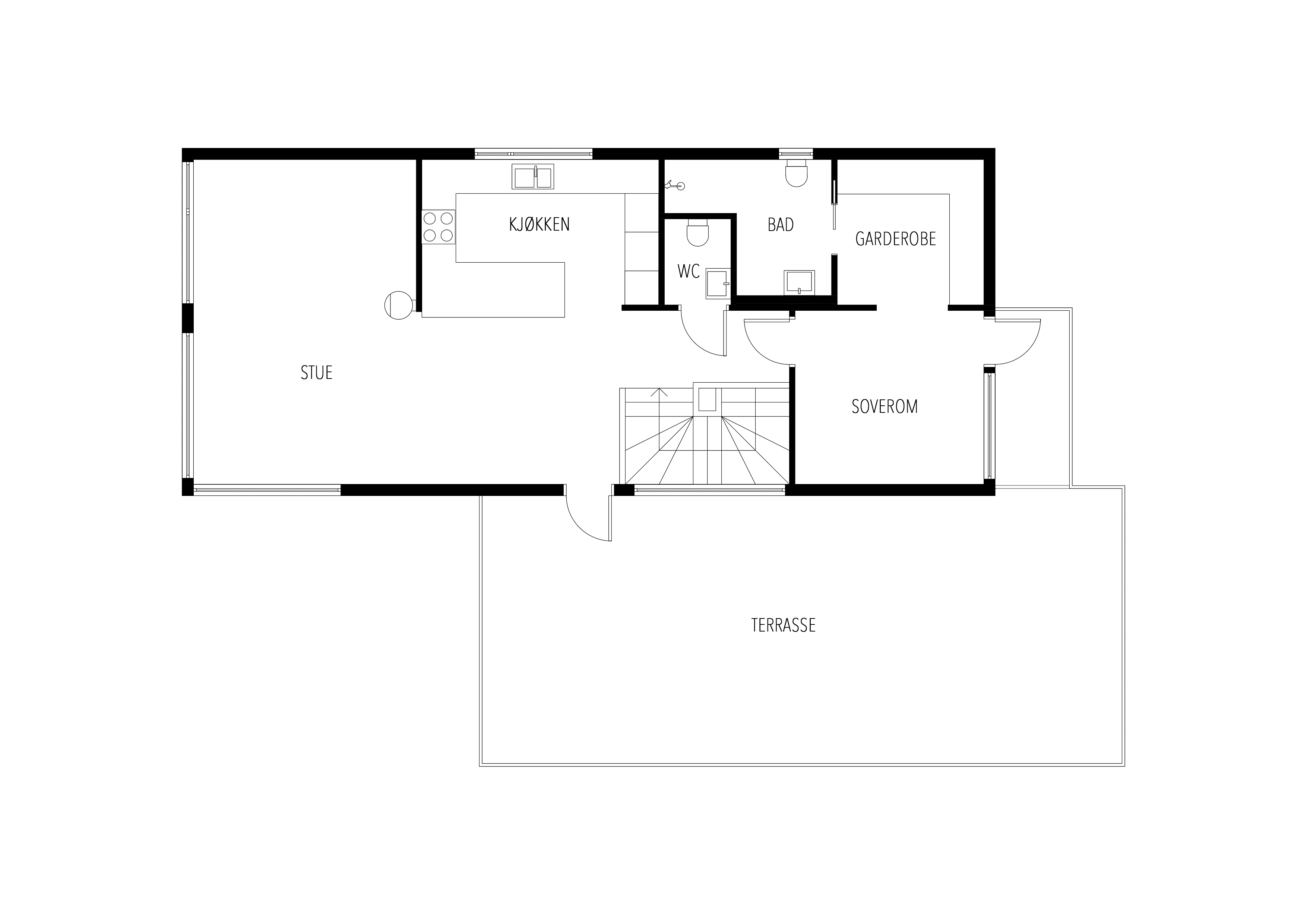
4790069_1a
Plantegning 1.etg. ( 37 av )
4790052_1a
Pent steinbelagt inngangsparti med plass til møbler. ( 38 av )
4790053_1a
Med flere solrike uteområder er det enkelt å flytte seg etter vær og vind, ( 39 av )
4790060_1a
Pent opparbeidet plen som holdes av robotgressklipper. ( 40 av )
4790067_1a
( 41 av )
4790047_1a
Sjøen ligger et steinkast unna. ( 42 av )
4790055_1a
Nærområde. ( 43 av )
4790059_1a
Nærområde. ( 44 av )
4790061_1a
Nærområde ( 45 av )
4790062_1a
Flotte rekreasjonsmuligheter ved sjøen, rett utenfor ytterdøren. ( 46 av )
4790063_1a
Det populære sjøbadet på Jåsund. ( 47 av )
4790064_1a
Sjøbadet er opparbeidet med strand og grillhus, ( 48 av )
4790065_1a
Har kan du spise medbrakt matpakke eller grille pølser. ( 49 av )
4790066_1a
Rikelig med aktivitetstilbud. På Jåsund har matbutikk i nærheten og det er planlagt bygget ny barneskole som er planlagt skal stå ferdig i 2027. ( 50 av )
4790068_1a
Fiskeutsalget ved Hafrsfjord bru kan jeg personlig anbefale som fast kunde. De selger fersk fisk og skalldyr. ( 51 av )

Prestaskjersveien 60

Se alle bilder (0)
4790054_1a
4790045_1a
4790019_1a
4790035_1a
4790036_1a
4790044_1a
4790037_1a
4790038_1a
4790039_1a
4790041_1a
4790042_1a
4790040_1a
4790043_1a
4790046_1a
4790049_1a
4790048_1a
4790051_1a
4790031_1a
4790030_1a
4790050_1a
4790033_1a
4790032_1a
4790034_1a
4790070_1a
4790024_1a
4790029_1a
4790058_1a
4790057_1a
4790028_1a
4790025_1a
4790026_1a
4790027_1a
4790022_1a
4790023_1a
4790020_1a
4790021_1a
4790069_1a
4790052_1a
4790053_1a
4790060_1a
4790067_1a
4790047_1a
4790055_1a
4790059_1a
4790061_1a
4790062_1a
4790063_1a
4790064_1a
4790065_1a
4790066_1a
4790068_1a

Prestaskjersveien 60

Prisantydning:
Fra Kr 6990000,00
til Kr 0,00
Totalpris:
Kr 7210750,00
BRA:
146,00 - 0,00
BRA-i:
140 - 0
Soverom:
4 - 0
Boligtype:
Enebolig
Eierform:
Eiet tomt
Byggeår:
2017
Etasje:
0
Tomteareal:
401

Enebolig med høy standard, optimal planløsning og eksklusive kvaliteter. Herlig utsikt, kjekt uteområde og carport.

Ansvarlig megler:
Stephan Michael Erichsen

Daglig leder / Partner / Eiendomsmegler MNEF

Visning

Boligen er solgt og er ikke lengre tilgjengelig for visning. 

Prestaskjersveien 60

image005

Nøkkelinformasjon

plus_G_2025

BELIGGENHET

plus_G
minus_G

BESKRIVELSE AV EIENDOMMEN

plus_G
minus_G

OFFENTLIGE FORHOLD

plus_G
minus_G

PRISANTYDNING INKLUDERT OMKOSTNINGER

plus_G
minus_G

ØVRIGE KJØPSFORHOLD

plus_G
minus_G

Dokumenter

plus_G_2025

Del boligen

facebook-gold
Twitter-gold

Lurer du på noe om denne boligen?

Ta kontakt under via skjemaet.


Relaterte boliger

Tunbakken 1
7000000,00  0,00

Tunbakken 1

Sola ­ SOLA
Innholdsrikt enderekkehus med høy standard og sentral beliggenhet - Solrikt uteområde - Carport

Totalpris:

Kr 7194250,00

BRA-i:

169 m²
Åsenstubben 4
2990000,00  0,00

Åsenstubben 4

Sola ­ SOLA
Moderne andelsleilighet med god planløsning og bra standard - Solrik balkong - Parkering i lukket anlegg

Totalpris:

Kr 3000250,00

BRA-i:

48 m²
Jåsundbakken 2
3700000,00 - 5990000,00

Jåsundbakken 2

Sola ­ Tananger
Flotte 3-roms leiligheter - Bra standard, god beliggenhet, solrike uteområder og matbutikk i 1.etg - Byggestart vedtatt

Totalpris:

Kr 3700000,00

BRA-i:

54 m²
Se flere boliger
Bolig til salgs

Inspirasjon

Inspirerende interiørbilder fra norske hjem.
sov1
Soverom
kjo1
Kjøkken
stue
Stue

Boligartikler

Nyttig informasjon, råd og inspirasjon for deg som er opptatt av bolig.
aaletidligute
Aktuelt

Kapret først drømmeboligen, solgte egen bolig få dager senere

Konseptet vårt, Tidlig ute, legger til rette for et stressfritt boligsalg på kundens premisser. Poenget er å være ute i god tid, slik at prosessen...
vo4
Aktuelt

178 dager uten bud; - Proaktiv solgte boligen min etter første visning

Huset i Vestre Olsvikveg hadde mistet alt av moment etter et halvt år ute i markedet. Da Proaktiv ved Jon Kristian Røsok kom inn i bildet ble...
n_r-16
Aktuelt

Drømmer du om å drive ditt eget meglerkontor?

Proaktiv Eiendomsmegling er alltid på utkikk etter flinke folk som ønsker å skape sin egen suksess. Er du en målrettet og verdiskapende megler, med...