4862152_1a
Stephan Erichsen v/Proaktiv Eiendomsmegling Sola har gleden av å presentere Tunbakken 9 for salg. ( 1 av )
4862143_2a
Her får du en moderne leilighet med gjennomgående høy standard, smart planløsning og flott uteområde. Beliggende i et ettertraktet område med nærhet til alt du trenger i hverdagen. ( 2 av )
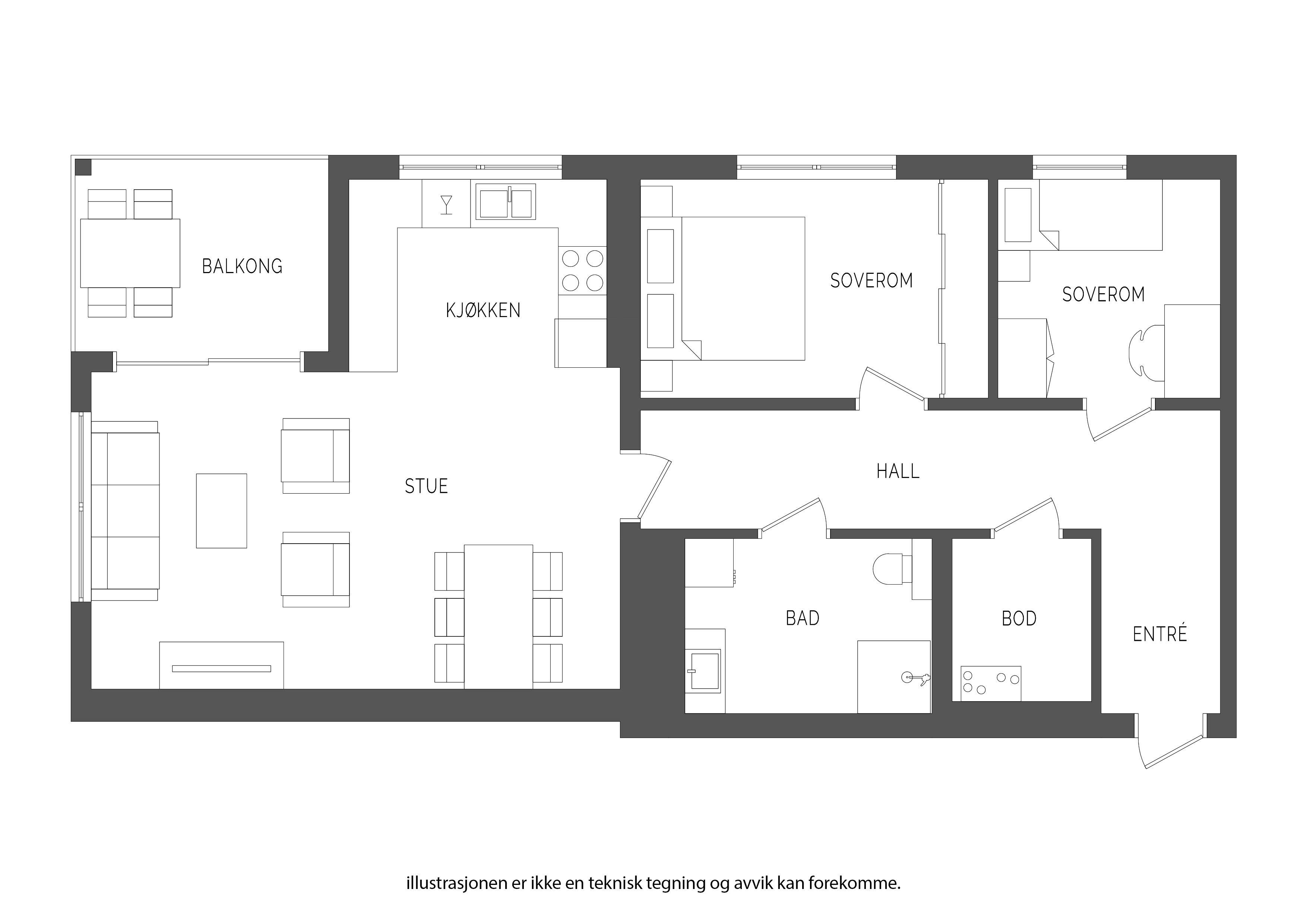
4862179_1a
Plantegning 3. etg. ( 3 av )
4862149_1a
Lys og innbydende entré med god plass til å henge fra seg yttertøy. ( 4 av )
4862169_1a
Pen eikeparkett på gulv og vegger malt i tidsriktig farge. ( 5 av )
4862157_1a
Stuen er romslig med åpen og sosial løsning. Meget god planløsning. ( 6 av )
4862158_1a
Den åpne planløsningen skaper en fin flyt mellom de ulike sonene og gjør allrommet til et naturlig samlingspunkt. Fjernvarme gjennom radiator i stue. ( 7 av )
4862155_1a
Rommet er enkelt å møblere med både sittesone og tv-seksjon. ( 8 av )
4862154_1a
Store vindusflater i flere retninger slipper inn rikelig med naturlig lys, som bidrar til en svært luftig romfølelse. ( 9 av )
4862156_1a
Fra stuen har man tilkomst til solrik balkong på ca. 7 kvm via skyvedør. ( 10 av )
4862171_1a
Balkongen gir en fin romforlengelse når våren kommer. ( 11 av )
4862172_1a
( 12 av )
4862170_1a
Med overbygget balkong får man økt bruksområde. Glassrekkverk bidrar til en fri og åpen følelse. ( 13 av )
4862162_1a
God plass til spisebord av ønsket størrelse mellom stue og kjøkken. ( 14 av )
4862161_1a
Her kan det enkelt dekkes på langbord dersom man skal ha et større selskap. ( 15 av )
4862159_1a
Lekkert kjøkken fra HTH med lyse, slette fronter og rikelig med skap- og benkplass. Godt utstyrt med integrerte hvitevarer som oppvaskmaskin, kombiskap, stekeovn og platetopp. ( 16 av )
4862167_1a
Kjøkkenet er naturlig tilbaketrukket fra stuen, som gir en sømløs oppdeling av sonene. Utsikt og godt med daglys fra kjøkken. ( 17 av )
4862166_1a
Rikelig med arbeidsflater gir godt med plass til matlaging og praktisk kjøkkenbruk. Kjøkkenet har blitt påkostet og holder en høy standard. ( 18 av )
4862168_1a
( 19 av )
4862148_1a
Hovedsoverom av god størrelse med plass til både dobbeltseng og garderobeløsning. ( 20 av )
4862175_1a
Store vindusflater som gir et luftig preg og som vender mot et rolig område. ( 21 av )
4862164_1a
Soverom 2 er også av god størrelse som er en sjeldenhet på 2 soveroms leiligheter. Her har du plass til dobbeltseng, garderobeskap og kontorpult. ( 22 av )
4862153_1a
Varm og behagelig fargepalett på vegg. ( 23 av )
4862176_1a
Delikat, helfliset bad med moderne innredning. ( 24 av )
4862173_1a
Vegghengt toalett, dusjhjørne, godt med lagringsplass under servant og speil med lys. ( 25 av )
4862174_1a
Opplegg for vaskemaskin og tørketrommel. Vannbåren varme i gulv for mer energieffektiv oppvarming. ( 26 av )
4862178_1a
Parkering i lukket anlegg med kort vei til heis. Plassen er helt adskilt som gjør at bilen står trygt. Elbillader montert som medfølger handelen. ( 27 av )
4862140_1a
Zaptec elbillader som er en foretrukket lader blant mange. ( 28 av )
4862141_1a
Pent holdte fellesarealer. ( 29 av )
4862142_1a
Felles sykkelparkering ( 30 av )
4862144_1a
God dekning med gjesteparkering på feltet. ( 31 av )
4862145_1a
Nabolagets flotte fellesareal med lekeplass og golfbane som nærmeste nabo. ( 32 av )
4862136_1a
Kort vei til Sola sentrum sine mange fasiliteter. Her har du det meste du trenger i nærområdet for å trives i lang tid. ( 33 av )
4862137_1a
( 34 av )
4862129_1a
Kort avstand til Sola golfklubb med flotte baner. ( 35 av )
4862130_1a
Nærhet til kjekke aktivitetstilbud. ( 36 av )
4862134_1a
Fotballbane like ved. ( 37 av )
4862133_1a
Sola turnhall. ( 38 av )
4862132_1a
Åsenhallen med flere gode idrettstilbud. ( 39 av )
4862131_1a
Godt utvalg av barnehager og skoler i nærområde. ( 40 av )
4862135_1a
Eiendommen ligger i et attraktivt og familievennlig boligfelt på Skadberg i Sola kommune, i gangavstand fra Sola sentrum. Kort vei til gode bussforbindelser. ( 41 av )
4862139_1a
Joa Jordbær ligger like ved og byr på jordbær i en helt egen særklasse. Disse gir jeg min personlige anbefaling på. ( 42 av )

Tunbakken 9

Se alle bilder (0)
4862152_1a
4862143_2a
4862179_1a
4862149_1a
4862169_1a
4862157_1a
4862158_1a
4862155_1a
4862154_1a
4862156_1a
4862171_1a
4862172_1a
4862170_1a
4862162_1a
4862161_1a
4862159_1a
4862167_1a
4862166_1a
4862168_1a
4862148_1a
4862175_1a
4862164_1a
4862153_1a
4862176_1a
4862173_1a
4862174_1a
4862178_1a
4862140_1a
4862141_1a
4862142_1a
4862144_1a
4862145_1a
4862136_1a
4862137_1a
4862129_1a
4862130_1a
4862134_1a
4862133_1a
4862132_1a
4862131_1a
4862135_1a
4862139_1a

Tunbakken 9

Prisantydning:
Fra Kr 4250000,00
til Kr 0,00
Totalpris:
Kr 4386750,00
BRA:
90,00 - 0,00
BRA-i:
85 - 0
Soverom:
2 - 0
Boligtype:
Leilighet
Eierform:
Fellestomt
Byggeår:
2019
Etasje:
0
Tomteareal:
760

Nyere 3-roms hjørneleilighet med høy standard i ettertraktet boligområde - Solrik balkong - Parkering m/elbillader

Ansvarlig megler:
Stephan Michael Erichsen

Daglig leder / Partner / Eiendomsmegler MNEF

Visning

Boligen er solgt og er ikke lengre tilgjengelig for visning. 

Tunbakken 9

image005

Nøkkelinformasjon

plus_G_2025

BELIGGENHET

plus_G
minus_G

BESKRIVELSE AV EIENDOMMEN

plus_G
minus_G

OFFENTLIGE FORHOLD

plus_G
minus_G

PRISANTYDNING INKLUDERT OMKOSTNINGER

plus_G
minus_G

SAMEIET/ØKONOMI

plus_G
minus_G

ØVRIGE KJØPSFORHOLD

plus_G
minus_G

Dokumenter

plus_G_2025

Del boligen

facebook-gold
Twitter-gold

Lurer du på noe om denne boligen?

Ta kontakt under via skjemaet.


Relaterte boliger

Tunbakken 1
7000000,00  0,00

Tunbakken 1

Sola ­ SOLA
Innholdsrikt enderekkehus med høy standard og sentral beliggenhet - Solrikt uteområde - Carport

Totalpris:

Kr 7194250,00

BRA-i:

169 m²
Åsenstubben 4
2990000,00  0,00

Åsenstubben 4

Sola ­ SOLA
Moderne andelsleilighet med god planløsning og bra standard - Solrik balkong - Parkering i lukket anlegg

Totalpris:

Kr 3000250,00

BRA-i:

48 m²
Jåsundbakken 2
3700000,00 - 5990000,00

Jåsundbakken 2

Sola ­ Tananger
Flotte 3-roms leiligheter - Bra standard, god beliggenhet, solrike uteområder og matbutikk i 1.etg - Byggestart vedtatt

Totalpris:

Kr 3700000,00

BRA-i:

54 m²
Se flere boliger
Bolig til salgs

Inspirasjon

Inspirerende interiørbilder fra norske hjem.
sov1
Soverom
kjo1
Kjøkken
stue
Stue

Boligartikler

Nyttig informasjon, råd og inspirasjon for deg som er opptatt av bolig.
aaletidligute
Aktuelt

Kapret først drømmeboligen, solgte egen bolig få dager senere

Konseptet vårt, Tidlig ute, legger til rette for et stressfritt boligsalg på kundens premisser. Poenget er å være ute i god tid, slik at prosessen...
vo4
Aktuelt

178 dager uten bud; - Proaktiv solgte boligen min etter første visning

Huset i Vestre Olsvikveg hadde mistet alt av moment etter et halvt år ute i markedet. Da Proaktiv ved Jon Kristian Røsok kom inn i bildet ble...
n_r-16
Aktuelt

Drømmer du om å drive ditt eget meglerkontor?

Proaktiv Eiendomsmegling er alltid på utkikk etter flinke folk som ønsker å skape sin egen suksess. Er du en målrettet og verdiskapende megler, med...