Byggemåte
Utdrag fra tilstandsrapporten fra takstmann:
Enebolig oppført i 1843.
Bygget er oppført med grunnmur av lødd stein og betongblokker.
Trekonstruksjoner i yttervegger over grunnmur/etasjeskille, som utvendig er kledd med kledning i tre.
Etasjeskiller i tre.
Takformen er saltak i trekonstruksjon.
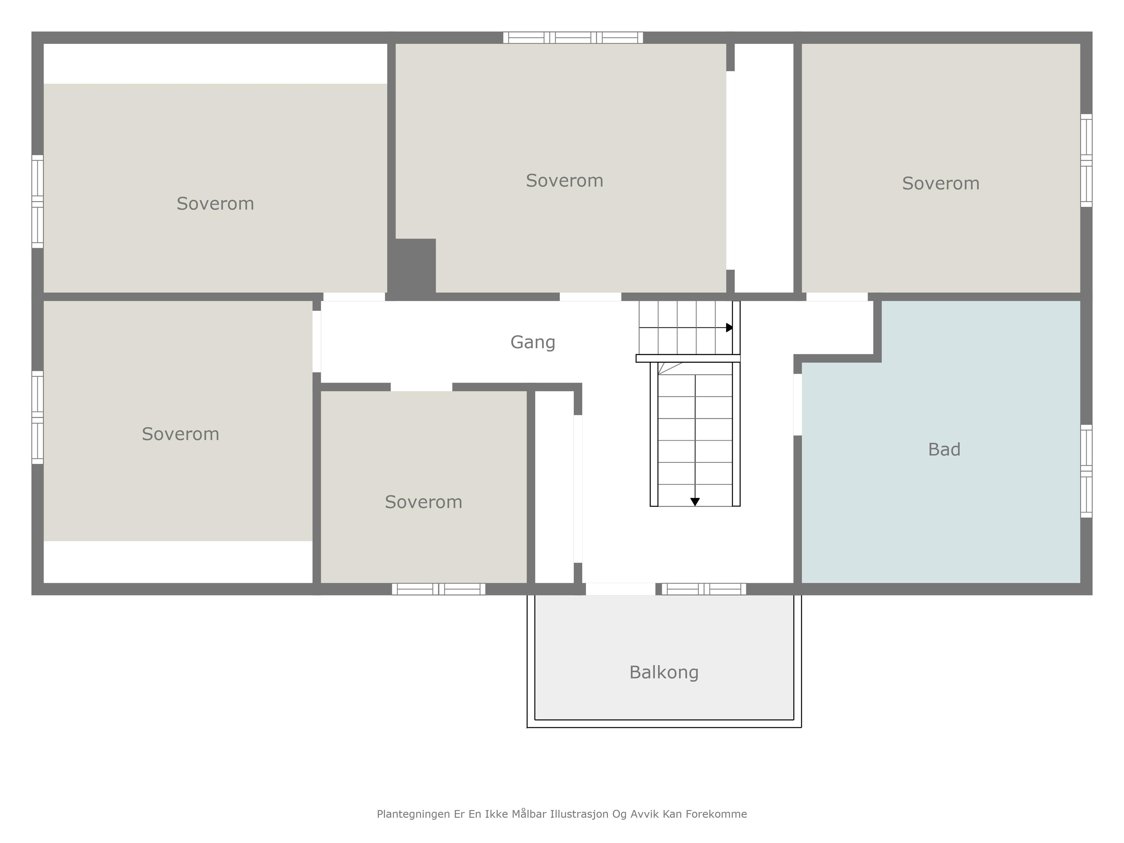
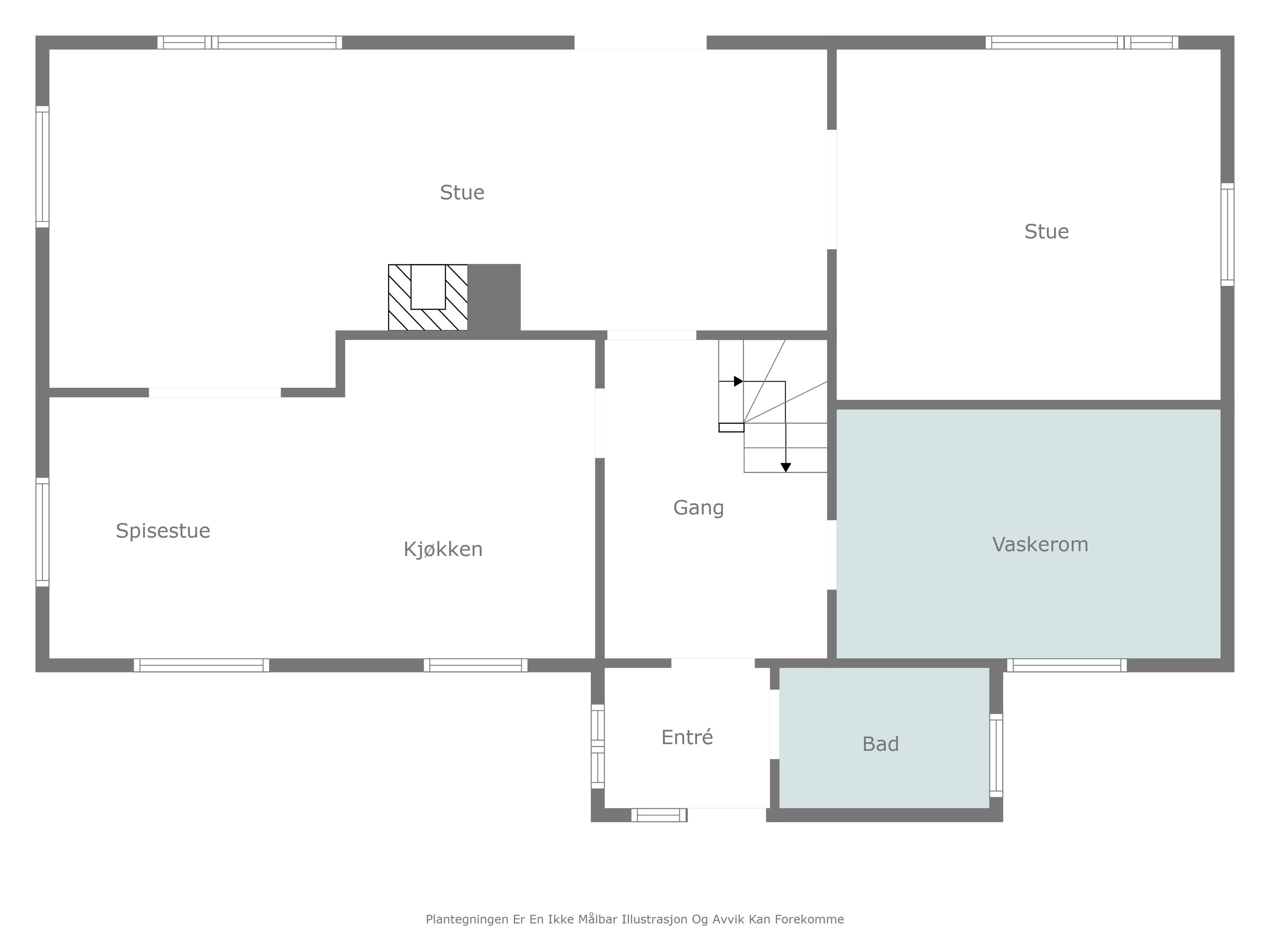
Boligen har 1 kjøkken, 2 stuer, 3 våtrom, 5 soverom og flere boder.
Boligen er normalt vedlikeholdt og finnes i forventet stand.
Registrerte tilstandsanmerkninger har årsak i bygningens alder, vedlikehold samt konstruksjon.
Enkelte tilstandsgrader er gitt kun ut fra alder og hva som er forventet teknisk levetid på bygningsdelene i
denne del av landet.
Tomten er opparbeidet med innkjørsel, parkeringsplasser, hage, uteområder og garasje. Det er
parkering på egen tomt.
Boligen er oppvarmet via peis, strøm og varmepumpe. For nærmere informasjon om boligen, se
rapporten i sin helhet.
Det er gitt 11 stk. TG-3, 1 stk. TG IU og 21 stk. TG-2 i rapporten.
Bygningsdeler med TG-3, Store eller alvorlige avvik.
Utvendig > Vinduer - 2
Vurdering av avvik:
Vinduene har råteskader. Punktet gjelder vindu hovedsoverom samt soverom 4 og 5. Dette gjelder også
vaskeromsvinduet.
Konsekvens/tiltak:
Vinduer med råteskader må erstattes med nye.
Kostnadsestimat: 10 000 - 50 000
Utvendig > Dører - 2
Vurdering av avvik:
Det er råteskade i døren.
Konsekvens/tiltak:
Døren kan forventes byttet innen få år.
Kostnadsestimat: 10 000 - 50 000
Utvendig > Utvendige trapper
Vurdering av avvik:
Det er ikke montert rekkverk. Trappen har ikke sluk, kun et hull i bunnen som går ut i grunnen.
Konsekvens/tiltak:
Rekkverk må monteres for å lukke avviket. Det anbefales at det etableres et sluk, som kobles til
drens/ledes vekk fra boligen, slik at man unngår fukttrykk mot grunnmur og kjeller. Estimatet baserer seg
på montering av rekkverk.
Kostnadsestimat: Under 10 000
Innvendig > Etasjeskille/gulv mot grunn
Vurdering av avvik:
Målt høydeforskjell på over 30 mm gjennom hele rommet. Tilstandsgrad 3 gis med bakgrunn i
standardens krav til godkjente måleavvik.
Konsekvens/tiltak:
For å få tilstandsgrad 0 eller 1 må høydeforskjeller rettes opp. Det vil imidlertid sjelden være økonomisk
rasjonelt som et enkeltstående tiltak i en bolig som dette. Dersom boligen en gang skal renoveres, kan
man vurdere slike tiltak.
Kostnadsestimat: 10 000 - 50 000
Innvendig > Pipe og ildsted
Vurdering av avvik:
Pipevanger er ikke synlige. Mer enn halvparten av forventet brukstid er passert på pipe. Pipen er kledd inn
på kjøkkenet, og det er etablert kjøkken på den siden som pipen er kledd inn på. Pipen er kledd inn på 2
sider i 2. etasje, samt halvdelen på de 2 synlige.
Konsekvens/tiltak:
Pipevanger må gjøres tilgjengelig. Det bør foretas nærmere undersøkelser av pipeløp. Pipevanger må
gjøres tilgjengelig slik at pipen kan holdes under oppsyn for og se utvikling av sprekker og riss i pipen.
Pipen anbefales undersøkt av murer for å sjekke om det er behov for tiltak.
Kostnadsestimat: 10 000 - 50 000
Innvendig > Rom Under Terreng
Vurdering av avvik:
Det er synlig fukt på gulvet. Det er registrert 20-23 vekt% i treverket opp under taket, som tyder på høy
fuktighet i kjelleren.
Konsekvens/tiltak:
Se punkt om drenering, da dette henger sammen med grovkjelleren. Det anbefales at det fuktsikres mot
grunnen i kjelleren, slik at man får ned fuktnivåene her - som igjen fører til bedre miljø for
treverket/bjelkelaget.
Kostnadsestimat: 10 000 - 50 000
Tekniske installasjoner > Ventilasjon
Vurdering av avvik:
Ingen ventilering utover åpning av vindu.
Konsekvens/tiltak:
Det bør ettermonteres veggventiler i alle oppholdsrom, slik at rommene får god og jevn ventilering.
Kostnadsestimat: Under 10 000
Tomteforhold > Fuktsikring og drenering
Vurdering av avvik:
Det mangler, eller på grunn av alder er det sannsynlig at det mangler, utvendig fuktsikring av grunnmuren
ved kjeller/underetasje. Det er synlig fukt innvendig i kjelleren.
Konsekvens/tiltak:
Overvåk tilstanden jevnlig. For å få tilstandsgrad 0 eller 1 må dreneringen skiftes ut, men tidspunktet for
når dette er nødvendig er vanskelig å si noe om. Bruken av underetg/kjeller vil og være avgjørende.
Høyt fuktnivå i påforet vegg av grunnmur og saltutslag på synlig grunnmur er en indikasjon på
manglende/sviktet drenering. Tiltak som redrenering kan ikke utelukkes.
Kostnadsestimat: 50 000 - 100 000
Tomteforhold > Terrengforhold
Vurdering av avvik:
Det er påvist dårlig fall eller flatt terreng inn mot grunnmur og dermed muligheter for større
vannansamlinger. Terrenget faller inn mot bygningen og det er maksimale forhold for vann inn mot
muren. Det er fall inn mot grunnmuren, fra inngangspartiet og bort til hushjørnet.
Konsekvens/tiltak:
Det bør foretas terrengjusteringer. Fallforholdene bør vurderes utbedret. Anbefalt fall på terreng er 1:50, 3
meter ut fra fra grunnmur for å redusere fuktbelastningen i grunnmur/kjeller. Dette anbefales gjennomført
samtidig som en eventuell drenering av boligen.
Kostnadsestimat: 10 000 - 50 000
Våtrom > 1. etasje > Vaskerom > Overflater Gulv
Vurdering av avvik:
Det er mulighet for at det kan forekomme vannlekkasje på våtrommet hvor vann ikke vil gå til sluk. Det er
påvist at noen fliser har bom (hulrom under). Målinger viser at det ikke er fall til sluk (motfall).
Det er 1,5-2 cm motfall fra sluk og mot døren. Det er bom i flere flis.
Konsekvens/tiltak:
For å lukke avviket må korrekt fallforhold etableres. Dette er ikke økonomisk forsvarlig før rommet
renoveres. For å sikre seg mot lekkasjer, kan det etableres en waterguard ved døren frem til fallet fikses.
Flis med bom (hulrom under) er sårbar ved f. eks. om gjenstander faller ned på flis - den kan sprekke.
Det er ikke behov for tiltak om man er klar over risiko.
Kostnadsestimat: 50 000 - 100 000
Våtrom > 2. etasje > Bad > Overflater Gulv
Vurdering av avvik:
Det er mulighet for at det kan forekomme vannlekkasje på våtrommet hvor vann ikke vil gå til sluk. Det er
påvist at noen fliser har bom (hulrom under). Målinger viser at det ikke er fall til sluk (motfall).
Badet har det laveste punktet ved døren - hele gulvet har fall hit. Området er 0,6-1 cm lavere enn området
rundt dusjkabinettet. Det er bom i flere flis. Det er ujevn flislegging på gulvet - flisene har sprang.
Konsekvens/tiltak
For å lukke avviket må korrekt fallforhold etableres. Dette er ikke økonomisk forsvarlig før rommet
renoveres. Flis med bom (hulrom under) er sårbar ved f. eks. om gjenstander faller ned på flis - den kan
sprekke. Det er ikke behov for tiltak om man er klar over risiko.
Kostnadsestimat: 50 000 - 100 000
Bygningsdeler med TG-2, Avvik som kan kreve tiltak:
Utvendig > Nedløp og beslag
Utvendig > Takkonstruksjon/Loft
Utvendig > Terrasse
Utvendig > Balkonger, terrasser og rom under balkonger
Innvendig > Radon
Innvendig > Innvendige trapper
Innvendig > Innvendige dører
Tekniske installasjoner > Avløpsrør - 2
Tekniske installasjoner > Ventilasjon - 2
Tekniske installasjoner > Varmesentral
Tekniske installasjoner > Elektrisk anlegg
Tomteforhold > Grunnmur og fundamenter
Våtrom > 1. etasje > Bad > Overflater vegger og himling - 2
Våtrom > 1. etasje > Bad > Overflater Gulv
Våtrom > 1. etasje > Bad > Sluk, membran og tettesjikt
Våtrom > 1. etasje > Bad > Ventilasjon
Våtrom > 1. etasje > Vaskerom > Sluk, membran og tettesjikt
Våtrom > 1. etasje > Vaskerom > Ventilasjon
Kjøkken > 1. etasje > Kjøkken > Overflater og innredning
Våtrom > 2. etasje > Bad > Sluk, membran og tettesjikt
Våtrom > 2. etasje > Bad > Ventilasjon
Bygningsdeler med TG IU, Konstruksjoner som ikke er undersøkt:
Tomteforhold > Utvendige vann- og avløpsledninger
Det er ukjent type vann- og avløpsledninger. Disse er av ukjent alder, og er derfor ikke vurdert.
Se vedlagt tilstandsrapport avholdt 28.08.25, hvor ovennevnte opplysninger er hentet fra, for
nærmere teknisk beskrivelse av eiendommen.