Beliggenhet
Proaktiv Eiendomsmegling ønsker deg velkommen til denne lyse og tiltalende 2-roms leiligheten midt i
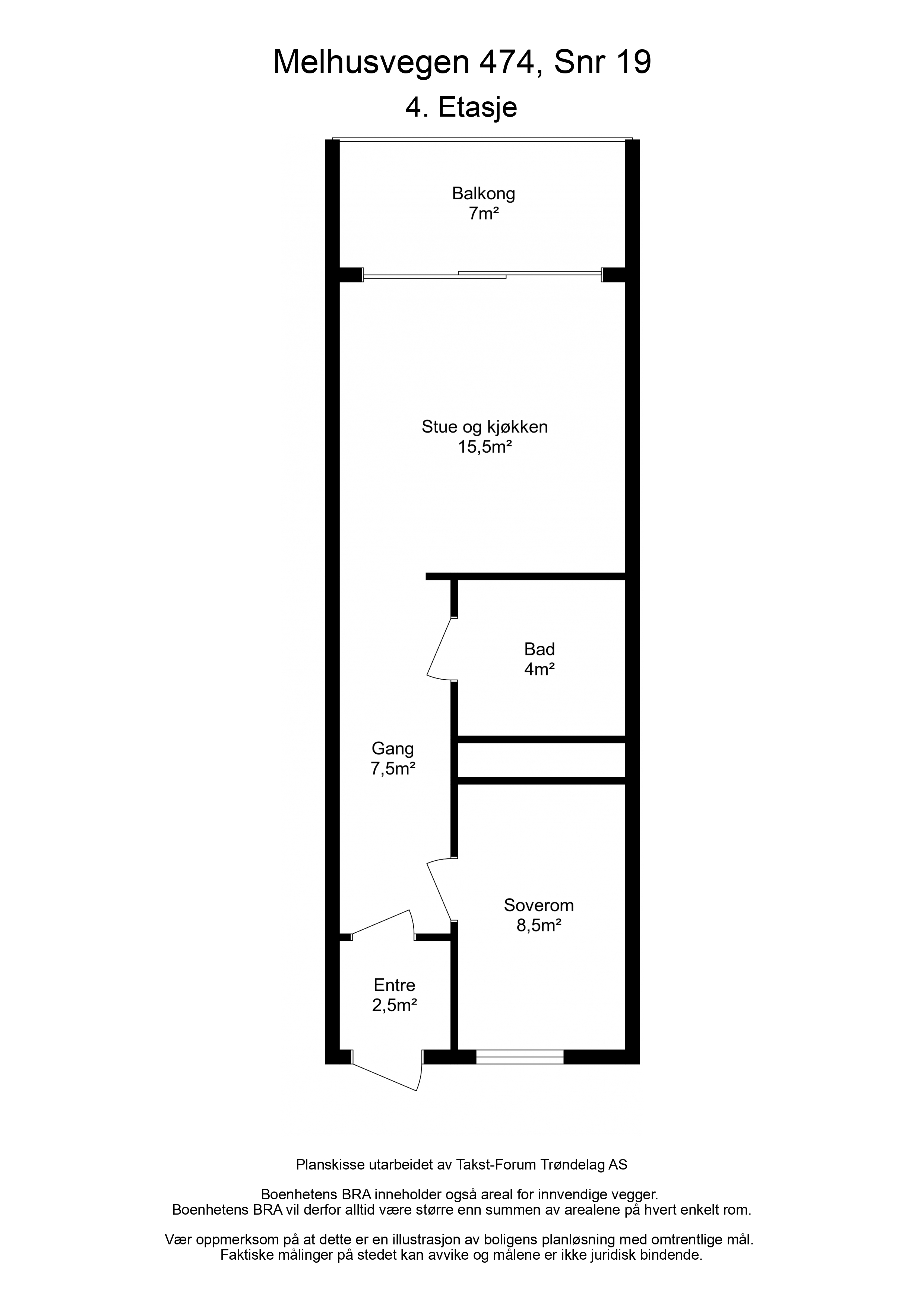
Melhus sentrum. Leiligheten befinner seg i 4. etasje og her kan man flytte rett inn uten å tenke på
oppussing. Leiligheten ble ferdigstilt i 2023. Leiligheten inneholder soverom, bad og åpen stue
kjøkkenløsning. Utgang til flott vestvendt balkong.
Sameiet Melhustorget 1 ligger midt i sentrum og har lett tilgang til flere servicefasiliteter. Sameiet er den
del av kjøpesenteret Melhustorget, et kjøpesenter med flere utsalgssteder. I tillegg planlegges en helt ny
sportsbar i Melhus. Melhustorget kjøpesenter åpnet i April 2024 og ligger i sentrum av Melhus. Et utvidet
og moderne senter med matopplevelser, butikker og sosiale møteplasser. Her finner man større
kjedebutikker og mindre, lokale forhandlere. Her har du bl.a. Rema 1000, Apotek, jernvarehandel, butikker
innen kosmetikk og klær, kaféer, restauranter og vinmonopol. I sentrum finner man i tillegg tannklinikk,
flere restauranter, Coop Extra, legesenter, bank, treningssenter, bibliotek og kino.
Om en skulle ønske et enda større utvalg tar det ti minutter med bil til Tillerflata som bugner av
shoppingmuligheter i flere kjøpesentre.
For den som er glad i idrett, natur og friluftsliv er Melhus et perfekt sted å bosette seg. Kommunen har et
bredt utvalg av aktiviteter i form av idrettslag, motorferdsel, idrett- og svømmehaller, aktivitetspark og
skøytebaner.
I Melhus kommune har man ubegrenset tilgang på turer i vakre omgivelser i skog og mark.
Idrettslagene tilrettelegger for mange aktiviteter for store og små, som både er sosialt og bidrar til aktivitet
i hverdagen. Melhus IL som største idrettslag i Melhus tilbyr bl.a. fotball, allidrett, basket, håndball,
innebandy, orientering, ski, styrkeløft, svømming og volleyball.
På vinterstid er veien kort til Trondheimsregionens største alpinanlegg, Vassfjellet skisenter. I tillegg til at
det flere steder i Melhus blir preparert skøytebaner på frivillig basis. Det finner man bl.a. på Varmbu,
Kosekroken barnehage, Brekkåsgata og Hølonda utebane. Trives man best i preparerte langrennsløyper
har man flere valgmuligheter i alle himmelretninger. De fineste maskinpreparerte løypene finner man i
starten av Bellsåsen og rundt Djupsjøen, Dullum rundt Gråskarven og Vassfjellet.
Det er bussforbindelse mot Trondheim sentrum og omegn. Direktebuss (71-bussen) tar en til Trondheim
sentrum, det samme gjør turbussen (340/440). For mer informasjon om rutetider, besøk www.atb.no.
Videre har man togstasjon i ved Melhus skysstasjon.
Se vedlagte nabolagsprofil i prospektet for ytterligere informasjon om nærområdet.