4844881_1a
Proaktiv eiendomsmegling har gleden av å presenterer denne flotte familieboligen på selveid tomt på Tanem! ( 1 av )
4844887_1a
Tomten er på 574 kvm og er pent opparbeidet. ( 2 av )
4844880_1a
Eneboligen ligger i innerst del av boligfeltet i en blindgate uten gjennomgangstrafikk. ( 3 av )
4844885_1a
Det er rikelig med biloppstillingsplasser på eiendommen og garasje på 21,5 kvm. ( 4 av )
4844883_1a
Sagtunet velforening besørger vedlikehold av vei, lekeplasser og snørydding i området. ( 5 av )
4844884_1a
Eiendommen byr på en for det meste flat plen på boligens bakside, som innbyr til ballspill, lek og moro. ( 6 av )
4844886_1a
Her finner man også snekkerbod og markterrasser foran levegg mot øst. ( 7 av )
4844882_1a
Deler av vestveggen på boligen er tilbygd med vinterhage. ( 8 av )
4844900_1a
Vinterhagen er av sjenerøs størrelse og måler drøyt 18 kvm. ( 9 av )
4844899_1a
Herfra kan man ta seg inn til stua via verandadør eller ut på verandaen. Velkommen inn! ( 10 av )
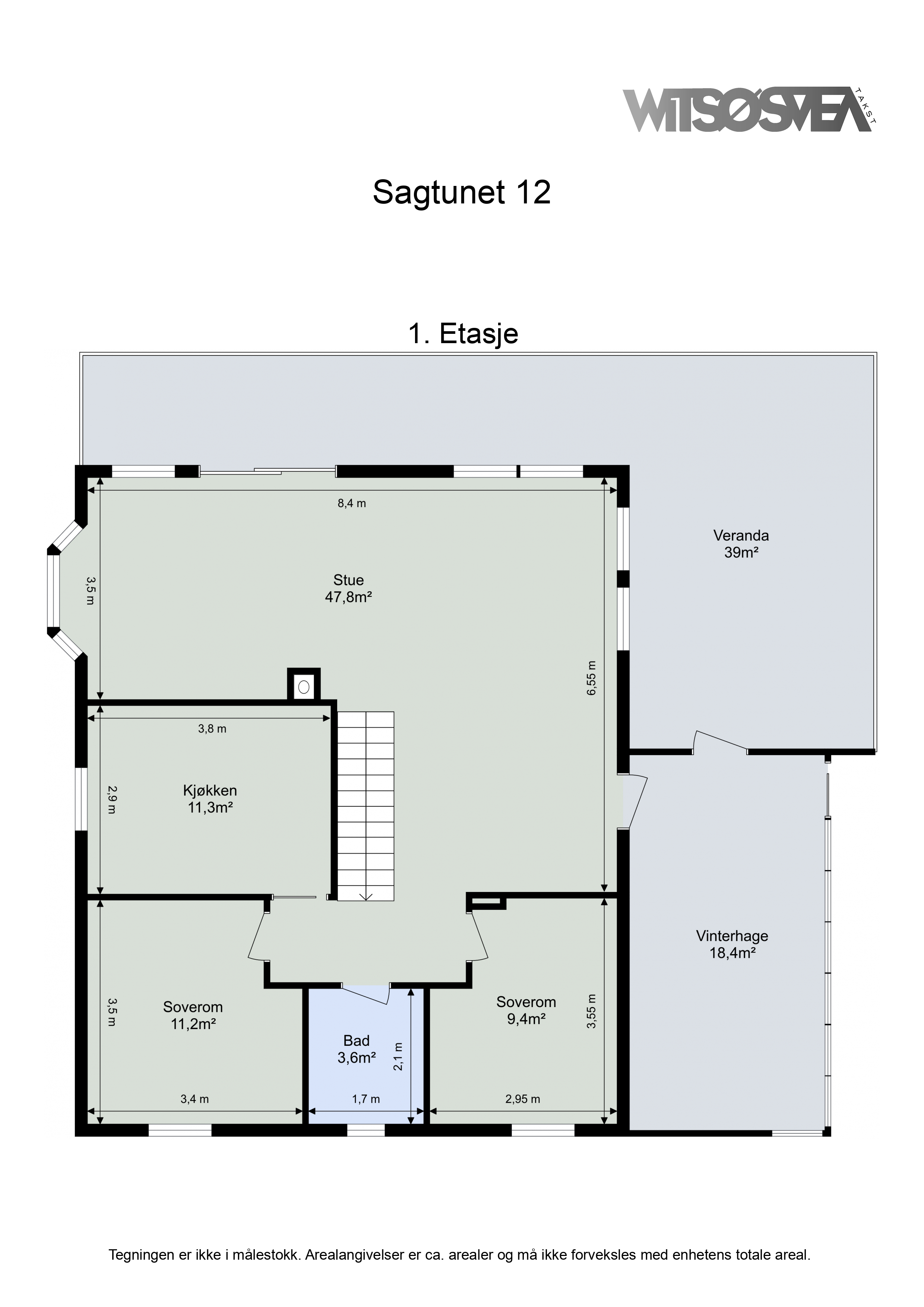
4842894_1a
Planskisse - 1. etasje ( 11 av )
4844898_1a
Vi starter i 1. etasje, som inneholder stor stue, kjøkken, 2 soverom og bad. ( 12 av )
4844896_1a
Stua har et materialromantisk preg med bl.a. vegger kledd i edelpanel. ( 13 av )
4844893_1a
Stua måler hele 47,8 kvm og den god romfølelsen fortsterkes av ekstra takhøyde i deler av rommet. ( 14 av )
4844897_1a
Det ble i 2024 installert ny varmepumpe, som sørger for jevn og god oppvarming. ( 15 av )
4844894_1a
I tillegg finner man vedovn både 1. etasje og i underetasjen. ( 16 av )
4844895_1a
Sørveggen er krydret med store vindusflater og skyvedør som leder ut til verandaen. ( 17 av )
4844888_1a
Boligen fremstår som godt vedlikeholdt, se mer om dette i tilstandsrapporten i prospektet. ( 18 av )
4844889_1a
Verandaen er på hele 39 kvm og har ettermiddags- og kveldssol på den vestvendte delen. ( 19 av )
4844890_1a
( 20 av )
4844902_1a
Solid heltrekjøkken fra byggår med nyere hvitevarer som medfølger i handelen. ( 21 av )
4844903_1a
( 22 av )
4844904_1a
Badet har varme i gulvet og ble oppgradert med nytt gulv, sluk og mebranduk i 2016. ( 23 av )
4844907_1a
Boligen byr i dag på 3 gode soverom. Soverom I er på 9,4 kvm. ( 24 av )
4844908_1a
Soverom II er 11,2 kvm. Garderobeløsning på rommet medfølger i handeln. ( 25 av )
4842893_1a
Planskisse - sokkel ( 26 av )
4844892_1a
Sokkeletasjen inneholder kjellerstue, soverom, bad, vaskerom, og 3 boder. ( 27 av )
4844901_1a
Kjellerstua er på 23 kvm og er av god størrelse. ( 28 av )
4844909_1a
Soverom III. ( 29 av )
4844906_1a
Badet i underetasjen er flislagt med varme i gulvet. Rommet ble oppgradert i 1997. ( 30 av )
4844905_1a
Mange vil nok sette pris på at det er separat vaskerom i boligen. ( 31 av )
4844911_1a
Etasjen byr også på romslig garderoberom. ( 32 av )
4844910_1a
Videre er det 2 boder på ca, og 6 kvm som er benyttet til lagring og snekkerbod. ( 33 av )
4837124_1a
( 34 av )
4837127_1a
Boligen ligger rett ved Coop Extra, apotek, tannlege og Hesttrø bussholdeplass hvor 72-bussen tar en til Tiller og videre til Trondheim sentrum. ( 35 av )
4837123_1a
( 36 av )
4837122_1a
Fotballbane og barnehage Tanem ( 37 av )
4837125_1a
Nærområdet kan skilte med flotte tur- og fritidsmuligheter både sommer som vinter med flere naturskjønne områder for utfart, fiske og rekreasjonsmuligheter. ( 38 av )
4837126_1a
Vassfjellet er en flott destinasjon for å komme seg ut uansett årstid. Fantastiske forhold om vinteren og gode sykkel- og gåturer om sommeren. ( 39 av )
4844912_1a
Husk å meld deg på til visning via påmeldingsfunksjonen på Finn.no ( 40 av )

Sagtunet 12

Se alle bilder (0)
4844881_1a
4844887_1a
4844880_1a
4844885_1a
4844883_1a
4844884_1a
4844886_1a
4844882_1a
4844900_1a
4844899_1a
4842894_1a
4844898_1a
4844896_1a
4844893_1a
4844897_1a
4844894_1a
4844895_1a
4844888_1a
4844889_1a
4844890_1a
4844902_1a
4844903_1a
4844904_1a
4844907_1a
4844908_1a
4842893_1a
4844892_1a
4844901_1a
4844909_1a
4844906_1a
4844905_1a
4844911_1a
4844910_1a
4837124_1a
4837127_1a
4837123_1a
4837122_1a
4837125_1a
4837126_1a
4844912_1a

Sagtunet 12

Prisantydning:
Fra Kr 4750000,00
til Kr 0,00
Totalpris:
Kr 4887000,00
BRA:
184,00 - 0,00
BRA-i:
162 - 0
Soverom:
3 - 0
Boligtype:
Enebolig
Eierform:
Eiet tomt
Byggeår:
1985
Etasje:
0
Tomteareal:
574

Innholdsrik enebolig på selveid tomt. Svært solrikt. Flott beliggenhet i innerste del. 2 stuer. 2 bad. 3/4 sov. Garasje

Ansvarlig megler:
Kenneth Vårvik

Eiendomsmegler / Partner / Jurist

Jørgen Ranum

Eiendomsmeglerfullmektig

Visning

Boligen er solgt og er ikke lengre tilgjengelig for visning. 

Sagtunet 12

image005

Nøkkelinformasjon

plus_G_2025

BELIGGENHET

plus_G
minus_G

BESKRIVELSE AV EIENDOMMEN

plus_G
minus_G

OFFENTLIGE FORHOLD

plus_G
minus_G

PRISANTYDNING INKLUDERT OMKOSTNINGER

plus_G
minus_G

ØVRIGE KJØPSFORHOLD

plus_G
minus_G

Dokumenter

plus_G_2025

Del boligen

facebook-gold
Twitter-gold

Lurer du på noe om denne boligen?

Ta kontakt under via skjemaet.


Relaterte boliger

Edgar B. Schieldrops veg 10A
3450000,00  0,00

Edgar B. Schieldrops veg 10A

Trondheim ­ TRONDHEIM
Lekker 3-roms med topp og endebeliggenhet - Gode solforhold - Fantastisk utsikt mot Gråkallen - Delikat bad og kjøkken.

Totalpris:

Kr 3740014,00

BRA-i:

72 m²
Dybdahls veg 19B
5800000,00  0,00

Dybdahls veg 19B

Trondheim ­ TRONDHEIM
Innholdsrikt og sentrumsnært rekkehus over 3 plan i barnevennlig boligfelt. Skjermet hage og glimrende solforhold.

Totalpris:

Kr 5964280,00

BRA-i:

113 m²
Hans Finnes gate 27
6650000,00  0,00

Hans Finnes gate 27

Trondheim ­ TRONDHEIM
Sjelden anledning! Selveierleilighet over 2 plan med attraktiv beliggenhet. Fantastisk fjordutsikt. 2 solrike uteplasser

Totalpris:

Kr 6830240,00

BRA-i:

111 m²
Røllikvegen 25
5290000,00  0,00

Røllikvegen 25

Trondheim ­ TRONDHEIM
Fin 4-roms familiebolig med god planløsning og sentral beliggenhet. 2 p-plasser. Terrasse med utsikt og gode solforhold.

Totalpris:

Kr 5436240,00

BRA-i:

112 m²
Odenseveien 31
2600000,00  0,00

Odenseveien 31

Trondheim ­ TRONDHEIM
Innbydende 3-roms i toppetasjen like ved marka. Flott utsikt, rehabilitert fasade og god planløsning. Tre boder

Totalpris:

Kr 3434059,00

BRA-i:

62 m²
Ringduevegen 12
2900000,00  0,00

Ringduevegen 12

Trondheim ­ Kattem
Attraktivt rekkehus over tre plan i rolig borettslag. Vestvendt terrasse og hage. Fjernvarme. Parkering.

Totalpris:

Kr 3485248,00

BRA-i:

153 m²
Marie Sørdals veg 11E
3850000,00  0,00

Marie Sørdals veg 11E

Trondheim ­ Trondheim
Familievennlig rekkehus over to plan beliggende på et attraktivt tun. 2 solrike uteplasser. Oppvarmet garasjeplass m.m.

Totalpris:

Kr 4008006,00

BRA-i:

110 m²
Lade alle 156
3450000,00  0,00

Lade alle 156

Trondheim ­ TRONDHEIM
Lys og moderne 2-roms leilighet fra 2024 - perfekt for førstegangskjøperen! Balkong, fjernvarme, intern og ekstern bod.

Totalpris:

Kr 3550240,00

BRA-i:

37 m²
Væressletta 13B
5990000,00  0,00

Væressletta 13B

Trondheim ­ RANHEIM
Lekker leilighet i toppetasjen fra 2023. Moderne og lyst. Parkering i kjeller. Fantastisk utsikt. Heis. Vannbåren varme

Totalpris:

Kr 6008203,00

BRA-i:

82 m²
Ringvålvegen 360
3790000,00  0,00

Ringvålvegen 360

Trondheim ­ Heimdal
Svært flott 1/4-part over 2 etasjer m/vannbåren gulvvarme. Totalt 197 kvm BRA. Utleid kjellerdel*. Dobbelgarasje.

Totalpris:

Kr 3897740,00

BRA-i:

129 m²
Se flere boliger
Bolig til salgs

Inspirasjon

Inspirerende interiørbilder fra norske hjem.
sov1
Soverom
kjo1
Kjøkken
stue
Stue

Boligartikler

Nyttig informasjon, råd og inspirasjon for deg som er opptatt av bolig.
aaletidligute
Aktuelt

Kapret først drømmeboligen, solgte egen bolig få dager senere

Konseptet vårt, Tidlig ute, legger til rette for et stressfritt boligsalg på kundens premisser. Poenget er å være ute i god tid, slik at prosessen...
vo4
Aktuelt

178 dager uten bud; - Proaktiv solgte boligen min etter første visning

Huset i Vestre Olsvikveg hadde mistet alt av moment etter et halvt år ute i markedet. Da Proaktiv ved Jon Kristian Røsok kom inn i bildet ble...
n_r-16
Aktuelt

Drømmer du om å drive ditt eget meglerkontor?

Proaktiv Eiendomsmegling er alltid på utkikk etter flinke folk som ønsker å skape sin egen suksess. Er du en målrettet og verdiskapende megler, med...