4763189_1a
Proaktiv Eiendomsmegling ved Lisbeth Kristengård har gleden av å ønske deg velkommen til en hyggelig boligopplevelse, og til visning av en lys og trivelig 3-roms leilighet med sentral beliggenhet hva gjelder studiesteder, kollektivt og sentrum. ( 1 av )
4763203_1a
Leiligheten ligger i 2. etasje og borettslaget har pent opparbeidede fellesområder med bla. gressplen som beboerne kan bruke fritt. ( 2 av )
4763201_1a
Solrik balkong med fin utsikt over området. Her er det god plass til sittegruppe, grill m.m.. ( 3 av )
4765466_1a
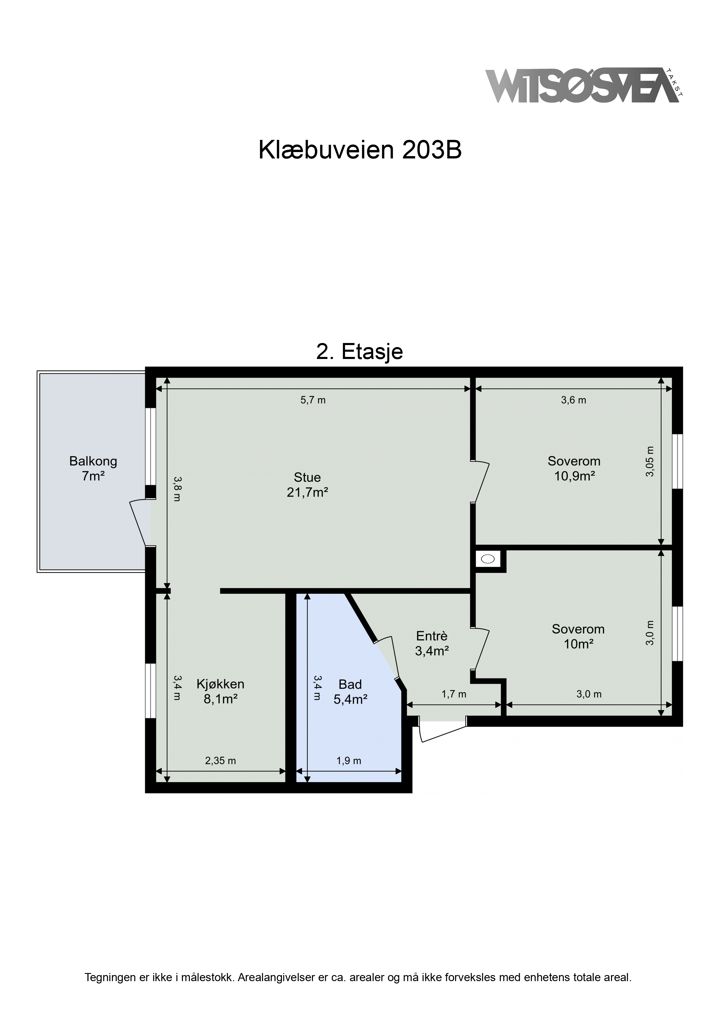
Planskisse fra takstmann. ( 4 av )
4763187_1a
Man kommer inn i leiligheten via en entré hvor det er god plass til å sette ifra seg sko og henge opp ytterklær. ( 5 av )
4763191_1a
Stuen har god plass for sofagruppen, tv-benk og et spisebord. ( 6 av )
4763198_1a
Stuen nyter godt av rikelig med lys inn fra vinduene samt downlights i himling. ( 7 av )
4763197_1a
På stuen er det uttak for kabel-tv og internett som også er inkludert i felleskostnadene. ( 8 av )
4763195_1a
Stuen er av god størrelse ca. 22 kvm og har en delvis åpen løsning til et kjøkken på 8 kvm. ( 9 av )
4763192_1a
Lys og trivelig stue malt i moderne farger, med en behagelig peisovn som gir god varme på kalde vinterdager ( 10 av )
4763190_1a
God plass til hyggelig spiseplass. ( 11 av )
4763193_1a
Kjøkkenet har en grå og tidløs innredning. ( 12 av )
4763194_1a
På kjøkkenet er det installert en varmepumpe. ( 13 av )
4763199_1a
Her er det rikelig med benk- og skapplass samt god belysning over benkeplate samt downlights i himling. ( 14 av )
4763196_1a
Det er også plass for et kjøkkenbord ved vinduet. ( 15 av )
4763200_1a
Detajlbilde ( 16 av )
4763185_1a
Delikat og romslig baderom på 5,5 kvm. med behagelig varme i gulv og downlights i himling. ( 17 av )
4763186_1a
Badet ble pusset opp i 2022 og er utstyrt med servant med skuffer, høyskap, dusjkabinett, vegghengt wc samt opplegg for vaskemaskin. ( 18 av )
4763188_1a
Hovedsoverommet er på 11 kvm og har mye naturlig innlys. ( 19 av )
4763183_1a
Soverom 2 er på 10,5 kvm. ( 20 av )
4763184_1a
Begge soverommene har god plass til dobbeltseng, garderobeskap, skrivepult m.m. ( 21 av )
4763202_1a
Man disponerer en parkeringsplass på borettslaget tomt. ( 22 av )
4766036_1a
Kort vei til flere av byens studiesteder. ( 23 av )
4766038_1a
Leiligheten ligger perfekt til i forhold til de fleste studiestedene. NTNU Gløshaugen, SINTEF, Det medisinske fakultet på Øya, St. Olavs Hospital og Handelshøyskolen ligger innen gangavstand. ( 24 av )
4766040_1a
Anerkjente arbeidssteder som St.Olavs ligger også kun en spassertur unna. ( 25 av )
4766101_1a
Nærbutikk og restaurant like i nærheten. ( 26 av )
4766042_1a
Området byr på herlige turområder langs Nidelven hvor du også finner parken ved Nedre Leirfoss. ( 27 av )

Klæbuveien 203B

Se alle bilder (0)
4763189_1a
4763203_1a
4763201_1a
4765466_1a
4763187_1a
4763191_1a
4763198_1a
4763197_1a
4763195_1a
4763192_1a
4763190_1a
4763193_1a
4763194_1a
4763199_1a
4763196_1a
4763200_1a
4763185_1a
4763186_1a
4763188_1a
4763183_1a
4763184_1a
4763202_1a
4766036_1a
4766038_1a
4766040_1a
4766101_1a
4766042_1a

Klæbuveien 203B

Prisantydning:
Fra Kr 3200000,00
til Kr 0,00
Totalpris:
Kr 3356964,00
BRA:
82,00 - 0,00
BRA-i:
63 - 0
Soverom:
2 - 0
Boligtype:
Leilighet
Eierform:
Fellestomt
Byggeår:
1955
Etasje:
2
Tomteareal:
2007

Trivelig 3-roms leilighet i 2. etg. Pent baderom fra 2022. Solrik sørvestvendt balkong. P-plass. Nære off. kom. og NTNU.

Ansvarlig megler:
Lisbeth Kristengård

Eiendomsmegler MNEF

Visning

Boligen er solgt og er ikke lengre tilgjengelig for visning. 

Klæbuveien 203B

image005

Nøkkelinformasjon

plus_G_2025

BELIGGENHET

plus_G
minus_G

BESKRIVELSE AV EIENDOMMEN

plus_G
minus_G

BORETTSLAGET/ØKONOMI

plus_G
minus_G

OFFENTLIGE FORHOLD

plus_G
minus_G

PRISANTYDNING INKLUDERT OMKOSTNINGER

plus_G
minus_G

ØVRIGE KJØPSFORHOLD

plus_G
minus_G

Dokumenter

plus_G_2025

Del boligen

facebook-gold
Twitter-gold

Lurer du på noe om denne boligen?

Ta kontakt under via skjemaet.


Relaterte boliger

Marie Michelets veg 17A
3150000,00  0,00

Marie Michelets veg 17A

Trondheim ­ TRONDHEIM
Lys og lekker 3-roms hjørneleilighet med sentral og attraktiv beliggenhet. Sørvendt balkong. Peisovn.

Totalpris:

Kr 3744117,00

BRA-i:

69 m²
Thomas Hirsch gate 21. Thomas Hirsch gate 23
16500000,00  0,00

Thomas Hirsch gate 21. Thomas Hirsch gate 23

Trondheim ­ Trondheim
Betydelig påkostet historisk lystgård på 307 kvm BRA. Tomt på 2 mål inkl. fradelt tomt m/ rammetillatelse for enebolig.

Totalpris:

Kr 16930490,00

BRA-i:

307 m²
Lillian Byes veg 71
5790000,00  0,00

Lillian Byes veg 71

Trondheim ­ Trondheim
Svært delikat og familievennlig enderekkehus med god standard. Egen romslig takterrasse. 4 soverom. Ingen fellesgjeld.

Totalpris:

Kr 5799990,00

BRA-i:

141 m²
Odd Husbys veg 8
5000000,00  0,00

Odd Husbys veg 8

Trondheim ­ TRONDHEIM
Strøken hjørneleilighet (2024) med høy standard, solrik balkong og markanær beliggenhet. P-plass med elbillader.

Totalpris:

Kr 5138990,00

BRA-i:

62 m²
Churchills veg 21E
5850000,00  0,00

Churchills veg 21E

Trondheim ­ Charlottenlund
Flott rekkehus med familievennlig planløsning og solrike uteområder. Garasje. Barnevennlig og attraktivt nabolag.

Totalpris:

Kr 6015240,00

BRA-i:

122 m²
Andersbakkan 91
3490000,00  0,00

Andersbakkan 91

Trondheim ­ HEIMDAL
Lekker, nyere leilighet med solrik balkong og utsikt! Park.kjeller - Heis - Oppvarming inkl i felleskost. -TG 0 på alt

Totalpris:

Kr 3591240,00

BRA-i:

62 m²
Blusuvoll alle 2B
5550000,00  0,00

Blusuvoll alle 2B

Trondheim ­ TRONDHEIM
Nydelig 1/4-part med solrik balkong, vakker utsikt & felles hage. TG0 kjøkken. Separat vaskerom. P-plass. Sentrumsnært.

Totalpris:

Kr 5849408,00

BRA-i:

83 m²
Heggdalsringen 63
3990000,00  0,00

Heggdalsringen 63

Trondheim ­ TRONDHEIM
Lettstelt 3-roms med gjennomgående høy standard. Vestvendt balkong med gode solforhold. Fast p-plass.

Totalpris:

Kr 4103740,00

BRA-i:

52 m²
Væressletta 13B
5990000,00  0,00

Væressletta 13B

Trondheim ­ RANHEIM
Lekker leilighet i toppetasjen fra 2023. Moderne og lyst. Parkering i kjeller. Fantastisk utsikt. Heis. Vannbåren varme

Totalpris:

Kr 6008203,00

BRA-i:

82 m²
Ladebekken 8A
6750000,00  0,00

Ladebekken 8A

Trondheim ­ TRONDHEIM
Rålekker hjørneleilighet med fantastisk beliggenhet. Romslig balkong. P-plass med elbillader. Felles takterrasse.

Totalpris:

Kr 6932740,00

BRA-i:

82 m²
Se flere boliger
Bolig til salgs

Inspirasjon

Inspirerende interiørbilder fra norske hjem.
sov1
Soverom
kjo1
Kjøkken
stue
Stue

Boligartikler

Nyttig informasjon, råd og inspirasjon for deg som er opptatt av bolig.
_RM_0829

Digital verdivurdering vs meglers verdivurdering – dette må du vite

En digital verdivurdering gir et raskt, automatisk estimat basert på data og algoritmer. En meglers verdivurdering bygger på fysisk befaring, faglig...
artikkelaug
Aktuelt

E-takst - Hva er det og hvorfor trenger du det?

En e-takst er en elektronisk verdivurdering av en bolig som utføres av eiendomsmegler, og som sier hva boligen din er verdt i dagens marked. Den er...
A1_04994
Aktuelt

Slik lykkes du med boligjakten i 2026: – Kan spare hundretusener

Med høy rente, store prisforskjeller og mange om beinet er det lett å miste motet som førstegangskjøper. Men admin. dir. Vibeke Stavenes mener noen...