4842694_1a
Velkommen til denne romslig 3(4)-roms leiligheten med stue på ca. 48 m² ( 1 av )
4842687_1a
Sørvendt balkong på ca. 15 m² med bod. Her er det god plass til sittegruppe. ( 2 av )
4842678_1a
( 3 av )
4843567_1a
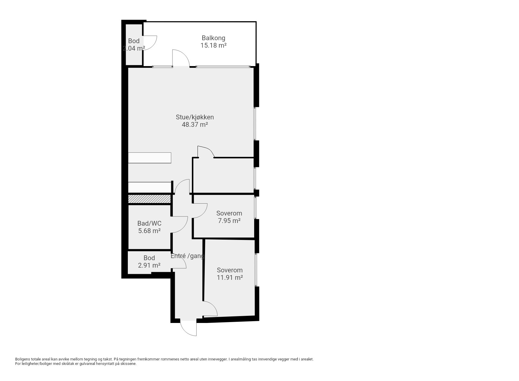
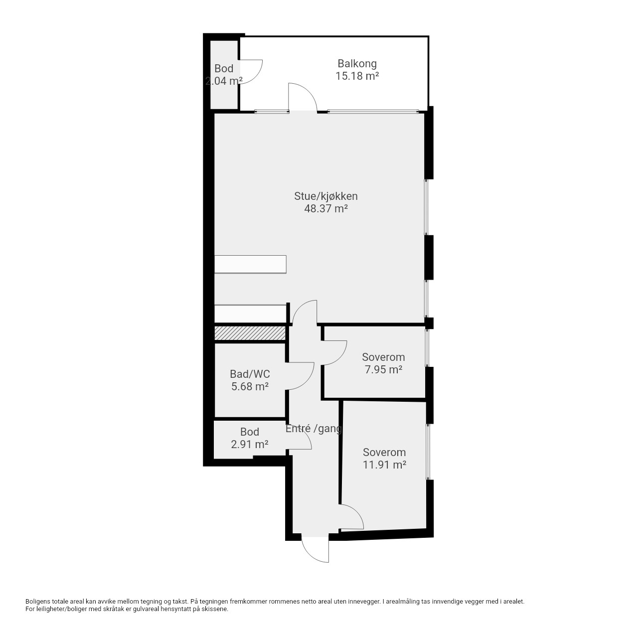
Plantegning av leiligheten. ( 4 av )
4843575_1a
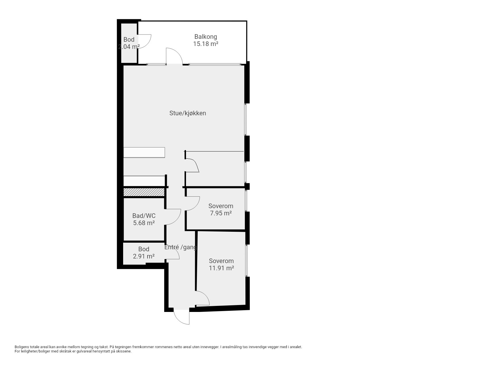
Alternativ planskisse ( 5 av )
4842689_1a
Romslig stue/kjøkkensone med god plass til langbord og sofakrok. ( 6 av )
4842685_1a
Dette er en hjørneleilighet med lysinnslipp fra 2 sider. ( 7 av )
4842686_1a
Adkomst til balkongen. ( 8 av )
4842688_1a
( 9 av )
4842698_1a
( 10 av )
4842690_1a
Kjøkkenøy mellom spisestue og kjøkkensonen. En sosial plass å kokkelere når man har besøk. ( 11 av )
4842700_1a
Lys og moderne innredning med benkeplate av laminat. ( 12 av )
4842691_1a
Avtrekk ut fra ventilator over platetopp. ( 13 av )
4842699_1a
( 14 av )
4842692_1a
( 15 av )
4842695_1a
Lun uteplass med overbygg fra balkongen over og glassvegger på deler av uteplassen. ( 16 av )
4842697_1a
Utsyn fra balkongen. ( 17 av )
4842681_1a
Hovedsoverommet malt i lun og mørk tone. Utstyrt med mye garderobeplass. ( 18 av )
4842682_1a
( 19 av )
4842708_1a
Soverom nummer 2. ( 20 av )
4842709_1a
Utstyrt med garderobe. Ideelt barnerom, kontor eller gjesterom. ( 21 av )
4842702_1a
Delikat baderom med god plass til vaskemaskin og tørketrommel. ( 22 av )
4842703_1a
Det er varme i gulvet. ( 23 av )
4842710_1a
Lys og moderne innredning med to skuffer. ( 24 av )
4842704_1a
( 25 av )
4842683_1a
Bod med adkomst fra entréen. Perfekt for ytterbekledning, støvsuger og annet man ønsker å plassere ute av syne. ( 26 av )
4842705_1a
Entréen har en bred skyvedørsgarderobe. ( 27 av )
4842706_1a
Velkommen inn! ( 28 av )
4848897_1a
( 29 av )
4842677_1a
Sameiet har fine grøntområder med benker og beplatning. ( 30 av )
4842711_1a
Garasjeplass følger ( 31 av )
4843573_1a
( 32 av )
4843569_1a
Mønevann - populære badeplass i flotte omgivelser. ( 33 av )
4843570_1a
Skårerparken er en nylig oppgradert del av Skårersletta. ( 34 av )
4843572_1a
Triaden har de siste årene gjennomgått en full oppgradering med bl.a. 40 nye butikker. ( 35 av )
4843571_1a
Triaden På baksiden av Triaden er det flere restauranter ( 36 av )

Søster Mathildes gate 24

Se alle bilder (0)
4842694_1a
4842687_1a
4842678_1a
4843567_1a
4843575_1a
4842689_1a
4842685_1a
4842686_1a
4842688_1a
4842698_1a
4842690_1a
4842700_1a
4842691_1a
4842699_1a
4842692_1a
4842695_1a
4842697_1a
4842681_1a
4842682_1a
4842708_1a
4842709_1a
4842702_1a
4842703_1a
4842710_1a
4842704_1a
4842683_1a
4842705_1a
4842706_1a
4848897_1a
4842677_1a
4842711_1a
4843573_1a
4843569_1a
4843570_1a
4843572_1a
4843571_1a

Søster Mathildes gate 24

Prisantydning:
Fra Kr 5300000,00
til Kr 0,00
Totalpris:
Kr 5445750,00
BRA:
95,00 - 0,00
BRA-i:
90 - 0
Soverom:
2 - 0
Boligtype:
Leilighet
Eierform:
Eiet tomt
Byggeår:
2014
Etasje:
3
Tomteareal:
6477

Svært romslig 3-roms med stue og kjøkken på nesten 50 m² og sørvendt balkong på ca. 15 m² | Garasje | 3 boder

Ansvarlig megler:
Silje Hegre

Salgsleder/Partner/Eiendomsmegler

Visning

Det er for tiden ikke satt opp visningstid på denne eiendommen.
Ønsker du å avtale et visningstidspunkt?
Avtal privatvisning her

Søster Mathildes gate 24

image005

Nøkkelinformasjon

plus_G_2025

BELIGGENHET

plus_G
minus_G

BESKRIVELSE AV EIENDOMMEN

plus_G
minus_G

OFFENTLIGE FORHOLD

plus_G
minus_G

PRISANTYDNING INKLUDERT OMKOSTNINGER

plus_G
minus_G

SAMEIET/ØKONOMI

plus_G
minus_G

ØVRIGE KJØPSFORHOLD

plus_G
minus_G

Dokumenter

plus_G_2025

Del boligen

facebook-gold
Twitter-gold

Lurer du på noe om denne boligen?

Ta kontakt under via skjemaet.


Relaterte boliger

Søster Mathildes gate 6A
6150000,00  0,00

Søster Mathildes gate 6A

Lørenskog ­ LØRENSKOG
Delikat 3(4)-r toppleilighet! 27m² terrasse med mye sol & fin utsikt | 2 bad | 2 garasjeplasser (EL) | Akonto varme inkl

Totalpris:

Kr 6318000,00

BRA-i:

87 m²
Kantarellveien 73
6500000,00  0,00

Kantarellveien 73

Lørenskog ­ RASTA
Halvpart tomannsbolig m/ nydelig utsikt i meget barnevennlige omgivelser | 4 sov + innredet rom, bad & wc | Garasje m/EL

Totalpris:

Kr 6639377,00

BRA-i:

129 m²
Losbyveien 42C
3350000,00  0,00

Losbyveien 42C

Lørenskog ­ FINSTADJORDET
Gjennomgående 2(3)-roms endeleilighet med fast p-plass m/ EL | To balkonger og gode solforhold | Landlig, men sentralt!

Totalpris:

Kr 3562872,00

BRA-i:

56 m²
Oscar Wistings vei 5
8700000,00  0,00

Oscar Wistings vei 5

Lørenskog ­ Fjellhamar
Hel tomannsbolig med leieinntekter, 1,6 mål tomt & fantastisk utsikt | Stort potensiale | Like ved tog, skole & marka

Totalpris:

Kr 8935750,00

BRA-i:

159 m²
Ingvald Kristiansens gate 7
5995000,00  0,00

Ingvald Kristiansens gate 7

Lørenskog ­ LØRENSKOG
Nyoppført og attraktiv 4-roms selveier m/garasjeplass & innglasset balkong | Sentralt & moderne i Skårerløkka Premium

Totalpris:

Kr 6158120,00

BRA-i:

78 m²
Vestaveien 45
12900000,00  0,00

Vestaveien 45

Lørenskog ­ Rasta
Påkostet familievilla med nydelig uteområde, innflyttingsklare kvaliteter og 3 garasjer | 4 sov & 3 bad | Rett ved marka

Totalpris:

Kr 13240750,00

BRA-i:

197 m²
Tistilveien 7A og B
8750000,00  0,00

Tistilveien 7A og B

Lørenskog ­ RASTA
Familievennlig enebolig på 256 m² m/ godkjent utleiedel | Garasje | Nydelig uteområde & gode solforhold | Rett ved marka

Totalpris:

Kr 8987000,00

BRA-i:

256 m²
Korallsoppveien 25A
7200000,00  0,00

Korallsoppveien 25A

Lørenskog ­ RASTA
Barnevennlig innerst i blindvei ved Østmarka. Halvpart av tomannsbolig. Garasje m/lader. 4 soverom. 2 bad

Totalpris:

Kr 7393250,00

BRA-i:

140 m²
Isak H. Wiiks gate 10
3500000,00  0,00

Isak H. Wiiks gate 10

Lørenskog ­ LØRENSKOG
Perfekt førstegangskjøp! Splitter ny 1-roms m/alkove & fransk balkong | Felles takterrasse & sentral beliggenhet

Totalpris:

Kr 3600750,00

BRA-i:

34 m²
Rugdeveien 5
10590000,00  0,00

Rugdeveien 5

Lørenskog ­ Rasta
Delikat, ny enebolig med carport, høy standard & attraktiv beliggenhet i blindvei | Rett ved skole, barnehage & marka

Totalpris:

Kr 10590000,00

BRA-i:

152 m²
Se flere boliger
Bolig til salgs

Inspirasjon

Inspirerende interiørbilder fra norske hjem.
sov1
Soverom
kjo1
Kjøkken
stue
Stue

Boligartikler

Nyttig informasjon, råd og inspirasjon for deg som er opptatt av bolig.
n_r-16
Aktuelt

Drømmer du om å drive ditt eget meglerkontor?

Proaktiv Eiendomsmegling er alltid på utkikk etter flinke folk som ønsker å skape sin egen suksess. Er du en målrettet og verdiskapende megler, med...
ole4
Aktuelt

Bygget i 2021. Solgt for 2,5 millioner mer i 2025

Boligen i Ole I. Bores veg ble solgt for én million over prisantydning etter å ha ligget ute i markedet i kun en uke.
sk3

Proaktiv overtok oppdrag i Oslo; Solgte for 1,2 millioner mer enn opprinnelig pris

Da Caroline Ringså Ask tok over oppdraget i Skøyensvingen gjorde hun det hun pleier å gjøre – ta kontroll, tenke og handle annerledes.