4844563_1a
Velkommen til Ingvald Kristiansens gate 7! Nyoppført og attraktiv 4-roms selveier m/garasjeplass & innglasset balkong | Sentralt & moderne i Skårerløkka Premium ( 1 av )
4844545_1a
Perfekt beliggenhet for de som ønsker å bo sentralt med gangavstand til de fleste fasiliteter. Området byr på flotte rekreasjonsmuligheter i Østmarka samt et godt kollektivtilbud som gjør at du enkelt kommer deg dit du ønsker. ( 2 av )
4844560_1a
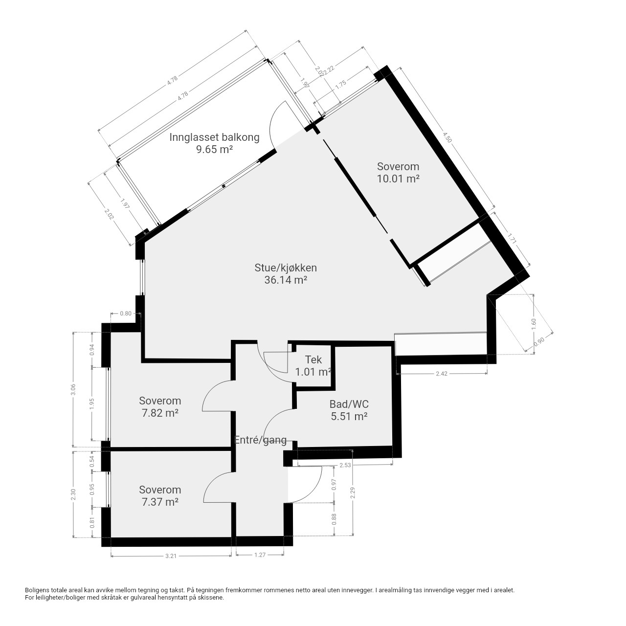
Fra stuen er det direkte utgang til en flott, innglasset sørvestvendt balkong på ca. 10 kvm med gode solforhold. ( 3 av )
4844482_1a
Plantegning ( 4 av )
4844549_1a
Leiligheten har en åpen og romslig stue-/kjøkkenløsning på over 36 kvm. ( 5 av )
4844550_1a
Store vindusflater gir rikelig med dagslys og en luftig romfølelse. ( 6 av )
4844547_1a
Det er vannbåren gulvvarme pg balansert ventilasjon med varmegjenvinning. ( 7 av )
4844546_1a
( 8 av )
4844561_1a
Balkongen har god plass til både spisebord og loungemøbler, og innglassingen gjør den anvendelig store deler av året. ( 9 av )
4844548_1a
( 10 av )
4844551_1a
Kjøkkenet er levert av Norema, med integrerte hvitevarer som stekeovn, induksjonstopp, kombiskap og oppvaskmaskin. ( 11 av )
4844552_1a
Benkeplate i laminat med nedfelt kum fra Franke, ventilator med kullfilter og komfyrvakt. ( 12 av )
4844553_1a
Spotter under overskap gir god arbeidsbelysning. ( 13 av )
4844554_1a
( 14 av )
4844543_1a
Baderom med moderne standard. Flislagt gulv i antrasitt med mosaikk i dusjsonen og hvite, blanke veggfliser. LED-spotter i himling med dimmer og gulvvarme gir både komfort og stil. ( 15 av )
4844544_1a
Utstyrt med vegghengt toalett, dusjhjørne med innfellbare glassvegger, samt baderomsinnredning med servant og speilløsning med LED-lys. Opplegg for vaskemaskin og tørketrommel i nisje. ( 16 av )
4844555_1a
Leiligheten har tre soverom med gode møbleringsmuligheter. Det største soverommet har plass til dobbeltseng og garderobeløsning. ( 17 av )
4844556_1a
De øvrige rommene egner seg godt som barnerom, gjesterom eller hjemmekontor etter behov. ( 18 av )
4844557_1a
Alle rommene har hvitpigmentert eikeparkett og store vindusflater som gir godt lysinnslipp. ( 19 av )
4844558_1a
Innenfor inngangsdøren møtes du av en lys og innbydende entré med hvitpigmentert eikeparkett på gulv og vannbåren varme. ( 20 av )
4844559_1a
Her finner du også tilgang til et teknisk rom. ( 21 av )
4844562_1a
Det medfølger en garasjeplass i felles garasjeanlegg og en kjellerbod på 6kvm. ( 22 av )
4844564_1a
Leiligheten i Ingvald Kristiansens gate 7 ligger i sentrale omgivelser midt i hjertet av Lørenskog - Her har du alt du behøver rett utenfor ytterdøren. Velkommen til visning! ( 23 av )
4866130_1a
Losby Gods ( 24 av )
4866131_1a
Mariholtet ( 25 av )
4866132_1a
Mønevann Badeplass ( 26 av )
4866133_1a
Kanotur langs Mønevann ( 27 av )
4866134_1a
Triaden kjøpesenter ( 28 av )

Ingvald Kristiansens gate 7

Se alle bilder (0)
4844563_1a
4844545_1a
4844560_1a
4844482_1a
4844549_1a
4844550_1a
4844547_1a
4844546_1a
4844561_1a
4844548_1a
4844551_1a
4844552_1a
4844553_1a
4844554_1a
4844543_1a
4844544_1a
4844555_1a
4844556_1a
4844557_1a
4844558_1a
4844559_1a
4844562_1a
4844564_1a
4866130_1a
4866131_1a
4866132_1a
4866133_1a
4866134_1a

Ingvald Kristiansens gate 7

Prisantydning:
Fra Kr 5995000,00
til Kr 0,00
Totalpris:
Kr 6158120,00
BRA:
94,00 - 0,00
BRA-i:
78 - 0
Soverom:
3 - 0
Boligtype:
Leilighet
Eierform:
Fellestomt
Byggeår:
2025
Etasje:
3
Tomteareal:
10752

Nyoppført og attraktiv 4-roms selveier m/garasjeplass & innglasset balkong | Sentralt & moderne i Skårerløkka Premium

Ansvarlig megler:
Simen Grefsrud

Partner/ Eiendomsmegler MNEF

Justyna Szabla

Eiendomsmeglerfullmektig

Visning

Det er for tiden ikke satt opp visningstid på denne eiendommen.
Ønsker du å avtale et visningstidspunkt?
Avtal privatvisning her

Ingvald Kristiansens gate 7

image005

Nøkkelinformasjon

plus_G_2025

BELIGGENHET

plus_G
minus_G

BESKRIVELSE AV EIENDOMMEN

plus_G
minus_G

OFFENTLIGE FORHOLD

plus_G
minus_G

PRISANTYDNING INKLUDERT OMKOSTNINGER

plus_G
minus_G

SAMEIET/ØKONOMI

plus_G
minus_G

ØVRIGE KJØPSFORHOLD

plus_G
minus_G

Dokumenter

plus_G_2025

Del boligen

facebook-gold
Twitter-gold

Lurer du på noe om denne boligen?

Ta kontakt under via skjemaet.


Relaterte boliger

Skårerveien 58A
9990000,00  0,00

Skårerveien 58A

Lørenskog ­ LØRENSKOG
Innflyttningsklar familiebolig fra 2025 med balkong, carport og parkeringsplass. 3/4 soverom og to bad + vaskerom.

Totalpris:

Kr 10078850,00

BRA-i:

147 m²
Haukeveien 3A
11500000,00  0,00

Haukeveien 3A

Lørenskog ­ Rasta
Stor, påkostet familiebolig fra 2020 m/ fantastisk utsikt! Stue & kjøkken på over 80 m² | 5 sov, 3 bad | Dobbelgarasje

Totalpris:

Kr 11800750,00

BRA-i:

215 m²
Vestaveien 45
12900000,00  0,00

Vestaveien 45

Lørenskog ­ Rasta
Påkostet familievilla med nydelig uteområde, innflyttingsklare kvaliteter og 3 garasjer | 4 sov & 3 bad | Rett ved marka

Totalpris:

Kr 13240750,00

BRA-i:

197 m²
Rolvsrudveien 11C
6490000,00  0,00

Rolvsrudveien 11C

Lørenskog ­ Lørenskog
Flott selveiet rekkehus i barnevennlige omgivelser, innerst i blindvei. To terrasser med gode solforhold og garasje.

Totalpris:

Kr 6666500,00

BRA-i:

108 m²
Oscar Wistings vei 5
8700000,00  0,00

Oscar Wistings vei 5

Lørenskog ­ Fjellhamar
Hel tomannsbolig med leieinntekter, 1,6 mål tomt & fantastisk utsikt | Stort potensiale | Like ved tog, skole & marka

Totalpris:

Kr 8935750,00

BRA-i:

159 m²
Korallsoppveien 25A
6950000,00  0,00

Korallsoppveien 25A

Lørenskog ­ RASTA
Barnevennlig innerst i blindvei ved Østmarka. Halvpart av tomannsbolig. Garasje m/lader. 4 soverom. 2 bad

Totalpris:

Kr 7137000,00

BRA-i:

140 m²
Asbjørn Klosters vei 3A
11990000,00  0,00

Asbjørn Klosters vei 3A

Lørenskog ­ Fjellhamar
Ny og råstilig familiebolig på 180m² med mulighet for praktikantdel | 4 bad og 5 soverom | Garasjeanlegg med 2 plasser

Totalpris:

Kr 12078850,00

BRA-i:

186 m²
Bjørndalsveien 26C
11750000,00  0,00

Bjørndalsveien 26C

Lørenskog ­ RASTA
Stor, arkitekttegnet funkisbolig med fantastisk takterrasse på 78 kvm. Påkostet kjøkken. 2 min gange til barneskole.

Totalpris:

Kr 12064000,00

BRA-i:

229 m²
Framveien 2
9990000,00  0,00

Framveien 2

Lørenskog ­ Fjellhamar
Enebolig m/stor og solrik tomt - IG til oppføring av 3 eneboliger. Nåværende bolig er leid ut for 52.750,- pr mnd!

Totalpris:

Kr 10260000,00

P-rom:

270,00 m²
Vestaveien 49
13550000,00  0,00

Vestaveien 49

Lørenskog ­ Rasta
Prima beliggenhet på Røykås - eksklusive eneboliger med god planløsning fra Riis Bygg AS. Barnevennlige omgivelser!

Totalpris:

Kr 13676350,00

P-rom:

0,00 m²
Se flere boliger
Bolig til salgs

Inspirasjon

Inspirerende interiørbilder fra norske hjem.
sov1
Soverom
kjo1
Kjøkken
stue
Stue

Boligartikler

Nyttig informasjon, råd og inspirasjon for deg som er opptatt av bolig.
_RM_0829

Digital verdivurdering vs meglers verdivurdering – dette må du vite

En digital verdivurdering gir et raskt, automatisk estimat basert på data og algoritmer. En meglers verdivurdering bygger på fysisk befaring, faglig...
artikkelaug
Aktuelt

E-takst - Hva er det og hvorfor trenger du det?

En e-takst er en elektronisk verdivurdering av en bolig som utføres av eiendomsmegler, og som sier hva boligen din er verdt i dagens marked. Den er...
A1_04994
Aktuelt

Slik lykkes du med boligjakten i 2026: – Kan spare hundretusener

Med høy rente, store prisforskjeller og mange om beinet er det lett å miste motet som førstegangskjøper. Men admin. dir. Vibeke Stavenes mener noen...