4670431_1a
Nyoppført funksbolig beliggende i et rolig og etablert villastrøk på attraktive Fjellhamar. Moderne design og med svært god standard. Stor takterrasse. Dobbel garasje. ( 1 av )
4670433_1a
Her er det bare å flytte seg etter solen... Til venstre for trappehuset er det plass til bord og stoler for morgenkaffen i formiddagssolen, til høyre og i front kommer ettermiddag og kveldssolen. Klargjort med vann og avløp for et ev. utekjøkken. ( 2 av )
4693724_1a
Nyoppført funksbolig beliggende i et rolig og etablert villastrøk på attraktive Fjellhamar. Moderne design og med svært god standard. Stor takterrasse. Dobbel garasje. ( 3 av )
4670427_1a
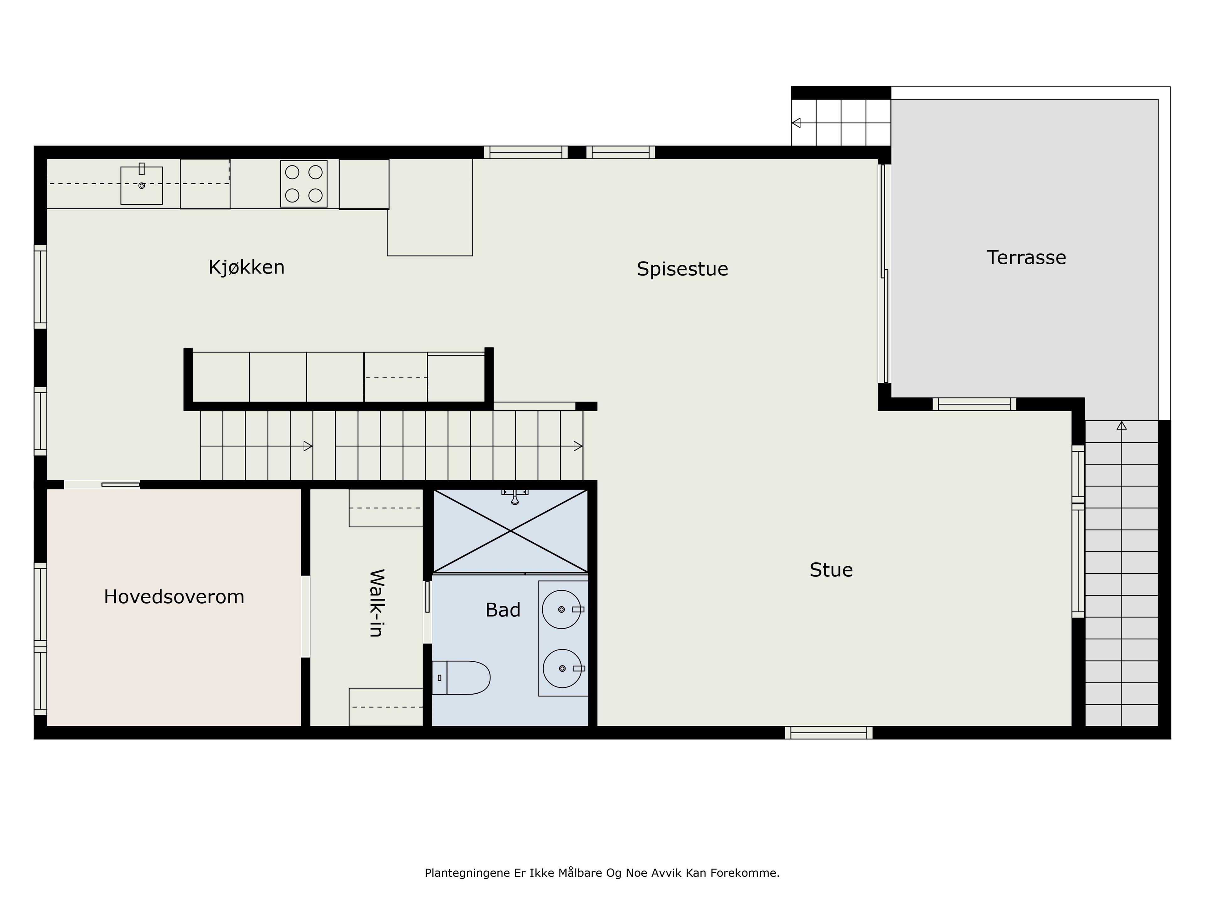
Tomten er ferdigopparbeidet med plen og hekk i tomtegrensen. Stue i mellomplan har utgang til balkong, denne er vestvendt. ( 4 av )
4670424_1a
Eiendommen er nylig ferdigstillet både inn og utvendig. Visning til annonserte tider eller privatvisning etter avtale med Petter Aure/45007097. ( 5 av )
4670423_1a
Dobbelgarasje med automatisk port samt sidedør. ( 6 av )
4670428_1a
Boligen er ferdigstillet og kan om ønskelig overtas umiddelbart. ( 7 av )
4670426_1a
Høyt og fritt beliggende på Fjellhamar, attraktivt villastrøk - barnevennlige omgivelser med kort vei til nye Fjellhamar skole. ( 8 av )
4670432_1a
Flott takterrasse på 67 kvm. Denne er forberedt for utekjøkken med varmt/kaldtvann og avløp. ( 9 av )
4670429_1a
Praktisk løsning hvor det er adkomst til takterrassen direkte fra hagen og fra terrassen i mellomplanet. Det er også innvendig traff fra mellomplanet og opp. ( 10 av )
4670473_1a
( 11 av )
4670468_1a
( 12 av )
4670470_1a
( 13 av )
4670469_1a
( 14 av )
4670471_1a
( 15 av )
4670472_1a
Østsiden av trappehuset, her kan morgensolen og kaffen nytes. ( 16 av )
4670474_1a
Det er klartgjort med vann og avløpsrør for montering av utekjøkken. ( 17 av )
4670475_1a
Tomten er ferdig opparbeidet med singlet adkomst innrammet i granitt kantstein. Plen og hekk i tomteskillet. ( 18 av )
4672444_1a
( 19 av )
4671031_1a
( 20 av )
4670457_1a
Påkostet kjøkkeninnredning fra KVIK, moderne design og komplett utstyrt med hvitevarer inkludert vinskap. ( 21 av )
4670458_1a
Anbefaler å ta turen innom for besiktigelse av denne eiendommen... ( 22 av )
4670456_1a
Langs den ene veggen er det også montert et speil som er levert av glassmester. ( 23 av )
4670463_1a
Innfelt kaffestasjon i innredningen med hyller, stikkontakt og belysning. ( 24 av )
4670479_1a
( 25 av )
4670459_1a
Lys stue med store vindusflater og skyvedør ut til solrik, vestvendt balkong. ( 26 av )
4670464_1a
Veggene er kledd i slette beige-toner og det er utstrakt bruk av downlightsbelysning. ( 27 av )
4670465_1a
( 28 av )
4670480_1a
( 29 av )
4670462_1a
God plass til spisestuebord i et lyst og hyggelig hjørne av stuen. ( 30 av )
4670461_1a
( 31 av )
4670466_1a
Her er det trivelig å slappe av, men dette er også et sted hvor venner og familie alltid er velkomne. ( 32 av )
4670460_1a
Stuen i 2. etg. har utgang til overbygget balkong på 10 kvm. ( 33 av )
4670467_1a
Balkongen har trapp opp til takterrassen. Merk at det også er en egen innvendig trapp fra 2. etg og opp til takterrassen. ( 34 av )
4670448_1a
Flott masteravdeling i 2. etasje med soverom med direkte adkomst inn til walk in closet og videre inn til et delikat baderom. ( 35 av )
4670454_1a
Boligen har totalt 4 soverom. ( 36 av )
4670449_1a
( 37 av )
4670451_1a
Delikat baderom i masteravdelingen med dobbel dusj og påkostet innredning. ( 38 av )
4670450_1a
Et luksus-bad med dobbel regnfallsdusj og dobbel servant, når man skal være flere på badet samtidig. ( 39 av )
4670453_1a
( 40 av )
4670452_1a
Veggmontert toalett fra Villeroy & Boch. ( 41 av )
4670481_1a
( 42 av )
4670986_1a
( 43 av )
4671030_1a
( 44 av )
4670447_1a
Lekkert inngangsparti. ( 45 av )
4670446_1a
Entrè/hall. Hyggelig areal med store lysflater. Rommet har trapp opp til 2. etg., samt inngang til gjestetoalett og vaskerom. ( 46 av )
4670436_1a
Mellomgang fra hallen og videre inn til barneavdelingen som består av et flott bad/wc (både dusj og badekar), stue med utgang til hage og 3 soverom. ( 47 av )
4670443_1a
Hyggelig stue i tilknytning til barnerommene, skyvedør ut til hagen. ( 48 av )
4670439_1a
Boligen holder gjennomgående høy standard og har tidsriktige farge -og materialvalg. ( 49 av )
4670440_1a
( 50 av )
4670444_1a
Boligen har totalt 4 soverom. Tre av disse ligger i egen avdeling i husets første etasje. Masteravdelingen ligger i 2. etg. ( 51 av )
4670441_1a
( 52 av )
4670442_1a
( 53 av )
4670445_1a
( 54 av )
4670437_1a
Delikat flislagt og godt utstyrt bad/wc i tilknytning til barnerommene. ( 55 av )
4670438_1a
Dette badet har både regnfallsdusj og et deilig badekar for ekstra velvære. ( 56 av )
4670482_1a
( 57 av )
4670434_1a
Gjestetoalett i 1. etasje. ( 58 av )
4670435_1a
Romslig vaskerom i husets 1. etg. Mulighet for å etablere garderobe. ( 59 av )
4670478_1a
Frittliggende dobbelgarasje med hurtiglader. ( 60 av )
4671032_1a
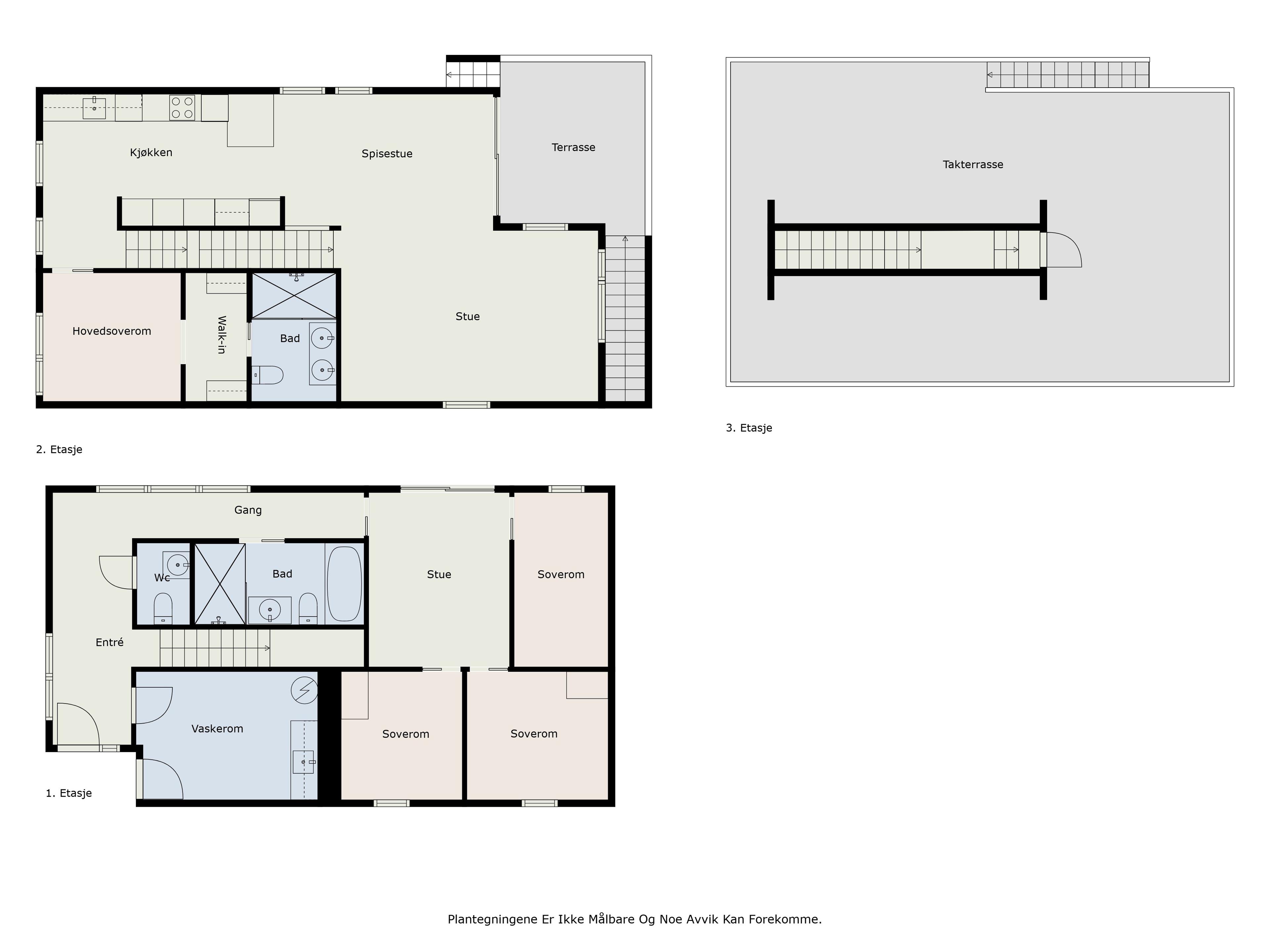
Plantegning takterrasse. ( 61 av )
4671033_1a
Plantegning alle etasjer. ( 62 av )
4672445_1a
( 63 av )
4672600_1a
Nye Fjellhamar skole ligger en rask sykkeltur unna. ( 64 av )
4672595_1a
Fjellhamar togstasjon med god kommunikasjon inn til Oslo. ( 65 av )
4672596_1a
Fjellhamar Torg. ( 66 av )
4672597_1a
Coop Mega på Fjellhamar Torg. ( 67 av )
4672598_1a
Fjellhamarhallen. ( 68 av )
4672602_1a
På vinteren er det skøytebane bak Fjellhamarhallen. ( 69 av )
4672604_1a
Nye Triaden kjøpesenter. ( 70 av )
4672603_1a
SNØ - verdens råeste helårsarena for snøopplevelser - perfekte forhold for alpint, langrenn, snowboard og andre vinteraktiviteter året rundt. ( 71 av )
4672601_1a
Losby golf med et komplett golfanlegg med høy internasjonal standard. ( 72 av )

Bekkeveien 10A

Se alle bilder (0)
4670431_1a
4670433_1a
4693724_1a
4670427_1a
4670424_1a
4670423_1a
4670428_1a
4670426_1a
4670432_1a
4670429_1a
4670473_1a
4670468_1a
4670470_1a
4670469_1a
4670471_1a
4670472_1a
4670474_1a
4670475_1a
4672444_1a
4671031_1a
4670457_1a
4670458_1a
4670456_1a
4670463_1a
4670479_1a
4670459_1a
4670464_1a
4670465_1a
4670480_1a
4670462_1a
4670461_1a
4670466_1a
4670460_1a
4670467_1a
4670448_1a
4670454_1a
4670449_1a
4670451_1a
4670450_1a
4670453_1a
4670452_1a
4670481_1a
4670986_1a
4671030_1a
4670447_1a
4670446_1a
4670436_1a
4670443_1a
4670439_1a
4670440_1a
4670444_1a
4670441_1a
4670442_1a
4670445_1a
4670437_1a
4670438_1a
4670482_1a
4670434_1a
4670435_1a
4670478_1a
4671032_1a
4671033_1a
4672445_1a
4672600_1a
4672595_1a
4672596_1a
4672597_1a
4672598_1a
4672602_1a
4672604_1a
4672603_1a
4672601_1a

Bekkeveien 10A

Prisantydning:
Fra Kr 12490000,00
til Kr 0,00
Totalpris:
Kr 12813600,00
BRA:
200,00 - 0,00
BRA-i:
169 - 169
Soverom:
4 - 0
Boligtype:
Enebolig
Eierform:
Eiet tomt
Byggeår:
2024
Etasje:
0
Tomteareal:
377

Nyoppført, eksklusiv funkisbolig med svært høy standard | Fantastisk takterrasse og dobbelgarasje m/hurtiglader | 4 sov

Ansvarlig megler:
Petter André Aure

Eiendomsmegler MNEF / Partner

Rune Emilsen

Partner/Eiendomsmegler MNEF

Visning

Det er for tiden ikke satt opp visningstid på denne eiendommen.
Ønsker du å avtale et visningstidspunkt?
Avtal privatvisning her

Bekkeveien 10A

image005

Nøkkelinformasjon

plus_G_2025

BELIGGENHET

plus_G
minus_G

BESKRIVELSE AV EIENDOMMEN

plus_G
minus_G

OFFENTLIGE FORHOLD

plus_G
minus_G

PRISANTYDNING INKLUDERT OMKOSTNINGER

plus_G
minus_G

ØVRIGE KJØPSFORHOLD

plus_G
minus_G

Dokumenter

plus_G_2025

Del boligen

facebook-gold
Twitter-gold

Lurer du på noe om denne boligen?

Ta kontakt under via skjemaet.


Relaterte boliger

Losbyveien 36C
2990000,00  0,00

Losbyveien 36C

Lørenskog ­ Finstadjordet
Gjennomgående 2-roms selveier med p-plass. Markterrasse på 20 kvm samt balkong på 12 kvm. Perfekt for førstegangskjøper!

Totalpris:

Kr 3190044,00

BRA-i:

56 m²
Haukeveien 3A
11500000,00  0,00

Haukeveien 3A

Lørenskog ­ Rasta
Stor, påkostet familiebolig fra 2020 m/ fantastisk utsikt! Stue & kjøkken på over 80 m² | 5 sov, 3 bad | Dobbelgarasje

Totalpris:

Kr 11800750,00

BRA-i:

215 m²
Skårerveien 58A
10950000,00  0,00

Skårerveien 58A

Lørenskog ­ LØRENSKOG
Innflyttningsklar familiebolig fra 2025 med balkong, carport og parkeringsplass. 3/4 soverom og to bad + vaskerom.

Totalpris:

Kr 11225100,00

BRA-i:

147 m²
Oscar Wistings vei 5
8700000,00  0,00

Oscar Wistings vei 5

Lørenskog ­ Fjellhamar
Hel tomannsbolig med leieinntekter, 1,6 mål tomt & fantastisk utsikt | Stort potensiale | Like ved tog, skole & marka

Totalpris:

Kr 8935750,00

BRA-i:

159 m²
Ingvald Kristiansens gate 7
5995000,00  0,00

Ingvald Kristiansens gate 7

Lørenskog ­ LØRENSKOG
Nyoppført og attraktiv 4-roms selveier m/garasjeplass & innglasset balkong | Sentralt & moderne i Skårerløkka Premium

Totalpris:

Kr 6158120,00

BRA-i:

78 m²
Vestaveien 45
12900000,00  0,00

Vestaveien 45

Lørenskog ­ Rasta
Påkostet familievilla med nydelig uteområde, innflyttingsklare kvaliteter og 3 garasjer | 4 sov & 3 bad | Rett ved marka

Totalpris:

Kr 13240750,00

BRA-i:

197 m²
Korallsoppveien 25A
6950000,00  0,00

Korallsoppveien 25A

Lørenskog ­ RASTA
Barnevennlig innerst i blindvei ved Østmarka. Halvpart av tomannsbolig. Garasje m/lader. 4 soverom. 2 bad

Totalpris:

Kr 7137000,00

BRA-i:

140 m²
Isak H. Wiiks gate 10
3500000,00  0,00

Isak H. Wiiks gate 10

Lørenskog ­ LØRENSKOG
Perfekt førstegangskjøp! Splitter ny 1-roms m/alkove & fransk balkong | Felles takterrasse & sentral beliggenhet

Totalpris:

Kr 3600750,00

BRA-i:

34 m²
Framveien 8
13350000,00 - 13990000,00

Framveien 8

Lørenskog ­ Fjellhamar
Eksklusive, innflyttingsklare eneboliger | Høy, påkostet standard | Garasje, praktikantdel & takterrasse | 1 SOLGT

Totalpris:

Kr 13350000,00

BRA-i:

220 m²
Asbjørn Klosters vei 3A
11990000,00  0,00

Asbjørn Klosters vei 3A

Lørenskog ­ Fjellhamar
Ny og råstilig familiebolig på 180m² med mulighet for praktikantdel | 4 bad og 5 soverom | Garasjeanlegg med 2 plasser

Totalpris:

Kr 12078850,00

BRA-i:

186 m²
Se flere boliger
Bolig til salgs

Inspirasjon

Inspirerende interiørbilder fra norske hjem.
sov1
Soverom
kjo1
Kjøkken
stue
Stue

Boligartikler

Nyttig informasjon, råd og inspirasjon for deg som er opptatt av bolig.
aaletidligute
Aktuelt

Kapret først drømmeboligen, solgte egen bolig få dager senere

Konseptet vårt, Tidlig ute, legger til rette for et stressfritt boligsalg på kundens premisser. Poenget er å være ute i god tid, slik at prosessen...
vo4
Aktuelt

178 dager uten bud; - Proaktiv solgte boligen min etter første visning

Huset i Vestre Olsvikveg hadde mistet alt av moment etter et halvt år ute i markedet. Da Proaktiv ved Jon Kristian Røsok kom inn i bildet ble...
n_r-16
Aktuelt

Drømmer du om å drive ditt eget meglerkontor?

Proaktiv Eiendomsmegling er alltid på utkikk etter flinke folk som ønsker å skape sin egen suksess. Er du en målrettet og verdiskapende megler, med...