4671410_1a
Velkommen til Rovenveien 151 - Moderne og lekker enebolig/generasjonsbolig o/2 plan på 1994 m² tomt. ( 1 av )
4671409_1a
Fra stuen i hovedetasjen er det adkomst til 23 kvm terrasse vendt mot syd. ( 2 av )
4688711_1a
Fra stuen i hovedetasjen er det adkomst til 23 kvm terrasse vendt mot syd. ( 3 av )
4671412_1a
Eiendommen ligger på en liten høyde ca. 250 meter fra Glomma. Tomten måler nesten 2 mål. ( 4 av )
4671413_1a
Boligen ble ombygget i 2018 og har god standard og fin planløsning for en familie. ( 5 av )
4604037_1a
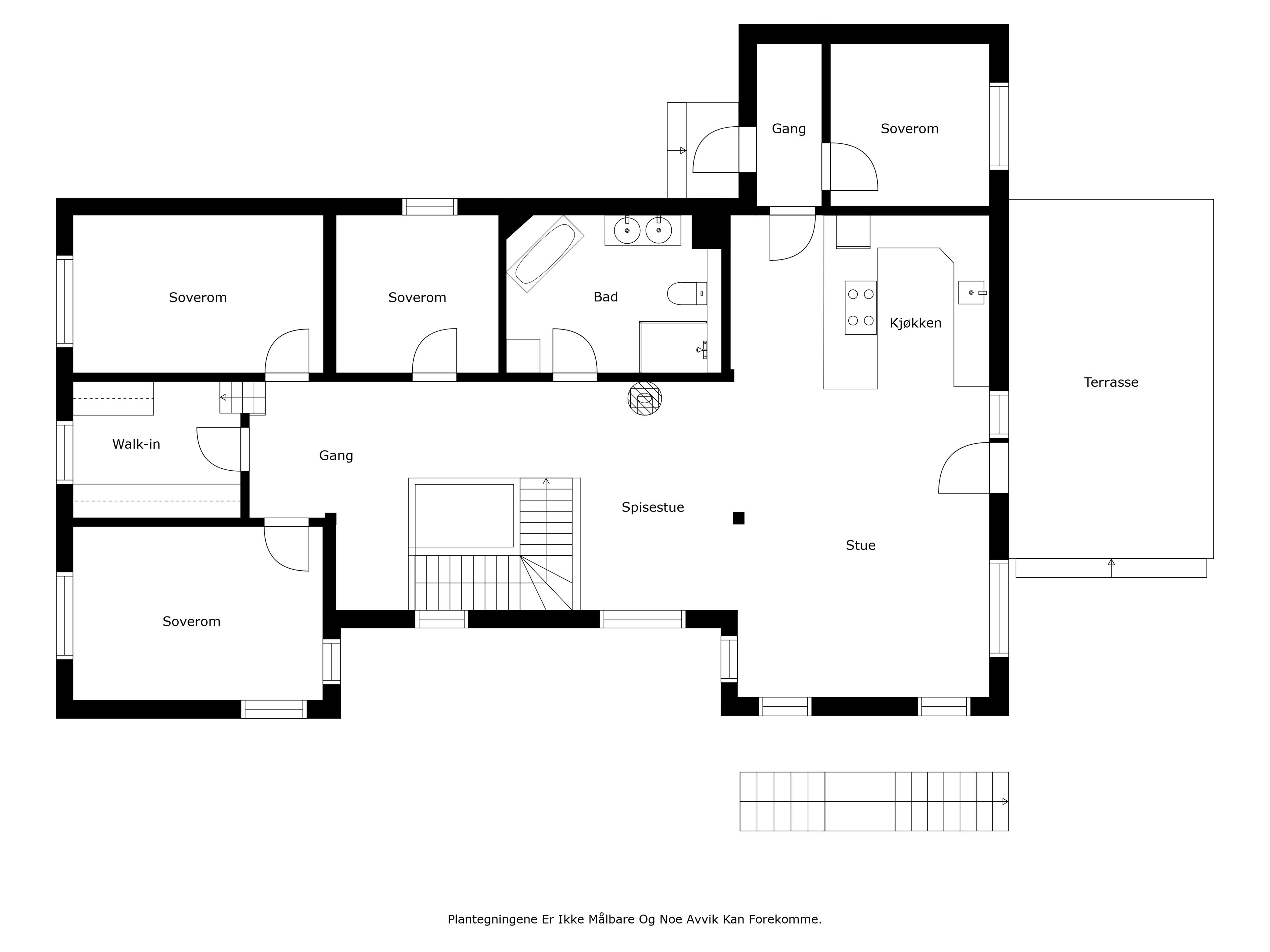
Plantegning - 1. etasje. ( 6 av )
4605581_1a
( 7 av )
4604068_1a
Huset har balansert ventilasjon og vannbåren gulvvarme i alle rom (unntatt soverom og boder). ( 8 av )
4604065_1a
I boligen 1. etasje er det stor og luftig stue, med plass til flere sosiale soner. ( 9 av )
4604070_1a
Store vindufalter gir rikelig innslipp av naturlig lys, og den generøse takhøyden gir en svært god romfølelse. ( 10 av )
4604064_1a
( 11 av )
4604082_1a
Kveldsstemning. ( 12 av )
4604085_1a
I himlingen er det satt opp spotskinner med justerbare lamper. ( 13 av )
4604071_1a
Fra spisestuen har du flott utsikt mot Glomma. ( 14 av )
4604086_1a
Huset ha gjennomgående laminatgulv som tåler mye slitasje. ( 15 av )
4604083_1a
Boligen har et stramt og moderne kjøkken med heltre benkeplate, og sorte fronter i slett utførelse. ( 16 av )
4604084_1a
Et praktisk og funksjonelt kjøkken med god skapplass og arbeidflate for matlaging. ( 17 av )
4604069_1a
Det er også praktisk øy med plass til to stoler - perfekt for mat på farten. ( 18 av )
4604067_1a
Kjøkkenet er komplett utstyrt med integrerte hvitevarer, med bla. induksjonstopp med benkeventilator. ( 19 av )
4604066_1a
Et praktisk kjølehjørne passer fint for barnefamilier. ( 20 av )
4604072_1a
( 21 av )
4604053_1a
Mot soveromsavdelingen er det mulighet for en liten arbeidsplass. ( 22 av )
4604052_1a
Takhøyden er godt utnyttet med lagringshems for oppbevaring. ( 23 av )
4604076_1a
Det er montert kul sambatrapp i tre opp til hemsen. ( 24 av )
4604080_1a
Boligen hovedbad er svært delikat innredet, med 60x60 fliser på gulv og vegger, gulvvarme og behagelig belysning. ( 25 av )
4604078_1a
Badet har stor baderomsinnredning med dobbel servant nedfelt, to ettgreps kraner og rundt speil m/ integrert lys. ( 26 av )
4604079_1a
I hjørnet er det lekker badekar med tilhørende dusjgarnityr. ( 27 av )
4604081_1a
Badet har også veggmontert wc med håndspyler, og dusjhjørne med sort glassdører. Det er balansert ventilasjon. ( 28 av )
4604042_1a
Stort, luftig og innbydende hovedsoverom! ( 29 av )
4604075_1a
Det er totalt 6 soverom fordelt på to etasjer. ( 30 av )
4604077_1a
Alle rommene har plass til dobbeltseng. ( 31 av )
4604050_1a
( 32 av )
4604051_1a
Praktisk oppbevaringskott. ( 33 av )
4604073_1a
I tilknytning til soverommene i 1. etasje er det walk-in garderobe med hyller, skuffer og oppheng. ( 34 av )
4605582_1a
( 35 av )
4604036_1a
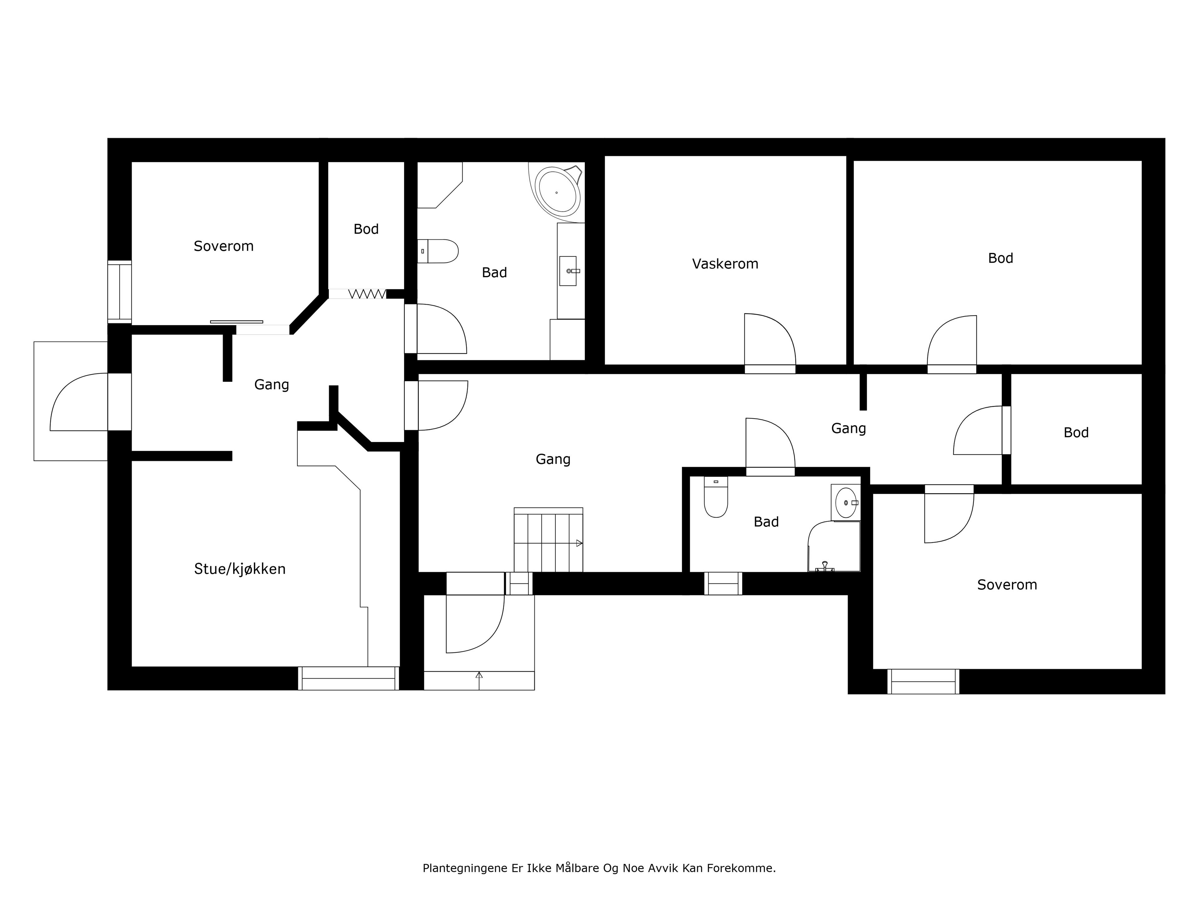
Plantegning - underetasje. Det er etablert hybel i deler av underetasjen (venstre side på tegning) ( 36 av )
4604057_1a
Baderom nr. 2 i hoveddelen har fin beliggenhet til hallen og gjesterommet i underetasjen. ( 37 av )
4604058_1a
Dette er også et lekkert bad innredet med servant, høyskap, speil, dusjhjørne og vegghengt toalett m/håndspyler. ( 38 av )
4604054_1a
Hallen gir et godt førsteinntrykk av boligen! ( 39 av )
4604055_1a
På gulvet er det lagt 60x60 gulvfliser som tåler vann og mye slitasje, og veggene er en stilig konbinasjon av betong og treplater som gir et stramt og moderne uttrykk. ( 40 av )
4604056_1a
Det er god plass til garderobeløsnig langs veggene, og ekstra lagringsplass under trappen. ( 41 av )
4604060_1a
Et fint soverom for gjestene i underetasjen. ( 42 av )
4604059_1a
Stort og innholdsrikt vaskerom med god oppbevaringsplass og opplegg for både vaskemaskin og tørketrommel. ( 43 av )
4604046_1a
I deler av underetasjen er det etablert hybel med egen inngang. ( 44 av )
4604044_1a
Hybelen har stort og fint kjøkken med plass til spisebord. ( 45 av )
4604045_1a
Kjøkkenet har hvite fronter, laminat benkeplate og integrerte hvitevarer. ( 46 av )
4604043_1a
Stue i hybel. ( 47 av )
4604049_1a
Oppbevaringsplass i entré og gang. ( 48 av )
4604048_1a
Badet i leiligheten er minst like lekkert som de andre badene i huset. Rommet er delikat innredet med store fliser i beige farge, gulvvarme og downlights i himlingen. Det er opplegg for vaskemaskin. ( 49 av )
4604047_1a
Fint soverom med plass til det nødvendige. ( 50 av )
4605552_1a
Estimert utleiepris for hybel. ( 51 av )
4744554_1a
16141-PG-Finn-Skillesider-PG2022146-Nærområdet ? Kopi ( 52 av )
4605592_1a
Fra Svingen Stasjon kan du ta toget køfritt til Oslo S på 22 minutter. ( 53 av )
4605587_1a
Sentrumskjernen har flere dagligvarebutikker, blomsterbutikk, kafé, sushi, vinmonopol, apotek og helsetorg ( 54 av )
4605585_1a
Fetsund lenser er i dag fredet som landets eneste gjenværende fløtningsanlegg. ( 55 av )
4605588_1a
Boligen sokner til Hovinhøgda barneskole. ( 56 av )
4605583_1a
Eika Fet Arena. ( 57 av )
4605591_1a
Nye Riddersand ungdomsskole ligger innen sykkelavstand. ( 58 av )
4605584_1a
Fedrelandet Idrettspark ligger rett på andre siden av elven. ( 59 av )
4605589_1a
Fetsund har fine naturområder med bade- og fiskevann, turstier og skiløyper på vinterstid. ( 60 av )
4605593_1a
Hva med en padletur i Øyeren? ( 61 av )
4671411_1a
Tomten på 1994 m² er grovplanert, med mulighet for opparbeidet hage og garasje. ( 62 av )
4605590_1a
( 63 av )

Rovenveien 151

Se alle bilder (0)
4671410_1a
4671409_1a
4688711_1a
4671412_1a
4671413_1a
4604037_1a
4605581_1a
4604068_1a
4604065_1a
4604070_1a
4604064_1a
4604082_1a
4604085_1a
4604071_1a
4604086_1a
4604083_1a
4604084_1a
4604069_1a
4604067_1a
4604066_1a
4604072_1a
4604053_1a
4604052_1a
4604076_1a
4604080_1a
4604078_1a
4604079_1a
4604081_1a
4604042_1a
4604075_1a
4604077_1a
4604050_1a
4604051_1a
4604073_1a
4605582_1a
4604036_1a
4604057_1a
4604058_1a
4604054_1a
4604055_1a
4604056_1a
4604060_1a
4604059_1a
4604046_1a
4604044_1a
4604045_1a
4604043_1a
4604049_1a
4604048_1a
4604047_1a
4605552_1a
4744554_1a
4605592_1a
4605587_1a
4605585_1a
4605588_1a
4605583_1a
4605591_1a
4605584_1a
4605589_1a
4605593_1a
4671411_1a
4605590_1a

Rovenveien 151

Prisantydning:
Fra Kr 8670000,00
til Kr 0,00
Totalpris:
Kr 8907000,00
BRA:
272,00 - 0,00
BRA-i:
272 - 0
Soverom:
6 - 0
Boligtype:
Enebolig
Eierform:
Eiet tomt
Byggeår:
1959
Etasje:
0
Tomteareal:
1994

Sjeldent stor enebolig på 272 m² med utsikt mot Glomma. Generasjonsbolig/2 roms utleiedel. Alt nytt i 2018. 2 mål tomt

Ansvarlig megler:
Stig Valskaar

Eiendomsmegler MNEF/ Daglig leder

Visning

Det er for tiden ikke satt opp visningstid på denne eiendommen.
Ønsker du å avtale et visningstidspunkt?
Avtal privatvisning her

Rovenveien 151

image005

Nøkkelinformasjon

plus_G_2025

BELIGGENHET

plus_G
minus_G

BESKRIVELSE AV EIENDOMMEN

plus_G
minus_G

OFFENTLIGE FORHOLD

plus_G
minus_G

PRISANTYDNING INKLUDERT OMKOSTNINGER

plus_G
minus_G

ØVRIGE KJØPSFORHOLD

plus_G
minus_G

Dokumenter

plus_G_2025

Del boligen

facebook-gold
Twitter-gold

Lurer du på noe om denne boligen?

Ta kontakt under via skjemaet.


Relaterte boliger

Brånåslia 7
2100000,00  0,00

Brånåslia 7

Lillestrøm ­ SKEDSMOKORSET
Lys og romslig 3-roms med sydvestvendt balkong, 2 boder og p-plass. IN-ordning. Ingen forkjøpsrett - ingen dok.avgift.

Totalpris:

Kr 3992788,00

BRA-i:

88 m²
Nitteberglia 3
3890000,00  0,00

Nitteberglia 3

Lillestrøm ­ KJELLER
Gjennomgående 3-roms selveierleilighet fra 2018 med garasjeplass og usjenert uteplass. Fjernvarme inkl.

Totalpris:

Kr 4001500,00

BRA-i:

63 m²
Sørumsgata 8
4800000,00  0,00

Sørumsgata 8

Lillestrøm ­ LILLESTRØM
Sentralt beliggende 3-roms selveierleilighet med to garasjeplasser, heis og innglasset balkong. Oppgradert i 2025.

Totalpris:

Kr 4934250,00

BRA-i:

61 m²
7100000,00  0,00

St. Olavs gate 45

Lillestrøm ­ LILLESTRØM
Innholdsrik enebolig over 2 plan med dobbel garasje og solrik tomt | Peis | Varmepumpe | Barnevennlig

Totalpris:

Kr 7297750,00

BRA-i:

127 m²
4350000,00  0,00

Strømsveien 79C

Lillestrøm ­ STRØMMEN
Stor 2-roms med privat, vestvendt terrasse på hele 50 m² | Heis | Ingen forkjøpsrett eller ingen dokumentavgift

Totalpris:

Kr 4359850,00

BRA-i:

75 m²
Havnehagen 28
7850000,00  0,00

Havnehagen 28

Lillestrøm ­ STRØMMEN
Lekkert og meget påkostet rekkehus med stor takterrasse | 3 soverom | Garasjeplass | Barnevennlige omgivelser

Totalpris:

Kr 8059500,00

BRA-i:

135 m²
Bergkrystallen 2A
3950000,00  0,00

Bergkrystallen 2A

Lillestrøm ­ GAN
Oppgradert og lekker halvpart tomannsbolig på solrik hjørnetomt | 3 soverom | Skjermet og solrik uteplass | Garasje

Totalpris:

Kr 4069000,00

BRA-i:

107 m²
Henrik Ibsens vei 96
5000000,00  0,00

Henrik Ibsens vei 96

Lillestrøm ­ STRØMMEN
Idyllisk ved Sagelva - stilig 3-roms med felleshage, solrik terrasse og garasje m/EL | Fjernvarme inkl. | Trappefritt

Totalpris:

Kr 5184422,00

BRA-i:

82 m²
Hurdalsgata 4B
12890000,00  0,00

Hurdalsgata 4B

Lillestrøm ­ Lillestrøm
Stor og innholdsrik enebolig oppført 2008. 234 kvm BRA-i med god standard. Dobbel garasje og solrik terrasse på 34 kvm.

Totalpris:

Kr 13232500,00

BRA-i:

234 m²
2400000,00  0,00

Strømsveien 77C

Lillestrøm ­ STRØMMEN
Lys loftsleilighet fra 2019 perfekt for utleie eller førstegangskjøp! Rett ved buss og kort vei til toget

Totalpris:

Kr 2486795,00

BRA-i:

27 m²
Se flere boliger
Bolig til salgs

Inspirasjon

Inspirerende interiørbilder fra norske hjem.
sov1
Soverom
kjo1
Kjøkken
stue
Stue

Boligartikler

Nyttig informasjon, råd og inspirasjon for deg som er opptatt av bolig.
aaletidligute
Aktuelt

Kapret først drømmeboligen, solgte egen bolig få dager senere

Konseptet vårt, Tidlig ute, legger til rette for et stressfritt boligsalg på kundens premisser. Poenget er å være ute i god tid, slik at prosessen...
vo4
Aktuelt

178 dager uten bud; - Proaktiv solgte boligen min etter første visning

Huset i Vestre Olsvikveg hadde mistet alt av moment etter et halvt år ute i markedet. Da Proaktiv ved Jon Kristian Røsok kom inn i bildet ble...
n_r-16
Aktuelt

Drømmer du om å drive ditt eget meglerkontor?

Proaktiv Eiendomsmegling er alltid på utkikk etter flinke folk som ønsker å skape sin egen suksess. Er du en målrettet og verdiskapende megler, med...