Byggemåte
Utvendig:
Bygningens tak er konstruert i en enkel sadelform. Det er utvendig tekket med betongtakstein. Loftet er utformet som et kaldt loft og er tilgjengelig fra gangen i 1. et. via en loftsluke. Taksperrene er plassbygget og laget av treverk, og gir strukturell styrke til taket. Det er synlig undertak av trebord, med ovenpå liggende takpapp. Det er isolert med ca. 20 cm i bjelkelaget mot 1.et. Ventilasjon håndteres gjennom luftekassetter i gesimsen.Takrenner og nedløp er av metall. Beslag og stigetrinn til pipe er også av metall. Bygningens yttervegger er oppført med et isolert trebindingsverk med standard og byggeskikk fra oppføringsåret. Dette bindingsverket består av stendere, lekter, isolasjon og vindsperre. Utenpå dette er veggene kledd med Stående bordkledning av treverk. Bordkledningen gir et enkelt og tradisjonelt utseende samtidig som den fungerer som en beskyttende barriere mot værforholdene.
Selger opplyser om at fasaden er etterisolert og har fått ny vindsperre og utvendig kledning i perioden mellom 2015 og 2018.
De fleste vinduene er byttet i perioden 2016-2018, og er av malt treverk med tolags isolerglass og har utvendig aluminiumsbeslag.
Resterende vinduer er av malt treverk med to lags glass, disse oppgis og være skiftet rundt 2012.
Inngangsdør, veranda og terrassedør er av treverk med glassfelt.
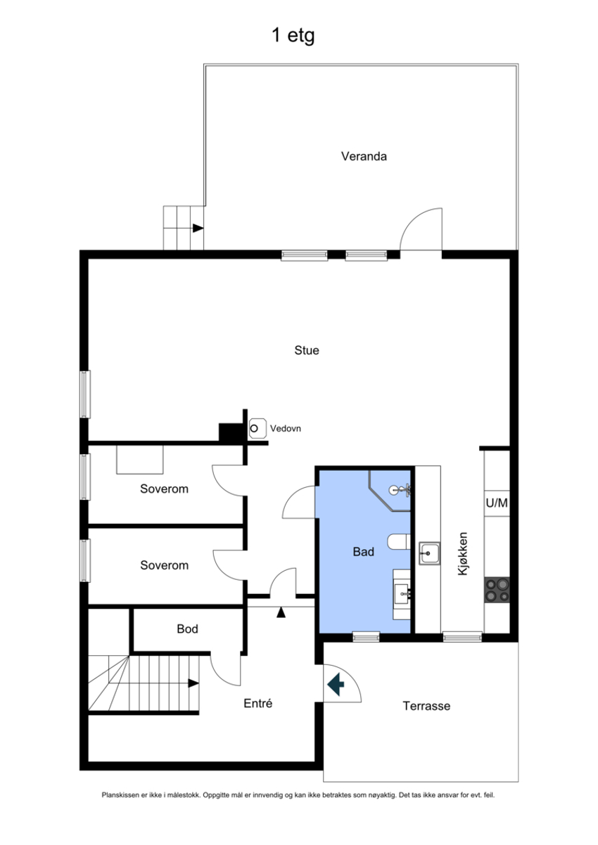
Utgang fra stuen i 1. et. til en østvendt veranda på omtrent 21 kvadratmeter. Verandaen er belagt med spaltegulv og har et rekkverk laget av treverk. Rekkverkshøyden er målt til 94 centimeter. Verandaen er utstyrt med utebelysning og en stikkontakt.
Terrasse mot øst med adkomst fra hage og veranda på omtrent 33 kvadratmeter. Terrassen er belagt med spaltegulv og har et rekkverk laget av treverk . Rekkverkshøyden er målt til 96 centimeter. Terrassen er utstyrt med et overbygg på 10 kvadratmeter, og levegger for å gi ekstra funksjonalitet og komfort.
Overbygget treplatting mot øst med adkomst fra kontor på 17 kvadratmeter. Terrasse ved inngangspartiet mot vest på omtrent 13 kvadratmeter. Terrassen er belagt med spaltegulv av treverk og har et rekkverk laget av vedlikeholdsfri plast. Rekkverkshøyden er målt til 91 centimeter. Terrassen er utstyrt med utebelysning og en stikkontakt.
Det er utvendige trapper av treverk.
Innvendig:
1. Etasje:
Gulvoverflater av: Parkett og laminat. Veggoverflater av: Malte slette flater og malte profilerte plater.
Himlingsoverflater av: Malte slette flater, tak-essplater og malt trepanel.
Sokkel:
Gulvoverflater av: Fliser og laminat. det er gulvvarme i stue, kontor og bod.
Veggoverflater av: Malt murpuss, tegl, trepanel og malte profilerte plater.
Himlingsoverflater av: Malt betong og tak-essplater.
Etasjeskille av: Betong.
Boligen har innvendig trapp av treverk.
Innvendige dører er fra ulike årstall. De fleste dørene har malt og profilert utførelse.
Boligen har mursteinspipe, og vedovn i stue 1. et. og sokkel et.
Garasjen er oppført med bindingsverkskonstruksjon av treverk på ringmur av lettklinkerblokker. Utvendige vegger er kledd med tømmermannskledning, og takkonstruksjonen er av sadlet form, tekket med
metallplater. Takrenner og nedløp er av plast. Gulvet er gruset.
Garasjeporten er en vippeport i treverk. Det er lagt opp elektrisk anlegg tilbygningen, for belysning og stikkontakt.
Tekniske installasjoner:
Innvendige vannledninger er av plast (rør i rør). Det er synlige avløpsrør av plast.
Ventilasjonssystemet i boligen bruker en kombinasjon av naturlig tilluft og mekanisk avtrekk. Samtidig benyttes mekanisk avtrekk fra badet og kjøkkenet. Dette betyr at avtrekksluften fra disse områdene blir aktivt trukket ut ved hjelp av mekaniske vifter.
Boligen har installert luft til luft varmepumpe. Varmepumpen ble installert i 2025 i følge selger.
Varmtvannstanken er på ca. 200 liter.
Sikringsskap med automatsikringer plassert i gang.
Lovlighet:
Det foreligger godkjente og byggemeldte tegninger, men de stemmer ikke med dagens bruk. I kjelleretasjen er rommene opprinnelig byggemeldt som "Vedbod, matbod, poteter, dispoinibelt ikke utgravet". Med unntak av bad/vaskerom, hvor det foreligger godkjent byggesøknad.
Det er den til enhver tid eier av eiendommen som er ansvarlig for at eiendommen oppfyller offentligrettslige krav og vilkår for bruk. Det er uvisst om godkjenning vil bli gitt ved en evt. søknad. Kjøper overtar ansvar, risiko og konsekvenser knyttet til dette, kfr. megler for ytterligere informasjon
Se vedlagt boligsalgsrapport avholdt 30.10.25 12:31, hvor ovennevnte opplysninger er hentet fra, for nærmere teknisk beskrivelse av eiendommen.
Selger har fått utarbeidet en tilstandsrapport for eiendommen. Rapporten er en teknisk gjennomgang av boligen og angir eventuelle byggetekniske avvik. I rapporten fremkommer det forhold som takstmannen mener kjøper må være særskilt oppmerksom på, herunder:
Utdrag fra tilstandsrapport:
TG 3 - STORE ELLER ALVORLIGE AVVIK:
Utvendig > Utvendige trapper:
Det er ikke montert rekkverk. Trapp mellom de to utvendige nivåene er ikke god å gå i som følge av for korte inntrinn.
Tomteforhold > Forstøtningsmurer:
Det mangler rekkverk/annen sikring på forstøtningsmuren(e) ut ifra dagens krav.
Våtrom > 1. Etasje > Bad > Overflater Gulv:
Det er påvist at høydeforskjell fra topp slukrist til gulv/synlig topp membran ved dørterskel er mindre enn 25 mm.
Målinger viser at det ikke er fall til sluk (motfall).
Det er påvist fall fra døråpning mot yttervegg på ca. 10 mm.
Spesialrom > Sokkel > Toalettrom > Overflater og konstruksjon
Toalettrom har ingen ventilering fra rommet, NS 3600 krever mekanisk avtrekk for å kunne gi TG 0/1.
Det mangler lekkasjesikring for innebygget sisterne.
TG2 - AVVIK SOM KAN KREVE TILTAK:
Utvendig > Taktekking
Mer enn halvparten av forventet brukstid er passert på taktekkingen.
Mer enn halvparten av forventet brukstid er passert på undertak.
Ved kontroll under takstein ble det registrert begynnende råteskader i enkelte sløyfer.
Det ble også observert at undertakspappen ikke har oppbrett mot vindskier, noe som kan medføre vanninntrenging i overgangen mellom takflate og vindskier ved slagregn eller snøsmelting.
Takstein begynner å bli mosegrodd.
Utvendig > Takkonstruksjon/Loft
Fuktmerker som sannsynligvis har årsakssammenheng med kondensproblematikk.
Fuktmerker som sannsynligvis har årsakssammenheng med utett yttertaktekning.
Svertesopp i undertaket sannsynligvis som følge av kondenseringsproblematikk.
Det bemerkes at ventilasjonen i gesims ikke er ideell.
Begrenset ventilasjon mellom undertak og isolasjon.
Luftlekasjer som følge av utett dampsperre mot 1. etasje.
Utvendig > Balkonger, terrasser og rom under balkonger
Rekkverket er for lavt i forhold til dagens krav til rekkverkshøyder.
Gulvbord og rekkverk med grønske og fuktbelastning.
Frittliggende terrasse har skjevtheter.
Skjevt fundament for veranda.
Innvendig > Etasjeskille/gulv mot grunn
Det er målt høydeforskjell på mellom 15-30 mm gjennom hele rommet.
Innvendig > Pipe og ildsted:
Mer enn halvparten av forventet brukstid er passert på pipe.
Innvendig > Innvendige trapper:
Det mangler håndløper på vegg i trappeløpet.
Tekniske installasjoner > Avløpsrør
Mer enn halvparten av forventet brukstid er passert på innvendige avløpsledninger.
Tekniske installasjoner > Ventilasjon:
Det er begrenset ventilasjon fra ett eller flere rom etter at det ble byttet vinduer.
Tekniske installasjoner > Varmtvannstank:
Det er ikke påvist tilfredsstillende avrenning eller annen kompenserende løsning fra varmtvannstank.
Tekniske installasjoner > Elektrisk anlegg:
Sikringsskap med automatsikringer plassert i gang. Det elektriske anlegget er basert på åpne og skjulte føringsveier. Hovedbryter på 63 Amp, 230 V. Anlegg
Tilstandsgraden er vurdert ut fra den forenklede og begrensede kontrollen som forskriften inneholder. El-anlegget kan ha feil og mangler som en slik forenklet undersøkelse ikke vil avdekke.
Tomteforhold > Fuktsikring og drenering:
Mer enn halvparten av forventet levetid på drenering er overskredet. Dette gjelder den delen av dreneringen som ikke ble skiftet.
Det opplyses om at det ble gjort noe feil ved beregning av fall på drensledningen. Det har i ettertid blitt satt ned en lensepumpe som pumper vannet igjennom drensledningen mot drenskum
Tomteforhold > Terrengforhold:
Det er påvist dårlig fall eller flatt terreng inn mot grunnmur og dermed muligheter for større vannansamlinger.
Tomteforhold > Utvendige vann- og avløpsledninger
Mer enn halvparten av forventet brukstid er passert på utvendige avløpsledninger.
Våtrom > 1. Etasje > Bad > Overflater vegger og himling:
Symptomer på fuktskade i himling over toalett.
Skader på fug mellom sokkel flis og våtromsplater.
Våtrom > 1. Etasje > Bad > Sanitærutstyr og innredning:
Det mangler drenering fra innebygget sisterne.
Våtrom > Sokkel > Bad > Overflater Gulv
Det er påvist avvik i fallforhold til sluk i forhold til krav i forskrift på byggetidspunktet. Det er kun fall til sluk i dusjsonen, ingen oppbrett ved dør.