Vi har byttet meglersystem. Noe avvik kan derfor forekomme. Kontakt oss om du opplever utfordringer.
Vi har byttet meglersystem. Noe avvik kan derfor forekomme. Kontakt oss om du opplever utfordringer.
logo
search
879720971371293
Velkommen til en stor og fin 3-roms andelsleilighet i sentrale Bruveien 2. (Digital styling) ( 1 av )
879720971371294
I bygget ligger bla. Rema 1000, apotek, legesenter og bibliotek. ( 2 av )
879720971371295
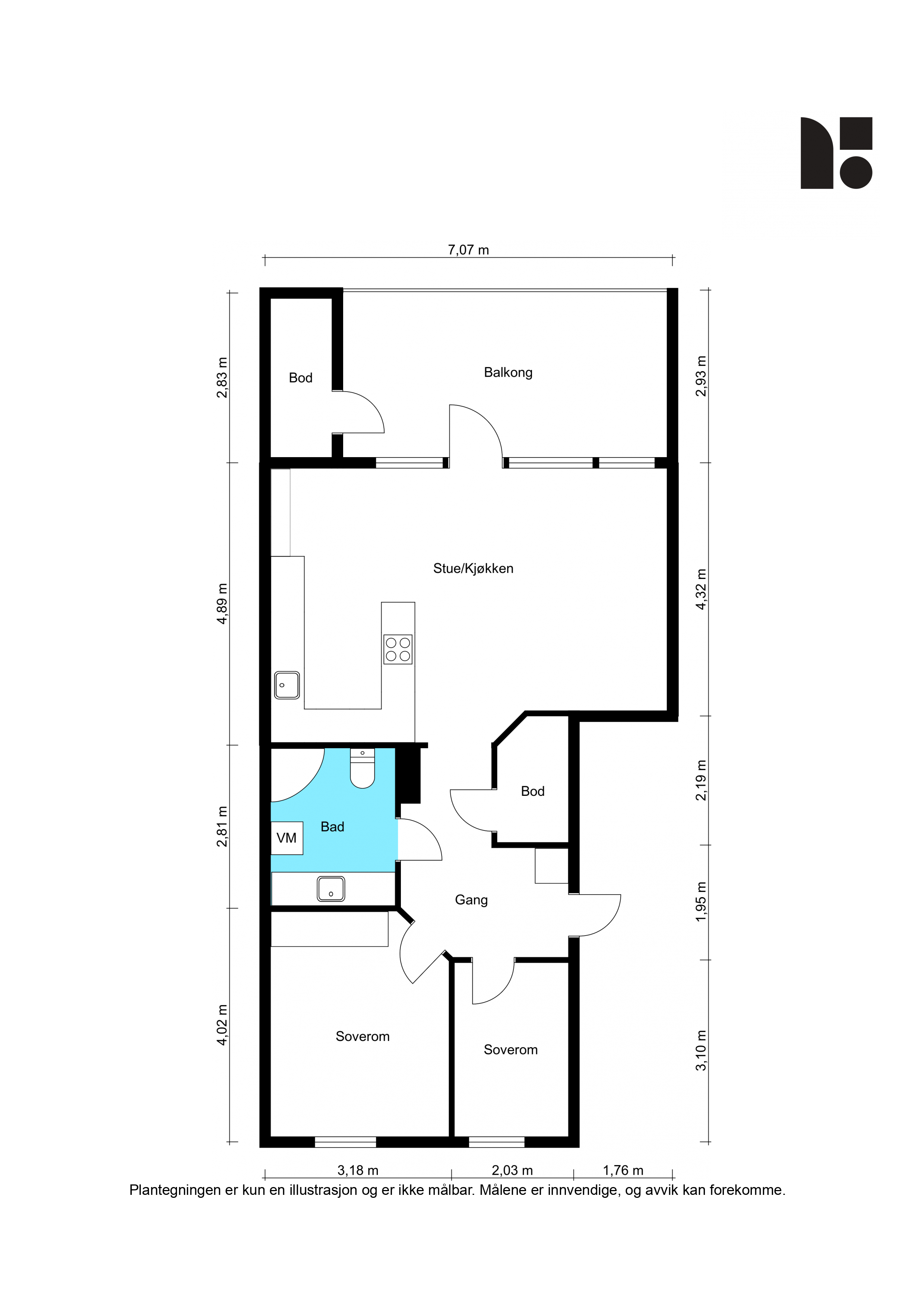
Plantegning 5.etg. ( 3 av )
879720971371296
Stort og innbydende allrom med stue og kjøkken i åpen løsning. ( 4 av )
879720971371297
Kjøkkenet ble pusset opp i 2023. ( 5 av )
879720971371298
Ikea kjøkken med mye skap -og benkeplass, slette fronter og laminat benkeplate. ( 6 av )
879720971371299
Hele rommet har laminatgulv og slette overflater. ( 7 av )
879720971371300
I tilknytning til kjøkkenet er det plass til å innrede sofagruppe og spisebord. ( 8 av )
879720971371301
Det er mye lysinnslipp fra store vinduer, samt utgang til balkongen. ( 9 av )
879720971371302
Kvadratisk stue som er enkel å innrede. ( 10 av )
879720971371303
Badet har flislagt gulv, flislagt og malte vegger, og varmekabler i gulvet. ( 11 av )
879720971371304
God oppbevaringsplass og opplegg for vaskemaskin. ( 12 av )
879720971371305
Dusjkabinett fra Porsgrunn. ( 13 av )
879720971371306
Romslig hovedsoverom med plass til dobbeltseng. (Digital styling) ( 14 av )
879720971371307
Hovedsoverom. ( 15 av )
879720971371308
Soverom I. ( 16 av )
879720971371309
Det er montert skap langs veggen. ( 17 av )
879720971371310
Soverom II. ( 18 av )
879720971371311
Lys og romslig entré med tilliggende bod og god plass til oppbevaring. ( 19 av )
879720971371312
Entré/gang. ( 20 av )
879720971371284
Felles callinganlegg er montert. Det er heisadkomst opp til leilighetsplan i 5.etg. ( 21 av )
879720971371285
Leiligheten ligger i byggets 5.etg, og byr på stor og solrik balkong på ca. 16 kvm. ( 22 av )
879720971371286
Her får du god plass til møblering. Det er gode solforhold og flott utsikt. ( 23 av )
879720971371287
Det er bod i tilknytning til balkong. ( 24 av )
879720971371288
Utsikt fra balkongen. ( 25 av )
879720971371289
Utsikt fra balkongen. ( 26 av )
879720971371290
Felles gang. ( 27 av )
879720971371291
Felles overbygget svalgang. ( 28 av )
879720971371292
Leiligheten ligger sentralt i Lierbyen, med enkel adkomst til alt du behøver i hverdagen. ( 29 av )

Bruveien 2

Se alle bilder (0)
879720971371293
879720971371294
879720971371295
879720971371296
879720971371297
879720971371298
879720971371299
879720971371300
879720971371301
879720971371302
879720971371303
879720971371304
879720971371305
879720971371306
879720971371307
879720971371308
879720971371309
879720971371310
879720971371311
879720971371312
879720971371284
879720971371285
879720971371286
879720971371287
879720971371288
879720971371289
879720971371290
879720971371291
879720971371292

Bruveien 2

Prisantydning:
Kr 3950000
Totalpris:
Kr 4023036
BRA:
76
BRA-i:
71
Soverom:
2
Boligtype:
Leilighet
Eierform:
Eierseksjon​
Byggeår:
1989
Etasje:
5
Tomteareal:
4059

Pent oppusset 3-roms leilighet i 5.etg, heis, sentralt i Lierbyen. Kjøkken fra 2023. 16m² balkong m/ utsikt og mye sol.

Bruveien 2 er en supersentral 3-roms leilighet midt i sentrum av Lierbyen. Bor du her har du enkel tilgang til alle servicetilbud som bla. butikker, apotek, spisesteder, barnehage og skoler. Det er også kort vei til Lierelva med fin tursti, og flere markaomrråder for hele familien. Leiligheten ligger høyt og fint i byggets 5. etasje, og har enkel adkomst via heis. Solen kan nytes på stor og delvis overbygd balkong, med fin utsikt over området. Innvendig består leiligheten av entré med tilliggende bod, stue og kjøkkeni åpen løsning, bad m/opplegg for vaskemaskin, og 2 soverom. Leiligheten ble oppgradert med nytt og lekkert kjøkken i 2023. Det medfølger to boder med god lagringsplass, og det er mulighet for garasjeleie i nabolaget. Velkommen til hyggelig visning!
Ansvarlig megler:
Fredrik Engebråten

Partner / Eiendomsmegler

Visning

Det er for tiden ikke satt opp visningstid på denne eiendommen.
Ønsker du å avtale et visningstidspunkt?
Avtal privatvisning her

Bruveien 2

image005

Nøkkelinformasjon

plus_G

Beskrivelse av eiendommen

plus_G
minus_G

Borettslaget/sameie/økonomi

plus_G
minus_G

Offentlige forhold

plus_G
minus_G

Områdebeskrivelse

plus_G
minus_G

Prisantydning inkl. omkostninger

plus_G
minus_G

Takst og Tilstand

plus_G
minus_G

Øvrige kjøpsforhold

plus_G
minus_G

Dokumenter

plus_G

Del boligen

facebook-gold
Twitter-gold

Lurer du på noe om denne boligen?

Ta kontakt under via skjemaet.


Relaterte boliger

879720971371612
4490000 

Røykenveien 59

Lier ­ GULLAUG
Flott halvpart av tomannsbolig på 168 m². To plan. Usjenert med fin fjordutsikt. Veranda, fast p-plass og felles hage.

Totalpris:

Kr 4616240

BRA-i:

168 m²
879720971371677
5950000 

Stoppenkollen 17

Lier ­ LIER
Eksklusiv 3-roms selveierleilighet fra 2021 med spektakulær utsikt, heis, garasjeplass og balkong på 19m².

Totalpris:

Kr 6112740

BRA-i:

77 m²
879720971371543
7300000 

Øvre Solspillet 4

Lier ­ LIER
Stor og delikat familiebolig i blindvei med panoramautsikt, 140m² uteplasser & dobbelgarasje. 4 sov. Rolig og markanært

Totalpris:

Kr 7500490

BRA-i:

212 m²
879720971371696
2100000 

Hegsbroveien 76C

Lier ­ LIER
Nyere 2-roms leilighet med heis, garasjeplass og balkong. Sentralt i Lierbyen. IN-ordning.

Totalpris:

Kr 3504990

BRA-i:

51 m²
879720971371374
3950000 

Vestsideveien 1A

Lier ­ LIER
Stor selveierleilighet på 110 kvm med rekkehusfølelsen. Renovert i 2015. Trappefritt. Parkeringsplass.Sentralt!

Totalpris:

Kr 4062740

BRA-i:

110 m²
879720971370831
2600000 

Frydenlund 22C

Lier ­ LIERSTRANDA
Fin 2-roms toppleilighet med fjordutsikt og sydvestvendt balkong. Bad fra 2023. Ingen gjenboere. Kort vei til Drammen.

Totalpris:

Kr 3052327

BRA-i:

55 m²
879720971370908
6800000 

Saueveien 40

Lier ­ LIER
Fint beliggende enebolig på 1 måls hjørnetomt. Nydelig hage og solrik terrasse. 3 soverom + 2 bad. Garasje.

Totalpris:

Kr 6988990

BRA-i:

202 m²
879720971370497
4450000 

Roseveien 39F

Lier ­ TRANBY
Påkostet og delikat enderekkehus m/ ekstra stor uteplass. Særdeles barnevennlig. Garasjeplass. 4 soverom. Flytt rett inn

Totalpris:

Kr 4867597

BRA-i:

122 m²
Se flere boliger
Bolig til salgs

Inspirasjon

Inspirerende interiørbilder fra norske hjem.
sov1
Soverom
kjo1
Kjøkken
stue
Stue

Boligartikler

Nyttig informasjon, råd og inspirasjon for deg som er opptatt av bolig.
aaletidligute
Aktuelt

Kapret først drømmeboligen, solgte egen bolig få dager senere

Konseptet vårt, Tidlig ute, legger til rette for et stressfritt boligsalg på kundens premisser. Poenget er å være ute i god tid, slik at prosessen...
vo4
Aktuelt

178 dager uten bud; - Proaktiv solgte boligen min etter første visning

Huset i Vestre Olsvikveg hadde mistet alt av moment etter et halvt år ute i markedet. Da Proaktiv ved Jon Kristian Røsok kom inn i bildet ble...
n_r-16
Aktuelt

Drømmer du om å drive ditt eget meglerkontor?

Proaktiv Eiendomsmegling er alltid på utkikk etter flinke folk som ønsker å skape sin egen suksess. Er du en målrettet og verdiskapende megler, med...